Property
Account |
| Property ID: | 32778 | Abbreviated Legal Description: | 15-6-35 TAX 14 |
| Parcel Number: | 350615110014 | Agent Code: | |
| Type: | Real | | |
| Tax Area: | 311 - 250-4 | Land Use Code | 11 |
| Open Space: | N | DFL | N |
| Historic Property: | N | Remodel Property: | N |
| Multi-Family Redevelopment: | N | | |
| Township: | 6 | Section: | 15 |
| Range: | 35 |
Location |
| Address: | 4704 STATELINE RD WA 99324 | Mapsco: | |
| Neighborhood: | G SFR Rural | Map ID: | |
| Neighborhood CD: | 214013 |
Owner |
| Name: | HAMMON JACK D & JANICE E | Owner ID: | 55385 |
| Mailing Address: | 4704 STATELINE RD WALLA WALLA, WA 99362 | % Ownership: | 100.0000000000% |
| | | Exemptions: | SNR/DSBL |
Taxes and Assessment Details
Values
| (+) Improvement Homesite Value: | + | $92,770 | |
| (+) Improvement Non-Homesite Value: | + | $0 | |
| (+) Land Homesite Value: | + | $120,760 | |
| (+) Land Non-Homesite Value: | + | $0 | |
| (+) Curr Use (HS): | + | $0 | $0 |
| (+) Curr Use (NHS): | + | $0 | $0 |
| | | -------------------------- | |
| (=) Market Value: | = | $213,530 | |
| (–) Productivity Loss: | – | $0 | |
| | | -------------------------- | |
| (=) Subtotal: | = | $213,530 | |
| (+) Senior Appraised Value: | + | $144,800 | |
| (+) Non-Senior Appraised Value: | + | $0 | |
| | | -------------------------- | |
| (=) Total Appraised Value: | = | $144,800 | |
| (–) Senior Exemption Loss: | – | $86,880 | |
| (–) Exemption Loss: | – | $0 | |
| | | -------------------------- | |
| (=) Taxable Value: | = | $57,920 | |
Taxing Jurisdiction
| Owner: | HAMMON JACK D & JANICE E | | |
| % Ownership: | 100.0000000000% | | |
| Total Value: | $213,530 | | |
| Tax Area: | 311 - 250-4 |
| CERFD | CURRENT EXPENSE REFUND 010 | 0.0000000000 | $213,530 | $57,920 | $0.00 | | |
| CURREXP | CURRENT EXPENSE 010 | 1.0175366760 | $213,530 | $57,920 | $58.94 | | |
| HUMNSERV | HUMAN SERVICES 119 | 0.0250000000 | $213,530 | $57,920 | $1.45 | | |
| SLDREL | SOLDIERS RELIEF 121 | 0.0155990005 | $213,530 | $57,920 | $0.90 | | |
| EMERGSER | EMS 147 | 0.3792580840 | $213,530 | $57,920 | $21.97 | | |
| EMSRFD | EMS REFUND 147 | 0.0000000000 | $213,530 | $57,920 | $0.00 | | |
| FD4EXP | FD #4 EXPENSE 686 | 0.8836993059 | $213,530 | $57,920 | $51.18 | | |
| RLBRFD | RURAL LIBRARY REFUND 623 | 0.0000000000 | $213,530 | $57,920 | $0.00 | | |
| RURALLIB | RURAL LIBRARY 623 | 0.3710609029 | $213,530 | $57,920 | $21.49 | | |
| PORTRFD | PORT REFUND 640 | 0.0000000000 | $213,530 | $57,920 | $0.00 | | |
| PORTWWGEN | PORT OF WW 640 | 0.2460186015 | $213,530 | $57,920 | $14.25 | | |
| SD250BOND | SD #250 BOND 773 | 0.0000000000 | $213,530 | $0 | $0.00 | | |
| SD250GEN | SD #250 GENERAL 770 | 0.0000000000 | $213,530 | $0 | $0.00 | | |
| ST2 | STATE SCHOOL PART 2 600 | 0.0000000000 | $213,530 | $0 | $0.00 | | |
| STATESCHL | STATE SCHOOL 600 | 1.5158548041 | $213,530 | $57,920 | $87.80 | | |
| STREFUND | STATE REFUND LEVY 603 | 0.0000000000 | $213,530 | $57,920 | $0.00 | | |
| COROAD | COUNTY ROAD 115 | 1.6549953990 | $213,530 | $57,920 | $95.86 | | |
| CRPRD | COUNTY ROAD REFUND 115 | 0.0000000000 | $213,530 | $57,920 | $0.00 | | |
| | Total Tax Rate: | 6.1090227739 | | | | | |
| | | | | Taxes w/Current Exemptions: | $353.84 | | |
| | | | | Taxes w/o Exemptions: | $2,298.92 | | |
Improvement / Building
| Improvement #1: | RESIDENTIAL | State Code: | 11 | 1152.0 sqft | Value: | $92,770 |
| Exterior Wall: | PLYWOOD | Heating/Cooling: | BASEBOARD ELECTRIC | | Number of Bathrooms: | 2 | Number of Bedrooms: | 3 | | Plumbing: | 9 | Roof Covering: | COMP SHINGLE |
|
| | Type | Description | Class CD | Sub Class CD | Year Built | Area |
| | MA | Main Area | 1 | 25 | 1979 | 1152.0 |
| | SI1 | SITE IMPROVEMENT | 1 | 25 | 1979 | 1.0 |
| | ATG | Attached Garage | 1 | 25 | 1979 | 336.0 |
| | GIF | GARAGE INTERIOR FINISH | 1 | 25 | 1979 | 336.0 |
| | POL2 | POLE BUILDING-CONCRETE | 1 | 25 | 1979 | 720.0 |
Sketch
Property Image
Land
| 1 | RES 1 | Converted: Residential | 1.0300 | 0.00 | 0.00 | 0.00 | 1.00 | $120,760 | $0 |
Roll Value History
| 2026 | N/A | N/A | N/A | N/A | N/A |
| 2025 | $92,770 | $120,760 | $0 | $213,530 | $57,920 |
| 2024 | $92,770 | $120,760 | $0 | $213,530 | $57,920 |
| 2023 | $92,770 | $120,760 | $0 | $213,530 | $57,920 |
| 2022 | $88,350 | $120,760 | $0 | $209,110 | $57,920 |
| 2021 | $55,220 | $120,760 | $0 | $175,980 | $57,920 |
| 2020 | $76,560 | $75,200 | $0 | $151,760 | $57,920 |
| 2019 | $76,560 | $75,200 | $0 | $151,760 | $57,920 |
| 2018 | $69,600 | $75,200 | $0 | $144,800 | $57,920 |
| 2017 | $69,600 | $75,200 | $0 | $144,800 | $57,920 |
| 2016 | $28,900 | $75,200 | $0 | $104,100 | $104,100 |
| 2015 | $28,900 | $75,200 | $0 | $104,100 | $104,100 |
| 2014 | $34,000 | $75,200 | $0 | $109,200 | $109,200 |
| 2013 | $85,700 | $75,200 | $0 | $160,900 | $160,900 |
| 2012 | $85,700 | $75,200 | $0 | $0 | $0 |
| 2011 | $85,700 | $75,200 | $0 | $0 | $0 |
| 2010 | $85,700 | $75,200 | $0 | $0 | $0 |
| 2009 | $125,200 | $45,100 | $0 | $0 | $0 |
| 2008 | $68,400 | $45,100 | $0 | $0 | $0 |
| 2007 | $68,400 | $45,100 | $0 | $0 | $0 |
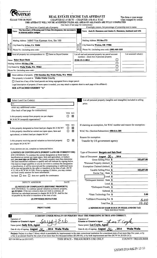
Deed and Sales History
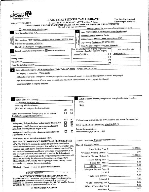
| 1 | 08/26/2014 | BARGAIN & | BARGAIN & SALE DEED | SECRETARY OF HOUSING & URBAN DEVELOPMENT | HAMMON JACK D & JANICE E | | | $103,657.00 | 126549 | 2014-06361 |
| 2 | 02/24/2014 | SWD | STATUTORY WARRANTY DEED | BANK OF AMERICA NA | SECRETARY OF HOUSING & URBAN DEVELOPMENT | | | $72,570.00 | 125463 | 2014-01282 |
| 3 | 09/19/2013 | WARRANTY D | WARRANTY DEED | NORTHWEST TRUSTEE SERVICES INC | BANK OF AMERICA NA | | | $93,450.00 | 124682 | 2013-09611 |
| 4 | 07/16/1996 | WARRANTY D | WARRANTY DEED | | | | | $87,000.00 | 86508 | 2429-607109 |
Payout Agreement
| No payout information available.. |