Property
Account |
| Property ID: | 32775 | Abbreviated Legal Description: | FRANKLAND ADDN REPLAT LT 11 |
| Parcel Number: | 360716640011 | Agent Code: | |
| Type: | Real | | |
| Tax Area: | 5 - OL-140 | Land Use Code | 11 |
| Open Space: | N | DFL | N |
| Historic Property: | N | Remodel Property: | N |
| Multi-Family Redevelopment: | N | | |
| Township: | 7 | Section: | 16 |
| Range: | 36 |
Location |
| Address: | 809 CLARK CT WA 99362 | Mapsco: | |
| Neighborhood: | A-SFR | Map ID: | |
| Neighborhood CD: | 513011 |
Owner |
| Name: | BARRERAS JOSE ARTURO | Owner ID: | 61027 |
| Mailing Address: | 809 CLARK CT WALLA WALLA, WA 99362 | % Ownership: | 100.0000000000% |
| | | Exemptions: | |
Taxes and Assessment Details
Values
| (+) Improvement Homesite Value: | + | $0 | |
| (+) Improvement Non-Homesite Value: | + | $263,180 | |
| (+) Land Homesite Value: | + | $0 | |
| (+) Land Non-Homesite Value: | + | $49,260 | |
| (+) Curr Use (HS): | + | $0 | $0 |
| (+) Curr Use (NHS): | + | $0 | $0 |
| | | -------------------------- | |
| (=) Market Value: | = | $312,440 | |
| (–) Productivity Loss: | – | $0 | |
| | | -------------------------- | |
| (=) Subtotal: | = | $312,440 | |
| (+) Senior Appraised Value: | + | $0 | |
| (+) Non-Senior Appraised Value: | + | $312,440 | |
| | | -------------------------- | |
| (=) Total Appraised Value: | = | $312,440 | |
| (–) Senior Exemption Loss: | – | $0 | |
| (–) Exemption Loss: | – | $0 | |
| | | -------------------------- | |
| (=) Taxable Value: | = | $312,440 | |
Taxing Jurisdiction
| Owner: | BARRERAS JOSE ARTURO | | |
| % Ownership: | 100.0000000000% | | |
| Total Value: | $312,440 | | |
| Tax Area: | 5 - OL-140 |
| CERFD | CURRENT EXPENSE REFUND 010 | 0.0000000000 | $312,440 | $312,440 | $0.00 | | |
| CURREXP | CURRENT EXPENSE 010 | 1.0175366760 | $312,440 | $312,440 | $317.92 | | |
| HUMNSERV | HUMAN SERVICES 119 | 0.0250000000 | $312,440 | $312,440 | $7.81 | | |
| SLDREL | SOLDIERS RELIEF 121 | 0.0155990005 | $312,440 | $312,440 | $4.87 | | |
| EMERGSER | EMS 147 | 0.3792580840 | $312,440 | $312,440 | $118.50 | | |
| EMSRFD | EMS REFUND 147 | 0.0000000000 | $312,440 | $312,440 | $0.00 | | |
| PORTRFD | PORT REFUND 640 | 0.0000000000 | $312,440 | $312,440 | $0.00 | | |
| PORTWWGEN | PORT OF WW 640 | 0.2460186015 | $312,440 | $312,440 | $76.87 | | |
| SD140BOND | SD #140 BOND 764 | 0.8342371393 | $312,440 | $312,440 | $260.65 | | |
| SD140GEN | SD #140 GENERAL 760 | 2.0646500647 | $312,440 | $312,440 | $645.08 | | |
| ST2 | STATE SCHOOL PART 2 600 | 0.8131451643 | $312,440 | $312,440 | $254.06 | | |
| STATESCHL | STATE SCHOOL 600 | 1.5158548041 | $312,440 | $312,440 | $473.61 | | |
| STREFUND | STATE REFUND LEVY 603 | 0.0000000000 | $312,440 | $312,440 | $0.00 | | |
| CWWBOND | C OF WW BOND 643 | 0.2760494372 | $312,440 | $312,440 | $86.25 | | |
| CWWGEN | CITY OF WW 631 | 1.6100204973 | $312,440 | $312,440 | $503.03 | | |
| CWWRFD | CITY OF WALLA WALLA REFUND 631 | 0.0000000000 | $312,440 | $312,440 | $0.00 | | |
| | Total Tax Rate: | 8.7973694689 | | | | | |
| | | | | Taxes w/Current Exemptions: | $2,748.65 | | |
| | | | | Taxes w/o Exemptions: | $2,748.65 | | |
Improvement / Building
| Improvement #1: | RESIDENTIAL | State Code: | 11 | 1360.0 sqft | Value: | $263,180 |
| Exterior Wall: | HARDBOARD | Heating/Cooling: | WARM & COOLED AIR | | Number of Bathrooms: | 2 | Number of Bedrooms: | 3 | | Plumbing: | 12 | Roof Covering: | COMP SHINGLE |
|
| | Type | Description | Class CD | Sub Class CD | Year Built | Area |
| | MA | Main Area | 1 | 30 | 2011 | 1360.0 |
| | RPC | OPEN PORCH W/ROOF , CEILED | 1 | 30 | 0 | 28.0 |
| | SI1 | SITE IMPROVEMENT | 1 | 30 | 0 | 1.5 |
| | ATG | Attached Garage | 1 | 30 | 2011 | 400.0 |
Sketch
Property Image
Land
| 1 | RES 1 | Converted: Residential | 0.1809 | 7881.00 | 0.00 | 0.00 | 1.00 | $49,260 | $0 |
Roll Value History
| 2026 | N/A | N/A | N/A | N/A | N/A |
| 2025 | $271,780 | $78,810 | $0 | $350,590 | $350,590 |
| 2024 | $236,330 | $78,810 | $0 | $315,140 | $315,140 |
| 2023 | $263,180 | $49,260 | $0 | $312,440 | $312,440 |
| 2022 | $250,640 | $49,260 | $0 | $299,900 | $299,900 |
| 2021 | $217,950 | $49,260 | $0 | $267,210 | $267,210 |
| 2020 | $145,300 | $49,260 | $0 | $194,560 | $194,560 |
| 2019 | $145,300 | $49,260 | $0 | $194,560 | $194,560 |
| 2018 | $145,300 | $49,260 | $0 | $194,560 | $194,560 |
| 2017 | $149,170 | $31,500 | $0 | $180,670 | $180,670 |
| 2016 | $142,070 | $31,500 | $0 | $173,570 | $173,570 |
| 2015 | $142,070 | $31,500 | $0 | $173,570 | $173,570 |
| 2014 | $135,300 | $31,500 | $0 | $166,800 | $166,800 |
| 2013 | $135,300 | $31,500 | $0 | $166,800 | $166,800 |
| 2012 | $0 | $31,500 | $0 | $0 | $0 |
| 2011 | $0 | $31,500 | $0 | $0 | $0 |
| 2010 | $0 | $31,500 | $0 | $0 | $0 |
| 2009 | $0 | $31,500 | $0 | $0 | $0 |
| 2008 | $0 | $31,500 | $0 | $0 | $0 |
| 2007 | $0 | $31,500 | $0 | $0 | $0 |
Deed and Sales History
| 1 | 05/17/2017 | QCD | QUIT CLAIM DEED | BARRERASMIRANDA JOSE ARTURO | BARRERAS JOSE ARTURO | | | $0.00 | 132538 | 2017-04274 |
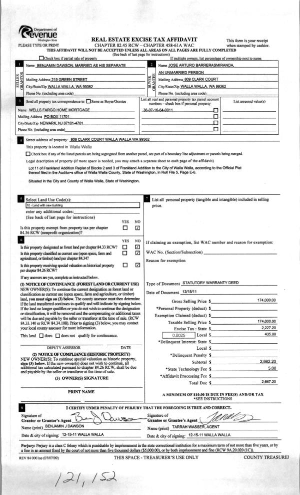
| 2 | 12/22/2011 | WARRANTY D | WARRANTY DEED | DAWSON, BENJAMIN J | BARRERASMIRANDA, JOSE ARTURO | | | $174,000.00 | 121152 | 2011-10070 |
| 3 | 06/27/2011 | WARRANTY D | WARRANTY DEED | HEISER, CASPER S TRUST | DAWSON, BENJAMIN J | | | $23,750.00 | 120312 | 2011-04957 |
| 4 | 10/30/2009 | WARRANTY D | WARRANTY DEED | HEISER, CASPER ESTATE OF | HEISER, CASPER S TRUST | | | | 117609 | 2009-10791 |
| 5 | 06/22/2009 | WARRANTY D | WARRANTY DEED | MARINELLA, G SCOTT AGENT | HEISER, CASPER ESTATE OF | | | | 116904 | 2009-06292 |
| 6 | 05/19/2009 | WARRANTY D | WARRANTY DEED | JOHNSON, DALE & EDIE | DAWSON, BRENT | | | $5,200.00 | 116756 | 2009-04994 |
| 7 | 07/12/2004 | QCD | QUIT CLAIM DEED | MOUNTAIN SPRINGS DEVELOPMENT C | JOHNSON, DALE & EDIE | | | | 105229 | 2004-07820 |
| 8 | 11/20/2002 | WARRANTY D | WARRANTY DEED | MTN SPRINGS DEVELOPMENT CO | JOHNSON, DALE & EDIE | | | | 100855 | 0000-0 |
Payout Agreement
| No payout information available.. |