Property
Account |
| Property ID: | 32762 | Abbreviated Legal Description: | 31-7-37 TAX 10B, TAX 10C, TAX 10A LESS SLY PTN ALL WITHINSE1/4NE1/4 |
| Parcel Number: | 370731140020 | Agent Code: | |
| Type: | Real | | |
| Tax Area: | 101 - 140-4 | Land Use Code | 11 |
| Open Space: | N | DFL | N |
| Historic Property: | N | Remodel Property: | N |
| Multi-Family Redevelopment: | N | | |
| Township: | 7 | Section: | 31 |
| Range: | 37 |
Location |
| Address: | 38 FOSTER RD WA 99362 | Mapsco: | |
| Neighborhood: | VG Res Rural/City Inf | Map ID: | |
| Neighborhood CD: | 415012 |
Owner |
| Name: | RICHMOND ROBERT ALLEN | Owner ID: | 70109 |
| Mailing Address: | 38 FOSTER RD WALLA WALLA, WA 99362 | % Ownership: | 100.0000000000% |
| | | Exemptions: | |
Taxes and Assessment Details
Property Tax Information as of
02/21/2026
Click on "Statement Details" to expand or collapse a tax statement.
* Please enter a valid date ** Please enter a valid date *
Statement Details |
| | TOTAL: | $0.00 | $0.00 | $0.00 | $0.00 | $0.00 | $0.00 |
|
| | $0.00 | $0.00 | $0.00 | $0.00 | $0.00 | $0.00 |
Values
| (+) Improvement Homesite Value: | + | $288,800 | |
| (+) Improvement Non-Homesite Value: | + | $0 | |
| (+) Land Homesite Value: | + | $195,990 | |
| (+) Land Non-Homesite Value: | + | $0 | |
| (+) Curr Use (HS): | + | $0 | $0 |
| (+) Curr Use (NHS): | + | $0 | $0 |
| | | -------------------------- | |
| (=) Market Value: | = | $484,790 | |
| (–) Productivity Loss: | – | $0 | |
| | | -------------------------- | |
| (=) Subtotal: | = | $484,790 | |
| (+) Senior Appraised Value: | + | $0 | |
| (+) Non-Senior Appraised Value: | + | $484,790 | |
| | | -------------------------- | |
| (=) Total Appraised Value: | = | $484,790 | |
| (–) Senior Exemption Loss: | – | $0 | |
| (–) Exemption Loss: | – | $0 | |
| | | -------------------------- | |
| (=) Taxable Value: | = | $484,790 | |
Taxing Jurisdiction
| Owner: | RICHMOND ROBERT ALLEN | | |
| % Ownership: | 100.0000000000% | | |
| Total Value: | $484,790 | | |
| Tax Area: | 101 - 140-4 |
| CERFD | CURRENT EXPENSE REFUND 010 | 0.0000000000 | $484,790 | $484,790 | $0.00 | | |
| CURREXP | CURRENT EXPENSE 010 | 1.0175366760 | $484,790 | $484,790 | $493.29 | | |
| HUMNSERV | HUMAN SERVICES 119 | 0.0250000000 | $484,790 | $484,790 | $12.12 | | |
| SLDREL | SOLDIERS RELIEF 121 | 0.0155990005 | $484,790 | $484,790 | $7.56 | | |
| EMERGSER | EMS 147 | 0.3792580840 | $484,790 | $484,790 | $183.86 | | |
| EMSRFD | EMS REFUND 147 | 0.0000000000 | $484,790 | $484,790 | $0.00 | | |
| FD4EXP | FD #4 EXPENSE 686 | 0.8836993059 | $484,790 | $484,790 | $428.41 | | |
| RLBRFD | RURAL LIBRARY REFUND 623 | 0.0000000000 | $484,790 | $484,790 | $0.00 | | |
| RURALLIB | RURAL LIBRARY 623 | 0.3710609029 | $484,790 | $484,790 | $179.89 | | |
| PORTRFD | PORT REFUND 640 | 0.0000000000 | $484,790 | $484,790 | $0.00 | | |
| PORTWWGEN | PORT OF WW 640 | 0.2460186015 | $484,790 | $484,790 | $119.27 | | |
| SD140BOND | SD #140 BOND 764 | 0.8342371393 | $484,790 | $484,790 | $404.43 | | |
| SD140GEN | SD #140 GENERAL 760 | 2.0646500647 | $484,790 | $484,790 | $1,000.92 | | |
| ST2 | STATE SCHOOL PART 2 600 | 0.8131451643 | $484,790 | $484,790 | $394.20 | | |
| STATESCHL | STATE SCHOOL 600 | 1.5158548041 | $484,790 | $484,790 | $734.87 | | |
| STREFUND | STATE REFUND LEVY 603 | 0.0000000000 | $484,790 | $484,790 | $0.00 | | |
| COROAD | COUNTY ROAD 115 | 1.6549953990 | $484,790 | $484,790 | $802.33 | | |
| CRPRD | COUNTY ROAD REFUND 115 | 0.0000000000 | $484,790 | $484,790 | $0.00 | | |
| | Total Tax Rate: | 9.8210551422 | | | | | |
| | | | | Taxes w/Current Exemptions: | $4,761.15 | | |
| | | | | Taxes w/o Exemptions: | $4,761.15 | | |
Improvement / Building
| Improvement #1: | RESIDENTIAL | State Code: | 11 | 2004.0 sqft | Value: | $288,800 |
| Exterior Wall: | PLYWOOD | Heating/Cooling: | HEAT PUMP | | Number of Bathrooms: | 1.5 | Number of Bedrooms: | 2 | | Plumbing: | 8 | Roof Covering: | COMP SHINGLE |
|
| | Type | Description | Class CD | Sub Class CD | Year Built | Area |
| | MA | Main Area | 1 | 30 | 1973 | 2004.0 |
| | SI1 | SITE IMPROVEMENT | 1 | 30 | 1973 | 2.0 |
| | ATG | Attached Garage | 1 | 30 | 1973 | 680.0 |
| | SHOP | SHOP BUILDING | 1 | 30 | 1973 | 672.0 |
| | RPC | OPEN PORCH W/ROOF , CEILED | 1 | 30 | 2020 | 352.0 |
| | S1F | Single One Story Fireplace | 1 | 30 | 1973 | 1.0 |
Sketch
Property Image
Land
| 1 | RES 1 | Converted: Residential | 3.7300 | 0.00 | 0.00 | 0.00 | 1.00 | $195,990 | $0 |
Roll Value History
| 2026 | N/A | N/A | N/A | N/A | N/A |
| 2025 | $332,120 | $195,990 | $0 | $528,110 | $528,110 |
| 2024 | $288,800 | $195,990 | $0 | $484,790 | $484,790 |
| 2023 | $288,800 | $195,990 | $0 | $484,790 | $484,790 |
| 2022 | $339,760 | $111,800 | $0 | $451,560 | $451,560 |
| 2021 | $169,880 | $111,800 | $0 | $281,680 | $281,680 |
| 2020 | $169,880 | $111,800 | $0 | $281,680 | $281,680 |
| 2019 | $97,020 | $111,800 | $0 | $208,820 | $208,820 |
| 2018 | $92,400 | $111,800 | $0 | $204,200 | $204,200 |
| 2017 | $92,400 | $111,800 | $0 | $204,200 | $204,200 |
| 2016 | $92,400 | $111,800 | $0 | $204,200 | $53,120 |
| 2015 | $92,400 | $111,800 | $0 | $204,200 | $53,120 |
| 2014 | $88,000 | $111,800 | $0 | $199,800 | $53,120 |
| 2013 | $88,000 | $111,800 | $0 | $199,800 | $53,120 |
| 2012 | $88,000 | $111,800 | $0 | $0 | $0 |
| 2011 | $43,700 | $141,800 | $0 | $0 | $0 |
| 2010 | $43,700 | $141,800 | $0 | $0 | $0 |
| 2009 | $53,500 | $141,800 | $0 | $0 | $0 |
| 2008 | $88,500 | $106,800 | $0 | $0 | $0 |
| 2007 | $63,000 | $44,000 | $0 | $0 | $0 |
Deed and Sales History
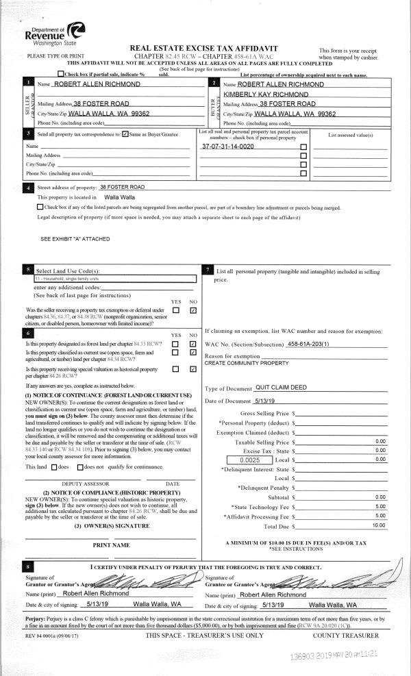
| 1 | 08/19/2021 | QCD | QUIT CLAIM DEED | RICHMOND ROBERT ALLEN & KIMBERLY KAY | RICHMOND ROBERT ALLEN | | | $0.00 | 142321 | 2021-10125 |
| 2 | 05/13/2019 | QCD | QUIT CLAIM DEED | RICHMOND ROBERT ALLEN | RICHMOND ROBERT ALLEN & KIMBERLY KAY | | | $0.00 | 136903 | 2019-03340 |
| 3 | 05/09/2019 | LOPA | LACK OF PROBATE AFFIDAVIT | WRIGHT REBECCA FRANCIS ESTATE | | | | | 0 | 2019-03074 |
| 4 | 01/17/2017 | DEED DEATH | DEED DEATH | WRIGHT FRANCES REBECCA | RICHMOND ROBERT ALLEN | | | $0.00 | 131772 | 2017-00378 |
| 5 | 10/03/2016 | DEED DEATH | DEED DEATH | WRIGHT FRANCES REBECCA | RICHMOND ROBERT ALLEN | | | | 131772 | 2016-08149 |
Payout Agreement
| No payout information available.. |