Property
Account |
| Property ID: | 32654 | Abbreviated Legal Description: | MELODY PARK TERRACE TAX 23 LOT 36 |
| Parcel Number: | 360716540125 | Agent Code: | |
| Type: | Real | | |
| Tax Area: | 5 - OL-140 | Land Use Code | 11 |
| Open Space: | N | DFL | N |
| Historic Property: | N | Remodel Property: | N |
| Multi-Family Redevelopment: | N | | |
| Township: | 7 | Section: | 16 |
| Range: | 36 |
Location |
| Address: | 2038 CRAWFORD DR WA 99362 | Mapsco: | |
| Neighborhood: | A-SFR | Map ID: | |
| Neighborhood CD: | 313011 |
Owner |
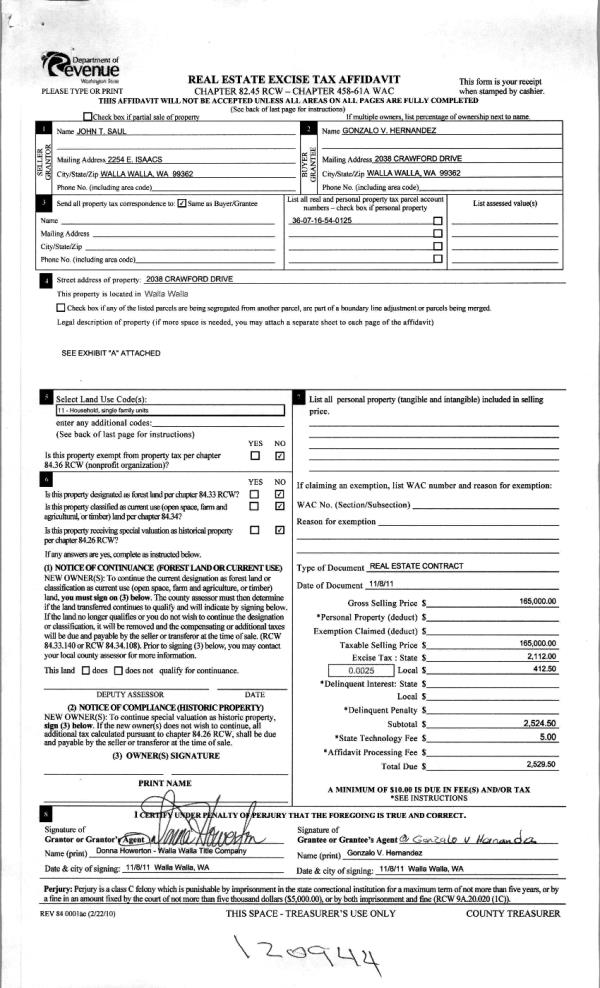
| Name: | SAUL JOHN T | Owner ID: | 9633 |
| Mailing Address: | 2254 ISAACS AVE WALLA WALLA, WA 99362 | % Ownership: | 100.0000000000% |
| | | Exemptions: | |
Taxes and Assessment Details
Values
| (+) Improvement Homesite Value: | + | $0 | |
| (+) Improvement Non-Homesite Value: | + | $225,960 | |
| (+) Land Homesite Value: | + | $0 | |
| (+) Land Non-Homesite Value: | + | $90,000 | |
| (+) Curr Use (HS): | + | $0 | $0 |
| (+) Curr Use (NHS): | + | $0 | $0 |
| | | -------------------------- | |
| (=) Market Value: | = | $315,960 | |
| (–) Productivity Loss: | – | $0 | |
| | | -------------------------- | |
| (=) Subtotal: | = | $315,960 | |
| (+) Senior Appraised Value: | + | $0 | |
| (+) Non-Senior Appraised Value: | + | $315,960 | |
| | | -------------------------- | |
| (=) Total Appraised Value: | = | $315,960 | |
| (–) Senior Exemption Loss: | – | $0 | |
| (–) Exemption Loss: | – | $0 | |
| | | -------------------------- | |
| (=) Taxable Value: | = | $315,960 | |
Taxing Jurisdiction
| Owner: | SAUL JOHN T | | |
| % Ownership: | 100.0000000000% | | |
| Total Value: | $315,960 | | |
| Tax Area: | 5 - OL-140 |
| CERFD | CURRENT EXPENSE REFUND 010 | 0.0000000000 | $315,960 | $315,960 | $0.00 | | |
| CURREXP | CURRENT EXPENSE 010 | 1.0175366760 | $315,960 | $315,960 | $321.50 | | |
| HUMNSERV | HUMAN SERVICES 119 | 0.0250000000 | $315,960 | $315,960 | $7.90 | | |
| SLDREL | SOLDIERS RELIEF 121 | 0.0155990005 | $315,960 | $315,960 | $4.93 | | |
| EMERGSER | EMS 147 | 0.3792580840 | $315,960 | $315,960 | $119.83 | | |
| EMSRFD | EMS REFUND 147 | 0.0000000000 | $315,960 | $315,960 | $0.00 | | |
| PORTRFD | PORT REFUND 640 | 0.0000000000 | $315,960 | $315,960 | $0.00 | | |
| PORTWWGEN | PORT OF WW 640 | 0.2460186015 | $315,960 | $315,960 | $77.73 | | |
| SD140BOND | SD #140 BOND 764 | 0.8342371393 | $315,960 | $315,960 | $263.59 | | |
| SD140GEN | SD #140 GENERAL 760 | 2.0646500647 | $315,960 | $315,960 | $652.35 | | |
| ST2 | STATE SCHOOL PART 2 600 | 0.8131451643 | $315,960 | $315,960 | $256.92 | | |
| STATESCHL | STATE SCHOOL 600 | 1.5158548041 | $315,960 | $315,960 | $478.95 | | |
| STREFUND | STATE REFUND LEVY 603 | 0.0000000000 | $315,960 | $315,960 | $0.00 | | |
| CWWBOND | C OF WW BOND 643 | 0.2760494372 | $315,960 | $315,960 | $87.22 | | |
| CWWGEN | CITY OF WW 631 | 1.6100204973 | $315,960 | $315,960 | $508.70 | | |
| CWWRFD | CITY OF WALLA WALLA REFUND 631 | 0.0000000000 | $315,960 | $315,960 | $0.00 | | |
| | Total Tax Rate: | 8.7973694689 | | | | | |
| | | | | Taxes w/Current Exemptions: | $2,779.62 | | |
| | | | | Taxes w/o Exemptions: | $2,779.62 | | |
Improvement / Building
| Improvement #1: | RESIDENTIAL | State Code: | 11 | 1000.0 sqft | Value: | $225,960 |
| Exterior Wall: | SIDING | Heating/Cooling: | HEAT PUMP | | Number of Bathrooms: | 2 | Number of Bedrooms: | 3 | | Plumbing: | 9 | Roof Covering: | COMP SHINGLE |
|
| | Type | Description | Class CD | Sub Class CD | Year Built | Area |
| | MA | Main Area | 1 | 30 | 1965 | 1000.0 |
| | SI1 | SITE IMPROVEMENT | 1 | 30 | 1965 | 1.5 |
| | BASE | BASEMENT | 1 | 30 | 1965 | 1000.0 |
| | BPF | BASEMENT -PARTITIONED FINISH | 1 | 30 | 1965 | 850.0 |
| | S1F | Single One Story Fireplace | 1 | 30 | 1965 | 1.0 |
| | RPC | OPEN PORCH W/ROOF , CEILED | 1 | 30 | 1965 | 88.0 |
Sketch
Property Image
Land
| 1 | RES 1 | Converted: Residential | 0.1584 | 6900.00 | 0.00 | 0.00 | 1.00 | $90,000 | $0 |
Roll Value History
| 2026 | N/A | N/A | N/A | N/A | N/A |
| 2025 | $225,960 | $90,000 | $0 | $315,960 | $315,960 |
| 2024 | $225,960 | $90,000 | $0 | $315,960 | $315,960 |
| 2023 | $225,960 | $90,000 | $0 | $315,960 | $315,960 |
| 2022 | $225,960 | $90,000 | $0 | $315,960 | $315,960 |
| 2021 | $182,460 | $55,000 | $0 | $237,460 | $237,460 |
| 2020 | $140,350 | $55,000 | $0 | $195,350 | $195,350 |
| 2019 | $140,350 | $55,000 | $0 | $195,350 | $195,350 |
| 2018 | $127,590 | $55,000 | $0 | $182,590 | $182,590 |
| 2017 | $121,520 | $55,000 | $0 | $176,520 | $176,520 |
| 2016 | $110,470 | $55,000 | $0 | $165,470 | $165,470 |
| 2015 | $103,700 | $55,000 | $0 | $158,700 | $158,700 |
| 2014 | $103,700 | $55,000 | $0 | $158,700 | $158,700 |
| 2013 | $103,700 | $55,000 | $0 | $158,700 | $158,700 |
| 2012 | $103,700 | $55,000 | $0 | $0 | $0 |
| 2011 | $103,700 | $55,000 | $0 | $0 | $0 |
| 2010 | $111,000 | $40,000 | $0 | $0 | $0 |
| 2009 | $127,800 | $40,000 | $0 | $0 | $0 |
| 2008 | $94,200 | $40,000 | $0 | $0 | $0 |
| 2007 | $94,200 | $40,000 | $0 | $0 | $0 |
Deed and Sales History
| 1 | 09/19/2017 | DECF | DECLARATION OF FOREFEITURE | HERNANDEZ GONZALO V | SAUL JOHN T | | | $0.00 | 133255 | 2017-07407 |
| 2 | 11/08/2011 | WARRANTY D | WARRANTY DEED | WALDEN, SHARON L ESTATE OF | SAUL, JOHN T | | | $145,000.00 | 120943 | 2011-08800 |
| 3 | 11/08/2011 | WARRANTY D | WARRANTY DEED | SAUL, JOHN T | HERNANDEZ, GONZALO V | | | $165,000.00 | 120944 | 2011-08801 |
| 4 | 12/16/2005 | WARRANTY D | WARRANTY DEED | WALDEN, DARRELL ESTATE OF | WALDEN, SHARON L | | | | 109255 | 2005-15727 |
| 5 | 07/26/1979 | WARRANTY D | WARRANTY DEED | | | | | $52,500.00 | 0 | 1087-906942 |
Payout Agreement
| No payout information available.. |