Property
Account |
| Property ID: | 32633 | Abbreviated Legal Description: | WESTDALE FIRST LOT 6 BLK 4 |
| Parcel Number: | 360730560406 | Agent Code: | |
| Type: | Real | | |
| Tax Area: | 1 - OL-140-F | Land Use Code | 11 |
| Open Space: | N | DFL | N |
| Historic Property: | N | Remodel Property: | N |
| Multi-Family Redevelopment: | N | | |
| Township: | 7 | Section: | 30 |
| Range: | 36 |
Location |
| Address: | 1359 CALLANAN DR WA 99362 | Mapsco: | |
| Neighborhood: | A MH | Map ID: | |
| Neighborhood CD: | 113061 |
Owner |
| Name: | RICHARDS DANIEL & DANA | Owner ID: | 9796 |
| Mailing Address: | 1359 CALLANAN DR WALLA WALLA, WA 99362 | % Ownership: | 100.0000000000% |
| | | Exemptions: | |
Taxes and Assessment Details
Values
| (+) Improvement Homesite Value: | + | $0 | |
| (+) Improvement Non-Homesite Value: | + | $235,950 | |
| (+) Land Homesite Value: | + | $0 | |
| (+) Land Non-Homesite Value: | + | $55,000 | |
| (+) Curr Use (HS): | + | $0 | $0 |
| (+) Curr Use (NHS): | + | $0 | $0 |
| | | -------------------------- | |
| (=) Market Value: | = | $290,950 | |
| (–) Productivity Loss: | – | $0 | |
| | | -------------------------- | |
| (=) Subtotal: | = | $290,950 | |
| (+) Senior Appraised Value: | + | $0 | |
| (+) Non-Senior Appraised Value: | + | $290,950 | |
| | | -------------------------- | |
| (=) Total Appraised Value: | = | $290,950 | |
| (–) Senior Exemption Loss: | – | $0 | |
| (–) Exemption Loss: | – | $0 | |
| | | -------------------------- | |
| (=) Taxable Value: | = | $290,950 | |
Taxing Jurisdiction
| Owner: | RICHARDS DANIEL & DANA | | |
| % Ownership: | 100.0000000000% | | |
| Total Value: | N/A | | |
| Tax Area: | 1 - OL-140-F |
| CERFD | CURRENT EXPENSE REFUND 010 | N/A | N/A | N/A | N/A | | |
| CURREXP | CURRENT EXPENSE 010 | N/A | N/A | N/A | N/A | | |
| HUMNSERV | HUMAN SERVICES 119 | N/A | N/A | N/A | N/A | | |
| SLDREL | SOLDIERS RELIEF 121 | N/A | N/A | N/A | N/A | | |
| EMERGSER | EMS 147 | N/A | N/A | N/A | N/A | | |
| EMSRFD | EMS REFUND 147 | N/A | N/A | N/A | N/A | | |
| PORTRFD | PORT REFUND 640 | N/A | N/A | N/A | N/A | | |
| PORTWWGEN | PORT OF WW 640 | N/A | N/A | N/A | N/A | | |
| SD140BOND | SD #140 BOND 764 | N/A | N/A | N/A | N/A | | |
| SD140GEN | SD #140 GENERAL 760 | N/A | N/A | N/A | N/A | | |
| ST2 | STATE SCHOOL PART 2 600 | N/A | N/A | N/A | N/A | | |
| STATESCHL | STATE SCHOOL 600 | N/A | N/A | N/A | N/A | | |
| STREFUND | STATE REFUND LEVY 603 | N/A | N/A | N/A | N/A | | |
| CWWBOND | C OF WW BOND 643 | N/A | N/A | N/A | N/A | | |
| CWWGEN | CITY OF WW 631 | N/A | N/A | N/A | N/A | | |
| CWWRFD | CITY OF WALLA WALLA REFUND 631 | N/A | N/A | N/A | N/A | | |
| | Total Tax Rate: | N/A | | | | | |
| | | | | Taxes w/Current Exemptions: | N/A | | |
| | | | | Taxes w/o Exemptions: | N/A | | |
Improvement / Building
| Improvement #1: | MANUFACTURED HOME | State Code: | 11 | 1876.0 sqft | Value: | $235,950 |
| Exterior Wall: | PLYWOOD | Heating/Cooling: | WARM & COOLED AIR | | Number of Bathrooms: | 2 | Number of Bedrooms: | 3 | | Plumbing: | 10 | Roof Covering: | COMP SHINGLE |
|
| | Type | Description | Class CD | Sub Class CD | Year Built | Area |
| | MOBHOME | MANUFACTURD HOMES | 1 | 40 | 2005 | 1876.0 |
| | MI1 | MH SET-UP COSTS | 1 | 40 | 0 | 1.0 |
| | WOD | Wood Deck | 1 | 40 | 2005 | 156.0 |
| | DTG | Detached Garage | 1 | 40 | 2005 | 720.0 |
Sketch
Property Image
Land
| 1 | RES 1 | Converted: Residential | 0.1871 | 8152.00 | 0.00 | 0.00 | 1.00 | $55,000 | $0 |
Roll Value History
| 2026 | N/A | N/A | N/A | N/A | N/A |
| 2025 | $235,950 | $55,000 | $0 | $290,950 | $290,950 |
| 2024 | $235,950 | $55,000 | $0 | $290,950 | $290,950 |
| 2023 | $235,950 | $55,000 | $0 | $290,950 | $290,950 |
| 2022 | $205,170 | $55,000 | $0 | $260,170 | $260,170 |
| 2021 | $205,170 | $55,000 | $0 | $260,170 | $260,170 |
| 2020 | $132,370 | $55,000 | $0 | $187,370 | $187,370 |
| 2019 | $141,770 | $45,600 | $0 | $187,370 | $187,370 |
| 2018 | $135,020 | $45,600 | $0 | $180,620 | $180,620 |
| 2017 | $128,590 | $45,600 | $0 | $174,190 | $174,190 |
| 2016 | $116,900 | $45,600 | $0 | $162,500 | $162,500 |
| 2015 | $116,900 | $45,600 | $0 | $162,500 | $162,500 |
| 2014 | $116,900 | $45,600 | $0 | $162,500 | $162,500 |
| 2013 | $116,900 | $45,600 | $0 | $162,500 | $162,500 |
| 2012 | $116,900 | $45,600 | $0 | $0 | $0 |
| 2011 | $116,900 | $45,600 | $0 | $0 | $0 |
| 2010 | $116,900 | $45,600 | $0 | $0 | $0 |
| 2009 | $125,500 | $45,600 | $0 | $0 | $0 |
| 2008 | $96,600 | $13,100 | $0 | $0 | $0 |
| 2007 | $96,600 | $13,100 | $0 | $0 | $0 |
Deed and Sales History
| 1 | 12/27/2017 | SWD | STATUTORY WARRANTY DEED | BASEL TYSON E | RICHARDS DANIEL & DANA | | | $190,000.00 | 133873 | 2017-10432 |
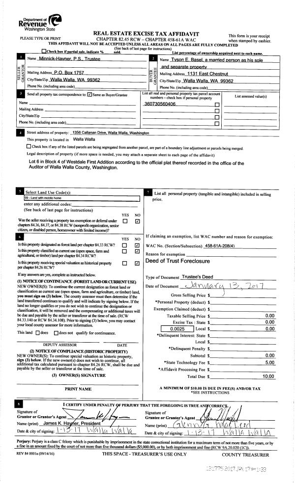
| 2 | 01/13/2017 | TRUSTEES D | TRUSTEE'S DEED | JOSEPH JAMES W & KIM A | BASEL TYSON E | | | $0.00 | 131775 | 2017-00427 |
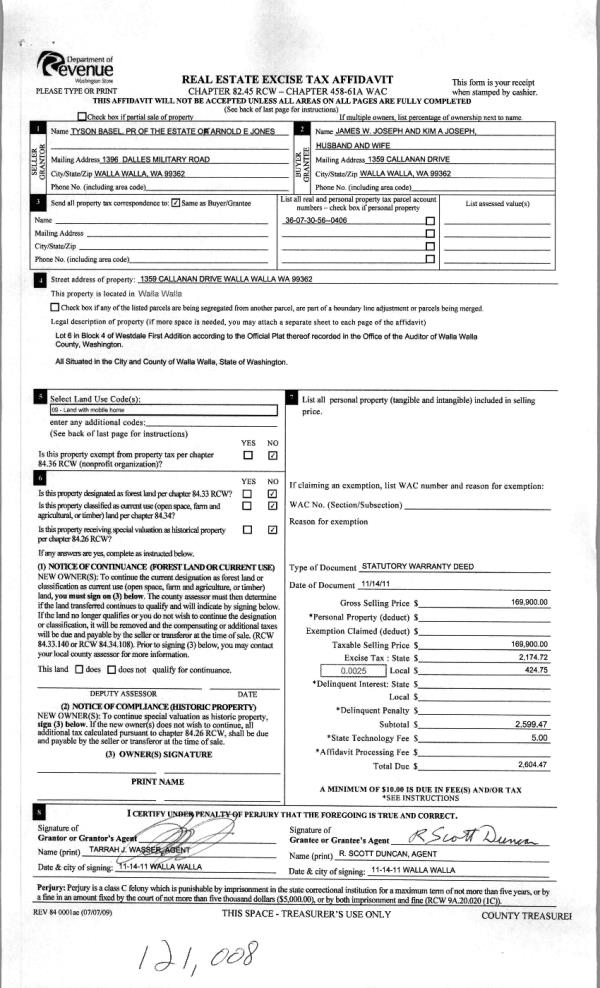
| 3 | 11/16/2011 | WARRANTY D | WARRANTY DEED | JONES, ARNOLD E ESTATE OF | JOSEPH, JAMES W & KIM A | | | $169,900.00 | 121008 | 2011-09019 |
| 4 | 01/01/1963 | WARRANTY D | WARRANTY DEED | | | | | $1,500.00 | 0 | 2990-432679 |
|   | |
Payout Agreement
| No payout information available.. |