Property
Account |
| Property ID: | 32613 | Abbreviated Legal Description: | WHITMAN P.U.D. PHASE IV LOT 11 BLOCK 2 |
| Parcel Number: | 350736480211 | Agent Code: | |
| Type: | Real | | |
| Tax Area: | 75 - CP 250 | Land Use Code | 11 |
| Open Space: | N | DFL | N |
| Historic Property: | N | Remodel Property: | N |
| Multi-Family Redevelopment: | N | | |
| Township: | | Section: | |
| Range: | |
Location |
| Address: | 552 SE MAGNONI DR WA 99324 | Mapsco: | |
| Neighborhood: | G SFR | Map ID: | |
| Neighborhood CD: | 114011 |
Owner |
| Name: | PTUKHINA MARYNA | Owner ID: | 71706 |
| Mailing Address: | STEVEN HUFF JTWROS 552 SE MAGNONI DR COLLEGE PLACE, WA 99324 | % Ownership: | 100.0000000000% |
| | | Exemptions: | |
Taxes and Assessment Details
Property Tax Information as of
02/21/2026
Click on "Statement Details" to expand or collapse a tax statement.
* Please enter a valid date ** Please enter a valid date *
Statement Details |
| | TOTAL: | $0.00 | $0.00 | $0.00 | $0.00 | $0.00 | $0.00 |
|
| | $0.00 | $0.00 | $0.00 | $0.00 | $0.00 | $0.00 |
Values
| (+) Improvement Homesite Value: | + | $0 | |
| (+) Improvement Non-Homesite Value: | + | $307,630 | |
| (+) Land Homesite Value: | + | $0 | |
| (+) Land Non-Homesite Value: | + | $70,000 | |
| (+) Curr Use (HS): | + | $0 | $0 |
| (+) Curr Use (NHS): | + | $0 | $0 |
| | | -------------------------- | |
| (=) Market Value: | = | $377,630 | |
| (–) Productivity Loss: | – | $0 | |
| | | -------------------------- | |
| (=) Subtotal: | = | $377,630 | |
| (+) Senior Appraised Value: | + | $0 | |
| (+) Non-Senior Appraised Value: | + | $377,630 | |
| | | -------------------------- | |
| (=) Total Appraised Value: | = | $377,630 | |
| (–) Senior Exemption Loss: | – | $0 | |
| (–) Exemption Loss: | – | $0 | |
| | | -------------------------- | |
| (=) Taxable Value: | = | $377,630 | |
Taxing Jurisdiction
| Owner: | PTUKHINA MARYNA | | |
| % Ownership: | 100.0000000000% | | |
| Total Value: | $377,630 | | |
| Tax Area: | 75 - CP 250 |
| CERFD | CURRENT EXPENSE REFUND 010 | 0.0000000000 | $377,630 | $377,630 | $0.00 | | |
| CURREXP | CURRENT EXPENSE 010 | 1.0175366760 | $377,630 | $377,630 | $384.25 | | |
| HUMNSERV | HUMAN SERVICES 119 | 0.0250000000 | $377,630 | $377,630 | $9.44 | | |
| SLDREL | SOLDIERS RELIEF 121 | 0.0155990005 | $377,630 | $377,630 | $5.89 | | |
| COLLPLBOND | C OF CP BOND 644 | 0.4374241808 | $377,630 | $377,630 | $165.18 | | |
| COLLPLGEN | CITY OF CP 632 | 1.4453819216 | $377,630 | $377,630 | $545.82 | | |
| EMERGSER | EMS 147 | 0.3792580840 | $377,630 | $377,630 | $143.22 | | |
| EMSRFD | EMS REFUND 147 | 0.0000000000 | $377,630 | $377,630 | $0.00 | | |
| RURALLIB | RURAL LIBRARY 623 | 0.3710609029 | $377,630 | $377,630 | $140.12 | | |
| PORTRFD | PORT REFUND 640 | 0.0000000000 | $377,630 | $377,630 | $0.00 | | |
| PORTWWGEN | PORT OF WW 640 | 0.2460186015 | $377,630 | $377,630 | $92.90 | | |
| SD250BOND | SD #250 BOND 773 | 1.4560608159 | $377,630 | $377,630 | $549.85 | | |
| SD250GEN | SD #250 GENERAL 770 | 2.3880724087 | $377,630 | $377,630 | $901.81 | | |
| ST2 | STATE SCHOOL PART 2 600 | 0.8131451643 | $377,630 | $377,630 | $307.07 | | |
| STATESCHL | STATE SCHOOL 600 | 1.5158548041 | $377,630 | $377,630 | $572.43 | | |
| STREFUND | STATE REFUND LEVY 603 | 0.0000000000 | $377,630 | $377,630 | $0.00 | | |
| | Total Tax Rate: | 10.1104125603 | | | | | |
| | | | | Taxes w/Current Exemptions: | $3,817.98 | | |
| | | | | Taxes w/o Exemptions: | $3,817.98 | | |
Improvement / Building
| Improvement #1: | RESIDENTIAL | State Code: | 11 | 1360.0 sqft | Value: | $307,630 |
| Exterior Wall: | HARDBOARD | Heating/Cooling: | HEAT PUMP | | Number of Bathrooms: | 2 | Number of Bedrooms: | 3 | | Plumbing: | 10 | Roof Covering: | COMP SHINGLE |
|
| | Type | Description | Class CD | Sub Class CD | Year Built | Area |
| | MA | Main Area | 1 | 35 | 2007 | 1360.0 |
| | ATG | Attached Garage | 1 | 35 | 2007 | 460.0 |
| | RPC | OPEN PORCH W/ROOF , CEILED | 1 | 35 | 2007 | 12.0 |
| | SI1 | SITE IMPROVEMENT | 1 | 35 | 2007 | 2.0 |
| | GFP | GAS FIREPLACE | 1 | 35 | 2007 | 1.0 |
Sketch
Property Image
Land
| 1 | RES 1 | Converted: Residential | 0.1203 | 5241.00 | 0.00 | 0.00 | 1.00 | $70,000 | $0 |
Roll Value History
| 2026 | N/A | N/A | N/A | N/A | N/A |
| 2025 | $215,340 | $130,000 | $0 | $345,340 | $345,340 |
| 2024 | $307,630 | $70,000 | $0 | $377,630 | $377,630 |
| 2023 | $307,630 | $70,000 | $0 | $377,630 | $377,630 |
| 2022 | $246,110 | $70,000 | $0 | $316,110 | $316,110 |
| 2021 | $196,880 | $70,000 | $0 | $266,880 | $266,880 |
| 2020 | $164,070 | $70,000 | $0 | $234,070 | $234,070 |
| 2019 | $189,070 | $45,000 | $0 | $234,070 | $234,070 |
| 2018 | $168,810 | $45,000 | $0 | $213,810 | $213,810 |
| 2017 | $146,790 | $45,000 | $0 | $191,790 | $191,790 |
| 2016 | $139,800 | $45,000 | $0 | $184,800 | $184,800 |
| 2015 | $139,800 | $45,000 | $0 | $184,800 | $184,800 |
| 2014 | $139,800 | $45,000 | $0 | $184,800 | $184,800 |
| 2013 | $139,800 | $45,000 | $0 | $184,800 | $184,800 |
| 2012 | $119,800 | $65,000 | $0 | $0 | $0 |
| 2011 | $140,300 | $65,000 | $0 | $0 | $0 |
| 2010 | $140,300 | $65,000 | $0 | $0 | $0 |
| 2009 | $151,100 | $65,000 | $0 | $0 | $0 |
| 2008 | $181,500 | $30,000 | $0 | $0 | $0 |
| 2007 | $0 | $2,400 | $0 | $0 | $0 |
Deed and Sales History
| 1 | 05/23/2022 | SWD | STATUTORY WARRANTY DEED | MILLAN JEREMY | PTUKHINA MARYNA | | | $399,000.00 | 143999 | 2022-04438 |
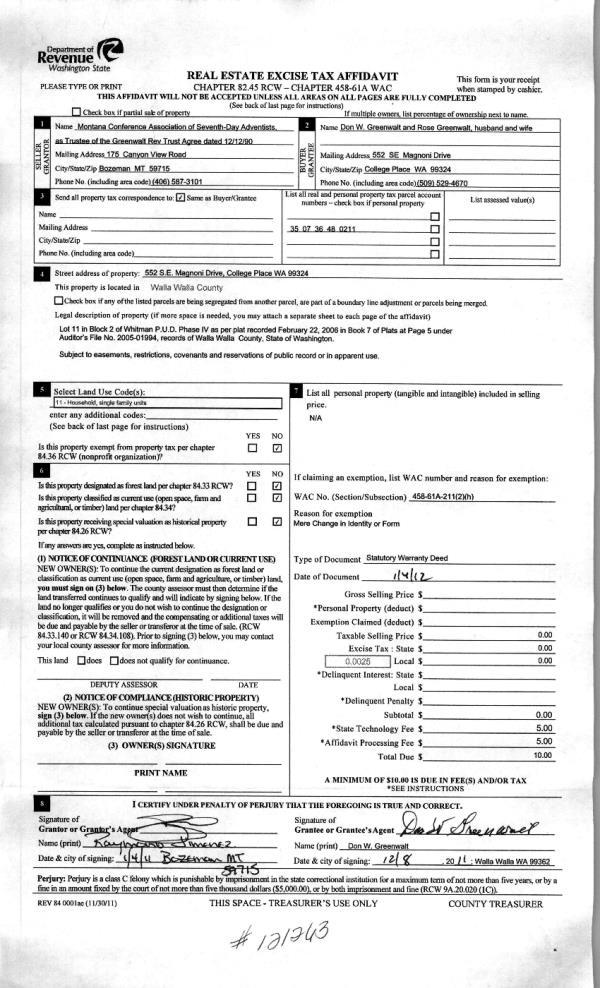
| 2 | 02/03/2020 | SWD | STATUTORY WARRANTY DEED | GREENWALT DON W & ROSE | MILLAN JEREMY | | | $260,000.00 | 138547 | 2020-01036 |
| 3 | 02/03/2020 | DEATH CERT | DEATH CERTIFICATE | GREENWALT ROSE | | | | | 0 | 2020-01035 |
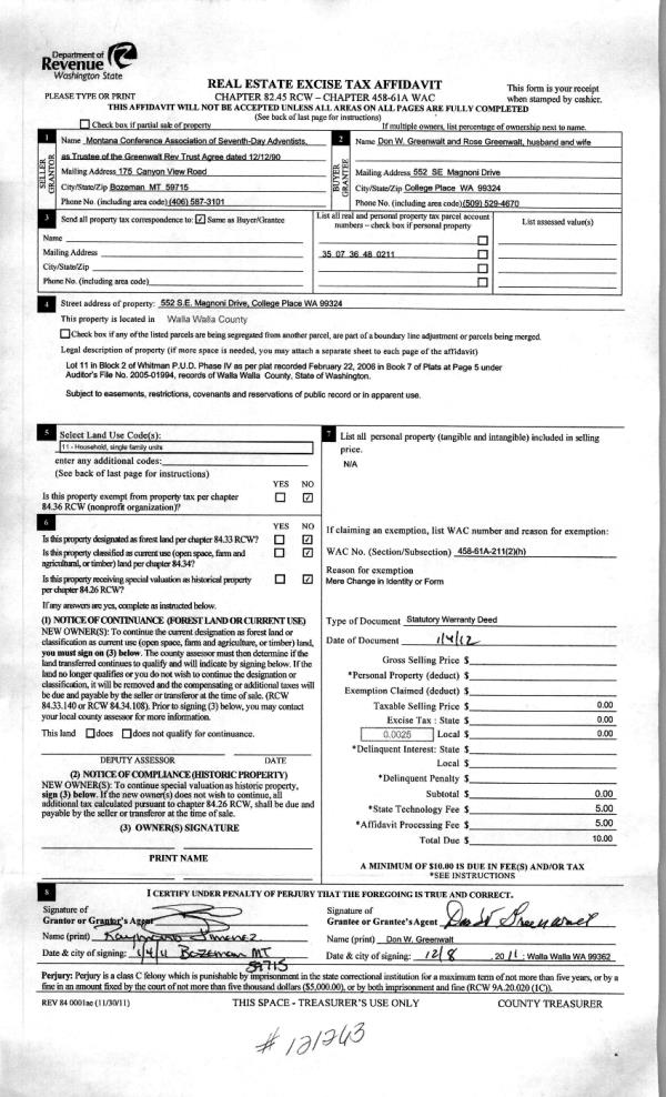
| 4 | 01/11/2012 | QCD | QUIT CLAIM DEED | MONTANA CONFERENCE ASSOC SDA | GREENWALT, DON W & ROSE | | | | 121263 | 2012-00332 |
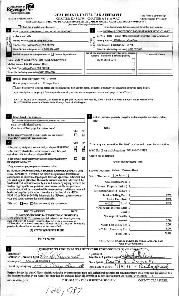
| 5 | 11/15/2011 | WARRANTY D | WARRANTY DEED | GREENWALT, DON W & ROSE M | MONTANA CONFERENCE ASSOC SDA | | | | 120987 | 2011-08978 |
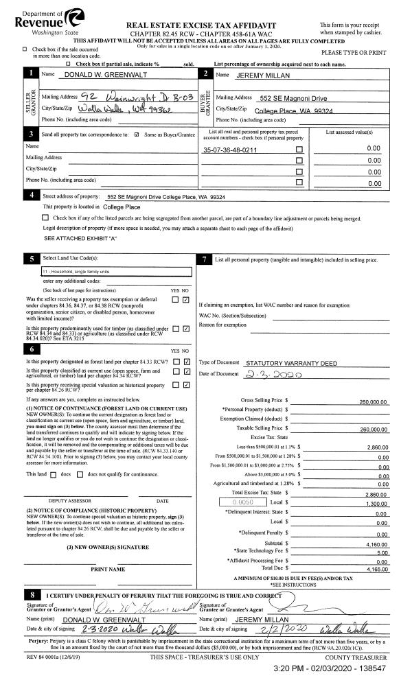
| 6 | 08/31/2010 | WARRANTY D | WARRANTY DEED | YOUNG, DERI | GREENWALT, DON W & ROSE M | | | $185,000.00 | 118945 | 2010-06755 |
| 7 | 07/16/2007 | WARRANTY D | WARRANTY DEED | ROFF HOMES INC | YOUNG, DERI | | | $222,000.00 | 113275 | 2007-08182 |
| 8 | 10/13/2006 | WARRANTY D | WARRANTY DEED | WHITMAN DEVELOPMENT CORP | ROFF HOMES INC | | | | 111441 | 2006-12387 |
Payout Agreement
| No payout information available.. |