Property
Account |
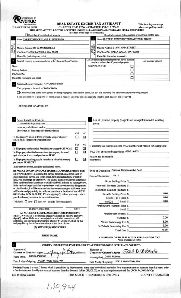
| Property ID: | 32611 | Abbreviated Legal Description: | FAIRFIELD LOT 8 AND W 2' OF LOT 7 BLK 1 |
| Parcel Number: | 360729610108 | Agent Code: | |
| Type: | Real | | |
| Tax Area: | 1 - OL-140-F | Land Use Code | 11 |
| Open Space: | N | DFL | N |
| Historic Property: | N | Remodel Property: | N |
| Multi-Family Redevelopment: | N | | |
| Township: | 7 | Section: | 29 |
| Range: | 36 |
Location |
| Address: | 137 ORCHARD ST WA 99362 | Mapsco: | |
| Neighborhood: | Fair Res | Map ID: | |
| Neighborhood CD: | 612011 |
Owner |
| Name: | PETERSEN CLYDE E TESTAMENTARY TRUST | Owner ID: | 50505 |
| Mailing Address: | C/O GAIL ROBERTS 18525 NE MARINE DRIVE A3 PORTLAND, OR 97230 | % Ownership: | 100.0000000000% |
| | | Exemptions: | |
Taxes and Assessment Details
Values
| (+) Improvement Homesite Value: | + | $0 | |
| (+) Improvement Non-Homesite Value: | + | $209,520 | |
| (+) Land Homesite Value: | + | $0 | |
| (+) Land Non-Homesite Value: | + | $57,200 | |
| (+) Curr Use (HS): | + | $0 | $0 |
| (+) Curr Use (NHS): | + | $0 | $0 |
| | | -------------------------- | |
| (=) Market Value: | = | $266,720 | |
| (–) Productivity Loss: | – | $0 | |
| | | -------------------------- | |
| (=) Subtotal: | = | $266,720 | |
| (+) Senior Appraised Value: | + | $0 | |
| (+) Non-Senior Appraised Value: | + | $266,720 | |
| | | -------------------------- | |
| (=) Total Appraised Value: | = | $266,720 | |
| (–) Senior Exemption Loss: | – | $0 | |
| (–) Exemption Loss: | – | $0 | |
| | | -------------------------- | |
| (=) Taxable Value: | = | $266,720 | |
Taxing Jurisdiction
| Owner: | PETERSEN CLYDE E TESTAMENTARY TRUST | | |
| % Ownership: | 100.0000000000% | | |
| Total Value: | $266,720 | | |
| Tax Area: | 1 - OL-140-F |
| CERFD | CURRENT EXPENSE REFUND 010 | 0.0000000000 | $266,720 | $266,720 | $0.00 | | |
| CURREXP | CURRENT EXPENSE 010 | 1.0175366760 | $266,720 | $266,720 | $271.40 | | |
| HUMNSERV | HUMAN SERVICES 119 | 0.0250000000 | $266,720 | $266,720 | $6.67 | | |
| SLDREL | SOLDIERS RELIEF 121 | 0.0155990005 | $266,720 | $266,720 | $4.16 | | |
| EMERGSER | EMS 147 | 0.3792580840 | $266,720 | $266,720 | $101.16 | | |
| EMSRFD | EMS REFUND 147 | 0.0000000000 | $266,720 | $266,720 | $0.00 | | |
| PORTRFD | PORT REFUND 640 | 0.0000000000 | $266,720 | $266,720 | $0.00 | | |
| PORTWWGEN | PORT OF WW 640 | 0.2460186015 | $266,720 | $266,720 | $65.62 | | |
| SD140BOND | SD #140 BOND 764 | 0.8342371393 | $266,720 | $266,720 | $222.51 | | |
| SD140GEN | SD #140 GENERAL 760 | 2.0646500647 | $266,720 | $266,720 | $550.68 | | |
| ST2 | STATE SCHOOL PART 2 600 | 0.8131451643 | $266,720 | $266,720 | $216.88 | | |
| STATESCHL | STATE SCHOOL 600 | 1.5158548041 | $266,720 | $266,720 | $404.31 | | |
| STREFUND | STATE REFUND LEVY 603 | 0.0000000000 | $266,720 | $266,720 | $0.00 | | |
| CWWBOND | C OF WW BOND 643 | 0.2760494372 | $266,720 | $266,720 | $73.63 | | |
| CWWGEN | CITY OF WW 631 | 1.6100204973 | $266,720 | $266,720 | $429.42 | | |
| CWWRFD | CITY OF WALLA WALLA REFUND 631 | 0.0000000000 | $266,720 | $266,720 | $0.00 | | |
| | Total Tax Rate: | 8.7973694689 | | | | | |
| | | | | Taxes w/Current Exemptions: | $2,346.44 | | |
| | | | | Taxes w/o Exemptions: | $2,346.44 | | |
Improvement / Building
| Improvement #1: | RESIDENTIAL | State Code: | 11 | 1271.0 sqft | Value: | $209,520 |
| Exterior Wall: | PLYWOOD | Heating/Cooling: | BASEBOARD ELECTRIC | | Number of Bathrooms: | 2 | Number of Bedrooms: | 3 | | Plumbing: | 9 | Roof Covering: | COMP SHINGLE |
|
| | Type | Description | Class CD | Sub Class CD | Year Built | Area |
| | MA | Main Area | 1 | 25 | 1960 | 1271.0 |
| | SI1 | SITE IMPROVEMENT | 1 | 25 | 1960 | 1.0 |
| | ATG | Attached Garage | 1 | 25 | 1960 | 396.0 |
| | RPO | OPEN PORCH W/ROOF | 1 | 25 | 1960 | 48.0 |
| | CPC | COVERED CARPORT/PATIO | 1 | 25 | 1960 | 338.0 |
Sketch
Property Image
Land
| 1 | RES 1 | Converted: Residential | 0.1641 | 7150.00 | 0.00 | 0.00 | 1.00 | $57,200 | $0 |
Roll Value History
| 2026 | N/A | N/A | N/A | N/A | N/A |
| 2025 | $196,450 | $71,500 | $0 | $267,950 | $267,950 |
| 2024 | $209,520 | $57,200 | $0 | $266,720 | $266,720 |
| 2023 | $209,520 | $57,200 | $0 | $266,720 | $266,720 |
| 2022 | $209,520 | $44,690 | $0 | $254,210 | $254,210 |
| 2021 | $161,170 | $44,690 | $0 | $205,860 | $205,860 |
| 2020 | $134,310 | $44,690 | $0 | $179,000 | $179,000 |
| 2019 | $134,310 | $44,690 | $0 | $179,000 | $179,000 |
| 2018 | $101,340 | $42,900 | $0 | $144,240 | $144,240 |
| 2017 | $96,520 | $42,900 | $0 | $139,420 | $139,420 |
| 2016 | $80,430 | $42,900 | $0 | $123,330 | $123,330 |
| 2015 | $80,430 | $42,900 | $0 | $123,330 | $123,330 |
| 2014 | $76,600 | $42,900 | $0 | $119,500 | $119,500 |
| 2013 | $76,600 | $42,900 | $0 | $119,500 | $119,500 |
| 2012 | $74,000 | $42,900 | $0 | $0 | $0 |
| 2011 | $74,000 | $42,900 | $0 | $0 | $0 |
| 2010 | $74,000 | $42,900 | $0 | $0 | $0 |
| 2009 | $87,000 | $42,900 | $0 | $0 | $0 |
| 2008 | $87,000 | $42,900 | $0 | $0 | $0 |
| 2007 | $66,200 | $14,300 | $0 | $0 | $0 |
Deed and Sales History
| 1 | 11/09/2011 | WARRANTY D | WARRANTY DEED | PETERSEN, CLYDE E ESTATE OF | PETERSEN, CLYDE E TESTAMENTARY | | | | 120954 | 2011-08818 |
| 2 | 03/08/1978 | WARRANTY D | WARRANTY DEED | | | | | $20,399.00 | 0 | 7778-01960 |
Payout Agreement
| No payout information available.. |