Property
Account |
| Property ID: | 32610 | Abbreviated Legal Description: | FRANKLAND ADDN E1/2 LOTS 8 & 9 BLOCK 11 |
| Parcel Number: | 360716501120 | Agent Code: | |
| Type: | Real | | |
| Tax Area: | 5 - OL-140 | Land Use Code | 11 |
| Open Space: | N | DFL | N |
| Historic Property: | N | Remodel Property: | N |
| Multi-Family Redevelopment: | N | | |
| Township: | 7 | Section: | 16 |
| Range: | 36 |
Location |
| Address: | 1809 MELROSE ST WA 99362 | Mapsco: | |
| Neighborhood: | A-SFR | Map ID: | |
| Neighborhood CD: | 513011 |
Owner |
| Name: | SANTIAGO JESUS RUBIO | Owner ID: | 58291 |
| Mailing Address: | 1809 MELROSE ST WALLA WALLA, WA 99362 | % Ownership: | 100.0000000000% |
| | | Exemptions: | |
Taxes and Assessment Details
Values
| (+) Improvement Homesite Value: | + | $0 | |
| (+) Improvement Non-Homesite Value: | + | $150,820 | |
| (+) Land Homesite Value: | + | $0 | |
| (+) Land Non-Homesite Value: | + | $39,380 | |
| (+) Curr Use (HS): | + | $0 | $0 |
| (+) Curr Use (NHS): | + | $0 | $0 |
| | | -------------------------- | |
| (=) Market Value: | = | $190,200 | |
| (–) Productivity Loss: | – | $0 | |
| | | -------------------------- | |
| (=) Subtotal: | = | $190,200 | |
| (+) Senior Appraised Value: | + | $0 | |
| (+) Non-Senior Appraised Value: | + | $190,200 | |
| | | -------------------------- | |
| (=) Total Appraised Value: | = | $190,200 | |
| (–) Senior Exemption Loss: | – | $0 | |
| (–) Exemption Loss: | – | $0 | |
| | | -------------------------- | |
| (=) Taxable Value: | = | $190,200 | |
Taxing Jurisdiction
| Owner: | SANTIAGO JESUS RUBIO | | |
| % Ownership: | 100.0000000000% | | |
| Total Value: | $190,200 | | |
| Tax Area: | 5 - OL-140 |
| CERFD | CURRENT EXPENSE REFUND 010 | 0.0000000000 | $190,200 | $190,200 | $0.00 | | |
| CURREXP | CURRENT EXPENSE 010 | 1.0175366760 | $190,200 | $190,200 | $193.54 | | |
| HUMNSERV | HUMAN SERVICES 119 | 0.0250000000 | $190,200 | $190,200 | $4.76 | | |
| SLDREL | SOLDIERS RELIEF 121 | 0.0155990005 | $190,200 | $190,200 | $2.97 | | |
| EMERGSER | EMS 147 | 0.3792580840 | $190,200 | $190,200 | $72.13 | | |
| EMSRFD | EMS REFUND 147 | 0.0000000000 | $190,200 | $190,200 | $0.00 | | |
| PORTRFD | PORT REFUND 640 | 0.0000000000 | $190,200 | $190,200 | $0.00 | | |
| PORTWWGEN | PORT OF WW 640 | 0.2460186015 | $190,200 | $190,200 | $46.79 | | |
| SD140BOND | SD #140 BOND 764 | 0.8342371393 | $190,200 | $190,200 | $158.67 | | |
| SD140GEN | SD #140 GENERAL 760 | 2.0646500647 | $190,200 | $190,200 | $392.70 | | |
| ST2 | STATE SCHOOL PART 2 600 | 0.8131451643 | $190,200 | $190,200 | $154.66 | | |
| STATESCHL | STATE SCHOOL 600 | 1.5158548041 | $190,200 | $190,200 | $288.32 | | |
| STREFUND | STATE REFUND LEVY 603 | 0.0000000000 | $190,200 | $190,200 | $0.00 | | |
| CWWBOND | C OF WW BOND 643 | 0.2760494372 | $190,200 | $190,200 | $52.50 | | |
| CWWGEN | CITY OF WW 631 | 1.6100204973 | $190,200 | $190,200 | $306.23 | | |
| CWWRFD | CITY OF WALLA WALLA REFUND 631 | 0.0000000000 | $190,200 | $190,200 | $0.00 | | |
| | Total Tax Rate: | 8.7973694689 | | | | | |
| | | | | Taxes w/Current Exemptions: | $1,673.27 | | |
| | | | | Taxes w/o Exemptions: | $1,673.27 | | |
Improvement / Building
| Improvement #1: | RESIDENTIAL | State Code: | 11 | 1216.0 sqft | Value: | $150,820 |
| Exterior Wall: | STUCCO | Heating/Cooling: | BASEBOARD ELECTRIC | | Number of Bathrooms: | 2 | Number of Bedrooms: | 3 | | Plumbing: | 8 | Roof Covering: | COMP SHINGLE |
|
| | Type | Description | Class CD | Sub Class CD | Year Built | Area |
| | MA | Main Area | 4 | 20 | 1935 | 1216.0 |
| | SI1 | SITE IMPROVEMENT | 4 | 20 | 0 | 1.0 |
| | BASE | BASEMENT | 1 | 20 | 1935 | 896.0 |
| | BPF | BASEMENT -PARTITIONED FINISH | 4 | 20 | 1935 | 896.0 |
| | UPFL | Upper Floor (included in main area) | 4 | 20 | 1935 | 320.0 |
| | RPC | OPEN PORCH W/ROOF , CEILED | 4 | 20 | 1935 | 25.0 |
| | SWP | Solid Wall Porch | 4 | 20 | 1935 | 60.0 |
Sketch
Property Image
Land
| 1 | RES 1 | Converted: Residential | 0.1446 | 6300.00 | 0.00 | 0.00 | 1.00 | $39,380 | $0 |
Roll Value History
| 2026 | N/A | N/A | N/A | N/A | N/A |
| 2025 | $165,240 | $63,000 | $0 | $228,240 | $228,240 |
| 2024 | $127,110 | $63,000 | $0 | $190,110 | $190,110 |
| 2023 | $150,820 | $39,380 | $0 | $190,200 | $190,200 |
| 2022 | $131,150 | $39,380 | $0 | $170,530 | $170,530 |
| 2021 | $97,150 | $39,380 | $0 | $136,530 | $136,530 |
| 2020 | $80,960 | $39,380 | $0 | $120,340 | $120,340 |
| 2019 | $80,960 | $39,380 | $0 | $120,340 | $120,340 |
| 2018 | $77,100 | $39,380 | $0 | $116,480 | $116,480 |
| 2017 | $87,200 | $25,200 | $0 | $112,400 | $112,400 |
| 2016 | $87,200 | $25,200 | $0 | $112,400 | $112,400 |
| 2015 | $87,200 | $25,200 | $0 | $112,400 | $112,400 |
| 2014 | $87,200 | $25,200 | $0 | $112,400 | $112,400 |
| 2013 | $87,200 | $25,200 | $0 | $112,400 | $112,400 |
| 2012 | $91,600 | $25,200 | $0 | $0 | $0 |
| 2011 | $91,600 | $25,200 | $0 | $0 | $0 |
| 2010 | $86,000 | $25,200 | $0 | $0 | $0 |
| 2009 | $98,400 | $25,200 | $0 | $0 | $0 |
| 2008 | $77,800 | $25,200 | $0 | $0 | $0 |
| 2007 | $77,800 | $25,200 | $0 | $0 | $0 |
Deed and Sales History
| 1 | 02/16/2016 | SWD | STATUTORY WARRANTY DEED | PETERSEN CLYDE E TESTAMENTARY TRUST | SANTIAGO JESUS RUBIO | | | $118,000.00 | 129685 | 2016-01144 |
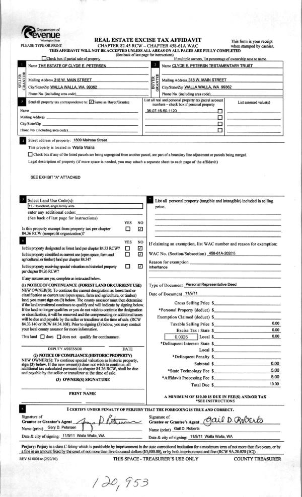
| 2 | 11/09/2011 | WARRANTY D | WARRANTY DEED | PETERSEN, CLYDE E ESTATE OF | PETERSEN, CLYDE E TESTAMENTARY | | | | 120953 | 2011-08817 |
| 3 | 10/19/2005 | QCD | QUIT CLAIM DEED | SANTIAGO, JESUS RUBIO | RUBIO, DEBBIE M | | | | 108799 | 2005-13105 |
| 4 | 10/19/2005 | WARRANTY D | WARRANTY DEED | "RUBIO, DEBBIE M" | | | | | 108800 | 2005-13106 |
| 5 | 10/25/1991 | WARRANTY D | WARRANTY DEED | | | | | $37,900.00 | 0 | 1929-107507 |
Payout Agreement
| No payout information available.. |