Property
Account |
| Property ID: | 32606 | Abbreviated Legal Description: | KENSINGTON ADDITION LOT 1 |
| Parcel Number: | 360728870001 | Agent Code: | |
| Type: | Real | | |
| Tax Area: | 105 - 140-F-4 | Land Use Code | 11 |
| Open Space: | N | DFL | N |
| Historic Property: | N | Remodel Property: | N |
| Multi-Family Redevelopment: | N | | |
| Township: | 7 | Section: | 28 |
| Range: | 36 |
Location |
| Address: | 7 KENSINGTON DR WA 99362 | Mapsco: | |
| Neighborhood: | VG Res | Map ID: | |
| Neighborhood CD: | 615011 |
Owner |
| Name: | ROBERT BRUCE & NANCY TEAL HINES TRUST | Owner ID: | 66470 |
| Mailing Address: | 7 KENSINGTON DRIVE WALLA WALLA, WA 99362 | % Ownership: | 100.0000000000% |
| | | Exemptions: | |
Taxes and Assessment Details
Property Tax Information as of
02/21/2026
Click on "Statement Details" to expand or collapse a tax statement.
* Please enter a valid date ** Please enter a valid date *
Statement Details |
| | TOTAL: | $0.00 | $0.00 | $0.00 | $0.00 | $0.00 | $0.00 |
|
| | $0.00 | $0.00 | $0.00 | $0.00 | $0.00 | $0.00 |
Values
| (+) Improvement Homesite Value: | + | $0 | |
| (+) Improvement Non-Homesite Value: | + | $515,660 | |
| (+) Land Homesite Value: | + | $0 | |
| (+) Land Non-Homesite Value: | + | $120,000 | |
| (+) Curr Use (HS): | + | $0 | $0 |
| (+) Curr Use (NHS): | + | $0 | $0 |
| | | -------------------------- | |
| (=) Market Value: | = | $635,660 | |
| (–) Productivity Loss: | – | $0 | |
| | | -------------------------- | |
| (=) Subtotal: | = | $635,660 | |
| (+) Senior Appraised Value: | + | $0 | |
| (+) Non-Senior Appraised Value: | + | $635,660 | |
| | | -------------------------- | |
| (=) Total Appraised Value: | = | $635,660 | |
| (–) Senior Exemption Loss: | – | $0 | |
| (–) Exemption Loss: | – | $0 | |
| | | -------------------------- | |
| (=) Taxable Value: | = | $635,660 | |
Taxing Jurisdiction
| Owner: | ROBERT BRUCE & NANCY TEAL HINES TRUST | | |
| % Ownership: | 100.0000000000% | | |
| Total Value: | $635,660 | | |
| Tax Area: | 105 - 140-F-4 |
| CERFD | CURRENT EXPENSE REFUND 010 | 0.0000000000 | $635,660 | $635,660 | $0.00 | | |
| CURREXP | CURRENT EXPENSE 010 | 1.0175366760 | $635,660 | $635,660 | $646.81 | | |
| HUMNSERV | HUMAN SERVICES 119 | 0.0250000000 | $635,660 | $635,660 | $15.89 | | |
| SLDREL | SOLDIERS RELIEF 121 | 0.0155990005 | $635,660 | $635,660 | $9.92 | | |
| EMERGSER | EMS 147 | 0.3792580840 | $635,660 | $635,660 | $241.08 | | |
| EMSRFD | EMS REFUND 147 | 0.0000000000 | $635,660 | $635,660 | $0.00 | | |
| FD4EXP | FD #4 EXPENSE 686 | 0.8836993059 | $635,660 | $635,660 | $561.73 | | |
| RLBRFD | RURAL LIBRARY REFUND 623 | 0.0000000000 | $635,660 | $635,660 | $0.00 | | |
| RURALLIB | RURAL LIBRARY 623 | 0.3710609029 | $635,660 | $635,660 | $235.87 | | |
| PORTRFD | PORT REFUND 640 | 0.0000000000 | $635,660 | $635,660 | $0.00 | | |
| PORTWWGEN | PORT OF WW 640 | 0.2460186015 | $635,660 | $635,660 | $156.38 | | |
| SD140BOND | SD #140 BOND 764 | 0.8342371393 | $635,660 | $635,660 | $530.29 | | |
| SD140GEN | SD #140 GENERAL 760 | 2.0646500647 | $635,660 | $635,660 | $1,312.42 | | |
| ST2 | STATE SCHOOL PART 2 600 | 0.8131451643 | $635,660 | $635,660 | $516.88 | | |
| STATESCHL | STATE SCHOOL 600 | 1.5158548041 | $635,660 | $635,660 | $963.57 | | |
| STREFUND | STATE REFUND LEVY 603 | 0.0000000000 | $635,660 | $635,660 | $0.00 | | |
| COROAD | COUNTY ROAD 115 | 1.6549953990 | $635,660 | $635,660 | $1,052.01 | | |
| CRPRD | COUNTY ROAD REFUND 115 | 0.0000000000 | $635,660 | $635,660 | $0.00 | | |
| | Total Tax Rate: | 9.8210551422 | | | | | |
| | | | | Taxes w/Current Exemptions: | $6,242.85 | | |
| | | | | Taxes w/o Exemptions: | $6,242.85 | | |
Improvement / Building
| Improvement #1: | RESIDENTIAL | State Code: | 11 | 2078.0 sqft | Value: | $515,660 |
| Exterior Wall: | PLYWOOD | Heating/Cooling: | WARM & COOLED AIR | | Number of Bathrooms: | 2 | Number of Bedrooms: | 3 | | Plumbing: | 11 | Roof Covering: | COMP SHINGLE |
|
| | Type | Description | Class CD | Sub Class CD | Year Built | Area |
| | MA | Main Area | 1 | 45 | 2008 | 2078.0 |
| | SI1 | SITE IMPROVEMENT | 1 | 45 | 2008 | 4.0 |
| | GFP | GAS FIREPLACE | 1 | 45 | 2008 | 1.0 |
| | RPC | OPEN PORCH W/ROOF , CEILED | 1 | 45 | 2008 | 78.0 |
| | RPC | OPEN PORCH W/ROOF , CEILED | 1 | 45 | 2008 | 162.0 |
| | ATG | Attached Garage | 1 | 45 | 2008 | 440.0 |
Sketch
Property Image
Land
| 1 | RES 1 | Converted: Residential | 0.1769 | 7707.00 | 0.00 | 0.00 | 1.00 | $120,000 | $0 |
Roll Value History
| 2026 | N/A | N/A | N/A | N/A | N/A |
| 2025 | $495,550 | $180,000 | $0 | $675,550 | $675,550 |
| 2024 | $541,450 | $120,000 | $0 | $661,450 | $661,450 |
| 2023 | $515,660 | $120,000 | $0 | $635,660 | $635,660 |
| 2022 | $491,110 | $95,000 | $0 | $586,110 | $586,110 |
| 2021 | $377,780 | $95,000 | $0 | $472,780 | $472,780 |
| 2020 | $302,220 | $95,000 | $0 | $397,220 | $397,220 |
| 2019 | $302,220 | $95,000 | $0 | $397,220 | $397,220 |
| 2018 | $303,030 | $75,000 | $0 | $378,030 | $378,030 |
| 2017 | $303,030 | $75,000 | $0 | $378,030 | $378,030 |
| 2016 | $303,030 | $75,000 | $0 | $378,030 | $378,030 |
| 2015 | $303,030 | $75,000 | $0 | $378,030 | $378,030 |
| 2014 | $288,600 | $75,000 | $0 | $363,600 | $363,600 |
| 2013 | $288,600 | $75,000 | $0 | $363,600 | $363,600 |
| 2012 | $255,700 | $75,000 | $0 | $0 | $0 |
| 2011 | $255,700 | $75,000 | $0 | $0 | $0 |
| 2010 | $255,700 | $75,000 | $0 | $0 | $0 |
| 2009 | $348,000 | $75,000 | $0 | $0 | $0 |
| 2008 | $0 | $75,000 | $0 | $0 | $0 |
| 2007 | $0 | $1,900 | $0 | $0 | $0 |
Deed and Sales History
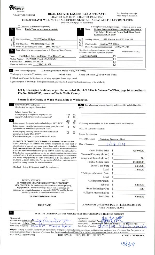
| 1 | 12/27/2019 | SWD | STATUTORY WARRANTY DEED | TAM LINDA W | ROBERT BRUCE & NANCY TEAL HINES TRUST | | | $435,000.00 | 138319 | 2019-10714 |
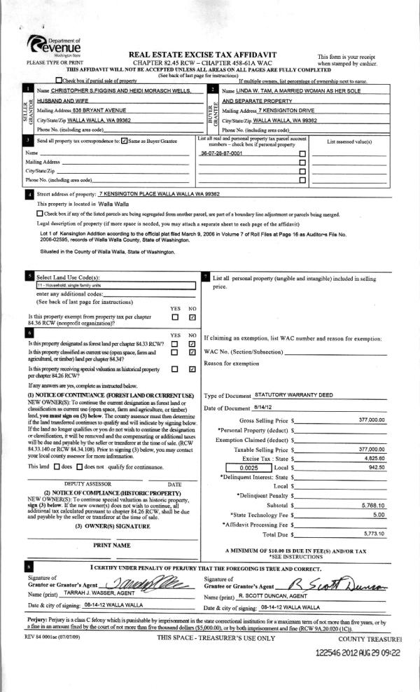
| 2 | 08/29/2012 | WARRANTY D | WARRANTY DEED | FIGGINS, CHRISTOPHER S | TAM, LINDA W | | | $377,000.00 | 122546 | 2012-07502 |
| 3 | 08/29/2012 | QCD | QUIT CLAIM DEED | TAM, JAMES | TAM, LINDA W | | | $0.00 | 122547 | 2012-07503 |
| 4 | 11/22/2011 | QCD | QUIT CLAIM DEED | WELLS, HEIDI MORASCH | FIGGINS, CHRISTOPHER S | | | | 121030 | 2011-09204 |
| 5 | 11/09/2007 | QCD | QUIT CLAIM DEED | WELLS, SAMUEL | WELLS, HEIDI MORASCH | | | | 114069 | 2007-13048 |
| 6 | 11/09/2007 | WARRANTY D | WARRANTY DEED | BOTIMER, DOUGLAS A & GLORIA | WELLS, HEIDI MORASCH | | | $100,000.00 | 114070 | 2007-13049 |
| 7 | 04/04/2007 | WARRANTY D | WARRANTY DEED | BOTIMER DOUGLAS A & GLORIA | BOTIMER DOUGLAS A & GLORIA | | | | 112551 | 2007-03741 |
Payout Agreement
| No payout information available.. |