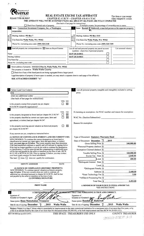
Property
Account |
| Property ID: | 32577 | Abbreviated Legal Description: | 20-7-36 PARCEL 12 |
| Parcel Number: | 360720240012 | Agent Code: | |
| Type: | Real | | |
| Tax Area: | 1 - OL-140-F | Land Use Code | 12 |
| Open Space: | N | DFL | N |
| Historic Property: | N | Remodel Property: | N |
| Multi-Family Redevelopment: | N | | |
| Township: | 7 | Section: | 20 |
| Range: | 36 |
Location |
| Address: | 315 E PINE ST WA 99362 | Mapsco: | |
| Neighborhood: | F SFR Multi Res | Map ID: | |
| Neighborhood CD: | 512081 |
Owner |
| Name: | HALLOWELL RANDY W & KRISTI A | Owner ID: | 50956 |
| Mailing Address: | PO BOX 1515 WALLA WALLA, WA 99362 | % Ownership: | 100.0000000000% |
| | | Exemptions: | |
Taxes and Assessment Details
Values
| (+) Improvement Homesite Value: | + | $0 | |
| (+) Improvement Non-Homesite Value: | + | $126,000 | |
| (+) Land Homesite Value: | + | $0 | |
| (+) Land Non-Homesite Value: | + | $66,200 | |
| (+) Curr Use (HS): | + | $0 | $0 |
| (+) Curr Use (NHS): | + | $0 | $0 |
| | | -------------------------- | |
| (=) Market Value: | = | $192,200 | |
| (–) Productivity Loss: | – | $0 | |
| | | -------------------------- | |
| (=) Subtotal: | = | $192,200 | |
| (+) Senior Appraised Value: | + | $0 | |
| (+) Non-Senior Appraised Value: | + | $192,200 | |
| | | -------------------------- | |
| (=) Total Appraised Value: | = | $192,200 | |
| (–) Senior Exemption Loss: | – | $0 | |
| (–) Exemption Loss: | – | $0 | |
| | | -------------------------- | |
| (=) Taxable Value: | = | $192,200 | |
Taxing Jurisdiction
| Owner: | HALLOWELL RANDY W & KRISTI A | | |
| % Ownership: | 100.0000000000% | | |
| Total Value: | $192,200 | | |
| Tax Area: | 1 - OL-140-F |
| CERFD | CURRENT EXPENSE REFUND 010 | 0.0000000000 | $192,200 | $192,200 | $0.00 | | |
| CURREXP | CURRENT EXPENSE 010 | 0.9851088983 | $192,200 | $192,200 | $189.34 | | |
| HUMNSERV | HUMAN SERVICES 119 | 0.0250000000 | $192,200 | $192,200 | $4.81 | | |
| SLDREL | SOLDIERS RELIEF 121 | 0.0155990000 | $192,200 | $192,200 | $3.00 | | |
| EMERGSER | EMS 147 | 0.3676811629 | $192,200 | $192,200 | $70.67 | | |
| EMSRFD | EMS REFUND 147 | 0.0000000000 | $192,200 | $192,200 | $0.00 | | |
| PORTRFD | PORT REFUND 640 | 0.0000000000 | $192,200 | $192,200 | $0.00 | | |
| PORTWWGEN | PORT OF WW 640 | 0.2344301070 | $192,200 | $192,200 | $45.06 | | |
| SD140BOND | SD #140 BOND 764 | 0.8032434458 | $192,200 | $192,200 | $154.38 | | |
| SD140CAP | SD #140 CAP 762 | 0.3840034221 | $192,200 | $192,200 | $73.81 | | |
| SD140GEN | SD #140 GENERAL 760 | 2.4999999996 | $192,200 | $192,200 | $480.50 | | |
| ST2 | STATE SCHOOL PART 2 600 | 0.8853714103 | $192,200 | $192,200 | $170.17 | | |
| STATESCHL | STATE SCHOOL 600 | 1.6424571473 | $192,200 | $192,200 | $315.68 | | |
| STREFUND | STATE REFUND LEVY 603 | 0.0000000000 | $192,200 | $192,200 | $0.00 | | |
| CWWBOND | C OF WW BOND 643 | 0.2642134255 | $192,200 | $192,200 | $50.78 | | |
| CWWGEN | CITY OF WW 631 | 1.6110494978 | $192,200 | $192,200 | $309.64 | | |
| CWWRFD | CITY OF WALLA WALLA REFUND 631 | 0.0000000000 | $192,200 | $192,200 | $0.00 | | |
| | Total Tax Rate: | 9.7181575166 | | | | | |
| | | | | Taxes w/Current Exemptions: | $1,867.84 | | |
| | | | | Taxes w/o Exemptions: | $1,867.84 | | |
Improvement / Building
| Improvement #1: | RESIDENTIAL | State Code: | 12 | 704.0 sqft | Value: | $72,100 |
| Exterior Wall: | SIDING | Heating/Cooling: | BASEBOARD HOT WATER | | Number of Bathrooms: | 1 | Number of Bedrooms: | 2 | | Plumbing: | 6 | Roof Covering: | COMP SHINGLE |
|
| | Type | Description | Class CD | Sub Class CD | Year Built | Area |
| | MA | Main Area | 1 | 20 | 1935 | 704.0 |
| | SI1 | SITE IMPROVEMENT | 1 | 20 | 0 | 1.0 |
| | DTG | Detached Garage | 1 | 20 | 0 | 171.0 |
| | RPS | PORCH W/STEPS,ROOF | 1 | 20 | 0 | 28.0 |
| Improvement #2: | RESIDENTIAL | State Code: | 12 | 640.0 sqft | Value: | $53,900 |
| Exterior Wall: | SIDING | Heating/Cooling: | BASEBOARD HOT WATER | | Number of Bathrooms: | 1 | Number of Bedrooms: | 2 | | Plumbing: | 6 | Roof Covering: | COMP SHINGLE |
|
| | Type | Description | Class CD | Sub Class CD | Year Built | Area |
| | MA | Main Area | 1 | 20 | 1935 | 640.0 |
| | DTG | Detached Garage | 1 | 20 | 1935 | 171.0 |
| | OPS | OPEN PORCH W/STEPS | 1 | 20 | 1935 | 24.0 |
Sketch
Property Image
Land
| 1 | RES 1 | Converted: Residential | 0.1900 | 8276.00 | 0.00 | 0.00 | 1.00 | $66,200 | $0 |
Roll Value History
| 2026 | N/A | N/A | N/A | N/A | N/A |
| 2025 | $126,000 | $66,200 | $0 | $192,200 | $192,200 |
| 2024 | $126,000 | $66,200 | $0 | $192,200 | $192,200 |
| 2023 | $148,820 | $43,450 | $0 | $192,270 | $192,270 |
| 2022 | $135,290 | $43,450 | $0 | $178,740 | $178,740 |
| 2021 | $96,640 | $43,450 | $0 | $140,090 | $140,090 |
| 2020 | $87,850 | $43,450 | $0 | $131,300 | $131,300 |
| 2019 | $87,850 | $43,450 | $0 | $131,300 | $131,300 |
| 2018 | $87,850 | $43,450 | $0 | $131,300 | $131,300 |
| 2017 | $65,360 | $22,100 | $0 | $87,460 | $87,460 |
| 2016 | $65,360 | $22,100 | $0 | $87,460 | $87,460 |
| 2015 | $76,900 | $22,100 | $0 | $99,000 | $99,000 |
| 2014 | $76,900 | $22,100 | $0 | $99,000 | $99,000 |
| 2013 | $76,900 | $22,100 | $0 | $99,000 | $99,000 |
| 2012 | $76,900 | $22,100 | $0 | $0 | $0 |
| 2011 | $76,900 | $22,100 | $0 | $0 | $0 |
| 2010 | $76,900 | $22,100 | $0 | $0 | $0 |
| 2009 | $76,900 | $22,100 | $0 | $0 | $0 |
| 2008 | $76,900 | $22,100 | $0 | $0 | $0 |
| 2007 | $76,900 | $22,100 | $0 | $0 | $0 |
Deed and Sales History
| 1 | 08/01/2022 | QCD | QUIT CLAIM DEED | HALLOWELL RANDALL W | HALLOWELL RANDY W & KRISTI A | | | $0.00 | 144422 | 2022-06444 |
| 2 | 12/07/2015 | SWD | STATUTORY WARRANTY DEED | CONNECTICUT INVESTMENT CO | HALLOWELL RANDALL W | | 2-PARCLES | $160,000.00 | 129303 | 2015-10475 |
|   | |
| 3 | 01/01/1954 | WARRANTY D | WARRANTY DEED | | | | | $0.00 | 269 | 2690-371776 |
Payout Agreement
| No payout information available.. |