Property
Account |
| Property ID: | 32575 | Abbreviated Legal Description: | GREENS ANNEX TAX 9 LOT 3 BLK 4 |
| Parcel Number: | 360721750414 | Agent Code: | |
| Type: | Real | | |
| Tax Area: | 1 - OL-140-F | Land Use Code | 11 |
| Open Space: | N | DFL | N |
| Historic Property: | N | Remodel Property: | N |
| Multi-Family Redevelopment: | N | | |
| Township: | 7 | Section: | 21 |
| Range: | 36 |
Location |
| Address: | 1417 WALLA WALLA AVE WA 99362 | Mapsco: | |
| Neighborhood: | A-SFR | Map ID: | |
| Neighborhood CD: | 513011 |
Owner |
| Name: | OOSTERHUIS LYNDA DIANE | Owner ID: | 66929 |
| Mailing Address: | 1417 WALLA WALLA WALLA WALLA, WA 99362 | % Ownership: | 100.0000000000% |
| | | Exemptions: | |
Taxes and Assessment Details
Property Tax Information as of
02/21/2026
Click on "Statement Details" to expand or collapse a tax statement.
* Please enter a valid date ** Please enter a valid date *
Statement Details |
| | TOTAL: | $0.00 | $0.00 | $0.00 | $0.00 | $0.00 | $0.00 |
|
| | $0.00 | $0.00 | $0.00 | $0.00 | $0.00 | $0.00 |
Values
| (+) Improvement Homesite Value: | + | $0 | |
| (+) Improvement Non-Homesite Value: | + | $237,310 | |
| (+) Land Homesite Value: | + | $0 | |
| (+) Land Non-Homesite Value: | + | $48,100 | |
| (+) Curr Use (HS): | + | $0 | $0 |
| (+) Curr Use (NHS): | + | $0 | $0 |
| | | -------------------------- | |
| (=) Market Value: | = | $285,410 | |
| (–) Productivity Loss: | – | $0 | |
| | | -------------------------- | |
| (=) Subtotal: | = | $285,410 | |
| (+) Senior Appraised Value: | + | $0 | |
| (+) Non-Senior Appraised Value: | + | $285,410 | |
| | | -------------------------- | |
| (=) Total Appraised Value: | = | $285,410 | |
| (–) Senior Exemption Loss: | – | $0 | |
| (–) Exemption Loss: | – | $0 | |
| | | -------------------------- | |
| (=) Taxable Value: | = | $285,410 | |
Taxing Jurisdiction
| Owner: | OOSTERHUIS LYNDA DIANE | | |
| % Ownership: | 100.0000000000% | | |
| Total Value: | $285,410 | | |
| Tax Area: | 1 - OL-140-F |
| CERFD | CURRENT EXPENSE REFUND 010 | 0.0000000000 | $285,410 | $285,410 | $0.00 | | |
| CURREXP | CURRENT EXPENSE 010 | 1.0175366760 | $285,410 | $285,410 | $290.42 | | |
| HUMNSERV | HUMAN SERVICES 119 | 0.0250000000 | $285,410 | $285,410 | $7.14 | | |
| SLDREL | SOLDIERS RELIEF 121 | 0.0155990005 | $285,410 | $285,410 | $4.45 | | |
| EMERGSER | EMS 147 | 0.3792580840 | $285,410 | $285,410 | $108.24 | | |
| EMSRFD | EMS REFUND 147 | 0.0000000000 | $285,410 | $285,410 | $0.00 | | |
| PORTRFD | PORT REFUND 640 | 0.0000000000 | $285,410 | $285,410 | $0.00 | | |
| PORTWWGEN | PORT OF WW 640 | 0.2460186015 | $285,410 | $285,410 | $70.22 | | |
| SD140BOND | SD #140 BOND 764 | 0.8342371393 | $285,410 | $285,410 | $238.10 | | |
| SD140GEN | SD #140 GENERAL 760 | 2.0646500647 | $285,410 | $285,410 | $589.27 | | |
| ST2 | STATE SCHOOL PART 2 600 | 0.8131451643 | $285,410 | $285,410 | $232.08 | | |
| STATESCHL | STATE SCHOOL 600 | 1.5158548041 | $285,410 | $285,410 | $432.64 | | |
| STREFUND | STATE REFUND LEVY 603 | 0.0000000000 | $285,410 | $285,410 | $0.00 | | |
| CWWBOND | C OF WW BOND 643 | 0.2760494372 | $285,410 | $285,410 | $78.79 | | |
| CWWGEN | CITY OF WW 631 | 1.6100204973 | $285,410 | $285,410 | $459.52 | | |
| CWWRFD | CITY OF WALLA WALLA REFUND 631 | 0.0000000000 | $285,410 | $285,410 | $0.00 | | |
| | Total Tax Rate: | 8.7973694689 | | | | | |
| | | | | Taxes w/Current Exemptions: | $2,510.87 | | |
| | | | | Taxes w/o Exemptions: | $2,510.87 | | |
Improvement / Building
| Improvement #1: | RESIDENTIAL | State Code: | 11 | 858.0 sqft | Value: | $237,310 |
| Exterior Wall: | SIDING | Heating/Cooling: | WARM & COOLED AIR | | Number of Bathrooms: | 1 | Number of Bedrooms: | 2 | | Plumbing: | 6 | Roof Covering: | COMP SHINGLE |
|
| | Type | Description | Class CD | Sub Class CD | Year Built | Area |
| | MA | Main Area | 1 | 30 | 1918 | 858.0 |
| | SI1 | SITE IMPROVEMENT | 1 | 30 | 1918 | 2.0 |
| | BASE | BASEMENT | 1 | 30 | 1918 | 425.0 |
| | DTG | Detached Garage | 1 | 30 | 1918 | 192.0 |
| | WOD | Wood Deck | 1 | 30 | 1918 | 84.0 |
| | SWP | Solid Wall Porch | 1 | 30 | 1918 | 30.0 |
Sketch
Property Image
Land
| 1 | RES 1 | Converted: Residential | 0.1767 | 7696.00 | 0.00 | 0.00 | 1.00 | $48,100 | $0 |
Roll Value History
| 2026 | N/A | N/A | N/A | N/A | N/A |
| 2025 | $240,230 | $76,960 | $0 | $317,190 | $317,190 |
| 2024 | $228,790 | $76,960 | $0 | $305,750 | $305,750 |
| 2023 | $237,310 | $48,100 | $0 | $285,410 | $285,410 |
| 2022 | $206,350 | $48,100 | $0 | $254,450 | $254,450 |
| 2021 | $147,390 | $48,100 | $0 | $195,490 | $195,490 |
| 2020 | $117,920 | $48,100 | $0 | $166,020 | $166,020 |
| 2019 | $117,920 | $48,100 | $0 | $166,020 | $166,020 |
| 2018 | $112,300 | $48,100 | $0 | $160,400 | $160,400 |
| 2017 | $87,220 | $30,800 | $0 | $118,020 | $118,020 |
| 2016 | $83,070 | $30,800 | $0 | $113,870 | $113,870 |
| 2015 | $63,900 | $30,800 | $0 | $94,700 | $94,700 |
| 2014 | $63,900 | $30,800 | $0 | $94,700 | $94,700 |
| 2013 | $79,900 | $30,800 | $0 | $110,700 | $110,700 |
| 2012 | $99,000 | $30,800 | $0 | $0 | $0 |
| 2011 | $99,000 | $30,800 | $0 | $0 | $0 |
| 2010 | $92,800 | $30,800 | $0 | $0 | $0 |
| 2009 | $106,500 | $30,800 | $0 | $0 | $0 |
| 2008 | $79,000 | $30,800 | $0 | $0 | $0 |
| 2007 | $79,000 | $30,800 | $0 | $0 | $0 |
Deed and Sales History
| 1 | 03/23/2020 | SWD | STATUTORY WARRANTY DEED | GREGOIRE IAN S | OOSTERHUIS LYNDA DIANE | | | $197,500.00 | 138838 | 2020-02589 |
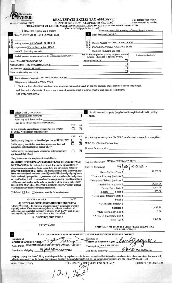
| 2 | 05/04/2012 | WARRANTY D | WARRANTY DEED | ANDERSON, LUETTA ESTATE OF | GREGOIRE, IAN S | | | $94,000.00 | 121804 | 2012-03656 |
| 3 | 01/01/1953 | WARRANTY D | WARRANTY DEED | | | | | $0.00 | 0 | 6100-38926 |
Payout Agreement
| No payout information available.. |