Property
Account |
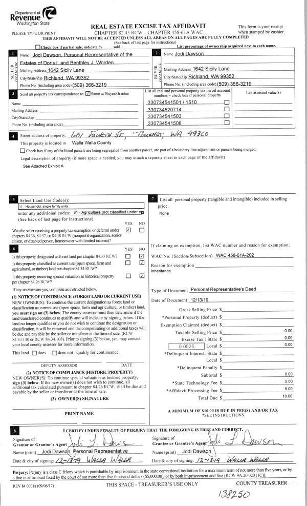
| Property ID: | 32567 | Abbreviated Legal Description: | HANSON'S PORTION LOT 3; PLUS LOT 4 BLK 15 |
| Parcel Number: | 330734541503 | Agent Code: | |
| Type: | Real | | |
| Tax Area: | 318 - 300-6-TM | Land Use Code | 81 |
| Open Space: | N | DFL | N |
| Historic Property: | N | Remodel Property: | N |
| Multi-Family Redevelopment: | N | | |
| Township: | 7 | Section: | 34 |
| Range: | 33 |
Location |
| Address: | WA 99360 | Mapsco: | |
| Neighborhood: | Touchet/Lowden Contig | Map ID: | |
| Neighborhood CD: | 213697 |
Owner |
| Name: | DAWSON RONNIE L & JODI L | Owner ID: | 10923 |
| Mailing Address: | 1642 SICILY LANE RICHLAND, WA 99352 | % Ownership: | 100.0000000000% |
| | | Exemptions: | |
Taxes and Assessment Details
Property Tax Information as of
02/21/2026
Click on "Statement Details" to expand or collapse a tax statement.
* Please enter a valid date ** Please enter a valid date *
Statement Details |
| | TOTAL: | $0.00 | $0.00 | $0.00 | $0.00 | $0.00 | $0.00 |
|
| | $0.00 | $0.00 | $0.00 | $0.00 | $0.00 | $0.00 |
Values
| (+) Improvement Homesite Value: | + | $0 | |
| (+) Improvement Non-Homesite Value: | + | $0 | |
| (+) Land Homesite Value: | + | $0 | |
| (+) Land Non-Homesite Value: | + | $9,750 | |
| (+) Curr Use (HS): | + | $0 | $0 |
| (+) Curr Use (NHS): | + | $0 | $0 |
| | | -------------------------- | |
| (=) Market Value: | = | $9,750 | |
| (–) Productivity Loss: | – | $0 | |
| | | -------------------------- | |
| (=) Subtotal: | = | $9,750 | |
| (+) Senior Appraised Value: | + | $0 | |
| (+) Non-Senior Appraised Value: | + | $9,750 | |
| | | -------------------------- | |
| (=) Total Appraised Value: | = | $9,750 | |
| (–) Senior Exemption Loss: | – | $0 | |
| (–) Exemption Loss: | – | $0 | |
| | | -------------------------- | |
| (=) Taxable Value: | = | $9,750 | |
Taxing Jurisdiction
| Owner: | DAWSON RONNIE L & JODI L | | |
| % Ownership: | 100.0000000000% | | |
| Total Value: | $9,750 | | |
| Tax Area: | 318 - 300-6-TM |
| CERFD | CURRENT EXPENSE REFUND 010 | 0.0000000000 | $9,750 | $9,750 | $0.00 | | |
| CURREXP | CURRENT EXPENSE 010 | 1.0175366760 | $9,750 | $9,750 | $9.92 | | |
| HUMNSERV | HUMAN SERVICES 119 | 0.0250000000 | $9,750 | $9,750 | $0.24 | | |
| SLDREL | SOLDIERS RELIEF 121 | 0.0155990005 | $9,750 | $9,750 | $0.15 | | |
| EMERGSER | EMS 147 | 0.3792580840 | $9,750 | $9,750 | $3.70 | | |
| EMSRFD | EMS REFUND 147 | 0.0000000000 | $9,750 | $9,750 | $0.00 | | |
| FD6EXP | FD #6 EXPENSE 693 | 0.6692985746 | $9,750 | $9,750 | $6.53 | | |
| RLBRFD | RURAL LIBRARY REFUND 623 | 0.0000000000 | $9,750 | $9,750 | $0.00 | | |
| RURALLIB | RURAL LIBRARY 623 | 0.3710609029 | $9,750 | $9,750 | $3.62 | | |
| PORTRFD | PORT REFUND 640 | 0.0000000000 | $9,750 | $9,750 | $0.00 | | |
| PORTWWGEN | PORT OF WW 640 | 0.2460186015 | $9,750 | $9,750 | $2.40 | | |
| SD300BOND | SD #300 BOND 783 | 1.8964951620 | $9,750 | $9,750 | $18.49 | | |
| SD300GEN | SD #300 GENERAL 780 | 2.1198322866 | $9,750 | $9,750 | $20.67 | | |
| ST2 | STATE SCHOOL PART 2 600 | 0.8131451643 | $9,750 | $9,750 | $7.93 | | |
| STATESCHL | STATE SCHOOL 600 | 1.5158548041 | $9,750 | $9,750 | $14.78 | | |
| STREFUND | STATE REFUND LEVY 603 | 0.0000000000 | $9,750 | $9,750 | $0.00 | | |
| COROAD | COUNTY ROAD 115 | 1.6549953990 | $9,750 | $9,750 | $16.14 | | |
| CRPRD | COUNTY ROAD REFUND 115 | 0.0000000000 | $9,750 | $9,750 | $0.00 | | |
| | Total Tax Rate: | 10.7240946555 | | | | | |
| | | | | Taxes w/Current Exemptions: | $104.57 | | |
| | | | | Taxes w/o Exemptions: | $104.57 | | |
Improvement / Building
Sketch
| No sketches available for this property. |
Property Image
Land
| 1 | RES 1 | Converted: Residential | 3.2000 | 139392.00 | 0.00 | 0.00 | 1.00 | $9,750 | $0 |
Roll Value History
| 2026 | N/A | N/A | N/A | N/A | N/A |
| 2025 | $0 | $9,750 | $0 | $9,750 | $9,750 |
| 2024 | $0 | $9,750 | $0 | $9,750 | $9,750 |
| 2023 | $0 | $9,750 | $0 | $9,750 | $9,750 |
| 2022 | $0 | $9,750 | $0 | $9,750 | $9,750 |
| 2021 | $0 | $9,750 | $0 | $9,750 | $9,750 |
| 2020 | $0 | $10,700 | $0 | $10,700 | $10,700 |
| 2019 | $0 | $10,700 | $0 | $10,700 | $10,700 |
| 2018 | $0 | $10,700 | $0 | $10,700 | $10,700 |
| 2017 | $0 | $10,700 | $0 | $10,700 | $10,700 |
| 2016 | $0 | $10,700 | $0 | $10,700 | $10,700 |
| 2015 | $0 | $10,700 | $0 | $10,700 | $10,700 |
| 2014 | $0 | $10,700 | $0 | $10,700 | $10,700 |
| 2013 | $0 | $10,700 | $0 | $10,700 | $10,700 |
| 2012 | $0 | $10,700 | $0 | $0 | $0 |
| 2011 | $0 | $8,300 | $0 | $0 | $0 |
| 2010 | $0 | $8,300 | $0 | $0 | $0 |
| 2009 | $0 | $8,300 | $0 | $0 | $0 |
| 2008 | $0 | $7,400 | $0 | $0 | $0 |
| 2007 | $0 | $7,400 | $0 | $0 | $0 |
Deed and Sales History
| 1 | 02/07/2020 | QCD | QUIT CLAIM DEED | DAWSON JODI | DAWSON RONNIE L & JODI L | | | $0.00 | 138571 | 2020-01144 |
| 2 | 12/13/2019 | DPR | DEED OF PERSONAL REPRESENTATIVE | WORDEN BENTHLEY J & DORIS I | DAWSON JODI | | | $0.00 | 138250 | 2019-10365 |
| 3 | 11/07/1973 | WARRANTY D | WARRANTY DEED | | | | | $3,500.00 | 0 | 4905-58602 |
|   | |
| 4 | 03/22/1957 | BARGAIN & | BARGAIN & SALE DEED | | | 283 | 314 | | 0 | 399766 |
| 5 | 12/29/1949 | WARRANTY D | WARRANTY DEED | | | 247 | 114 | | 0 | 329585 |
Payout Agreement
| No payout information available.. |