Property
Account |
| Property ID: | 32550 | Abbreviated Legal Description: | BLALOCK ORCHARDS N1/2 LOT 14 BLK 9 |
| Parcel Number: | 350726520925 | Agent Code: | |
| Type: | Real | | |
| Tax Area: | 311 - 250-4 | Land Use Code | 11 |
| Open Space: | N | DFL | N |
| Historic Property: | N | Remodel Property: | N |
| Multi-Family Redevelopment: | N | | |
| Township: | 7 | Section: | 26 |
| Range: | 35 |
Location |
| Address: | 280 S CAMPBELL RD WA 99362 | Mapsco: | |
| Neighborhood: | MH A Rural/City Infl | Map ID: | |
| Neighborhood CD: | 313062 |
Owner |
| Name: | BINDER SCOTT & ROSE M | Owner ID: | 50453 |
| Mailing Address: | 280 S CAMPBELL RD WALLA WALLA, WA 99362 | % Ownership: | 100.0000000000% |
| | | Exemptions: | |
Taxes and Assessment Details
Values
| (+) Improvement Homesite Value: | + | $0 | |
| (+) Improvement Non-Homesite Value: | + | $238,250 | |
| (+) Land Homesite Value: | + | $0 | |
| (+) Land Non-Homesite Value: | + | $130,810 | |
| (+) Curr Use (HS): | + | $0 | $0 |
| (+) Curr Use (NHS): | + | $0 | $0 |
| | | -------------------------- | |
| (=) Market Value: | = | $369,060 | |
| (–) Productivity Loss: | – | $0 | |
| | | -------------------------- | |
| (=) Subtotal: | = | $369,060 | |
| (+) Senior Appraised Value: | + | $0 | |
| (+) Non-Senior Appraised Value: | + | $369,060 | |
| | | -------------------------- | |
| (=) Total Appraised Value: | = | $369,060 | |
| (–) Senior Exemption Loss: | – | $0 | |
| (–) Exemption Loss: | – | $0 | |
| | | -------------------------- | |
| (=) Taxable Value: | = | $369,060 | |
Taxing Jurisdiction
| Owner: | BINDER SCOTT & ROSE M | | |
| % Ownership: | 100.0000000000% | | |
| Total Value: | $369,060 | | |
| Tax Area: | 311 - 250-4 |
| CERFD | CURRENT EXPENSE REFUND 010 | 0.0000000000 | $369,060 | $369,060 | $0.00 | | |
| CURREXP | CURRENT EXPENSE 010 | 1.0175366760 | $369,060 | $369,060 | $375.53 | | |
| HUMNSERV | HUMAN SERVICES 119 | 0.0250000000 | $369,060 | $369,060 | $9.23 | | |
| SLDREL | SOLDIERS RELIEF 121 | 0.0155990005 | $369,060 | $369,060 | $5.76 | | |
| EMERGSER | EMS 147 | 0.3792580840 | $369,060 | $369,060 | $139.97 | | |
| EMSRFD | EMS REFUND 147 | 0.0000000000 | $369,060 | $369,060 | $0.00 | | |
| FD4EXP | FD #4 EXPENSE 686 | 0.8836993059 | $369,060 | $369,060 | $326.14 | | |
| RLBRFD | RURAL LIBRARY REFUND 623 | 0.0000000000 | $369,060 | $369,060 | $0.00 | | |
| RURALLIB | RURAL LIBRARY 623 | 0.3710609029 | $369,060 | $369,060 | $136.94 | | |
| PORTRFD | PORT REFUND 640 | 0.0000000000 | $369,060 | $369,060 | $0.00 | | |
| PORTWWGEN | PORT OF WW 640 | 0.2460186015 | $369,060 | $369,060 | $90.80 | | |
| SD250BOND | SD #250 BOND 773 | 1.4560608159 | $369,060 | $369,060 | $537.37 | | |
| SD250GEN | SD #250 GENERAL 770 | 2.3880724087 | $369,060 | $369,060 | $881.34 | | |
| ST2 | STATE SCHOOL PART 2 600 | 0.8131451643 | $369,060 | $369,060 | $300.10 | | |
| STATESCHL | STATE SCHOOL 600 | 1.5158548041 | $369,060 | $369,060 | $559.44 | | |
| STREFUND | STATE REFUND LEVY 603 | 0.0000000000 | $369,060 | $369,060 | $0.00 | | |
| COROAD | COUNTY ROAD 115 | 1.6549953990 | $369,060 | $369,060 | $610.79 | | |
| CRPRD | COUNTY ROAD REFUND 115 | 0.0000000000 | $369,060 | $369,060 | $0.00 | | |
| | Total Tax Rate: | 10.7663011628 | | | | | |
| | | | | Taxes w/Current Exemptions: | $3,973.41 | | |
| | | | | Taxes w/o Exemptions: | $3,973.41 | | |
Improvement / Building
| Improvement #1: | RESIDENTIAL | State Code: | 11 | 0.0 sqft | Value: | $137,260 |
| | Type | Description | Class CD | Sub Class CD | Year Built | Area |
| | FIXT | AVERAGE FIXTURE | 1 | 30 | 2012 | 5.0 |
| | POL3 | POLE BUILDING-CON,ELEC,INSU | 1 | 30 | 2012 | 2800.0 |
| | SI1 | SITE IMPROVEMENT | 1 | 30 | 0 | 1.0 |
| | FBAT | FULL BATH | 1 | 30 | 0 | 1.0 |
| | APP | APPLIANCE ALLOWANCE | 1 | 30 | 0 | 1.0 |
| | GIF | GARAGE INTERIOR FINISH | 1 | 30 | 0 | 1400.0 |
| | POL2 | POLE BUILDING-CONCRETE | 1 | 30 | 2012 | 1472.0 |
| Improvement #2: | RESIDENTIAL | State Code: | 15 | 1440.0 sqft | Value: | $100,990 |
| Exterior Wall: | PLYWOOD | Heating/Cooling: | HEAT PUMP | | Number of Bathrooms: | 2 | Number of Bedrooms: | 3 | | Plumbing: | 12 | Roof Covering: | COMP SHINGLE |
|
| | Type | Description | Class CD | Sub Class CD | Year Built | Area |
| | MOBHOME | MANUFACTURD HOMES | MH30 | 30 | 2013 | 1440.0 |
| | RCD | WOOD DECK W/ROOF, CEILED | 1 | 30 | 2013 | 240.0 |
| | MI1 | MH SET-UP COSTS | 1 | 30 | 2013 | 1.0 |
| | UTST | Utility Storage Shed | 1 | 30 | 2013 | 192.0 |
| | OSP | Open | 1 | 30 | 2013 | 48.0 |
Sketch
Property Image
Land
| 1 | RES 1 | Converted: Residential | 1.0300 | 44986.00 | 0.00 | 0.00 | 1.00 | $130,810 | $0 |
Roll Value History
| 2026 | N/A | N/A | N/A | N/A | N/A |
| 2025 | $526,910 | $130,810 | $0 | $657,720 | $657,720 |
| 2024 | $479,010 | $130,810 | $0 | $609,820 | $609,820 |
| 2023 | $238,250 | $130,810 | $0 | $369,060 | $369,060 |
| 2022 | $238,250 | $130,810 | $0 | $369,060 | $369,060 |
| 2021 | $248,920 | $75,200 | $0 | $324,120 | $324,120 |
| 2020 | $226,290 | $75,200 | $0 | $301,490 | $301,490 |
| 2019 | $226,290 | $75,200 | $0 | $301,490 | $301,490 |
| 2018 | $103,980 | $75,200 | $0 | $179,180 | $179,180 |
| 2017 | $99,030 | $75,200 | $0 | $174,230 | $174,230 |
| 2016 | $69,800 | $75,200 | $0 | $145,000 | $145,000 |
| 2015 | $60,800 | $75,200 | $0 | $136,000 | $136,000 |
| 2014 | $60,800 | $75,200 | $0 | $136,000 | $136,000 |
| 2013 | $60,800 | $75,200 | $0 | $136,000 | $136,000 |
| 2012 | $0 | $8,200 | $0 | $0 | $0 |
| 2011 | $0 | $8,200 | $0 | $0 | $0 |
| 2010 | $0 | $8,200 | $0 | $0 | $0 |
| 2009 | $0 | $4,100 | $0 | $0 | $0 |
| 2008 | $0 | $4,100 | $0 | $0 | $0 |
| 2007 | $0 | $4,100 | $0 | $0 | $0 |
Deed and Sales History
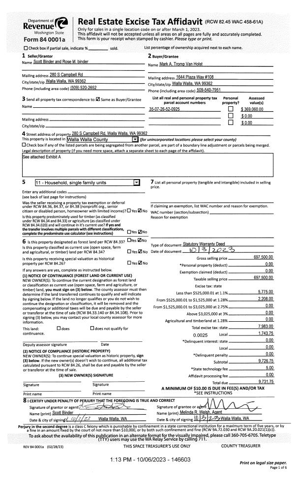
| 1 | 10/06/2023 | SWD | STATUTORY WARRANTY DEED | BINDER SCOTT & ROSE M | TROMP VAN HOLST MARK A | | | $697,500.00 | 146603 | 2023-05898 |
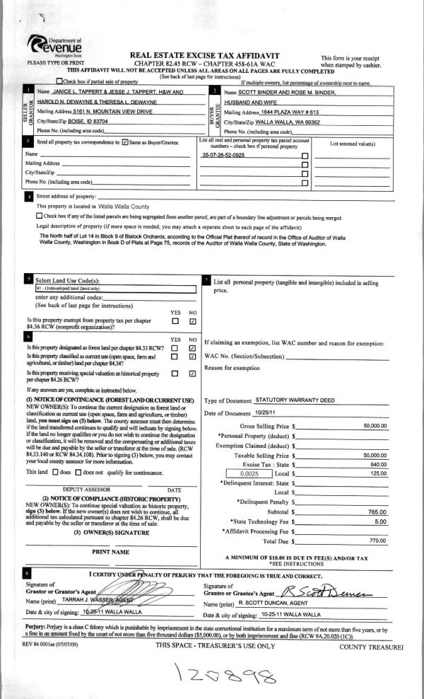
| 2 | 10/31/2011 | WARRANTY D | WARRANTY DEED | TAPPERT, JANICE L ET AL | BINDER, SCOTT & ROSE M | | | $50,000.00 | 120898 | 2011-08548 |
| 3 | 05/23/2011 | WARRANTY D | WARRANTY DEED | DEWAYNE, BUCKLEIGH E JR ESTATE | JANICE L & JESSE J TAPPERT | | | | 120177 | 2011-04038 |
| 4 | 01/11/1985 | QCD | QUIT CLAIM DEED | | | | | $0.00 | 0 | 1478-500281 |
Payout Agreement
| No payout information available.. |