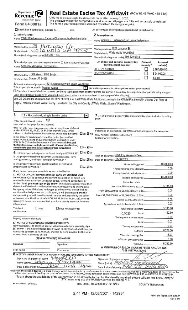
| 1 | 11/30/2021 | SWD | STATUTORY WARRANTY DEED | CHERKASOV VITALIY & TATYANA | UNDERWOOD ANDREW J | | 2-PARCELS | $465,000.00 | 142984 | 2021-14241 |
|   | |
| 2 | 06/26/2019 | SWD | STATUTORY WARRANTY DEED | MARTINEZ JORGE A | CHERKASOV VITALIY & TATYANA | | 2-PARCELS | $269,000.00 | 137158 | 2019-04536 |
|   | |
| 3 | 03/20/2017 | QCD | QUIT CLAIM DEED | LANNING THOMAS M & JOANNA R | MARTINEZ JORGE A | | | $0.00 | 132098 | 2017-02266 |
| 4 | 03/20/2017 | QCD | QUIT CLAIM DEED | LANNING MARCI JO M | MARTINEZ JORGE A | | | $0.00 | 132099 | 2017-02267 |
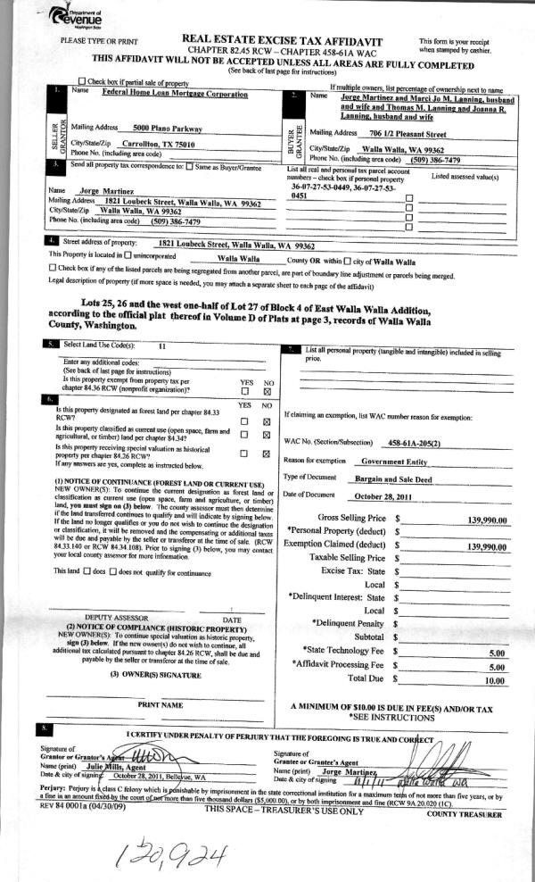
| 5 | 11/04/2011 | WARRANTY D | WARRANTY DEED | FEDERAL HOME LOAN MORTGAGE CORP | MARTINEZ JORGE & MARCI JO M LANNING | | | $139,990.00 | 120924 | 2011-08636 |
|   | |
| 6 | 04/05/2011 | WARRANTY D | WARRANTY DEED | NORTHWEST TRUSTEE SERVICES INC | FEDERAL HOME LOAN MORTGAGE COR | | | $174,591.00 | 119977 | 2011-02868 |
|   | |
| 7 | 06/11/2004 | WARRANTY D | WARRANTY DEED | MERRELL PHILIP D & DEBBIE T | HARDING GERALD & TAMALA | | | $162,500.00 | 104994 | 2004-06446 |
|   | |
| 8 | 08/14/1998 | WARRANTY D | WARRANTY DEED | | | | | $128,000.00 | 91043 | 2719-809238 |
|   | |