Property
Account |
| Property ID: | 32538 | Abbreviated Legal Description: | LOT 7 BLK 2 COUNTRY CLUB ESTATES LESS STRIP ON E. |
| Parcel Number: | 360731500212 | Agent Code: | |
| Type: | Real | | |
| Tax Area: | 101 - 140-4 | Land Use Code | 11 |
| Open Space: | N | DFL | N |
| Historic Property: | N | Remodel Property: | N |
| Multi-Family Redevelopment: | N | | |
| Township: | 7 | Section: | 31 |
| Range: | 36 |
Location |
| Address: | 1366 BARLEEN DR WA 99362 | Mapsco: | |
| Neighborhood: | G SFR Rural/City Inf | Map ID: | |
| Neighborhood CD: | 114012 |
Owner |
| Name: | HANEY STACIE | Owner ID: | 64377 |
| Mailing Address: | 1366 BARLEEN DR WALLA WALLA, WA 99362 | % Ownership: | 100.0000000000% |
| | | Exemptions: | |
Taxes and Assessment Details
Property Tax Information as of
02/21/2026
Click on "Statement Details" to expand or collapse a tax statement.
* Please enter a valid date ** Please enter a valid date *
Statement Details |
| | TOTAL: | $0.00 | $0.00 | $0.00 | $0.00 | $0.00 | $0.00 |
|
| | $0.00 | $0.00 | $0.00 | $0.00 | $0.00 | $0.00 |
Values
| (+) Improvement Homesite Value: | + | $0 | |
| (+) Improvement Non-Homesite Value: | + | $152,260 | |
| (+) Land Homesite Value: | + | $0 | |
| (+) Land Non-Homesite Value: | + | $104,140 | |
| (+) Curr Use (HS): | + | $0 | $0 |
| (+) Curr Use (NHS): | + | $0 | $0 |
| | | -------------------------- | |
| (=) Market Value: | = | $256,400 | |
| (–) Productivity Loss: | – | $0 | |
| | | -------------------------- | |
| (=) Subtotal: | = | $256,400 | |
| (+) Senior Appraised Value: | + | $0 | |
| (+) Non-Senior Appraised Value: | + | $256,400 | |
| | | -------------------------- | |
| (=) Total Appraised Value: | = | $256,400 | |
| (–) Senior Exemption Loss: | – | $0 | |
| (–) Exemption Loss: | – | $0 | |
| | | -------------------------- | |
| (=) Taxable Value: | = | $256,400 | |
Taxing Jurisdiction
| Owner: | HANEY STACIE | | |
| % Ownership: | 100.0000000000% | | |
| Total Value: | $256,400 | | |
| Tax Area: | 101 - 140-4 |
| CERFD | CURRENT EXPENSE REFUND 010 | 0.0000000000 | $256,400 | $256,400 | $0.00 | | |
| CURREXP | CURRENT EXPENSE 010 | 1.0175366760 | $256,400 | $256,400 | $260.90 | | |
| HUMNSERV | HUMAN SERVICES 119 | 0.0250000000 | $256,400 | $256,400 | $6.41 | | |
| SLDREL | SOLDIERS RELIEF 121 | 0.0155990005 | $256,400 | $256,400 | $4.00 | | |
| EMERGSER | EMS 147 | 0.3792580840 | $256,400 | $256,400 | $97.24 | | |
| EMSRFD | EMS REFUND 147 | 0.0000000000 | $256,400 | $256,400 | $0.00 | | |
| FD4EXP | FD #4 EXPENSE 686 | 0.8836993059 | $256,400 | $256,400 | $226.58 | | |
| RLBRFD | RURAL LIBRARY REFUND 623 | 0.0000000000 | $256,400 | $256,400 | $0.00 | | |
| RURALLIB | RURAL LIBRARY 623 | 0.3710609029 | $256,400 | $256,400 | $95.14 | | |
| PORTRFD | PORT REFUND 640 | 0.0000000000 | $256,400 | $256,400 | $0.00 | | |
| PORTWWGEN | PORT OF WW 640 | 0.2460186015 | $256,400 | $256,400 | $63.08 | | |
| SD140BOND | SD #140 BOND 764 | 0.8342371393 | $256,400 | $256,400 | $213.90 | | |
| SD140GEN | SD #140 GENERAL 760 | 2.0646500647 | $256,400 | $256,400 | $529.38 | | |
| ST2 | STATE SCHOOL PART 2 600 | 0.8131451643 | $256,400 | $256,400 | $208.49 | | |
| STATESCHL | STATE SCHOOL 600 | 1.5158548041 | $256,400 | $256,400 | $388.67 | | |
| STREFUND | STATE REFUND LEVY 603 | 0.0000000000 | $256,400 | $256,400 | $0.00 | | |
| COROAD | COUNTY ROAD 115 | 1.6549953990 | $256,400 | $256,400 | $424.34 | | |
| CRPRD | COUNTY ROAD REFUND 115 | 0.0000000000 | $256,400 | $256,400 | $0.00 | | |
| | Total Tax Rate: | 9.8210551422 | | | | | |
| | | | | Taxes w/Current Exemptions: | $2,518.13 | | |
| | | | | Taxes w/o Exemptions: | $2,518.13 | | |
Improvement / Building
| Improvement #1: | RESIDENTIAL | State Code: | 11 | 1162.0 sqft | Value: | $152,260 |
| Exterior Wall: | VINYL | Heating/Cooling: | HEAT PUMP | | Number of Bathrooms: | 2 | Number of Bedrooms: | 3 | | Plumbing: | 9 | Roof Covering: | COMP SHINGLE |
|
| | Type | Description | Class CD | Sub Class CD | Year Built | Area |
| | MA | Main Area | 1 | 30 | 1965 | 1162.0 |
| | SI1 | SITE IMPROVEMENT | 1 | 30 | 0 | 1.5 |
| | ATG | Attached Garage | 1 | 30 | 0 | 497.0 |
| | WOD | Wood Deck | 1 | 30 | 0 | 120.0 |
| | S1F | Single One Story Fireplace | 1 | 30 | 0 | 1.0 |
| | RPO | OPEN PORCH W/ROOF | 1 | 30 | 0 | 92.0 |
Sketch
Property Image
Land
| 1 | RES 1 | Converted: Residential | 0.4528 | 19723.00 | 0.00 | 0.00 | 1.00 | $104,140 | $0 |
Roll Value History
| 2026 | N/A | N/A | N/A | N/A | N/A |
| 2025 | $121,810 | $152,850 | $0 | $274,660 | $274,660 |
| 2024 | $152,260 | $104,140 | $0 | $256,400 | $256,400 |
| 2023 | $152,260 | $104,140 | $0 | $256,400 | $256,400 |
| 2022 | $152,260 | $104,140 | $0 | $256,400 | $256,400 |
| 2021 | $117,120 | $104,140 | $0 | $221,260 | $221,260 |
| 2020 | $78,080 | $104,140 | $0 | $182,220 | $182,220 |
| 2019 | $117,220 | $65,000 | $0 | $182,220 | $182,220 |
| 2018 | $97,680 | $65,000 | $0 | $162,680 | $162,680 |
| 2017 | $93,030 | $65,000 | $0 | $158,030 | $158,030 |
| 2016 | $88,600 | $65,000 | $0 | $153,600 | $153,600 |
| 2015 | $88,600 | $65,000 | $0 | $153,600 | $153,600 |
| 2014 | $88,600 | $65,000 | $0 | $153,600 | $153,600 |
| 2013 | $88,600 | $65,000 | $0 | $153,600 | $153,600 |
| 2012 | $88,600 | $65,000 | $0 | $0 | $0 |
| 2011 | $88,600 | $65,000 | $0 | $0 | $0 |
| 2010 | $88,600 | $65,000 | $0 | $0 | $0 |
| 2009 | $105,700 | $65,000 | $0 | $0 | $0 |
| 2008 | $92,600 | $40,000 | $0 | $0 | $0 |
| 2007 | $92,600 | $40,000 | $0 | $0 | $0 |
Deed and Sales History
| 1 | 12/31/2018 | QCD | QUIT CLAIM DEED | HANEY RICHARD & JEANNE | HANEY STACIE | | | $0.00 | 136219 | 2019-00085 |
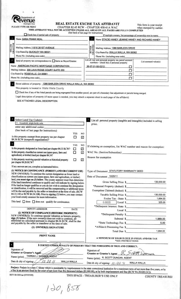
| 2 | 10/21/2011 | WARRANTY D | WARRANTY DEED | NEAL, SARAH FRANK | HANEY, RICHARD & JEANNE | | | $130,000.00 | 120858 | 2011-08258 |
| 3 | 11/01/1964 | QCD | QUIT CLAIM DEED | | | | | $0.00 | 0 | 3120-462015 |
Payout Agreement
| No payout information available.. |