Property
Account |
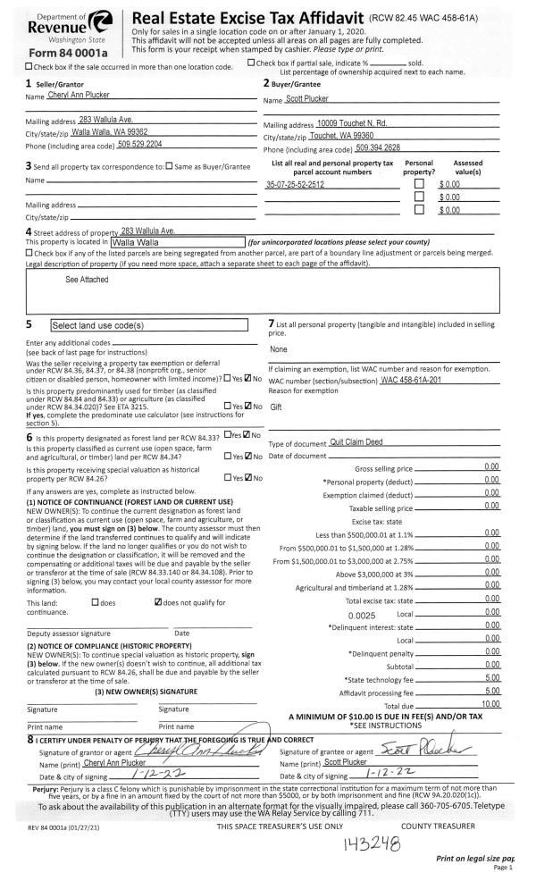
| Property ID: | 32521 | Abbreviated Legal Description: | BLALOCK ORCHARDS TAX 2 LOT 5 BLK 25 |
| Parcel Number: | 350725522512 | Agent Code: | |
| Type: | Real | | |
| Tax Area: | 311 - 250-4 | Land Use Code | 11 |
| Open Space: | N | DFL | N |
| Historic Property: | N | Remodel Property: | N |
| Multi-Family Redevelopment: | N | | |
| Township: | 7 | Section: | 25 |
| Range: | 35 |
Location |
| Address: | 283 WALLULA AVE WA 99324 | Mapsco: | |
| Neighborhood: | A SFR Rural/City Infl | Map ID: | |
| Neighborhood CD: | 313012 |
Owner |
| Name: | PLUCKER SCOTT | Owner ID: | 50340 |
| Mailing Address: | 10009 TOUCHET N RD TOUCHET, WA 99360 | % Ownership: | 100.0000000000% |
| | | Exemptions: | |
Taxes and Assessment Details
Property Tax Information as of
02/21/2026
Click on "Statement Details" to expand or collapse a tax statement.
* Please enter a valid date ** Please enter a valid date *
Statement Details |
| | TOTAL: | $0.00 | $0.00 | $0.00 | $0.00 | $0.00 | $0.00 |
|
| | $0.00 | $0.00 | $0.00 | $0.00 | $0.00 | $0.00 |
Values
| (+) Improvement Homesite Value: | + | $238,850 | |
| (+) Improvement Non-Homesite Value: | + | $0 | |
| (+) Land Homesite Value: | + | $83,950 | |
| (+) Land Non-Homesite Value: | + | $0 | |
| (+) Curr Use (HS): | + | $0 | $0 |
| (+) Curr Use (NHS): | + | $0 | $0 |
| | | -------------------------- | |
| (=) Market Value: | = | $322,800 | |
| (–) Productivity Loss: | – | $0 | |
| | | -------------------------- | |
| (=) Subtotal: | = | $322,800 | |
| (+) Senior Appraised Value: | + | $0 | |
| (+) Non-Senior Appraised Value: | + | $322,800 | |
| | | -------------------------- | |
| (=) Total Appraised Value: | = | $322,800 | |
| (–) Senior Exemption Loss: | – | $0 | |
| (–) Exemption Loss: | – | $0 | |
| | | -------------------------- | |
| (=) Taxable Value: | = | $322,800 | |
Taxing Jurisdiction
| Owner: | PLUCKER SCOTT | | |
| % Ownership: | 100.0000000000% | | |
| Total Value: | $322,800 | | |
| Tax Area: | 311 - 250-4 |
| CERFD | CURRENT EXPENSE REFUND 010 | 0.0000000000 | $322,800 | $322,800 | $0.00 | | |
| CURREXP | CURRENT EXPENSE 010 | 1.0175366760 | $322,800 | $322,800 | $328.46 | | |
| HUMNSERV | HUMAN SERVICES 119 | 0.0250000000 | $322,800 | $322,800 | $8.07 | | |
| SLDREL | SOLDIERS RELIEF 121 | 0.0155990005 | $322,800 | $322,800 | $5.04 | | |
| EMERGSER | EMS 147 | 0.3792580840 | $322,800 | $322,800 | $122.42 | | |
| EMSRFD | EMS REFUND 147 | 0.0000000000 | $322,800 | $322,800 | $0.00 | | |
| FD4EXP | FD #4 EXPENSE 686 | 0.8836993059 | $322,800 | $322,800 | $285.26 | | |
| RLBRFD | RURAL LIBRARY REFUND 623 | 0.0000000000 | $322,800 | $322,800 | $0.00 | | |
| RURALLIB | RURAL LIBRARY 623 | 0.3710609029 | $322,800 | $322,800 | $119.78 | | |
| PORTRFD | PORT REFUND 640 | 0.0000000000 | $322,800 | $322,800 | $0.00 | | |
| PORTWWGEN | PORT OF WW 640 | 0.2460186015 | $322,800 | $322,800 | $79.41 | | |
| SD250BOND | SD #250 BOND 773 | 1.4560608159 | $322,800 | $322,800 | $470.02 | | |
| SD250GEN | SD #250 GENERAL 770 | 2.3880724087 | $322,800 | $322,800 | $770.87 | | |
| ST2 | STATE SCHOOL PART 2 600 | 0.8131451643 | $322,800 | $322,800 | $262.48 | | |
| STATESCHL | STATE SCHOOL 600 | 1.5158548041 | $322,800 | $322,800 | $489.32 | | |
| STREFUND | STATE REFUND LEVY 603 | 0.0000000000 | $322,800 | $322,800 | $0.00 | | |
| COROAD | COUNTY ROAD 115 | 1.6549953990 | $322,800 | $322,800 | $534.23 | | |
| CRPRD | COUNTY ROAD REFUND 115 | 0.0000000000 | $322,800 | $322,800 | $0.00 | | |
| | Total Tax Rate: | 10.7663011628 | | | | | |
| | | | | Taxes w/Current Exemptions: | $3,475.36 | | |
| | | | | Taxes w/o Exemptions: | $3,475.36 | | |
Improvement / Building
| Improvement #1: | RESIDENTIAL | State Code: | 11 | 1722.0 sqft | Value: | $238,850 |
| Exterior Wall: | SIDING | Heating/Cooling: | FORCED AIR | | Number of Bathrooms: | 2 | Number of Bedrooms: | 3 | | Plumbing: | 9 | Roof Covering: | COMP SHINGLE |
|
| | Type | Description | Class CD | Sub Class CD | Year Built | Area |
| | MA | Main Area | 1 | 30 | 1949 | 1722.0 |
| | SI1 | SITE IMPROVEMENT | 1 | 30 | 0 | 1.5 |
| | ATG | Attached Garage | 1 | 30 | 1949 | 308.0 |
| | S1F | Single One Story Fireplace | 1 | 30 | 1949 | 1.0 |
| | CPC | COVERED CARPORT/PATIO | 1 | 30 | 1949 | 264.0 |
| | DTG | Detached Garage | 1 | 30 | 1949 | 400.0 |
| | RPO | OPEN PORCH W/ROOF | 1 | 30 | 1949 | 20.0 |
Sketch
Property Image
Land
| 1 | RES 1 | Converted: Residential | 0.4400 | 19166.00 | 0.00 | 0.00 | 1.00 | $83,950 | $0 |
Roll Value History
| 2026 | N/A | N/A | N/A | N/A | N/A |
| 2025 | $286,630 | $83,950 | $0 | $370,580 | $370,580 |
| 2024 | $238,850 | $83,950 | $0 | $322,800 | $322,800 |
| 2023 | $238,850 | $83,950 | $0 | $322,800 | $322,800 |
| 2022 | $217,140 | $83,950 | $0 | $301,090 | $301,090 |
| 2021 | $175,220 | $54,900 | $0 | $230,120 | $230,120 |
| 2020 | $175,220 | $54,900 | $0 | $230,120 | $230,120 |
| 2019 | $175,220 | $54,900 | $0 | $230,120 | $230,120 |
| 2018 | $175,220 | $54,900 | $0 | $230,120 | $230,120 |
| 2017 | $146,010 | $54,900 | $0 | $200,910 | $200,910 |
| 2016 | $139,060 | $54,900 | $0 | $193,960 | $193,960 |
| 2015 | $124,320 | $54,900 | $0 | $179,220 | $179,220 |
| 2014 | $118,400 | $54,900 | $0 | $173,300 | $173,300 |
| 2013 | $118,400 | $54,900 | $0 | $173,300 | $52,400 |
| 2012 | $76,100 | $54,900 | $0 | $0 | $0 |
| 2011 | $99,200 | $54,900 | $0 | $0 | $0 |
| 2010 | $125,800 | $54,900 | $0 | $0 | $0 |
| 2009 | $167,900 | $32,900 | $0 | $0 | $0 |
| 2008 | $92,600 | $32,900 | $0 | $0 | $0 |
| 2007 | $92,600 | $32,900 | $0 | $0 | $0 |
Deed and Sales History
| 1 | 01/13/2022 | QCD | QUIT CLAIM DEED | PLUCKER CHERYL ANN LIFE ESTATE | PLUCKER SCOTT | | | $0.00 | 143248 | 2022-00456 |
| 2 | 10/07/2011 | WARRANTY D | WARRANTY DEED | PLUCKER, WARREN & DOROTHY ESTA | PLUCKER, CHERYL ANN LIFE ESTAT | | | | 120795 | 2011-07881 |
| 3 | 05/18/1970 | WARRANTY D | WARRANTY DEED | | | | | $16,667.00 | 31454 | 2790-390886 |
Payout Agreement
| No payout information available.. |