Property
Account |
| Property ID: | 32502 | Abbreviated Legal Description: | THE VILLAGE LOT 25 |
| Parcel Number: | 360731540025 | Agent Code: | |
| Type: | Real | | |
| Tax Area: | 1 - OL-140-F | Land Use Code | 11 |
| Open Space: | N | DFL | N |
| Historic Property: | N | Remodel Property: | N |
| Multi-Family Redevelopment: | N | | |
| Township: | 7 | Section: | 31 |
| Range: | 36 |
Location |
| Address: | 785 VILLAGE WAY WA 99362 | Mapsco: | |
| Neighborhood: | VG SFR | Map ID: | |
| Neighborhood CD: | 115011 |
Owner |
| Name: | BLACKBURN SUSAN | Owner ID: | 60598 |
| Mailing Address: | 785 VILLAGE WAY WALLA WALLA, WA 99362 | % Ownership: | 100.0000000000% |
| | | Exemptions: | |
Taxes and Assessment Details
Values
| (+) Improvement Homesite Value: | + | $0 | |
| (+) Improvement Non-Homesite Value: | + | $740,640 | |
| (+) Land Homesite Value: | + | $0 | |
| (+) Land Non-Homesite Value: | + | $100,000 | |
| (+) Curr Use (HS): | + | $0 | $0 |
| (+) Curr Use (NHS): | + | $0 | $0 |
| | | -------------------------- | |
| (=) Market Value: | = | $840,640 | |
| (–) Productivity Loss: | – | $0 | |
| | | -------------------------- | |
| (=) Subtotal: | = | $840,640 | |
| (+) Senior Appraised Value: | + | $0 | |
| (+) Non-Senior Appraised Value: | + | $840,640 | |
| | | -------------------------- | |
| (=) Total Appraised Value: | = | $840,640 | |
| (–) Senior Exemption Loss: | – | $0 | |
| (–) Exemption Loss: | – | $0 | |
| | | -------------------------- | |
| (=) Taxable Value: | = | $840,640 | |
Taxing Jurisdiction
| Owner: | BLACKBURN SUSAN | | |
| % Ownership: | 100.0000000000% | | |
| Total Value: | $840,640 | | |
| Tax Area: | 1 - OL-140-F |
| CERFD | CURRENT EXPENSE REFUND 010 | 0.0000000000 | $840,640 | $840,640 | $0.00 | | |
| CURREXP | CURRENT EXPENSE 010 | 1.0175366760 | $840,640 | $840,640 | $855.38 | | |
| HUMNSERV | HUMAN SERVICES 119 | 0.0250000000 | $840,640 | $840,640 | $21.02 | | |
| SLDREL | SOLDIERS RELIEF 121 | 0.0155990005 | $840,640 | $840,640 | $13.11 | | |
| EMERGSER | EMS 147 | 0.3792580840 | $840,640 | $840,640 | $318.82 | | |
| EMSRFD | EMS REFUND 147 | 0.0000000000 | $840,640 | $840,640 | $0.00 | | |
| PORTRFD | PORT REFUND 640 | 0.0000000000 | $840,640 | $840,640 | $0.00 | | |
| PORTWWGEN | PORT OF WW 640 | 0.2460186015 | $840,640 | $840,640 | $206.81 | | |
| SD140BOND | SD #140 BOND 764 | 0.8342371393 | $840,640 | $840,640 | $701.29 | | |
| SD140GEN | SD #140 GENERAL 760 | 2.0646500647 | $840,640 | $840,640 | $1,735.63 | | |
| ST2 | STATE SCHOOL PART 2 600 | 0.8131451643 | $840,640 | $840,640 | $683.56 | | |
| STATESCHL | STATE SCHOOL 600 | 1.5158548041 | $840,640 | $840,640 | $1,274.29 | | |
| STREFUND | STATE REFUND LEVY 603 | 0.0000000000 | $840,640 | $840,640 | $0.00 | | |
| CWWBOND | C OF WW BOND 643 | 0.2760494372 | $840,640 | $840,640 | $232.06 | | |
| CWWGEN | CITY OF WW 631 | 1.6100204973 | $840,640 | $840,640 | $1,353.45 | | |
| CWWRFD | CITY OF WALLA WALLA REFUND 631 | 0.0000000000 | $840,640 | $840,640 | $0.00 | | |
| | Total Tax Rate: | 8.7973694689 | | | | | |
| | | | | Taxes w/Current Exemptions: | $7,395.42 | | |
| | | | | Taxes w/o Exemptions: | $7,395.42 | | |
Improvement / Building
| Improvement #1: | RESIDENTIAL | State Code: | 11 | 2504.0 sqft | Value: | $740,640 |
| Exterior Wall: | SIDING | Heating/Cooling: | HEAT PUMP | | Number of Bathrooms: | 3 | Number of Bedrooms: | 3 | | Plumbing: | 16 | Roof Covering: | COMP SHINGLE |
|
| | Type | Description | Class CD | Sub Class CD | Year Built | Area |
| | MA | Main Area | 1 | 45 | 1976 | 2504.0 |
| | ATG | Attached Garage | 1 | 45 | 1976 | 776.0 |
| | SI1 | SITE IMPROVEMENT | 1 | 45 | 1976 | 7.0 |
| | BASE | BASEMENT | 1 | 45 | 1976 | 1400.0 |
| | BPF | BASEMENT -PARTITIONED FINISH | 1 | 45 | 1976 | 1192.0 |
| | OPS | OPEN PORCH W/STEPS | 1 | 45 | 1976 | 120.0 |
| | RPC | OPEN PORCH W/ROOF , CEILED | 1 | 45 | 1976 | 416.0 |
Sketch
Property Image
Land
| 1 | RES 1 | Converted: Residential | 0.2142 | 9330.00 | 0.00 | 0.00 | 1.00 | $100,000 | $0 |
Roll Value History
| 2026 | N/A | N/A | N/A | N/A | N/A |
| 2025 | $644,360 | $170,000 | $0 | $814,360 | $814,360 |
| 2024 | $740,640 | $100,000 | $0 | $840,640 | $840,640 |
| 2023 | $740,640 | $100,000 | $0 | $840,640 | $840,640 |
| 2022 | $740,640 | $100,000 | $0 | $840,640 | $840,640 |
| 2021 | $364,990 | $100,000 | $0 | $464,990 | $464,990 |
| 2020 | $260,710 | $100,000 | $0 | $360,710 | $360,710 |
| 2019 | $260,710 | $100,000 | $0 | $360,710 | $360,710 |
| 2018 | $248,290 | $100,000 | $0 | $348,290 | $348,290 |
| 2017 | $248,290 | $100,000 | $0 | $348,290 | $348,290 |
| 2016 | $225,720 | $100,000 | $0 | $325,720 | $325,720 |
| 2015 | $188,100 | $100,000 | $0 | $288,100 | $288,100 |
| 2014 | $188,100 | $100,000 | $0 | $288,100 | $288,100 |
| 2013 | $188,100 | $100,000 | $0 | $288,100 | $288,100 |
| 2012 | $203,300 | $100,000 | $0 | $0 | $0 |
| 2011 | $203,300 | $100,000 | $0 | $0 | $0 |
| 2010 | $203,300 | $100,000 | $0 | $0 | $0 |
| 2009 | $219,300 | $100,000 | $0 | $0 | $0 |
| 2008 | $239,300 | $55,000 | $0 | $0 | $0 |
| 2007 | $239,300 | $55,000 | $0 | $0 | $0 |
Deed and Sales History
| 1 | 02/28/2017 | QCD | QUIT CLAIM DEED | BLACKBURN BRAD | BLACKBURN SUSAN | | | | 131954 | 2017-01566 |
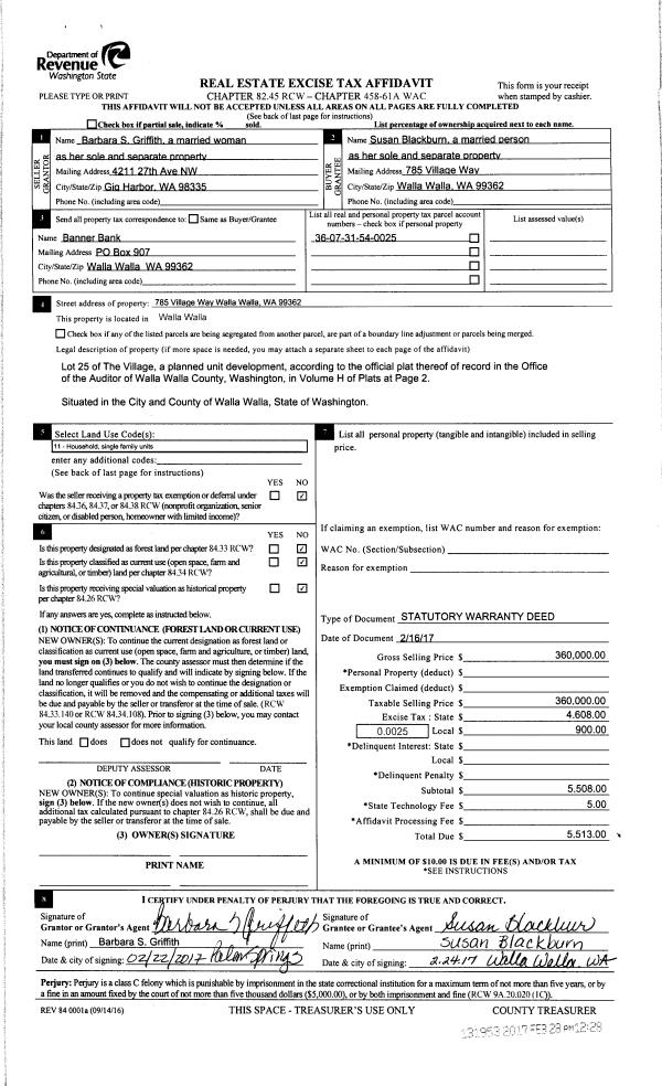
| 2 | 02/28/2017 | SWD | STATUTORY WARRANTY DEED | GRIFFITH BARBARA S | BLACKBURN SUSAN | | | $360,000.00 | 131953 | 2017-01565 |
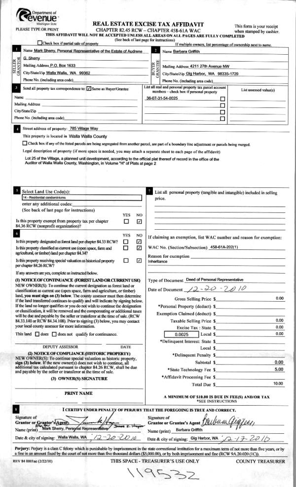
| 3 | 12/29/2010 | WARRANTY D | WARRANTY DEED | SHERRY, AUDRENE G ESTATE OF | GRIFFITH, BARBARA | | | | 119532 | 2010-10800 |
| 4 | 12/29/2010 | WARRANTY D | WARRANTY DEED | SHERRY, FRED S ESTATE OF | GRIFFITH, BARBARA | | | | 119534 | 2010-10799 |
| 5 | 12/19/1975 | WARRANTY D | WARRANTY DEED | | | | | $65,000.00 | 0 | 3505-50141 |
Payout Agreement
| No payout information available.. |