Property
Account |
| Property ID: | 32493 | Abbreviated Legal Description: | PFLUGRAD'S ASH ST ADDITION PARCEL D |
| Parcel Number: | 350725700004 | Agent Code: | |
| Type: | Real | | |
| Tax Area: | 75 - CP 250 | Land Use Code | 11 |
| Open Space: | N | DFL | N |
| Historic Property: | N | Remodel Property: | N |
| Multi-Family Redevelopment: | N | | |
| Township: | 7 | Section: | 25 |
| Range: | 35 |
Location |
| Address: | 325 NE ASH AVE WA 99324 | Mapsco: | |
| Neighborhood: | A SFR | Map ID: | |
| Neighborhood CD: | 113011 |
Owner |
| Name: | WILLIAMS IAN JOHNSON | Owner ID: | 62104 |
| Mailing Address: | 325 NE ASH AVE COLLEGE PLACE, WA 99324 | % Ownership: | 100.0000000000% |
| | | Exemptions: | |
Taxes and Assessment Details
Values
| (+) Improvement Homesite Value: | + | $0 | |
| (+) Improvement Non-Homesite Value: | + | $250,210 | |
| (+) Land Homesite Value: | + | $0 | |
| (+) Land Non-Homesite Value: | + | $34,920 | |
| (+) Curr Use (HS): | + | $0 | $0 |
| (+) Curr Use (NHS): | + | $0 | $0 |
| | | -------------------------- | |
| (=) Market Value: | = | $285,130 | |
| (–) Productivity Loss: | – | $0 | |
| | | -------------------------- | |
| (=) Subtotal: | = | $285,130 | |
| (+) Senior Appraised Value: | + | $0 | |
| (+) Non-Senior Appraised Value: | + | $285,130 | |
| | | -------------------------- | |
| (=) Total Appraised Value: | = | $285,130 | |
| (–) Senior Exemption Loss: | – | $0 | |
| (–) Exemption Loss: | – | $0 | |
| | | -------------------------- | |
| (=) Taxable Value: | = | $285,130 | |
Taxing Jurisdiction
| Owner: | WILLIAMS IAN JOHNSON | | |
| % Ownership: | 100.0000000000% | | |
| Total Value: | $285,130 | | |
| Tax Area: | 75 - CP 250 |
| CERFD | CURRENT EXPENSE REFUND 010 | 0.0000000000 | $285,130 | $285,130 | $0.00 | | |
| CURREXP | CURRENT EXPENSE 010 | 1.0175366760 | $285,130 | $285,130 | $290.13 | | |
| HUMNSERV | HUMAN SERVICES 119 | 0.0250000000 | $285,130 | $285,130 | $7.13 | | |
| SLDREL | SOLDIERS RELIEF 121 | 0.0155990005 | $285,130 | $285,130 | $4.45 | | |
| COLLPLBOND | C OF CP BOND 644 | 0.4374241808 | $285,130 | $285,130 | $124.72 | | |
| COLLPLGEN | CITY OF CP 632 | 1.4453819216 | $285,130 | $285,130 | $412.12 | | |
| EMERGSER | EMS 147 | 0.3792580840 | $285,130 | $285,130 | $108.14 | | |
| EMSRFD | EMS REFUND 147 | 0.0000000000 | $285,130 | $285,130 | $0.00 | | |
| RURALLIB | RURAL LIBRARY 623 | 0.3710609029 | $285,130 | $285,130 | $105.80 | | |
| PORTRFD | PORT REFUND 640 | 0.0000000000 | $285,130 | $285,130 | $0.00 | | |
| PORTWWGEN | PORT OF WW 640 | 0.2460186015 | $285,130 | $285,130 | $70.15 | | |
| SD250BOND | SD #250 BOND 773 | 1.4560608159 | $285,130 | $285,130 | $415.17 | | |
| SD250GEN | SD #250 GENERAL 770 | 2.3880724087 | $285,130 | $285,130 | $680.91 | | |
| ST2 | STATE SCHOOL PART 2 600 | 0.8131451643 | $285,130 | $285,130 | $231.85 | | |
| STATESCHL | STATE SCHOOL 600 | 1.5158548041 | $285,130 | $285,130 | $432.22 | | |
| STREFUND | STATE REFUND LEVY 603 | 0.0000000000 | $285,130 | $285,130 | $0.00 | | |
| | Total Tax Rate: | 10.1104125603 | | | | | |
| | | | | Taxes w/Current Exemptions: | $2,882.79 | | |
| | | | | Taxes w/o Exemptions: | $2,882.79 | | |
Improvement / Building
| Improvement #1: | RESIDENTIAL | State Code: | 11 | 808.0 sqft | Value: | $250,210 |
| Exterior Wall: | SIDING | Heating/Cooling: | BASEBOARD ELECTRIC | | Number of Bathrooms: | 2 | Number of Bedrooms: | 2 | | Plumbing: | 9 | Roof Covering: | COMP SHINGLE |
|
| | Type | Description | Class CD | Sub Class CD | Year Built | Area |
| | MA | Main Area | 1 | 30 | 1947 | 808.0 |
| | SI1 | SITE IMPROVEMENT | 1 | 30 | 1947 | 1.0 |
| | BASE | BASEMENT | 1 | 30 | 1947 | 808.0 |
| | BPF | BASEMENT -PARTITIONED FINISH | 1 | 30 | 1947 | 600.0 |
| | RPS | PORCH W/STEPS,ROOF | 1 | 30 | 1947 | 28.0 |
Sketch
Property Image
Land
| 1 | RES 1 | Converted: Residential | 0.1188 | 5173.00 | 0.00 | 0.00 | 1.00 | $34,920 | $0 |
Roll Value History
| 2026 | N/A | N/A | N/A | N/A | N/A |
| 2025 | $250,210 | $51,730 | $0 | $301,940 | $301,940 |
| 2024 | $250,210 | $34,920 | $0 | $285,130 | $285,130 |
| 2023 | $250,210 | $34,920 | $0 | $285,130 | $285,130 |
| 2022 | $208,510 | $34,920 | $0 | $243,430 | $243,430 |
| 2021 | $173,760 | $34,920 | $0 | $208,680 | $208,680 |
| 2020 | $128,710 | $34,920 | $0 | $163,630 | $163,630 |
| 2019 | $132,630 | $31,000 | $0 | $163,630 | $163,630 |
| 2018 | $126,320 | $31,000 | $0 | $157,320 | $157,320 |
| 2017 | $114,830 | $31,000 | $0 | $145,830 | $145,830 |
| 2016 | $99,860 | $31,000 | $0 | $130,860 | $130,860 |
| 2015 | $95,100 | $31,000 | $0 | $126,100 | $126,100 |
| 2014 | $95,100 | $31,000 | $0 | $126,100 | $126,100 |
| 2013 | $95,100 | $31,000 | $0 | $126,100 | $126,100 |
| 2012 | $95,100 | $31,000 | $0 | $0 | $0 |
| 2011 | $89,100 | $31,000 | $0 | $0 | $0 |
| 2010 | $83,400 | $31,000 | $0 | $0 | $0 |
| 2009 | $96,100 | $31,000 | $0 | $0 | $0 |
| 2008 | $78,100 | $15,500 | $0 | $0 | $0 |
| 2007 | $78,100 | $15,500 | $0 | $0 | $0 |
Deed and Sales History
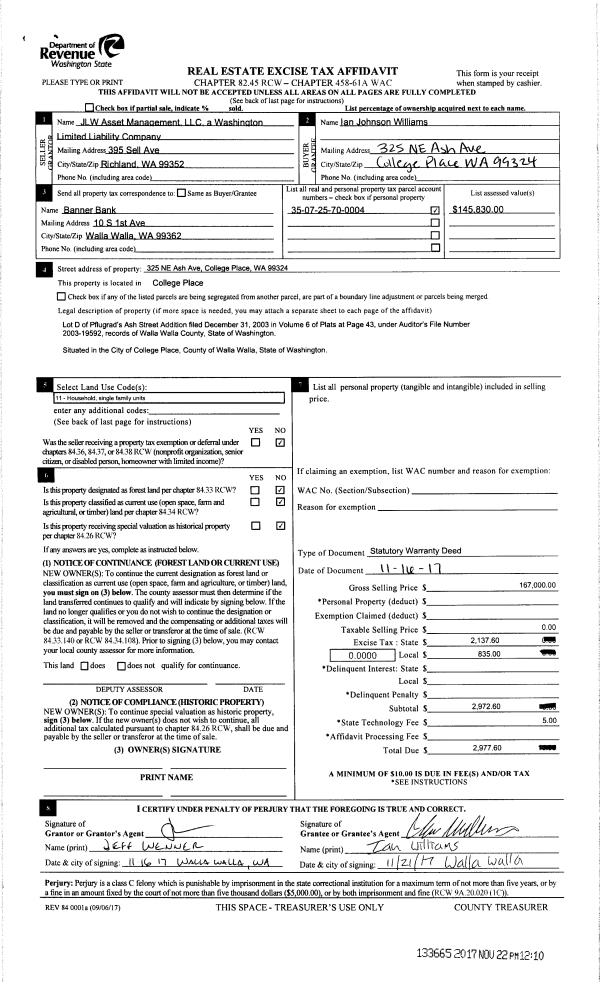
| 1 | 11/22/2017 | SWD | STATUTORY WARRANTY DEED | JLW ASSET MANAGEMENT LLC | WILLIAMS IAN JOHNSON | | | $167,000.00 | 133665 | 2017-09421 |
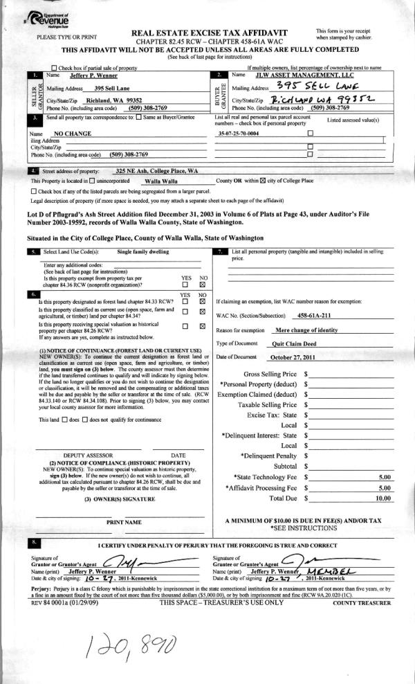
| 2 | 10/28/2011 | QCD | QUIT CLAIM DEED | WENNER, JEFFERY P | JLW ASSET MANAGEMENT LLC | | | | 120890 | 2011-08441 |
| 3 | 04/20/2007 | WARRANTY D | WARRANTY DEED | BIEGEL, WILLIAM & TERRI LUDDEN | WENNER, JEFFERY P | | | $129,000.00 | 112667 | 2007-04444 |
| 4 | 02/02/2005 | WARRANTY D | WARRANTY DEED | ORDWAY, JOHN L | BIEGEL, WILLIAM & TERRI LUDDEN | | | $97,500.00 | 106704 | 2005-01315 |
| 5 | 02/12/2004 | WARRANTY D | WARRANTY DEED | THREE ANGELS BROADCASTING | ORDWAY, JOHN L | | | $84,000.00 | 104071 | 2004-01585 |
Payout Agreement
| No payout information available.. |