Property
Account |
| Property ID: | 32465 | Abbreviated Legal Description: | SEC 35 TWP 9 RNG 31 TAX 1 19.83 TAX 2 13.81 |
| Parcel Number: | 310935310003 | Agent Code: | |
| Type: | Real | | |
| Tax Area: | 328 - 400-M-5 | Land Use Code | 82 |
| Open Space: | N | DFL | N |
| Historic Property: | N | Remodel Property: | N |
| Multi-Family Redevelopment: | N | | |
| Township: | 9 | Section: | 35 |
| Range: | 31 |
Location |
| Address: | WA 99323 | Mapsco: | |
| Neighborhood: | F- Comm | Map ID: | |
| Neighborhood CD: | 232100 |
Owner |
| Name: | EICKMEYER LEE A | Owner ID: | 50402 |
| Mailing Address: | PO BOX 509 PASCO, WA 99301 | % Ownership: | 100.0000000000% |
| | | Exemptions: | |
Taxes and Assessment Details
Property Tax Information as of
02/21/2026
Click on "Statement Details" to expand or collapse a tax statement.
* Please enter a valid date ** Please enter a valid date *
Statement Details |
| | TOTAL: | $0.00 | $0.00 | $0.00 | $0.00 | $0.00 | $0.00 |
|
| | $0.00 | $0.00 | $0.00 | $0.00 | $0.00 | $0.00 |
Values
| (+) Improvement Homesite Value: | + | $0 | |
| (+) Improvement Non-Homesite Value: | + | $2,077,300 | |
| (+) Land Homesite Value: | + | $0 | |
| (+) Land Non-Homesite Value: | + | $147,800 | |
| (+) Curr Use (HS): | + | $0 | $0 |
| (+) Curr Use (NHS): | + | $0 | $0 |
| | | -------------------------- | |
| (=) Market Value: | = | $2,225,100 | |
| (–) Productivity Loss: | – | $0 | |
| | | -------------------------- | |
| (=) Subtotal: | = | $2,225,100 | |
| (+) Senior Appraised Value: | + | $0 | |
| (+) Non-Senior Appraised Value: | + | $2,225,100 | |
| | | -------------------------- | |
| (=) Total Appraised Value: | = | $2,225,100 | |
| (–) Senior Exemption Loss: | – | $0 | |
| (–) Exemption Loss: | – | $0 | |
| | | -------------------------- | |
| (=) Taxable Value: | = | $2,225,100 | |
Taxing Jurisdiction
| Owner: | EICKMEYER LEE A | | |
| % Ownership: | 100.0000000000% | | |
| Total Value: | $2,225,100 | | |
| Tax Area: | 328 - 400-M-5 |
| CERFD | CURRENT EXPENSE REFUND 010 | 0.0000000000 | $2,225,100 | $2,225,100 | $0.00 | | |
| CURREXP | CURRENT EXPENSE 010 | 0.9851088983 | $2,225,100 | $2,225,100 | $2,191.97 | | |
| HUMNSERV | HUMAN SERVICES 119 | 0.0250000000 | $2,225,100 | $2,225,100 | $55.63 | | |
| SLDREL | SOLDIERS RELIEF 121 | 0.0155990000 | $2,225,100 | $2,225,100 | $34.71 | | |
| EMERGSER | EMS 147 | 0.3676811629 | $2,225,100 | $2,225,100 | $818.13 | | |
| EMSRFD | EMS REFUND 147 | 0.0000000000 | $2,225,100 | $2,225,100 | $0.00 | | |
| FD5EXP | FD #5 EXPENSE 689 | 1.1687305128 | $2,225,100 | $2,225,100 | $2,600.54 | | |
| RLBRFD | RURAL LIBRARY REFUND 623 | 0.0000000000 | $2,225,100 | $2,225,100 | $0.00 | | |
| RURALLIB | RURAL LIBRARY 623 | 0.3601547782 | $2,225,100 | $2,225,100 | $801.38 | | |
| PORTRFD | PORT REFUND 640 | 0.0000000000 | $2,225,100 | $2,225,100 | $0.00 | | |
| PORTWWGEN | PORT OF WW 640 | 0.2344301070 | $2,225,100 | $2,225,100 | $521.63 | | |
| SD400BOND | SD #400 BOND 793 | 0.0000000000 | $2,225,100 | $2,225,100 | $0.00 | | |
| SD400CAP | SD #400 CP 792 | 0.3211981044 | $2,225,100 | $2,225,100 | $714.70 | | |
| SD400GEN | SD #400 GENERAL 790 | 2.1312438929 | $2,225,100 | $2,225,100 | $4,742.23 | | |
| ST2 | STATE SCHOOL PART 2 600 | 0.8853714103 | $2,225,100 | $2,225,100 | $1,970.04 | | |
| STATESCHL | STATE SCHOOL 600 | 1.6424571473 | $2,225,100 | $2,225,100 | $3,654.63 | | |
| STREFUND | STATE REFUND LEVY 603 | 0.0000000000 | $2,225,100 | $2,225,100 | $0.00 | | |
| COROAD | COUNTY ROAD 115 | 1.6137667997 | $2,225,100 | $2,225,100 | $3,590.79 | | |
| CRPRD | COUNTY ROAD REFUND 115 | 0.0000000000 | $2,225,100 | $2,225,100 | $0.00 | | |
| | Total Tax Rate: | 9.7507418138 | | | | | |
| | | | | Taxes w/Current Exemptions: | $21,696.38 | | |
| | | | | Taxes w/o Exemptions: | $21,696.38 | | |
Improvement / Building
| Improvement #1: | COMMERCIAL | State Code: | 82 | 57896.0 sqft | Value: | $2,077,300 |
| | Type | Description | Class CD | Sub Class CD | Year Built | Area |
| | MA | Main Area | D | * | 2015 | 57896.0 |
| | SI1 | SITE IMPROVEMENT | D | * | 2015 | 10.0 |
Sketch
Property Image
Land
| 1 | COM 1 | Converted: Commercial | 33.6400 | 0.00 | 0.00 | 0.00 | 1.00 | $147,800 | $0 |
Roll Value History
| 2026 | N/A | N/A | N/A | N/A | N/A |
| 2025 | $2,077,300 | $147,800 | $0 | $2,225,100 | $2,225,100 |
| 2024 | $2,077,300 | $147,800 | $0 | $2,225,100 | $2,225,100 |
| 2023 | $2,077,300 | $147,800 | $0 | $2,225,100 | $2,225,100 |
| 2022 | $2,077,300 | $147,800 | $0 | $2,225,100 | $2,225,100 |
| 2021 | $2,077,300 | $147,800 | $0 | $2,225,100 | $2,225,100 |
| 2020 | $2,077,300 | $120,500 | $0 | $2,197,800 | $2,197,800 |
| 2019 | $2,077,300 | $120,500 | $0 | $2,197,800 | $2,197,800 |
| 2018 | $2,077,300 | $120,500 | $0 | $2,197,800 | $2,197,800 |
| 2017 | $2,077,300 | $120,500 | $0 | $2,197,800 | $2,197,800 |
| 2016 | $2,077,300 | $120,500 | $0 | $2,197,800 | $2,197,800 |
| 2015 | $1,707,400 | $120,500 | $0 | $1,827,900 | $1,827,900 |
| 2014 | $0 | $120,500 | $0 | $120,500 | $120,500 |
| 2013 | $0 | $120,500 | $0 | $120,500 | $120,500 |
| 2012 | $0 | $120,500 | $0 | $0 | $0 |
| 2011 | $0 | $120,500 | $0 | $0 | $0 |
| 2010 | $0 | $120,500 | $0 | $0 | $0 |
| 2009 | $0 | $68,000 | $0 | $0 | $0 |
| 2008 | $0 | $68,000 | $0 | $0 | $0 |
| 2007 | $0 | $68,000 | $0 | $0 | $0 |
Deed and Sales History
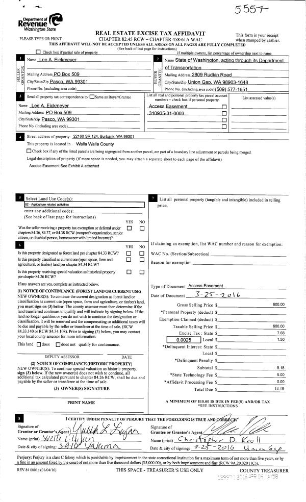
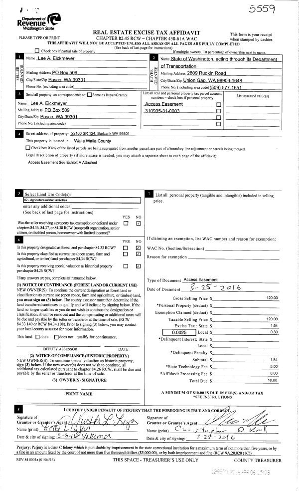
| 1 | 04/06/2016 | EASE | EASEMENT | EICKMEYER LEE A | WASHINGTON STATE OF | | | | 129971 | 2016-02514 |
| 2 | 04/06/2016 | EASE | EASEMENT | EICKMEYER LEE A | WASHINGTON STATE OF | | | | 129971 | 2016-02513 |
| 3 | 04/06/2016 | EASE | EASEMENT | EICKMEYER LEE A | WASHINGTON STATE OF | | | | 129970 | 2016-02512 |
| 4 | 04/06/2016 | EASE | EASEMENT | EICKMEYER LEE A | WASHINGTON STATE OF | | | | 129970 | 2016-02511 |
| 5 | 09/14/2011 | WARRANTY D | WARRANTY DEED | HILLSIDE FARMS | EICKMEYER LEE A | | | $965,000.00 | 120692 | 2011-07170 |
|   | |
| 6 | 11/27/1989 | WARRANTY D | WARRANTY DEED | | | | | $2,600,000.00 | 56014 | 1869-008637 |
|   | |
Payout Agreement
| No payout information available.. |