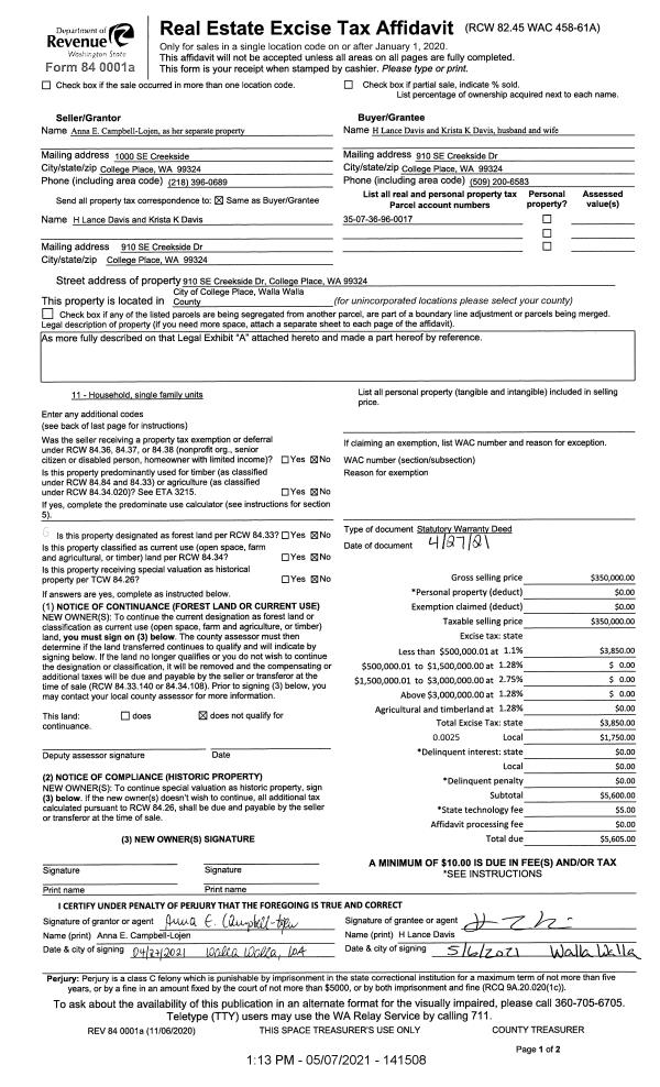
| 1 | 05/07/2021 | SWD | STATUTORY WARRANTY DEED | CAMPBELL LOJEN ANNA E | DAVIS H LANCE & KRISTA K | | | $350,000.00 | 141508 | 2021-05522 |
| 2 | 12/08/2020 | DPR | DEED OF PERSONAL REPRESENTATIVE | CAMPBELL PHILIP T | CAMPBELL LOJEN ANNA E | | | $0.00 | 140597 | 2020-13551 |
| 3 | 06/22/2018 | SWD | STATUTORY WARRANTY DEED | HERNANDEZ DAVID L & LUBA | CAMPBELL PHILIP T | | | $319,000.00 | 134983 | 2018-05029 |
| 4 | 10/14/2011 | WARRANTY D | WARRANTY DEED | LEHMANN, MICHAEL G | HERNANDEZ, DAVID L & LUBA | | | $204,500.00 | 120824 | 2011-08028 |
| 5 | 12/26/2007 | QCD | QUIT CLAIM DEED | LEHMANN, AVRIL | LEHMANN, MICHAEL G | | | | 114290 | 2007-04673 |
| 6 | 12/26/2007 | WARRANTY D | WARRANTY DEED | BRISCOE, DAVID L & PATRICIA LY | LEHMANN, MICHAEL G | | | $245,000.00 | 114289 | 2007-14674 |
| 7 | 12/16/2005 | WARRANTY D | WARRANTY DEED | NEUMILLER, ALVIN F & ELLA MAE | BRISCOE, DAVID L | | | $225,000.00 | 109259 | 2005-15740 |
| 8 | 07/20/2004 | QCD | QUIT CLAIM DEED | NEUMILLER, ALVIN & ELLA MAE | NEUMILLER, ALVIN F & ELLA MAE | | | | 105291 | 2004-08184 |
| 9 | 08/06/2001 | WARRANTY D | WARRANTY DEED | | | | | $34,000.00 | 97768 | 3170-108438 |