Property
Account |
| Property ID: | 32457 | Abbreviated Legal Description: | CAINS LOT 9 BLK 6 |
| Parcel Number: | 360720570609 | Agent Code: | |
| Type: | Real | | |
| Tax Area: | 1 - OL-140-F | Land Use Code | 46 |
| Open Space: | N | DFL | N |
| Historic Property: | N | Remodel Property: | N |
| Multi-Family Redevelopment: | N | | |
| Township: | 7 | Section: | 20 |
| Range: | 36 |
Location |
| Address: | 121 E ROSE ST WA 99362 | Mapsco: | |
| Neighborhood: | WW Downtown Core Area #2 | Map ID: | |
| Neighborhood CD: | 5342 |
Owner |
| Name: | MBA HOLDINGS LLC | Owner ID: | 49878 |
| Mailing Address: | 117 E ROSE ST WALLA WALLA, WA 99362 | % Ownership: | 100.0000000000% |
| | | Exemptions: | |
Taxes and Assessment Details
Values
| (+) Improvement Homesite Value: | + | $0 | |
| (+) Improvement Non-Homesite Value: | + | $47,500 | |
| (+) Land Homesite Value: | + | $0 | |
| (+) Land Non-Homesite Value: | + | $79,200 | |
| (+) Curr Use (HS): | + | $0 | $0 |
| (+) Curr Use (NHS): | + | $0 | $0 |
| | | -------------------------- | |
| (=) Market Value: | = | $126,700 | |
| (–) Productivity Loss: | – | $0 | |
| | | -------------------------- | |
| (=) Subtotal: | = | $126,700 | |
| (+) Senior Appraised Value: | + | $0 | |
| (+) Non-Senior Appraised Value: | + | $126,700 | |
| | | -------------------------- | |
| (=) Total Appraised Value: | = | $126,700 | |
| (–) Senior Exemption Loss: | – | $0 | |
| (–) Exemption Loss: | – | $0 | |
| | | -------------------------- | |
| (=) Taxable Value: | = | $126,700 | |
Taxing Jurisdiction
| Owner: | MBA HOLDINGS LLC | | |
| % Ownership: | 100.0000000000% | | |
| Total Value: | $126,700 | | |
| Tax Area: | 1 - OL-140-F |
| CERFD | CURRENT EXPENSE REFUND 010 | 0.0000000000 | $126,700 | $126,700 | $0.00 | | |
| CURREXP | CURRENT EXPENSE 010 | 0.9851088983 | $126,700 | $126,700 | $124.81 | | |
| HUMNSERV | HUMAN SERVICES 119 | 0.0250000000 | $126,700 | $126,700 | $3.17 | | |
| SLDREL | SOLDIERS RELIEF 121 | 0.0155990000 | $126,700 | $126,700 | $1.98 | | |
| EMERGSER | EMS 147 | 0.3676811629 | $126,700 | $126,700 | $46.59 | | |
| EMSRFD | EMS REFUND 147 | 0.0000000000 | $126,700 | $126,700 | $0.00 | | |
| PORTRFD | PORT REFUND 640 | 0.0000000000 | $126,700 | $126,700 | $0.00 | | |
| PORTWWGEN | PORT OF WW 640 | 0.2344301070 | $126,700 | $126,700 | $29.70 | | |
| SD140BOND | SD #140 BOND 764 | 0.8032434458 | $126,700 | $126,700 | $101.77 | | |
| SD140CAP | SD #140 CAP 762 | 0.3840034221 | $126,700 | $126,700 | $48.65 | | |
| SD140GEN | SD #140 GENERAL 760 | 2.4999999996 | $126,700 | $126,700 | $316.75 | | |
| ST2 | STATE SCHOOL PART 2 600 | 0.8853714103 | $126,700 | $126,700 | $112.18 | | |
| STATESCHL | STATE SCHOOL 600 | 1.6424571473 | $126,700 | $126,700 | $208.10 | | |
| STREFUND | STATE REFUND LEVY 603 | 0.0000000000 | $126,700 | $126,700 | $0.00 | | |
| CWWBOND | C OF WW BOND 643 | 0.2642134255 | $126,700 | $126,700 | $33.48 | | |
| CWWGEN | CITY OF WW 631 | 1.6110494978 | $126,700 | $126,700 | $204.12 | | |
| CWWRFD | CITY OF WALLA WALLA REFUND 631 | 0.0000000000 | $126,700 | $126,700 | $0.00 | | |
| | Total Tax Rate: | 9.7181575166 | | | | | |
| | | | | Taxes w/Current Exemptions: | $1,231.30 | | |
| | | | | Taxes w/o Exemptions: | $1,231.30 | | |
Improvement / Building
| Improvement #1: | COMMERCIAL | State Code: | 46 | 0.0 sqft | Value: | $47,500 |
Sketch
| No sketches available for this property. |
Property Image
Land
| 1 | COM 1 | Converted: Commercial | 0.1653 | 7200.00 | 0.00 | 0.00 | 1.00 | $79,200 | $0 |
Roll Value History
| 2026 | N/A | N/A | N/A | N/A | N/A |
| 2025 | $47,500 | $79,200 | $0 | $126,700 | $126,700 |
| 2024 | $47,500 | $79,200 | $0 | $126,700 | $126,700 |
| 2023 | $34,800 | $79,200 | $0 | $114,000 | $114,000 |
| 2022 | $34,800 | $79,200 | $0 | $114,000 | $114,000 |
| 2021 | $34,800 | $79,200 | $0 | $114,000 | $114,000 |
| 2020 | $34,800 | $79,200 | $0 | $114,000 | $114,000 |
| 2019 | $34,800 | $79,200 | $0 | $114,000 | $114,000 |
| 2018 | $34,800 | $79,200 | $0 | $114,000 | $114,000 |
| 2017 | $0 | $79,200 | $0 | $79,200 | $79,200 |
| 2016 | $0 | $79,200 | $0 | $79,200 | $79,200 |
| 2015 | $0 | $72,000 | $0 | $72,000 | $72,000 |
| 2014 | $0 | $72,000 | $0 | $72,000 | $72,000 |
| 2013 | $0 | $72,000 | $0 | $72,000 | $72,000 |
| 2012 | $5,000 | $72,000 | $0 | $0 | $0 |
| 2011 | $5,000 | $72,000 | $0 | $0 | $0 |
| 2010 | $5,000 | $72,000 | $0 | $0 | $0 |
| 2009 | $5,000 | $50,400 | $0 | $0 | $0 |
| 2008 | $5,400 | $50,400 | $0 | $0 | $0 |
| 2007 | $5,400 | $50,400 | $0 | $0 | $0 |
Deed and Sales History
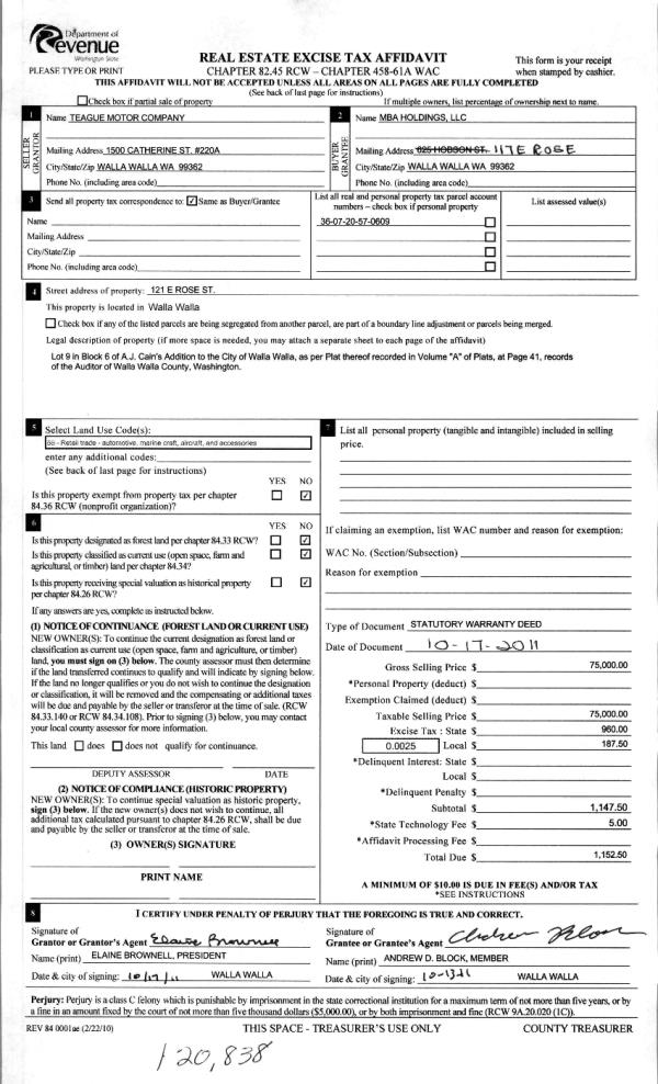
| 1 | 10/18/2011 | WARRANTY D | WARRANTY DEED | TEAGUE MOTOR CO | MBA HOLDINGS LLC | | | $75,000.00 | 120838 | 2011-08111 |
| 2 | 12/30/1983 | WARRANTY D | WARRANTY DEED | | | | | $150,000.00 | 0 | 1418-400024 |
|   | |
Payout Agreement
| No payout information available.. |