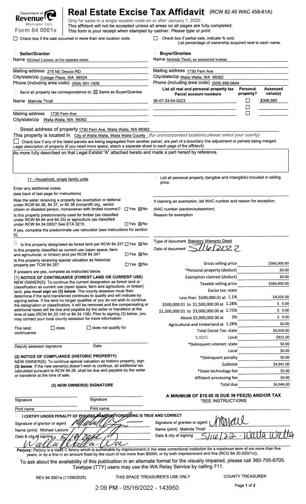
Property
Account |
| Property ID: | 32421 | Abbreviated Legal Description: | MT VIEW REPLAT TAX 2 BLK 2 |
| Parcel Number: | 360733540223 | Agent Code: | |
| Type: | Real | | |
| Tax Area: | 1 - OL-140-F | Land Use Code | 11 |
| Open Space: | N | DFL | N |
| Historic Property: | N | Remodel Property: | N |
| Multi-Family Redevelopment: | N | | |
| Township: | 7 | Section: | 33 |
| Range: | 36 |
Location |
| Address: | 1730 FERN AVE WA 99362 | Mapsco: | |
| Neighborhood: | G Res | Map ID: | |
| Neighborhood CD: | 614011 |
Owner |
| Name: | THRALL MALINDA | Owner ID: | 49415 |
| Mailing Address: | 1730 FERN AVE WALLA WALLA, WA 99362 | % Ownership: | 100.0000000000% |
| | | Exemptions: | |
Taxes and Assessment Details
Values
| (+) Improvement Homesite Value: | + | $328,580 | |
| (+) Improvement Non-Homesite Value: | + | $0 | |
| (+) Land Homesite Value: | + | $122,190 | |
| (+) Land Non-Homesite Value: | + | $0 | |
| (+) Curr Use (HS): | + | $0 | $0 |
| (+) Curr Use (NHS): | + | $0 | $0 |
| | | -------------------------- | |
| (=) Market Value: | = | $450,770 | |
| (–) Productivity Loss: | – | $0 | |
| | | -------------------------- | |
| (=) Subtotal: | = | $450,770 | |
| (+) Senior Appraised Value: | + | $0 | |
| (+) Non-Senior Appraised Value: | + | $450,770 | |
| | | -------------------------- | |
| (=) Total Appraised Value: | = | $450,770 | |
| (–) Senior Exemption Loss: | – | $0 | |
| (–) Exemption Loss: | – | $0 | |
| | | -------------------------- | |
| (=) Taxable Value: | = | $450,770 | |
Taxing Jurisdiction
| Owner: | THRALL MALINDA | | |
| % Ownership: | 100.0000000000% | | |
| Total Value: | $450,770 | | |
| Tax Area: | 1 - OL-140-F |
| CERFD | CURRENT EXPENSE REFUND 010 | 0.0000000000 | $450,770 | $450,770 | $0.00 | | |
| CURREXP | CURRENT EXPENSE 010 | 1.0175366760 | $450,770 | $450,770 | $458.68 | | |
| HUMNSERV | HUMAN SERVICES 119 | 0.0250000000 | $450,770 | $450,770 | $11.27 | | |
| SLDREL | SOLDIERS RELIEF 121 | 0.0155990005 | $450,770 | $450,770 | $7.03 | | |
| EMERGSER | EMS 147 | 0.3792580840 | $450,770 | $450,770 | $170.96 | | |
| EMSRFD | EMS REFUND 147 | 0.0000000000 | $450,770 | $450,770 | $0.00 | | |
| PORTRFD | PORT REFUND 640 | 0.0000000000 | $450,770 | $450,770 | $0.00 | | |
| PORTWWGEN | PORT OF WW 640 | 0.2460186015 | $450,770 | $450,770 | $110.90 | | |
| SD140BOND | SD #140 BOND 764 | 0.8342371393 | $450,770 | $450,770 | $376.05 | | |
| SD140GEN | SD #140 GENERAL 760 | 2.0646500647 | $450,770 | $450,770 | $930.68 | | |
| ST2 | STATE SCHOOL PART 2 600 | 0.8131451643 | $450,770 | $450,770 | $366.54 | | |
| STATESCHL | STATE SCHOOL 600 | 1.5158548041 | $450,770 | $450,770 | $683.30 | | |
| STREFUND | STATE REFUND LEVY 603 | 0.0000000000 | $450,770 | $450,770 | $0.00 | | |
| CWWBOND | C OF WW BOND 643 | 0.2760494372 | $450,770 | $450,770 | $124.43 | | |
| CWWGEN | CITY OF WW 631 | 1.6100204973 | $450,770 | $450,770 | $725.75 | | |
| CWWRFD | CITY OF WALLA WALLA REFUND 631 | 0.0000000000 | $450,770 | $450,770 | $0.00 | | |
| | Total Tax Rate: | 8.7973694689 | | | | | |
| | | | | Taxes w/Current Exemptions: | $3,965.59 | | |
| | | | | Taxes w/o Exemptions: | $3,965.59 | | |
Improvement / Building
| Improvement #1: | RESIDENTIAL | State Code: | 11 | 1536.0 sqft | Value: | $328,580 |
| Exterior Wall: | SIDING | Heating/Cooling: | WARM & COOLED AIR | | Number of Bathrooms: | 2 | Number of Bedrooms: | 3 | | Plumbing: | 12 | Roof Covering: | COMP SHINGLE |
|
| | Type | Description | Class CD | Sub Class CD | Year Built | Area |
| | MA | Main Area | 1 | 30 | 1959 | 1536.0 |
| | SI1 | SITE IMPROVEMENT | 1 | 30 | 1959 | 3.5 |
| | BASE | BASEMENT | 1 | 30 | 1959 | 806.0 |
| | BPF | BASEMENT -PARTITIONED FINISH | 1 | 30 | 1959 | 400.0 |
| | DTG | Detached Garage | 1 | 30 | 1959 | 528.0 |
| | S1F | Single One Story Fireplace | 1 | 30 | 1959 | 1.0 |
| | CPC | COVERED CARPORT/PATIO | 1 | 30 | 1959 | 210.0 |
| | RPC | OPEN PORCH W/ROOF , CEILED | 1 | 30 | 1959 | 25.0 |
Sketch
Property Image
Land
| 1 | RES 1 | Converted: Residential | 0.3254 | 14175.00 | 0.00 | 0.00 | 1.00 | $122,190 | $0 |
Roll Value History
| 2026 | N/A | N/A | N/A | N/A | N/A |
| 2025 | $354,610 | $145,720 | $0 | $500,330 | $500,330 |
| 2024 | $328,580 | $122,190 | $0 | $450,770 | $450,770 |
| 2023 | $328,580 | $122,190 | $0 | $450,770 | $450,770 |
| 2022 | $345,870 | $100,500 | $0 | $446,370 | $446,370 |
| 2021 | $266,060 | $100,500 | $0 | $366,560 | $366,560 |
| 2020 | $190,040 | $100,500 | $0 | $290,540 | $290,540 |
| 2019 | $190,040 | $100,500 | $0 | $290,540 | $290,540 |
| 2018 | $195,530 | $50,700 | $0 | $246,230 | $246,230 |
| 2017 | $177,760 | $50,700 | $0 | $228,460 | $228,460 |
| 2016 | $161,600 | $50,700 | $0 | $212,300 | $212,300 |
| 2015 | $161,600 | $50,700 | $0 | $212,300 | $81,840 |
| 2014 | $153,900 | $50,700 | $0 | $204,600 | $81,840 |
| 2013 | $153,900 | $50,700 | $0 | $204,600 | $204,600 |
| 2012 | $153,900 | $50,700 | $0 | $0 | $0 |
| 2011 | $153,900 | $50,700 | $0 | $0 | $0 |
| 2010 | $127,200 | $50,700 | $0 | $0 | $0 |
| 2009 | $147,000 | $50,700 | $0 | $0 | $0 |
| 2008 | $147,000 | $50,700 | $0 | $0 | $0 |
| 2007 | $92,100 | $28,200 | $0 | $0 | $0 |
Deed and Sales History
| 1 | 05/16/2022 | SWD | STATUTORY WARRANTY DEED | LAIZURE MICHAEL A | THRALL MALINDA | | | $366,000.00 | 143950 | 2022-04155 |
| 2 | 10/13/2017 | DPR | DEED OF PERSONAL REPRESENTATIVE | LAIZURE SUSAN J | LAIZURE MICHAEL A | | | $0.00 | 133419 | 2017-08178 |
| 3 | 02/28/1994 | WARRANTY D | WARRANTY DEED | | | | | $92,500.00 | 81099 | 2169-402475 |
Payout Agreement
| No payout information available.. |