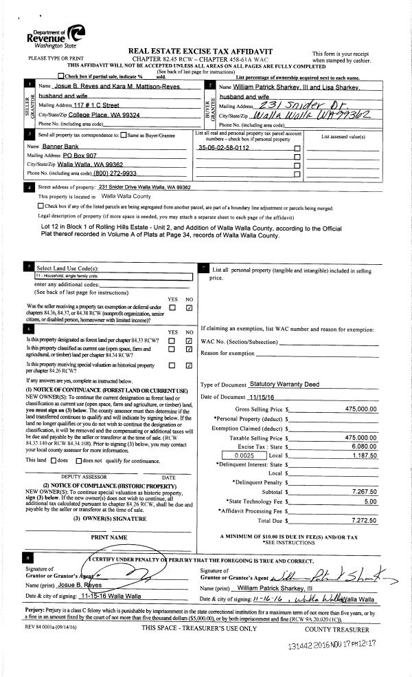
Property
Account |
| Property ID: | 3242 | Abbreviated Legal Description: | ROLLING HILLS ESTATE #2 PARCEL 12 |
| Parcel Number: | 350602580112 | Agent Code: | |
| Type: | Real | | |
| Tax Area: | 311 - 250-4 | Land Use Code | 11 |
| Open Space: | N | DFL | N |
| Historic Property: | N | Remodel Property: | N |
| Multi-Family Redevelopment: | N | | |
| Township: | 6 | Section: | 2 |
| Range: | 35 |
Location |
| Address: | 231 SNIDER DR WA 99324 | Mapsco: | |
| Neighborhood: | VG SFR RURAL | Map ID: | |
| Neighborhood CD: | 215013 |
Owner |
| Name: | SHARKEY WILLIAM PATRICK III & LISA | Owner ID: | 60003 |
| Mailing Address: | 231 SNIDER DR WALLA WALLA, WA 99362 | % Ownership: | 100.0000000000% |
| | | Exemptions: | |
Taxes and Assessment Details
Property Tax Information as of
02/21/2026
Click on "Statement Details" to expand or collapse a tax statement.
* Please enter a valid date ** Please enter a valid date *
Statement Details |
| | TOTAL: | $0.00 | $0.00 | $0.00 | $0.00 | $0.00 | $0.00 |
|
| | $0.00 | $0.00 | $0.00 | $0.00 | $0.00 | $0.00 |
Values
| (+) Improvement Homesite Value: | + | $0 | |
| (+) Improvement Non-Homesite Value: | + | $556,450 | |
| (+) Land Homesite Value: | + | $0 | |
| (+) Land Non-Homesite Value: | + | $152,500 | |
| (+) Curr Use (HS): | + | $0 | $0 |
| (+) Curr Use (NHS): | + | $0 | $0 |
| | | -------------------------- | |
| (=) Market Value: | = | $708,950 | |
| (–) Productivity Loss: | – | $0 | |
| | | -------------------------- | |
| (=) Subtotal: | = | $708,950 | |
| (+) Senior Appraised Value: | + | $0 | |
| (+) Non-Senior Appraised Value: | + | $708,950 | |
| | | -------------------------- | |
| (=) Total Appraised Value: | = | $708,950 | |
| (–) Senior Exemption Loss: | – | $0 | |
| (–) Exemption Loss: | – | $0 | |
| | | -------------------------- | |
| (=) Taxable Value: | = | $708,950 | |
Taxing Jurisdiction
| Owner: | SHARKEY WILLIAM PATRICK III & LISA | | |
| % Ownership: | 100.0000000000% | | |
| Total Value: | $708,950 | | |
| Tax Area: | 311 - 250-4 |
| CERFD | CURRENT EXPENSE REFUND 010 | 0.0000000000 | $708,950 | $708,950 | $0.00 | | |
| CURREXP | CURRENT EXPENSE 010 | 1.0175366760 | $708,950 | $708,950 | $721.38 | | |
| HUMNSERV | HUMAN SERVICES 119 | 0.0250000000 | $708,950 | $708,950 | $17.72 | | |
| SLDREL | SOLDIERS RELIEF 121 | 0.0155990005 | $708,950 | $708,950 | $11.06 | | |
| EMERGSER | EMS 147 | 0.3792580840 | $708,950 | $708,950 | $268.88 | | |
| EMSRFD | EMS REFUND 147 | 0.0000000000 | $708,950 | $708,950 | $0.00 | | |
| FD4EXP | FD #4 EXPENSE 686 | 0.8836993059 | $708,950 | $708,950 | $626.50 | | |
| RLBRFD | RURAL LIBRARY REFUND 623 | 0.0000000000 | $708,950 | $708,950 | $0.00 | | |
| RURALLIB | RURAL LIBRARY 623 | 0.3710609029 | $708,950 | $708,950 | $263.06 | | |
| PORTRFD | PORT REFUND 640 | 0.0000000000 | $708,950 | $708,950 | $0.00 | | |
| PORTWWGEN | PORT OF WW 640 | 0.2460186015 | $708,950 | $708,950 | $174.41 | | |
| SD250BOND | SD #250 BOND 773 | 1.4560608159 | $708,950 | $708,950 | $1,032.27 | | |
| SD250GEN | SD #250 GENERAL 770 | 2.3880724087 | $708,950 | $708,950 | $1,693.02 | | |
| ST2 | STATE SCHOOL PART 2 600 | 0.8131451643 | $708,950 | $708,950 | $576.48 | | |
| STATESCHL | STATE SCHOOL 600 | 1.5158548041 | $708,950 | $708,950 | $1,074.67 | | |
| STREFUND | STATE REFUND LEVY 603 | 0.0000000000 | $708,950 | $708,950 | $0.00 | | |
| COROAD | COUNTY ROAD 115 | 1.6549953990 | $708,950 | $708,950 | $1,173.31 | | |
| CRPRD | COUNTY ROAD REFUND 115 | 0.0000000000 | $708,950 | $708,950 | $0.00 | | |
| | Total Tax Rate: | 10.7663011628 | | | | | |
| | | | | Taxes w/Current Exemptions: | $7,632.76 | | |
| | | | | Taxes w/o Exemptions: | $7,632.76 | | |
Improvement / Building
| Improvement #1: | RESIDENTIAL | State Code: | 11 | 2260.0 sqft | Value: | $556,450 |
| Exterior Wall: | PLYWOOD | Heating/Cooling: | REV-HEAT-PUMP-W/DUCT | | Number of Bathrooms: | 4 | Number of Bedrooms: | 2 | | Plumbing: | 15 | Roof Covering: | COMP SHINGLE |
|
| | Type | Description | Class CD | Sub Class CD | Year Built | Area |
| | MA | Main Area | 1 | 40 | 1982 | 2260.0 |
| | BRW | BREEZEWAY | 1 | 40 | 1982 | 147.0 |
| | SI1 | SITE IMPROVEMENT | 1 | 40 | 1982 | 4.0 |
| | WDR | WOOD DECK W/ROOF | 1 | 40 | 1982 | 304.0 |
| | BASE | BASEMENT | 1 | 40 | 1982 | 2000.0 |
| | S2F | Single 2S Fireplace | 1 | 40 | 1982 | 1.0 |
| | WOD | Wood Deck | 1 | 40 | 1982 | 112.0 |
| | WOD | Wood Deck | 1 | 40 | 1982 | 144.0 |
| | WOD | Wood Deck | 1 | 40 | 1982 | 347.0 |
| | DTG | Detached Garage | 1 | 40 | 1982 | 600.0 |
| | DTG | Detached Garage | 1 | 40 | 1982 | 749.0 |
Sketch
Property Image
Land
| 1 | RES 1 | Converted: Residential | 1.1000 | 0.00 | 0.00 | 0.00 | 1.00 | $152,500 | $0 |
Roll Value History
| 2026 | N/A | N/A | N/A | N/A | N/A |
| 2025 | $556,450 | $152,500 | $0 | $708,950 | $708,950 |
| 2024 | $556,450 | $152,500 | $0 | $708,950 | $708,950 |
| 2023 | $556,450 | $152,500 | $0 | $708,950 | $708,950 |
| 2022 | $529,960 | $152,500 | $0 | $682,460 | $682,460 |
| 2021 | $378,540 | $152,500 | $0 | $531,040 | $531,040 |
| 2020 | $402,630 | $90,400 | $0 | $493,030 | $493,030 |
| 2019 | $402,630 | $90,400 | $0 | $493,030 | $493,030 |
| 2018 | $366,030 | $90,400 | $0 | $456,430 | $456,430 |
| 2017 | $366,030 | $90,400 | $0 | $456,430 | $456,430 |
| 2016 | $348,600 | $90,400 | $0 | $439,000 | $439,000 |
| 2015 | $348,600 | $90,400 | $0 | $439,000 | $439,000 |
| 2014 | $348,600 | $90,400 | $0 | $439,000 | $439,000 |
| 2013 | $348,600 | $90,400 | $0 | $439,000 | $439,000 |
| 2012 | $348,600 | $90,400 | $0 | $0 | $0 |
| 2011 | $318,600 | $120,400 | $0 | $0 | $0 |
| 2010 | $322,700 | $120,400 | $0 | $0 | $0 |
| 2009 | $417,800 | $45,400 | $0 | $0 | $0 |
| 2008 | $297,700 | $45,400 | $0 | $0 | $0 |
| 2007 | $297,700 | $45,400 | $0 | $0 | $0 |
Deed and Sales History
| 1 | 11/17/2016 | SWD | STATUTORY WARRANTY DEED | REYES JOSUE B | SHARKEY WILLIAM PATRICK III & LISA | | | $475,000.00 | 131442 | 2016-09497 |
| 2 | 07/30/2009 | WARRANTY D | WARRANTY DEED | HUGHES, JOHN R & TIMNA L | REYES, JOSUE B | | | $439,000.00 | 117088 | 2009-07756 |
| 3 | 08/21/2006 | WARRANTY D | WARRANTY DEED | WILKINSON, RONALD & JANET | HUGHES, JOHN R & TIMNA L | | | $449,000.00 | 111010 | 2006-10042 |
| 4 | 07/27/2001 | WARRANTY D | WARRANTY DEED | | | | | $265,000.00 | 97702 | 3170-108089 |
Payout Agreement
| No payout information available.. |