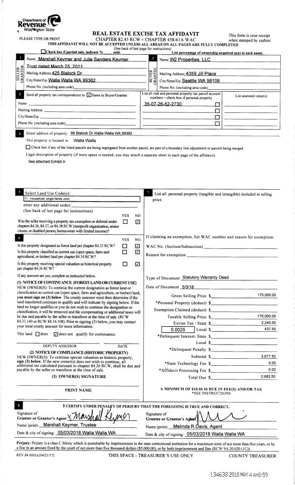
Property
Account |
| Property ID: | 32342 | Abbreviated Legal Description: | BLALOCK ORCHARDS TAX 3 LOT 15 BLK 27 |
| Parcel Number: | 350726522730 | Agent Code: | |
| Type: | Real | | |
| Tax Area: | 311 - 250-4 | Land Use Code | 12 |
| Open Space: | N | DFL | N |
| Historic Property: | N | Remodel Property: | N |
| Multi-Family Redevelopment: | N | | |
| Township: | 7 | Section: | 26 |
| Range: | 35 |
Location |
| Address: | 66 BLALOCK DR WA 99324 | Mapsco: | |
| Neighborhood: | A Duplex City | Map ID: | |
| Neighborhood CD: | 313031 |
Owner |
| Name: | W2 PROPERTIES LLC | Owner ID: | 63009 |
| Mailing Address: | C/O BRENT CARSON 4617 LAKE WASHINGTON BLVD S SEATTLE, WA 98118 | % Ownership: | 100.0000000000% |
| | | Exemptions: | |
Taxes and Assessment Details
Values
| (+) Improvement Homesite Value: | + | $0 | |
| (+) Improvement Non-Homesite Value: | + | $146,960 | |
| (+) Land Homesite Value: | + | $0 | |
| (+) Land Non-Homesite Value: | + | $68,280 | |
| (+) Curr Use (HS): | + | $0 | $0 |
| (+) Curr Use (NHS): | + | $0 | $0 |
| | | -------------------------- | |
| (=) Market Value: | = | $215,240 | |
| (–) Productivity Loss: | – | $0 | |
| | | -------------------------- | |
| (=) Subtotal: | = | $215,240 | |
| (+) Senior Appraised Value: | + | $0 | |
| (+) Non-Senior Appraised Value: | + | $215,240 | |
| | | -------------------------- | |
| (=) Total Appraised Value: | = | $215,240 | |
| (–) Senior Exemption Loss: | – | $0 | |
| (–) Exemption Loss: | – | $0 | |
| | | -------------------------- | |
| (=) Taxable Value: | = | $215,240 | |
Taxing Jurisdiction
| Owner: | W2 PROPERTIES LLC | | |
| % Ownership: | 100.0000000000% | | |
| Total Value: | $215,240 | | |
| Tax Area: | 311 - 250-4 |
| CERFD | CURRENT EXPENSE REFUND 010 | 0.0000000000 | $215,240 | $215,240 | $0.00 | | |
| CURREXP | CURRENT EXPENSE 010 | 1.0175366760 | $215,240 | $215,240 | $219.01 | | |
| HUMNSERV | HUMAN SERVICES 119 | 0.0250000000 | $215,240 | $215,240 | $5.38 | | |
| SLDREL | SOLDIERS RELIEF 121 | 0.0155990005 | $215,240 | $215,240 | $3.36 | | |
| EMERGSER | EMS 147 | 0.3792580840 | $215,240 | $215,240 | $81.63 | | |
| EMSRFD | EMS REFUND 147 | 0.0000000000 | $215,240 | $215,240 | $0.00 | | |
| FD4EXP | FD #4 EXPENSE 686 | 0.8836993059 | $215,240 | $215,240 | $190.21 | | |
| RLBRFD | RURAL LIBRARY REFUND 623 | 0.0000000000 | $215,240 | $215,240 | $0.00 | | |
| RURALLIB | RURAL LIBRARY 623 | 0.3710609029 | $215,240 | $215,240 | $79.87 | | |
| PORTRFD | PORT REFUND 640 | 0.0000000000 | $215,240 | $215,240 | $0.00 | | |
| PORTWWGEN | PORT OF WW 640 | 0.2460186015 | $215,240 | $215,240 | $52.95 | | |
| SD250BOND | SD #250 BOND 773 | 1.4560608159 | $215,240 | $215,240 | $313.40 | | |
| SD250GEN | SD #250 GENERAL 770 | 2.3880724087 | $215,240 | $215,240 | $514.01 | | |
| ST2 | STATE SCHOOL PART 2 600 | 0.8131451643 | $215,240 | $215,240 | $175.02 | | |
| STATESCHL | STATE SCHOOL 600 | 1.5158548041 | $215,240 | $215,240 | $326.27 | | |
| STREFUND | STATE REFUND LEVY 603 | 0.0000000000 | $215,240 | $215,240 | $0.00 | | |
| COROAD | COUNTY ROAD 115 | 1.6549953990 | $215,240 | $215,240 | $356.22 | | |
| CRPRD | COUNTY ROAD REFUND 115 | 0.0000000000 | $215,240 | $215,240 | $0.00 | | |
| | Total Tax Rate: | 10.7663011628 | | | | | |
| | | | | Taxes w/Current Exemptions: | $2,317.33 | | |
| | | | | Taxes w/o Exemptions: | $2,317.33 | | |
Improvement / Building
| Improvement #1: | RESIDENTIAL | State Code: | 12 | 1076.0 sqft | Value: | $146,960 |
| Exterior Wall: | SIDING | Heating/Cooling: | BASEBOARD ELECTRIC | | Number of Bathrooms: | 3 | Number of Bedrooms: | 4 | | Plumbing: | 12 | Roof Covering: | WOOD SHINGLE |
|
| | Type | Description | Class CD | Sub Class CD | Year Built | Area |
| | MA | Main Area | 4 | 20 | 1946 | 1076.0 |
| | SI1 | SITE IMPROVEMENT | 4 | 20 | 0 | 1.0 |
| | BASE | BASEMENT | 4 | 20 | 1946 | 588.0 |
| | BRF | BASEMENT - REC FINISH | 4 | 20 | 1946 | 588.0 |
| | UPFL | Upper Floor (included in main area) | 4 | 20 | 1946 | 488.0 |
| | WOD | Wood Deck | 4 | 20 | 1946 | 70.0 |
| | CPC | COVERED CARPORT/PATIO | 4 | 20 | 1946 | 147.0 |
Sketch
Property Image
Land
| 1 | RES 1 | Converted: Residential | 0.2500 | 10890.00 | 0.00 | 0.00 | 1.00 | $68,280 | $0 |
Roll Value History
| 2026 | N/A | N/A | N/A | N/A | N/A |
| 2025 | $148,500 | $68,300 | $0 | $216,800 | $216,800 |
| 2024 | $148,500 | $68,300 | $0 | $216,800 | $216,800 |
| 2023 | $146,960 | $68,280 | $0 | $215,240 | $215,240 |
| 2022 | $146,960 | $68,280 | $0 | $215,240 | $215,240 |
| 2021 | $130,540 | $47,900 | $0 | $178,440 | $178,440 |
| 2020 | $108,870 | $47,900 | $0 | $156,770 | $156,770 |
| 2019 | $108,870 | $47,900 | $0 | $156,770 | $156,770 |
| 2018 | $64,040 | $47,900 | $0 | $111,940 | $111,940 |
| 2017 | $64,040 | $47,900 | $0 | $111,940 | $111,940 |
| 2016 | $60,990 | $47,900 | $0 | $108,890 | $108,890 |
| 2015 | $60,720 | $47,900 | $0 | $108,620 | $108,620 |
| 2014 | $55,200 | $47,900 | $0 | $103,100 | $103,100 |
| 2013 | $55,200 | $47,900 | $0 | $103,100 | $103,100 |
| 2012 | $55,200 | $47,900 | $0 | $0 | $0 |
| 2011 | $55,200 | $47,900 | $0 | $0 | $0 |
| 2010 | $45,700 | $47,900 | $0 | $0 | $0 |
| 2009 | $78,500 | $25,500 | $0 | $0 | $0 |
| 2008 | $46,200 | $25,500 | $0 | $0 | $0 |
| 2007 | $46,200 | $25,500 | $0 | $0 | $0 |
Deed and Sales History
| 1 | 05/04/2018 | SWD | STATUTORY WARRANTY DEED | KEYMER MARSHALL & JULIE SANDERS TRUST | W2 PROPERTIES LLC | | | $175,000.00 | 134638 | 2018-03523 |
| 2 | 09/08/2011 | QCD | QUIT CLAIM DEED | KEYMER, MARSHALL | KEYMER, MARSHALL & JULIE SANDE | | | | 120664 | 2011-07019 |
| 3 | 01/12/2007 | WARRANTY D | WARRANTY DEED | REYNOLDS, BONNIE J | KEYMER, MARSHALL | | | $108,000.00 | 112077 | 2007-00514 |
| 4 | 01/12/2007 | QCD | QUIT CLAIM DEED | WINNETT, SUSAN G | REYNOLDS, BONNIE J | | | | 112076 | 2007-00513 |
| 5 | 02/01/1967 | WARRANTY D | WARRANTY DEED | | | | | $9,000.00 | 0 | 3210-483172 |
Payout Agreement
| No payout information available.. |