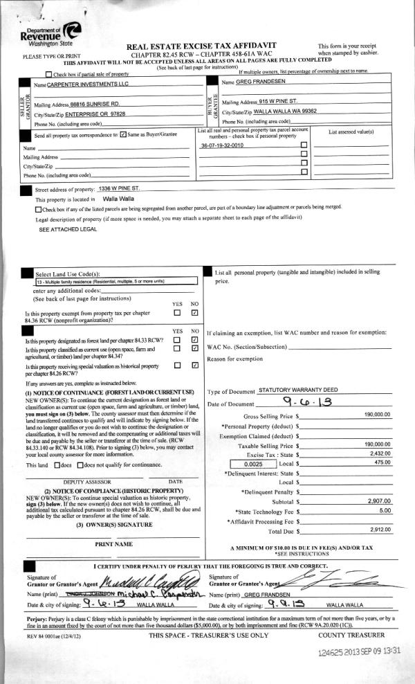
Property
Account |
| Property ID: | 32334 | Abbreviated Legal Description: | 19-7-36 TAX 15A LESS FREEWAY |
| Parcel Number: | 360719320010 | Agent Code: | |
| Type: | Real | | |
| Tax Area: | 5 - OL-140 | Land Use Code | 53 |
| Open Space: | N | DFL | N |
| Historic Property: | N | Remodel Property: | N |
| Multi-Family Redevelopment: | N | | |
| Township: | 7 | Section: | 19 |
| Range: | 36 |
Location |
| Address: | 1336 W PINE ST WA 99362 | Mapsco: | |
| Neighborhood: | | Map ID: | |
| Neighborhood CD: | 3343 |
Owner |
| Name: | FRANDSEN GREG | Owner ID: | 53385 |
| Mailing Address: | 1336 W PINE ST WALLA WALLA, WA 99362 | % Ownership: | 100.0000000000% |
| | | Exemptions: | |
Taxes and Assessment Details
Property Tax Information as of
02/21/2026
Click on "Statement Details" to expand or collapse a tax statement.
* Please enter a valid date ** Please enter a valid date *
Statement Details |
| | TOTAL: | $0.00 | $0.00 | $0.00 | $0.00 | $0.00 | $0.00 |
|
| | $0.00 | $0.00 | $0.00 | $0.00 | $0.00 | $0.00 |
Values
| (+) Improvement Homesite Value: | + | $0 | |
| (+) Improvement Non-Homesite Value: | + | $260,300 | |
| (+) Land Homesite Value: | + | $0 | |
| (+) Land Non-Homesite Value: | + | $205,600 | |
| (+) Curr Use (HS): | + | $0 | $0 |
| (+) Curr Use (NHS): | + | $0 | $0 |
| | | -------------------------- | |
| (=) Market Value: | = | $465,900 | |
| (–) Productivity Loss: | – | $0 | |
| | | -------------------------- | |
| (=) Subtotal: | = | $465,900 | |
| (+) Senior Appraised Value: | + | $0 | |
| (+) Non-Senior Appraised Value: | + | $465,900 | |
| | | -------------------------- | |
| (=) Total Appraised Value: | = | $465,900 | |
| (–) Senior Exemption Loss: | – | $0 | |
| (–) Exemption Loss: | – | $0 | |
| | | -------------------------- | |
| (=) Taxable Value: | = | $465,900 | |
Taxing Jurisdiction
| Owner: | FRANDSEN GREG | | |
| % Ownership: | 100.0000000000% | | |
| Total Value: | $465,900 | | |
| Tax Area: | 5 - OL-140 |
| CERFD | CURRENT EXPENSE REFUND 010 | 0.0000000000 | $465,900 | $465,900 | $0.00 | | |
| CURREXP | CURRENT EXPENSE 010 | 1.0175366760 | $465,900 | $465,900 | $474.07 | | |
| HUMNSERV | HUMAN SERVICES 119 | 0.0250000000 | $465,900 | $465,900 | $11.65 | | |
| SLDREL | SOLDIERS RELIEF 121 | 0.0155990005 | $465,900 | $465,900 | $7.27 | | |
| EMERGSER | EMS 147 | 0.3792580840 | $465,900 | $465,900 | $176.70 | | |
| EMSRFD | EMS REFUND 147 | 0.0000000000 | $465,900 | $465,900 | $0.00 | | |
| PORTRFD | PORT REFUND 640 | 0.0000000000 | $465,900 | $465,900 | $0.00 | | |
| PORTWWGEN | PORT OF WW 640 | 0.2460186015 | $465,900 | $465,900 | $114.62 | | |
| SD140BOND | SD #140 BOND 764 | 0.8342371393 | $465,900 | $465,900 | $388.67 | | |
| SD140GEN | SD #140 GENERAL 760 | 2.0646500647 | $465,900 | $465,900 | $961.92 | | |
| ST2 | STATE SCHOOL PART 2 600 | 0.8131451643 | $465,900 | $465,900 | $378.84 | | |
| STATESCHL | STATE SCHOOL 600 | 1.5158548041 | $465,900 | $465,900 | $706.24 | | |
| STREFUND | STATE REFUND LEVY 603 | 0.0000000000 | $465,900 | $465,900 | $0.00 | | |
| CWWBOND | C OF WW BOND 643 | 0.2760494372 | $465,900 | $465,900 | $128.61 | | |
| CWWGEN | CITY OF WW 631 | 1.6100204973 | $465,900 | $465,900 | $750.11 | | |
| CWWRFD | CITY OF WALLA WALLA REFUND 631 | 0.0000000000 | $465,900 | $465,900 | $0.00 | | |
| | Total Tax Rate: | 8.7973694689 | | | | | |
| | | | | Taxes w/Current Exemptions: | $4,098.70 | | |
| | | | | Taxes w/o Exemptions: | $4,098.70 | | |
Improvement / Building
| Improvement #1: | COMMERCIAL | State Code: | 53 | 3366.0 sqft | Value: | $260,300 |
| Exterior Wall: | HARDBOARD | Heating/Cooling: | REV-HEAT-PUMP-W/DUCT | | Number of Bathrooms: | 1 | Plumbing: | 5 | | Roof Covering: | COMP SHINGLE |   |   |
|
| | Type | Description | Class CD | Sub Class CD | Year Built | Area |
| | MA | Main Area | D | * | 2013 | 3366.0 |
| | CPC | COVERED CARPORT/PATIO | D | * | 2013 | 216.0 |
| | RPC | OPEN PORCH W/ROOF , CEILED | D | * | 2013 | 250.0 |
| | UTST | Utility Storage Shed | D | * | 2013 | 1608.0 |
| | SI1 | SITE IMPROVEMENT | D | * | 2013 | 3.0 |
Sketch
Property Image
Land
| 1 | COM 1 | Converted: Commercial | 0.8280 | 36067.68 | 0.00 | 0.00 | 1.00 | $205,600 | $0 |
Roll Value History
| 2026 | N/A | N/A | N/A | N/A | N/A |
| 2025 | $267,130 | $205,600 | $0 | $472,730 | $472,730 |
| 2024 | $260,300 | $205,600 | $0 | $465,900 | $465,900 |
| 2023 | $260,300 | $205,600 | $0 | $465,900 | $465,900 |
| 2022 | $260,300 | $205,600 | $0 | $465,900 | $465,900 |
| 2021 | $257,000 | $205,600 | $0 | $462,600 | $462,600 |
| 2020 | $257,000 | $205,600 | $0 | $462,600 | $462,600 |
| 2019 | $257,000 | $205,600 | $0 | $462,600 | $462,600 |
| 2018 | $257,000 | $205,600 | $0 | $462,600 | $462,600 |
| 2017 | $257,000 | $205,600 | $0 | $462,600 | $462,600 |
| 2016 | $257,000 | $205,600 | $0 | $462,600 | $462,600 |
| 2015 | $282,600 | $180,000 | $0 | $462,600 | $462,600 |
| 2014 | $282,600 | $180,000 | $0 | $462,600 | $462,600 |
| 2013 | $26,900 | $180,000 | $0 | $206,900 | $206,900 |
| 2012 | $26,900 | $180,000 | $0 | $0 | $0 |
| 2011 | $26,900 | $180,000 | $0 | $0 | $0 |
| 2010 | $48,800 | $89,000 | $0 | $0 | $0 |
| 2009 | $48,700 | $35,600 | $0 | $0 | $0 |
| 2008 | $48,700 | $35,600 | $0 | $0 | $0 |
| 2007 | $48,700 | $35,600 | $0 | $0 | $0 |
Deed and Sales History
| 1 | 09/09/2013 | WARRANTY D | WARRANTY DEED | CARPENTER INVESTMENTS LLC | FRANDSEN, GREG | | | $190,000.00 | 124625 | 2013-09251 |
| 2 | 10/28/2011 | WARRANTY D | WARRANTY DEED | GLOBAL MORTGAGE & CREDIT LLC | CARPENTER INVESTMENTS LLC | | | $20,000.00 | 120889 | 2011-08439 |
| 3 | 09/13/2011 | WARRANTY D | WARRANTY DEED | GRUDZINSKI, RANDALL C | GLOBAL MORTGAGE & CREDIT LLC | | | | 120686 | 2011-07146 |
| 4 | 02/29/2000 | WARRANTY D | WARRANTY DEED | | | | | $105,000.00 | 94600 | 2950-001940 |
Payout Agreement
| No payout information available.. |