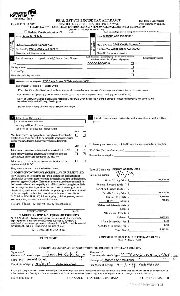
| 1 | 09/12/2019 | SWD | STATUTORY WARRANTY DEED | SCHULZ ANNE M | MEIDINGER MARJORIE ANN | | | $351,500.00 | 137668 | 2019-07100 |
| 2 | 03/05/2019 | ADMD | ADMINISTRATOR'S DEED | KUPFER NICHOLAS D | SCHULZ ANNE M | | | $0.00 | 136467 | 2019-01430 |
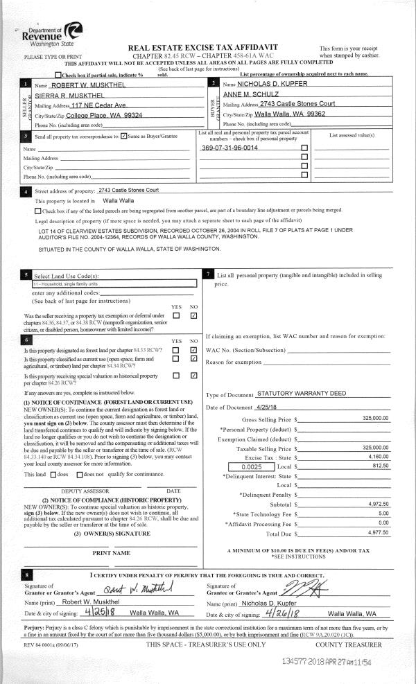
| 3 | 04/27/2018 | SWD | STATUTORY WARRANTY DEED | MUSKTHEL ROBERT W & SIERRA R | KUPFER NICHOLAS D | | | $325,000.00 | 134577 | 2018-03313 |
| 4 | 08/05/2016 | QCD | QUIT CLAIM DEED | MUSKTHEL ROBERT W | MUSKTHEL ROBERT W & SIERRA R | | | $0.00 | 130811 | 2016-06376 |
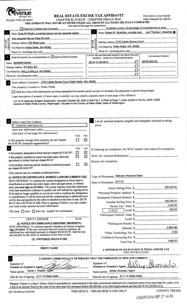
| 5 | 09/17/2014 | SWD | STATUTORY WARRANTY DEED | UNCK CHAEMI | MUSKTHEL ROBERT W | | | $252,000.00 | 126659 | 2014-06821 |
| 6 | 10/16/2013 | QCD | QUIT CLAIM DEED | UNCK, MICHAEL BAREND | UNCK, CHAEMI | | | $0.00 | 124825 | 2013-10400 |
| 7 | 02/08/2013 | WARRANTY D | WARRANTY DEED | "UNCK, MICHAEL B" | | | | | 0 | CC #12-3-00306-2 |
| 8 | 09/01/2011 | WARRANTY D | WARRANTY DEED | DYERLY, KEVIN M & JENNIE V | UNCK, MICHAEL BAREND & CHAE MI | | | $248,000.00 | 120666 | 2011-06883 |
| 9 | 07/08/2005 | WARRANTY D | WARRANTY DEED | ROFF HOMES INC | DYERLY, KEVIN M & JENNIE V | | | $253,900.00 | 107914 | 2005-08291 |
| 10 | 11/19/2004 | WARRANTY D | WARRANTY DEED | KNUDSON, EVERETT & BARBARA | ROFF HOMES INC | | | $447,000.00 | 106242 | 2004-13345 |
|   | |
| 11 | 10/27/2004 | WARRANTY D | WARRANTY DEED | "KNUDSON, EVERETT &~BARBARA" | KNUDSON EVERETT & BARBARA | | | | 106057 | 2004-12415 |