Property
Account |
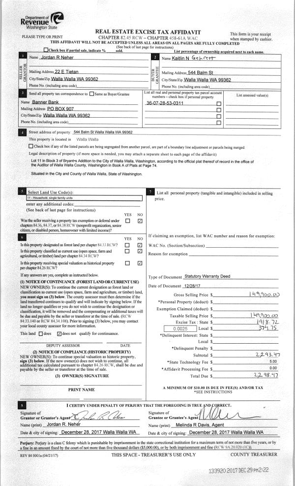
| Property ID: | 32327 | Abbreviated Legal Description: | BRYANTS LT 11 BLK 3 |
| Parcel Number: | 360728530311 | Agent Code: | |
| Type: | Real | | |
| Tax Area: | 1 - OL-140-F | Land Use Code | 11 |
| Open Space: | N | DFL | N |
| Historic Property: | N | Remodel Property: | N |
| Multi-Family Redevelopment: | N | | |
| Township: | 7 | Section: | 28 |
| Range: | 36 |
Location |
| Address: | 554 BALM ST WA 99362 | Mapsco: | |
| Neighborhood: | A Res | Map ID: | |
| Neighborhood CD: | 613011 |
Owner |
| Name: | GEHRETT KAITLIN N | Owner ID: | 62341 |
| Mailing Address: | 554 BALM ST WALLA WALLA, WA 99362 | % Ownership: | 100.0000000000% |
| | | Exemptions: | |
Taxes and Assessment Details
Property Tax Information as of
02/21/2026
Click on "Statement Details" to expand or collapse a tax statement.
* Please enter a valid date ** Please enter a valid date *
Statement Details |
| | TOTAL: | $0.00 | $0.00 | $0.00 | $0.00 | $0.00 | $0.00 |
|
| | $0.00 | $0.00 | $0.00 | $0.00 | $0.00 | $0.00 |
Values
| (+) Improvement Homesite Value: | + | $0 | |
| (+) Improvement Non-Homesite Value: | + | $187,660 | |
| (+) Land Homesite Value: | + | $0 | |
| (+) Land Non-Homesite Value: | + | $70,000 | |
| (+) Curr Use (HS): | + | $0 | $0 |
| (+) Curr Use (NHS): | + | $0 | $0 |
| | | -------------------------- | |
| (=) Market Value: | = | $257,660 | |
| (–) Productivity Loss: | – | $0 | |
| | | -------------------------- | |
| (=) Subtotal: | = | $257,660 | |
| (+) Senior Appraised Value: | + | $0 | |
| (+) Non-Senior Appraised Value: | + | $257,660 | |
| | | -------------------------- | |
| (=) Total Appraised Value: | = | $257,660 | |
| (–) Senior Exemption Loss: | – | $0 | |
| (–) Exemption Loss: | – | $0 | |
| | | -------------------------- | |
| (=) Taxable Value: | = | $257,660 | |
Taxing Jurisdiction
| Owner: | GEHRETT KAITLIN N | | |
| % Ownership: | 100.0000000000% | | |
| Total Value: | $257,660 | | |
| Tax Area: | 1 - OL-140-F |
| CERFD | CURRENT EXPENSE REFUND 010 | 0.0000000000 | $257,660 | $257,660 | $0.00 | | |
| CURREXP | CURRENT EXPENSE 010 | 1.0175366760 | $257,660 | $257,660 | $262.18 | | |
| HUMNSERV | HUMAN SERVICES 119 | 0.0250000000 | $257,660 | $257,660 | $6.44 | | |
| SLDREL | SOLDIERS RELIEF 121 | 0.0155990005 | $257,660 | $257,660 | $4.02 | | |
| EMERGSER | EMS 147 | 0.3792580840 | $257,660 | $257,660 | $97.72 | | |
| EMSRFD | EMS REFUND 147 | 0.0000000000 | $257,660 | $257,660 | $0.00 | | |
| PORTRFD | PORT REFUND 640 | 0.0000000000 | $257,660 | $257,660 | $0.00 | | |
| PORTWWGEN | PORT OF WW 640 | 0.2460186015 | $257,660 | $257,660 | $63.39 | | |
| SD140BOND | SD #140 BOND 764 | 0.8342371393 | $257,660 | $257,660 | $214.95 | | |
| SD140GEN | SD #140 GENERAL 760 | 2.0646500647 | $257,660 | $257,660 | $531.98 | | |
| ST2 | STATE SCHOOL PART 2 600 | 0.8131451643 | $257,660 | $257,660 | $209.51 | | |
| STATESCHL | STATE SCHOOL 600 | 1.5158548041 | $257,660 | $257,660 | $390.58 | | |
| STREFUND | STATE REFUND LEVY 603 | 0.0000000000 | $257,660 | $257,660 | $0.00 | | |
| CWWBOND | C OF WW BOND 643 | 0.2760494372 | $257,660 | $257,660 | $71.13 | | |
| CWWGEN | CITY OF WW 631 | 1.6100204973 | $257,660 | $257,660 | $414.84 | | |
| CWWRFD | CITY OF WALLA WALLA REFUND 631 | 0.0000000000 | $257,660 | $257,660 | $0.00 | | |
| | Total Tax Rate: | 8.7973694689 | | | | | |
| | | | | Taxes w/Current Exemptions: | $2,266.74 | | |
| | | | | Taxes w/o Exemptions: | $2,266.74 | | |
Improvement / Building
| Improvement #1: | RESIDENTIAL | State Code: | 11 | 1098.0 sqft | Value: | $187,660 |
| Exterior Wall: | SIDING | Heating/Cooling: | WARM & COOLED AIR | | Number of Bathrooms: | 1 | Number of Bedrooms: | 4 | | Plumbing: | 7 | Roof Covering: | COMP SHINGLE |
|
| | Type | Description | Class CD | Sub Class CD | Year Built | Area |
| | MA | Main Area | 4 | 25 | 1922 | 1098.0 |
| | UPFL | Upper Floor (included in main area) | 4 | 25 | 1922 | 315.0 |
| | SI1 | SITE IMPROVEMENT | 4 | 25 | 1922 | 1.5 |
| | OPS | OPEN PORCH W/STEPS | 4 | 25 | 1922 | 20.0 |
| | WOD | Wood Deck | 4 | 25 | 1922 | 192.0 |
| | CELL | CELLAR-NO VALUE | 4 | 25 | 1922 | 168.0 |
Sketch
Property Image
Land
| 1 | RES 1 | Converted: Residential | 0.1377 | 6000.00 | 0.00 | 0.00 | 1.00 | $70,000 | $0 |
Roll Value History
| 2026 | N/A | N/A | N/A | N/A | N/A |
| 2025 | $187,840 | $66,000 | $0 | $253,840 | $253,840 |
| 2024 | $187,660 | $70,000 | $0 | $257,660 | $257,660 |
| 2023 | $187,660 | $70,000 | $0 | $257,660 | $257,660 |
| 2022 | $187,660 | $55,000 | $0 | $242,660 | $242,660 |
| 2021 | $144,350 | $55,000 | $0 | $199,350 | $199,350 |
| 2020 | $103,110 | $55,000 | $0 | $158,110 | $158,110 |
| 2019 | $103,110 | $55,000 | $0 | $158,110 | $158,110 |
| 2018 | $109,920 | $36,000 | $0 | $145,920 | $145,920 |
| 2017 | $91,600 | $36,000 | $0 | $127,600 | $127,600 |
| 2016 | $91,600 | $36,000 | $0 | $127,600 | $127,600 |
| 2015 | $91,600 | $36,000 | $0 | $127,600 | $127,600 |
| 2014 | $91,600 | $36,000 | $0 | $127,600 | $127,600 |
| 2013 | $91,600 | $36,000 | $0 | $127,600 | $127,600 |
| 2012 | $67,000 | $36,000 | $0 | $0 | $0 |
| 2011 | $67,000 | $36,000 | $0 | $0 | $0 |
| 2010 | $67,000 | $36,000 | $0 | $0 | $0 |
| 2009 | $78,400 | $36,000 | $0 | $0 | $0 |
| 2008 | $78,400 | $36,000 | $0 | $0 | $0 |
| 2007 | $51,800 | $18,000 | $0 | $0 | $0 |
Deed and Sales History
| 1 | 12/29/2017 | SWD | STATUTORY WARRANTY DEED | NEHER JORDAN R & ALICIA A | GEHRETT KAITLIN N | | | $149,900.00 | 133920 | 2017-10513 |
| 2 | 09/07/2011 | WARRANTY D | WARRANTY DEED | WIESE, DEBORAH | NEHER, JORDAN R & ALICIA A | | | $133,000.00 | 120661 | 2011-07008 |
| 3 | 08/01/2005 | WARRANTY D | WARRANTY DEED | HENDERSHOT, LEONARD P | WIESE, DEBORAH | | | $115,000.00 | 108117 | 2005-09419 |
| 4 | 07/20/2004 | QCD | QUIT CLAIM DEED | HENDERSHOT, LEONARD P | HENDERSHOT, LEONARD P | | | | 105282 | 2004-08156 |
| 5 | 10/30/2002 | QCD | QUIT CLAIM DEED | HENDERSHOT, LETICIA | HENDERSHOT, LEONARD P | | | | 100696 | 2002-12247 |
| 6 | 05/31/2002 | WARRANTY D | WARRANTY DEED | | | | | $69,900.00 | 99624 | 2002-0006371 |
Payout Agreement
| No payout information available.. |