Property
Account |
| Property ID: | 32324 | Abbreviated Legal Description: | 7-6-36 LOT 3-B OF SHORT PLAT (PTNS TAX 2 & 10 IN SE1/4SW1/4 ANDSW1/4SE1/4) |
| Parcel Number: | 360607340001 | Agent Code: | |
| Type: | Real | | |
| Tax Area: | 101 - 140-4 | Land Use Code | 11 |
| Open Space: | N | DFL | N |
| Historic Property: | N | Remodel Property: | N |
| Multi-Family Redevelopment: | N | | |
| Township: | 6 | Section: | 7 |
| Range: | 36 |
Location |
| Address: | 321 HELAMAN RD WA 99362 | Mapsco: | |
| Neighborhood: | CYCLE 4 EXCELLENT (A) | Map ID: | |
| Neighborhood CD: | 416012 |
Owner |
| Name: | SUKO GREGORY E | Owner ID: | 64477 |
| Mailing Address: | JONNA L PIETROMONACO 321 HELAMAN RD WALLA WALLA, WA 99362 | % Ownership: | 100.0000000000% |
| | | Exemptions: | |
Taxes and Assessment Details
Values
| (+) Improvement Homesite Value: | + | $0 | |
| (+) Improvement Non-Homesite Value: | + | $1,166,220 | |
| (+) Land Homesite Value: | + | $0 | |
| (+) Land Non-Homesite Value: | + | $273,430 | |
| (+) Curr Use (HS): | + | $0 | $0 |
| (+) Curr Use (NHS): | + | $0 | $0 |
| | | -------------------------- | |
| (=) Market Value: | = | $1,439,650 | |
| (–) Productivity Loss: | – | $0 | |
| | | -------------------------- | |
| (=) Subtotal: | = | $1,439,650 | |
| (+) Senior Appraised Value: | + | $0 | |
| (+) Non-Senior Appraised Value: | + | $1,439,650 | |
| | | -------------------------- | |
| (=) Total Appraised Value: | = | $1,439,650 | |
| (–) Senior Exemption Loss: | – | $0 | |
| (–) Exemption Loss: | – | $0 | |
| | | -------------------------- | |
| (=) Taxable Value: | = | $1,439,650 | |
Taxing Jurisdiction
| Owner: | SUKO GREGORY E | | |
| % Ownership: | 100.0000000000% | | |
| Total Value: | $1,439,650 | | |
| Tax Area: | 101 - 140-4 |
| CERFD | CURRENT EXPENSE REFUND 010 | 0.0000000000 | $1,439,650 | $1,439,650 | $0.00 | | |
| CURREXP | CURRENT EXPENSE 010 | 1.0175366760 | $1,439,650 | $1,439,650 | $1,464.90 | | |
| HUMNSERV | HUMAN SERVICES 119 | 0.0250000000 | $1,439,650 | $1,439,650 | $35.99 | | |
| SLDREL | SOLDIERS RELIEF 121 | 0.0155990005 | $1,439,650 | $1,439,650 | $22.46 | | |
| EMERGSER | EMS 147 | 0.3792580840 | $1,439,650 | $1,439,650 | $546.00 | | |
| EMSRFD | EMS REFUND 147 | 0.0000000000 | $1,439,650 | $1,439,650 | $0.00 | | |
| FD4EXP | FD #4 EXPENSE 686 | 0.8836993059 | $1,439,650 | $1,439,650 | $1,272.22 | | |
| RLBRFD | RURAL LIBRARY REFUND 623 | 0.0000000000 | $1,439,650 | $1,439,650 | $0.00 | | |
| RURALLIB | RURAL LIBRARY 623 | 0.3710609029 | $1,439,650 | $1,439,650 | $534.20 | | |
| PORTRFD | PORT REFUND 640 | 0.0000000000 | $1,439,650 | $1,439,650 | $0.00 | | |
| PORTWWGEN | PORT OF WW 640 | 0.2460186015 | $1,439,650 | $1,439,650 | $354.18 | | |
| SD140BOND | SD #140 BOND 764 | 0.8342371393 | $1,439,650 | $1,439,650 | $1,201.01 | | |
| SD140GEN | SD #140 GENERAL 760 | 2.0646500647 | $1,439,650 | $1,439,650 | $2,972.37 | | |
| ST2 | STATE SCHOOL PART 2 600 | 0.8131451643 | $1,439,650 | $1,439,650 | $1,170.64 | | |
| STATESCHL | STATE SCHOOL 600 | 1.5158548041 | $1,439,650 | $1,439,650 | $2,182.30 | | |
| STREFUND | STATE REFUND LEVY 603 | 0.0000000000 | $1,439,650 | $1,439,650 | $0.00 | | |
| COROAD | COUNTY ROAD 115 | 1.6549953990 | $1,439,650 | $1,439,650 | $2,382.61 | | |
| CRPRD | COUNTY ROAD REFUND 115 | 0.0000000000 | $1,439,650 | $1,439,650 | $0.00 | | |
| | Total Tax Rate: | 9.8210551422 | | | | | |
| | | | | Taxes w/Current Exemptions: | $14,138.88 | | |
| | | | | Taxes w/o Exemptions: | $14,138.88 | | |
Improvement / Building
| Improvement #1: | RESIDENTIAL | State Code: | 11 | 3978.0 sqft | Value: | $1,166,220 |
| Exterior Wall: | STUCCO | Foundation: | SLAB | | Heating/Cooling: | HEAT PUMP | Number of Bathrooms: | 3 | | Number of Bedrooms: | 3 | Plumbing: | 17 | | Roof Covering: | COMP SHINGLE |   |   |
|
| | Type | Description | Class CD | Sub Class CD | Year Built | Area |
| | MA | Main Area | 1 | 55 | 2020 | 3978.0 |
| | GFP | GAS FIREPLACE | 1 | 55 | 0 | 2.0 |
| | SI1 | SITE IMPROVEMENT | 1 | 55 | 0 | 8.0 |
| | SMP | SWIMMING POOL | 1 | 55 | 0 | 1.0 |
| | ATG | Attached Garage | 1 | 55 | 2020 | 1809.0 |
| | RPC | OPEN PORCH W/ROOF , CEILED | 1 | 55 | 2020 | 560.0 |
| | RPC | OPEN PORCH W/ROOF , CEILED | 1 | 55 | 2020 | 125.0 |
Sketch
Property Image
Land
| 1 | RES 1 | Converted: Residential | 10.3500 | 0.00 | 0.00 | 0.00 | 1.00 | $273,430 | $0 |
Roll Value History
| 2026 | N/A | N/A | N/A | N/A | N/A |
| 2025 | $1,574,400 | $273,430 | $0 | $1,847,830 | $1,847,830 |
| 2024 | $1,166,220 | $273,430 | $0 | $1,439,650 | $1,439,650 |
| 2023 | $1,166,220 | $273,430 | $0 | $1,439,650 | $1,439,650 |
| 2022 | $1,060,200 | $130,200 | $0 | $1,190,400 | $1,190,400 |
| 2021 | $883,500 | $130,200 | $0 | $1,013,700 | $1,013,700 |
| 2020 | $883,500 | $130,200 | $0 | $1,013,700 | $1,013,700 |
| 2019 | $13,000 | $169,740 | $0 | $182,740 | $182,740 |
| 2018 | $13,000 | $130,200 | $0 | $143,200 | $143,200 |
| 2017 | $13,000 | $130,200 | $0 | $143,200 | $143,200 |
| 2016 | $13,000 | $130,200 | $0 | $143,200 | $143,200 |
| 2015 | $13,000 | $130,200 | $0 | $143,200 | $143,200 |
| 2014 | $13,000 | $130,200 | $0 | $143,200 | $143,200 |
| 2013 | $13,000 | $130,200 | $0 | $143,200 | $143,200 |
| 2012 | $13,000 | $130,200 | $0 | $0 | $0 |
| 2011 | $0 | $130,200 | $0 | $0 | $0 |
| 2010 | $0 | $130,200 | $0 | $0 | $0 |
| 2009 | $0 | $130,200 | $0 | $0 | $0 |
| 2008 | $0 | $62,100 | $0 | $0 | $0 |
| 2007 | $0 | $11,400 | $0 | $0 | $0 |
Deed and Sales History
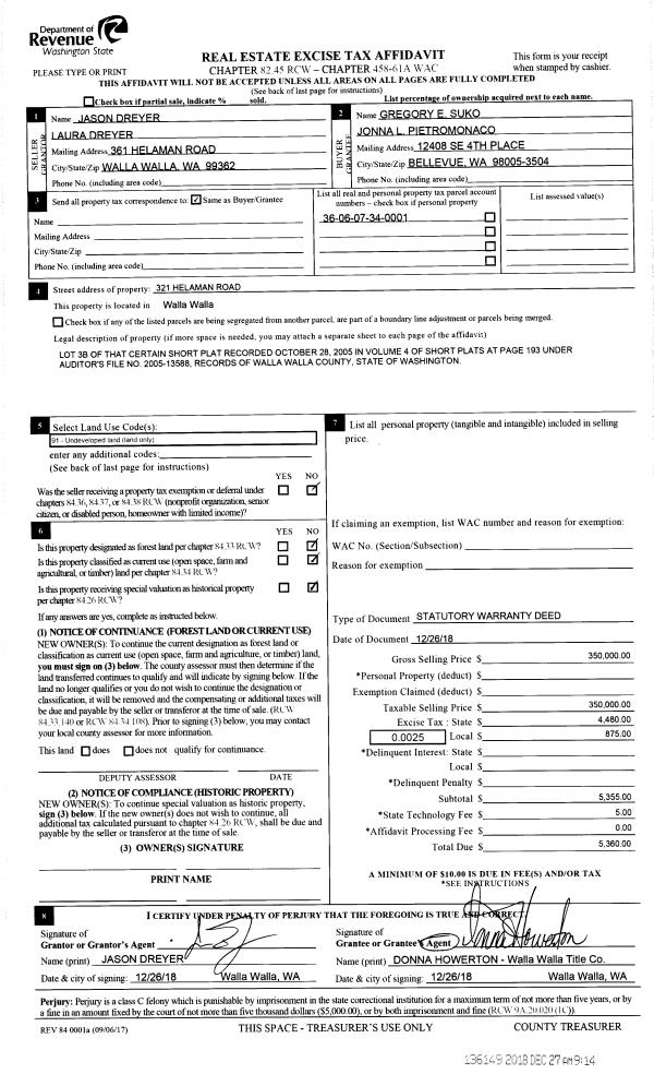
| 1 | 12/27/2018 | SWD | STATUTORY WARRANTY DEED | DREYER JASON & LAURA | SUKO GREGORY E | | | $350,000.00 | 136149 | 2018-10627 |
| 2 | 09/21/2015 | SWD | STATUTORY WARRANTY DEED | WILWAND MICHAEL J & ARLA MICHELLE | DREYER JASON & LAURA | | | $250,000.00 | 128860 | 2015-08250 |
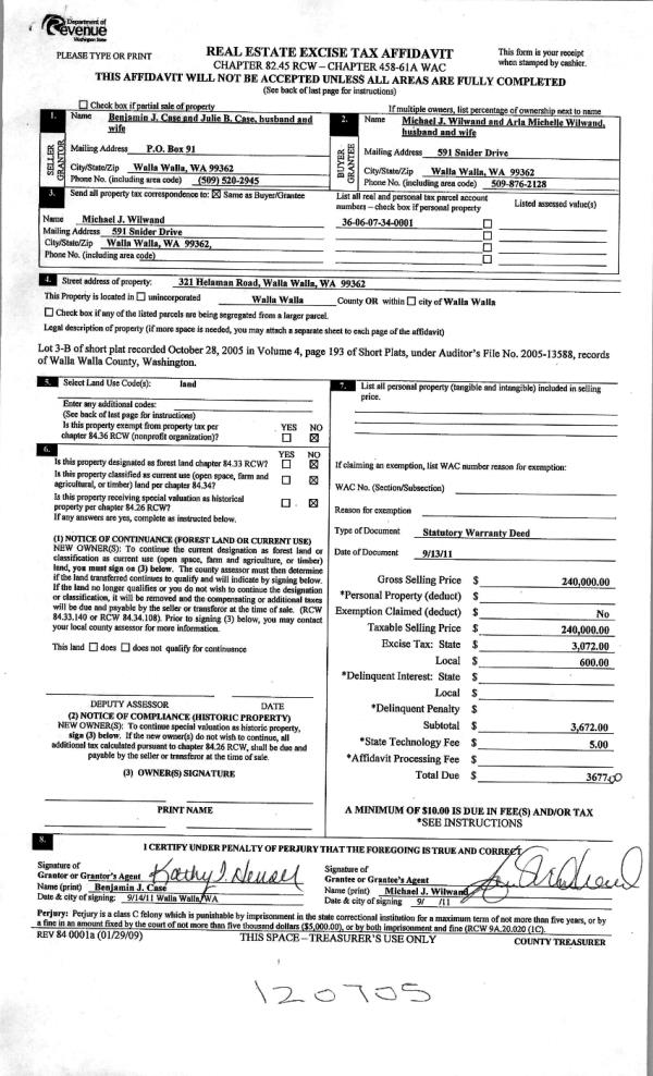
| 3 | 09/16/2011 | WARRANTY D | WARRANTY DEED | CASE, BENJAMIN & JULIE | WILWAND, MICHAEL J & ARLA MICH | | | $240,000.00 | 120705 | 2011-07240 |
| 4 | 07/26/2007 | WARRANTY D | WARRANTY DEED | GILBERT, MARK W & SUSAN G | CASE, BENJAMIN & JULIE | | | $200,000.00 | 113352 | 2007-08670 |
Payout Agreement
| No payout information available.. |