Property
Account |
| Property ID: | 32322 | Abbreviated Legal Description: | MT VISTA ADDN LOT 16 BLK 1 |
| Parcel Number: | 350725560116 | Agent Code: | |
| Type: | Real | | |
| Tax Area: | 75 - CP 250 | Land Use Code | 11 |
| Open Space: | N | DFL | N |
| Historic Property: | N | Remodel Property: | N |
| Multi-Family Redevelopment: | N | | |
| Township: | 7 | Section: | 25 |
| Range: | 35 |
Location |
| Address: | 24 NE TREMONT DR WA 99324 | Mapsco: | |
| Neighborhood: | G SFR | Map ID: | |
| Neighborhood CD: | 114011 |
Owner |
| Name: | BEEBE ADRIENNE ROSE | Owner ID: | 73775 |
| Mailing Address: | STEPHANIE LAUREN SMITH 24 NE TREMONT DR COLLEGE PLACE, WA 99324 | % Ownership: | 100.0000000000% |
| | | Exemptions: | |
Taxes and Assessment Details
Values
| (+) Improvement Homesite Value: | + | $0 | |
| (+) Improvement Non-Homesite Value: | + | $239,150 | |
| (+) Land Homesite Value: | + | $0 | |
| (+) Land Non-Homesite Value: | + | $75,000 | |
| (+) Curr Use (HS): | + | $0 | $0 |
| (+) Curr Use (NHS): | + | $0 | $0 |
| | | -------------------------- | |
| (=) Market Value: | = | $314,150 | |
| (–) Productivity Loss: | – | $0 | |
| | | -------------------------- | |
| (=) Subtotal: | = | $314,150 | |
| (+) Senior Appraised Value: | + | $0 | |
| (+) Non-Senior Appraised Value: | + | $314,150 | |
| | | -------------------------- | |
| (=) Total Appraised Value: | = | $314,150 | |
| (–) Senior Exemption Loss: | – | $0 | |
| (–) Exemption Loss: | – | $0 | |
| | | -------------------------- | |
| (=) Taxable Value: | = | $314,150 | |
Taxing Jurisdiction
| Owner: | BEEBE ADRIENNE ROSE | | |
| % Ownership: | 100.0000000000% | | |
| Total Value: | $314,150 | | |
| Tax Area: | 75 - CP 250 |
| CERFD | CURRENT EXPENSE REFUND 010 | 0.0000000000 | $314,150 | $314,150 | $0.00 | | |
| CURREXP | CURRENT EXPENSE 010 | 1.0175366760 | $314,150 | $314,150 | $319.66 | | |
| HUMNSERV | HUMAN SERVICES 119 | 0.0250000000 | $314,150 | $314,150 | $7.85 | | |
| SLDREL | SOLDIERS RELIEF 121 | 0.0155990005 | $314,150 | $314,150 | $4.90 | | |
| COLLPLBOND | C OF CP BOND 644 | 0.4374241808 | $314,150 | $314,150 | $137.42 | | |
| COLLPLGEN | CITY OF CP 632 | 1.4453819216 | $314,150 | $314,150 | $454.07 | | |
| EMERGSER | EMS 147 | 0.3792580840 | $314,150 | $314,150 | $119.14 | | |
| EMSRFD | EMS REFUND 147 | 0.0000000000 | $314,150 | $314,150 | $0.00 | | |
| RURALLIB | RURAL LIBRARY 623 | 0.3710609029 | $314,150 | $314,150 | $116.57 | | |
| PORTRFD | PORT REFUND 640 | 0.0000000000 | $314,150 | $314,150 | $0.00 | | |
| PORTWWGEN | PORT OF WW 640 | 0.2460186015 | $314,150 | $314,150 | $77.29 | | |
| SD250BOND | SD #250 BOND 773 | 1.4560608159 | $314,150 | $314,150 | $457.42 | | |
| SD250GEN | SD #250 GENERAL 770 | 2.3880724087 | $314,150 | $314,150 | $750.21 | | |
| ST2 | STATE SCHOOL PART 2 600 | 0.8131451643 | $314,150 | $314,150 | $255.45 | | |
| STATESCHL | STATE SCHOOL 600 | 1.5158548041 | $314,150 | $314,150 | $476.21 | | |
| STREFUND | STATE REFUND LEVY 603 | 0.0000000000 | $314,150 | $314,150 | $0.00 | | |
| | Total Tax Rate: | 10.1104125603 | | | | | |
| | | | | Taxes w/Current Exemptions: | $3,176.19 | | |
| | | | | Taxes w/o Exemptions: | $3,176.19 | | |
Improvement / Building
| Improvement #1: | RESIDENTIAL | State Code: | 11 | 1490.0 sqft | Value: | $239,150 |
| Exterior Wall: | VINYL | Heating/Cooling: | WARM & COOLED AIR | | Number of Bathrooms: | 3 | Number of Bedrooms: | 4 | | Plumbing: | 12 | Roof Covering: | COMP SHINGLE |
|
| | Type | Description | Class CD | Sub Class CD | Year Built | Area |
| | MA | Main Area | 1 | 30 | 1968 | 1490.0 |
| | SI1 | SITE IMPROVEMENT | 1 | 30 | 1968 | 1.5 |
| | ATG | Attached Garage | 1 | 30 | 1968 | 462.0 |
| | RPO | OPEN PORCH W/ROOF | 1 | 30 | 1968 | 138.0 |
| | S1F | Single One Story Fireplace | 1 | 30 | 1968 | 1.0 |
| | UTST | Utility Storage Shed | 1 | 30 | 1968 | 96.0 |
Sketch
Property Image
Land
| 1 | RES 1 | Converted: Residential | 0.2444 | 10646.00 | 0.00 | 0.00 | 1.00 | $75,000 | $0 |
Roll Value History
| 2026 | N/A | N/A | N/A | N/A | N/A |
| 2025 | $243,930 | $125,000 | $0 | $368,930 | $368,930 |
| 2024 | $286,980 | $75,000 | $0 | $361,980 | $361,980 |
| 2023 | $239,150 | $75,000 | $0 | $314,150 | $314,150 |
| 2022 | $239,150 | $75,000 | $0 | $314,150 | $314,150 |
| 2021 | $170,820 | $75,000 | $0 | $245,820 | $245,820 |
| 2020 | $131,400 | $75,000 | $0 | $206,400 | $206,400 |
| 2019 | $146,400 | $60,000 | $0 | $206,400 | $206,400 |
| 2018 | $112,610 | $60,000 | $0 | $172,610 | $172,610 |
| 2017 | $90,090 | $60,000 | $0 | $150,090 | $150,090 |
| 2016 | $90,090 | $60,000 | $0 | $150,090 | $150,090 |
| 2015 | $90,090 | $60,000 | $0 | $150,090 | $150,090 |
| 2014 | $100,100 | $60,000 | $0 | $160,100 | $160,100 |
| 2013 | $100,100 | $60,000 | $0 | $160,100 | $160,100 |
| 2012 | $124,000 | $60,000 | $0 | $0 | $0 |
| 2011 | $124,000 | $60,000 | $0 | $0 | $0 |
| 2010 | $124,000 | $60,000 | $0 | $0 | $0 |
| 2009 | $133,700 | $60,000 | $0 | $0 | $0 |
| 2008 | $111,200 | $30,000 | $0 | $0 | $0 |
| 2007 | $111,200 | $30,000 | $0 | $0 | $0 |
Deed and Sales History
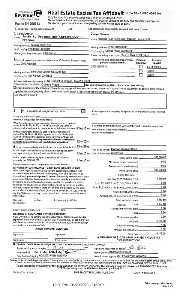
| 1 | 06/20/2023 | SWD | STATUTORY WARRANTY DEED | LOMELI JANIE L | BEEBE ADRIENNE ROSE | | | $385,500.00 | 146019 | 2023-03419 |
| 2 | 02/22/2018 | SWD | STATUTORY WARRANTY DEED | PETERSON DELVIN E & SARA B | LOMELI JANIE L | | | $219,500.00 | 134191 | 2018-01465 |
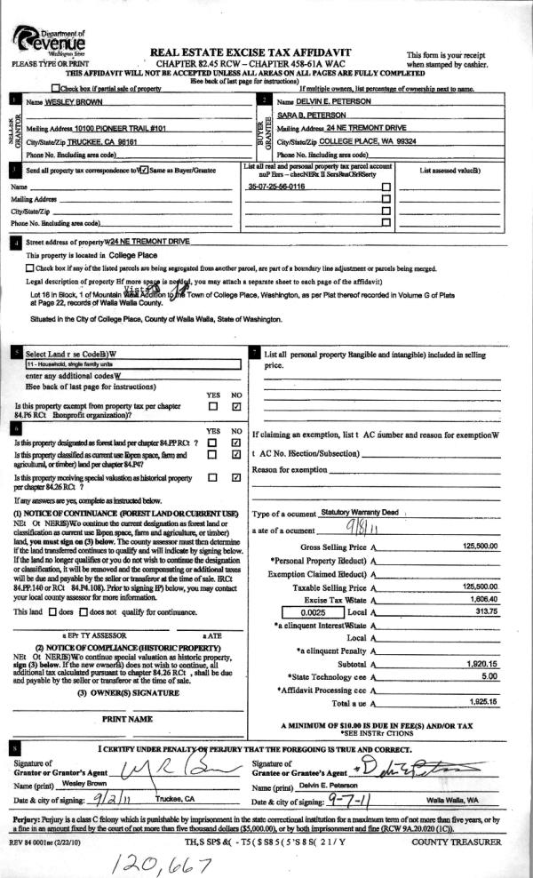
| 3 | 09/08/2011 | WARRANTY D | WARRANTY DEED | BROWN, WESLEY | PETERSON, DELVIN E & SARA B | | | $125,500.00 | 120667 | 2011-07023 |
| 4 | 11/18/2004 | QCD | QUIT CLAIM DEED | BROWN, WESLEY & KAREN | BROWN, WESLEY | | | | 106223 | 2004-13308 |
| 5 | 11/18/2004 | WARRANTY D | WARRANTY DEED | CAMERLO, PETER A & CRIS J | BROWN, WESLEY | | | $150,300.00 | 106224 | 2004-13309 |
| 6 | 04/20/2001 | WARRANTY D | WARRANTY DEED | | | | | $110,000.00 | 97004 | 3110-103942 |
Payout Agreement
| No payout information available.. |