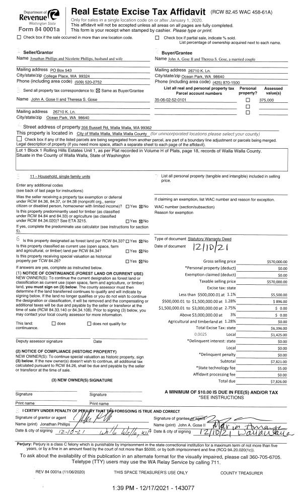
Property
Account |
| Property ID: | 3229 | Abbreviated Legal Description: | ROLLING HILLS ESTATES #1 LOT 1 BLK 1 |
| Parcel Number: | 350602520101 | Agent Code: | |
| Type: | Real | | |
| Tax Area: | 311 - 250-4 | Land Use Code | 11 |
| Open Space: | N | DFL | N |
| Historic Property: | N | Remodel Property: | N |
| Multi-Family Redevelopment: | N | | |
| Township: | 6 | Section: | 2 |
| Range: | 35 |
Location |
| Address: | 356 BUSSELL RD WA 99324 | Mapsco: | |
| Neighborhood: | VG SFR RURAL | Map ID: | |
| Neighborhood CD: | 215013 |
Owner |
| Name: | GOSE JOHN A II & THERESA S | Owner ID: | 70806 |
| Mailing Address: | 356 BUSSELL RD WALLA WALLA, WA 99362 | % Ownership: | 100.0000000000% |
| | | Exemptions: | |
Taxes and Assessment Details
Property Tax Information as of
02/21/2026
Click on "Statement Details" to expand or collapse a tax statement.
* Please enter a valid date ** Please enter a valid date *
Statement Details |
| | TOTAL: | $0.00 | $0.00 | $0.00 | $0.00 | $0.00 | $0.00 |
|
| | $0.00 | $0.00 | $0.00 | $0.00 | $0.00 | $0.00 |
Values
| (+) Improvement Homesite Value: | + | $0 | |
| (+) Improvement Non-Homesite Value: | + | $420,090 | |
| (+) Land Homesite Value: | + | $0 | |
| (+) Land Non-Homesite Value: | + | $152,730 | |
| (+) Curr Use (HS): | + | $0 | $0 |
| (+) Curr Use (NHS): | + | $0 | $0 |
| | | -------------------------- | |
| (=) Market Value: | = | $572,820 | |
| (–) Productivity Loss: | – | $0 | |
| | | -------------------------- | |
| (=) Subtotal: | = | $572,820 | |
| (+) Senior Appraised Value: | + | $0 | |
| (+) Non-Senior Appraised Value: | + | $572,820 | |
| | | -------------------------- | |
| (=) Total Appraised Value: | = | $572,820 | |
| (–) Senior Exemption Loss: | – | $0 | |
| (–) Exemption Loss: | – | $0 | |
| | | -------------------------- | |
| (=) Taxable Value: | = | $572,820 | |
Taxing Jurisdiction
| Owner: | GOSE JOHN A II & THERESA S | | |
| % Ownership: | 100.0000000000% | | |
| Total Value: | $572,820 | | |
| Tax Area: | 311 - 250-4 |
| CERFD | CURRENT EXPENSE REFUND 010 | 0.0000000000 | $572,820 | $572,820 | $0.00 | | |
| CURREXP | CURRENT EXPENSE 010 | 1.0175366760 | $572,820 | $572,820 | $582.87 | | |
| HUMNSERV | HUMAN SERVICES 119 | 0.0250000000 | $572,820 | $572,820 | $14.32 | | |
| SLDREL | SOLDIERS RELIEF 121 | 0.0155990005 | $572,820 | $572,820 | $8.94 | | |
| EMERGSER | EMS 147 | 0.3792580840 | $572,820 | $572,820 | $217.25 | | |
| EMSRFD | EMS REFUND 147 | 0.0000000000 | $572,820 | $572,820 | $0.00 | | |
| FD4EXP | FD #4 EXPENSE 686 | 0.8836993059 | $572,820 | $572,820 | $506.20 | | |
| RLBRFD | RURAL LIBRARY REFUND 623 | 0.0000000000 | $572,820 | $572,820 | $0.00 | | |
| RURALLIB | RURAL LIBRARY 623 | 0.3710609029 | $572,820 | $572,820 | $212.55 | | |
| PORTRFD | PORT REFUND 640 | 0.0000000000 | $572,820 | $572,820 | $0.00 | | |
| PORTWWGEN | PORT OF WW 640 | 0.2460186015 | $572,820 | $572,820 | $140.92 | | |
| SD250BOND | SD #250 BOND 773 | 1.4560608159 | $572,820 | $572,820 | $834.06 | | |
| SD250GEN | SD #250 GENERAL 770 | 2.3880724087 | $572,820 | $572,820 | $1,367.94 | | |
| ST2 | STATE SCHOOL PART 2 600 | 0.8131451643 | $572,820 | $572,820 | $465.79 | | |
| STATESCHL | STATE SCHOOL 600 | 1.5158548041 | $572,820 | $572,820 | $868.31 | | |
| STREFUND | STATE REFUND LEVY 603 | 0.0000000000 | $572,820 | $572,820 | $0.00 | | |
| COROAD | COUNTY ROAD 115 | 1.6549953990 | $572,820 | $572,820 | $948.01 | | |
| CRPRD | COUNTY ROAD REFUND 115 | 0.0000000000 | $572,820 | $572,820 | $0.00 | | |
| | Total Tax Rate: | 10.7663011628 | | | | | |
| | | | | Taxes w/Current Exemptions: | $6,167.16 | | |
| | | | | Taxes w/o Exemptions: | $6,167.16 | | |
Improvement / Building
| Improvement #1: | RESIDENTIAL | State Code: | 11 | 2886.0 sqft | Value: | $420,090 |
| Exterior Wall: | VINYL | Foundation: | SLAB FOUNDATION | | Heating/Cooling: | WARM & COOLED AIR | Number of Bathrooms: | 2 | | Number of Bedrooms: | 4 | Plumbing: | 10 | | Roof Covering: | COMP SHINGLE |   |   |
|
| | Type | Description | Class CD | Sub Class CD | Year Built | Area |
| | MA | Main Area | 3 | 35 | 1977 | 2886.0 |
| | SI1 | SITE IMPROVEMENT | 3 | 35 | 1977 | 2.5 |
| | S1F | Single One Story Fireplace | 3 | 35 | 1977 | 1.0 |
| | WOD | Wood Deck | 3 | 35 | 1977 | 120.0 |
| | WDR | WOOD DECK W/ROOF | 3 | 35 | 1977 | 384.0 |
| | ATG | Attached Garage | 3 | 35 | 1977 | 832.0 |
Sketch
Property Image
Land
| 1 | RES 1 | Converted: Residential | 1.1200 | 0.00 | 0.00 | 0.00 | 1.00 | $152,730 | $0 |
Roll Value History
| 2026 | N/A | N/A | N/A | N/A | N/A |
| 2025 | $504,110 | $152,730 | $0 | $656,840 | $656,840 |
| 2024 | $504,110 | $152,730 | $0 | $656,840 | $656,840 |
| 2023 | $420,090 | $152,730 | $0 | $572,820 | $572,820 |
| 2022 | $400,090 | $152,730 | $0 | $552,820 | $552,820 |
| 2021 | $222,270 | $152,730 | $0 | $375,000 | $375,000 |
| 2020 | $222,270 | $90,500 | $0 | $312,770 | $312,770 |
| 2019 | $222,270 | $90,500 | $0 | $312,770 | $312,770 |
| 2018 | $222,270 | $90,500 | $0 | $312,770 | $312,770 |
| 2017 | $317,530 | $90,500 | $0 | $408,030 | $408,030 |
| 2016 | $264,610 | $90,500 | $0 | $355,110 | $355,110 |
| 2015 | $252,010 | $90,500 | $0 | $342,510 | $342,510 |
| 2014 | $229,100 | $90,500 | $0 | $319,600 | $319,600 |
| 2013 | $229,100 | $90,500 | $0 | $319,600 | $319,600 |
| 2012 | $229,100 | $90,500 | $0 | $0 | $0 |
| 2011 | $199,100 | $120,500 | $0 | $0 | $0 |
| 2010 | $199,100 | $120,500 | $0 | $0 | $0 |
| 2009 | $301,600 | $45,500 | $0 | $0 | $0 |
| 2008 | $185,900 | $45,500 | $0 | $0 | $0 |
| 2007 | $185,900 | $45,500 | $0 | $0 | $0 |
Deed and Sales History
| 1 | 12/17/2021 | SWD | STATUTORY WARRANTY DEED | PHILLIPS JONATHAN & NICOLETTE | GOSE JOHN A II & THERESA S | | | $570,000.00 | 143077 | 2021-14815 |
| 2 | 04/18/2018 | SWD | STATUTORY WARRANTY DEED | PHIPPS DAN & SHELLY J | PHILLIPS JONATHAN & NICOLETTE | | | $310,000.00 | 134514 | 2018-03011 |
| 3 | 03/14/1991 | WARRANTY D | WARRANTY DEED | | | | | $125,000.00 | 0 | 1879-101510 |
Payout Agreement
| No payout information available.. |