Property
Account |
| Property ID: | 32251 | Abbreviated Legal Description: | ARTESIAN ACRES SUBD LT 3 |
| Parcel Number: | 350726640003 | Agent Code: | |
| Type: | Real | | |
| Tax Area: | 311 - 250-4 | Land Use Code | 11 |
| Open Space: | N | DFL | N |
| Historic Property: | N | Remodel Property: | N |
| Multi-Family Redevelopment: | N | | |
| Township: | 7 | Section: | 26 |
| Range: | 35 |
Location |
| Address: | 805 S HUSSEY ST WA 99324 | Mapsco: | |
| Neighborhood: | A SFR Rural/City Infl | Map ID: | |
| Neighborhood CD: | 313012 |
Owner |
| Name: | HOLM GREGORY EUGENE & CAROLYN SUE | Owner ID: | 70369 |
| Mailing Address: | 805 HUSSEY ST WALLA WALLA, WA 99362 | % Ownership: | 100.0000000000% |
| | | Exemptions: | |
Taxes and Assessment Details
Property Tax Information as of
02/21/2026
Click on "Statement Details" to expand or collapse a tax statement.
* Please enter a valid date ** Please enter a valid date *
Statement Details |
| | TOTAL: | $0.00 | $0.00 | $0.00 | $0.00 | $0.00 | $0.00 |
|
| | $0.00 | $0.00 | $0.00 | $0.00 | $0.00 | $0.00 |
Values
| (+) Improvement Homesite Value: | + | $0 | |
| (+) Improvement Non-Homesite Value: | + | $402,830 | |
| (+) Land Homesite Value: | + | $0 | |
| (+) Land Non-Homesite Value: | + | $90,000 | |
| (+) Curr Use (HS): | + | $0 | $0 |
| (+) Curr Use (NHS): | + | $0 | $0 |
| | | -------------------------- | |
| (=) Market Value: | = | $492,830 | |
| (–) Productivity Loss: | – | $0 | |
| | | -------------------------- | |
| (=) Subtotal: | = | $492,830 | |
| (+) Senior Appraised Value: | + | $0 | |
| (+) Non-Senior Appraised Value: | + | $492,830 | |
| | | -------------------------- | |
| (=) Total Appraised Value: | = | $492,830 | |
| (–) Senior Exemption Loss: | – | $0 | |
| (–) Exemption Loss: | – | $0 | |
| | | -------------------------- | |
| (=) Taxable Value: | = | $492,830 | |
Taxing Jurisdiction
| Owner: | HOLM GREGORY EUGENE & CAROLYN SUE | | |
| % Ownership: | 100.0000000000% | | |
| Total Value: | $492,830 | | |
| Tax Area: | 311 - 250-4 |
| CERFD | CURRENT EXPENSE REFUND 010 | 0.0000000000 | $492,830 | $492,830 | $0.00 | | |
| CURREXP | CURRENT EXPENSE 010 | 1.0175366760 | $492,830 | $492,830 | $501.47 | | |
| HUMNSERV | HUMAN SERVICES 119 | 0.0250000000 | $492,830 | $492,830 | $12.32 | | |
| SLDREL | SOLDIERS RELIEF 121 | 0.0155990005 | $492,830 | $492,830 | $7.69 | | |
| EMERGSER | EMS 147 | 0.3792580840 | $492,830 | $492,830 | $186.91 | | |
| EMSRFD | EMS REFUND 147 | 0.0000000000 | $492,830 | $492,830 | $0.00 | | |
| FD4EXP | FD #4 EXPENSE 686 | 0.8836993059 | $492,830 | $492,830 | $435.51 | | |
| RLBRFD | RURAL LIBRARY REFUND 623 | 0.0000000000 | $492,830 | $492,830 | $0.00 | | |
| RURALLIB | RURAL LIBRARY 623 | 0.3710609029 | $492,830 | $492,830 | $182.87 | | |
| PORTRFD | PORT REFUND 640 | 0.0000000000 | $492,830 | $492,830 | $0.00 | | |
| PORTWWGEN | PORT OF WW 640 | 0.2460186015 | $492,830 | $492,830 | $121.25 | | |
| SD250BOND | SD #250 BOND 773 | 1.4560608159 | $492,830 | $492,830 | $717.59 | | |
| SD250GEN | SD #250 GENERAL 770 | 2.3880724087 | $492,830 | $492,830 | $1,176.91 | | |
| ST2 | STATE SCHOOL PART 2 600 | 0.8131451643 | $492,830 | $492,830 | $400.74 | | |
| STATESCHL | STATE SCHOOL 600 | 1.5158548041 | $492,830 | $492,830 | $747.06 | | |
| STREFUND | STATE REFUND LEVY 603 | 0.0000000000 | $492,830 | $492,830 | $0.00 | | |
| COROAD | COUNTY ROAD 115 | 1.6549953990 | $492,830 | $492,830 | $815.63 | | |
| CRPRD | COUNTY ROAD REFUND 115 | 0.0000000000 | $492,830 | $492,830 | $0.00 | | |
| | Total Tax Rate: | 10.7663011628 | | | | | |
| | | | | Taxes w/Current Exemptions: | $5,305.95 | | |
| | | | | Taxes w/o Exemptions: | $5,305.95 | | |
Improvement / Building
| Improvement #1: | RESIDENTIAL | State Code: | 11 | 1644.0 sqft | Value: | $402,830 |
| Exterior Wall: | SIDING | Heating/Cooling: | WARM & COOLED AIR | | Number of Bathrooms: | 2 | Number of Bedrooms: | 3 | | Plumbing: | 11 | Roof Covering: | COMP SHINGLE |
|
| | Type | Description | Class CD | Sub Class CD | Year Built | Area |
| | MA | Main Area | 1 | 40 | 2002 | 1644.0 |
| | CPC | COVERED CARPORT/PATIO | 1 | 40 | 2013 | 176.0 |
| | SI1 | SITE IMPROVEMENT | 1 | 40 | 0 | 5.0 |
| | ATG | Attached Garage | 1 | 40 | 2002 | 1790.0 |
| | RPO | OPEN PORCH W/ROOF | 1 | 40 | 2002 | 20.0 |
| | UTST | Utility Storage Shed | 1 | 40 | 2002 | 240.0 |
| | CPC | COVERED CARPORT/PATIO | 1 | 40 | 2002 | 120.0 |
Sketch
Property Image
Land
| 1 | RES 1 | Converted: Residential | 0.4595 | 20017.00 | 0.00 | 0.00 | 1.00 | $90,000 | $0 |
Roll Value History
| 2026 | N/A | N/A | N/A | N/A | N/A |
| 2025 | $503,540 | $90,000 | $0 | $593,540 | $593,540 |
| 2024 | $402,830 | $90,000 | $0 | $492,830 | $492,830 |
| 2023 | $402,830 | $90,000 | $0 | $492,830 | $492,830 |
| 2022 | $383,650 | $90,000 | $0 | $473,650 | $473,650 |
| 2021 | $295,820 | $55,000 | $0 | $350,820 | $350,820 |
| 2020 | $246,510 | $55,000 | $0 | $301,510 | $301,510 |
| 2019 | $246,510 | $55,000 | $0 | $301,510 | $301,510 |
| 2018 | $176,080 | $55,000 | $0 | $231,080 | $231,080 |
| 2017 | $167,700 | $55,000 | $0 | $222,700 | $222,700 |
| 2016 | $159,710 | $55,000 | $0 | $214,710 | $214,710 |
| 2015 | $160,710 | $55,000 | $0 | $215,710 | $215,710 |
| 2014 | $146,100 | $55,000 | $0 | $201,100 | $201,100 |
| 2013 | $146,100 | $55,000 | $0 | $201,100 | $201,100 |
| 2012 | $111,600 | $55,000 | $0 | $0 | $0 |
| 2011 | $141,000 | $55,000 | $0 | $0 | $0 |
| 2010 | $140,100 | $55,000 | $0 | $0 | $0 |
| 2009 | $186,800 | $30,000 | $0 | $0 | $0 |
| 2008 | $124,000 | $30,000 | $0 | $0 | $0 |
| 2007 | $124,000 | $30,000 | $0 | $0 | $0 |
Deed and Sales History
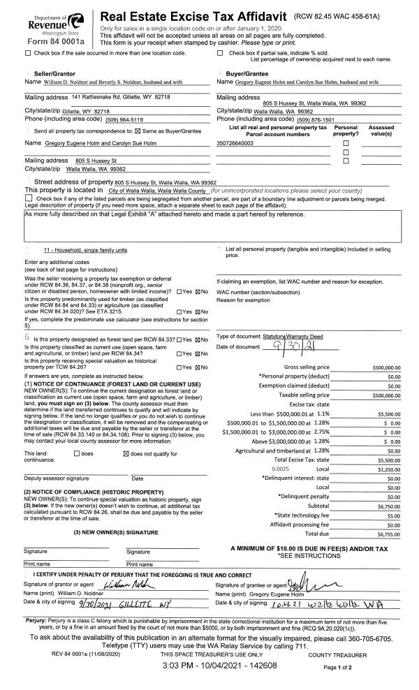
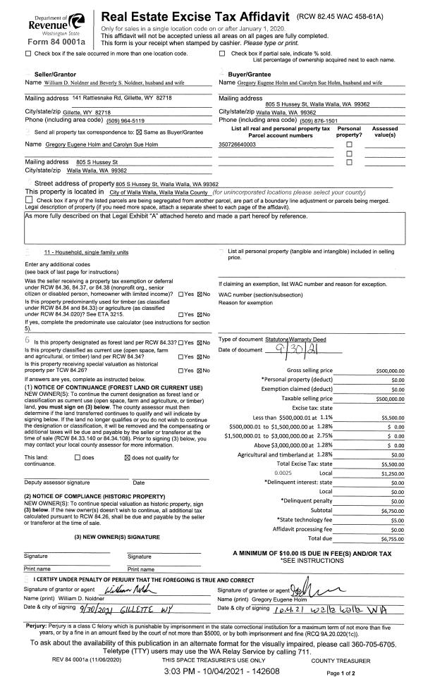
| 1 | 10/04/2021 | SWD | STATUTORY WARRANTY DEED | NOLDNER WILLIAM D & BEVERLY S | HOLM GREGORY EUGENE & CAROLYN SUE | | | $500,000.00 | 142608 | 2021-12112 |
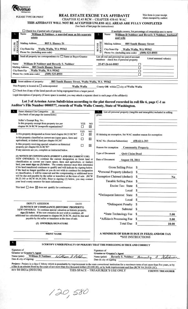
| 2 | 08/22/2011 | QCD | QUIT CLAIM DEED | NOLDNER, WILLIAM D | NOLDER, WILLIAM D & BEVERLY S | | | | 120580 | 2011-06576 |
| 3 | 07/25/2005 | QCD | QUIT CLAIM DEED | NOLDNER, BARBARA | NOLDNER, WILLIAM D | | | | 108033 | 2005-09035 |
| 4 | 07/22/2005 | WARRANTY D | WARRANTY DEED | NOLDNER, BARBARA | NOLDNER, WILLIAM D | | | | 0 | CC 05-3-00097-4 |
| 5 | 10/25/2002 | WARRANTY D | WARRANTY DEED | MAJERUS, DOUGLAS | NOLDNER, WILLIAM D & BARBARA K | | | $148,750.00 | 100671 | 2002-12073 |
| 6 | 02/14/2000 | WARRANTY D | WARRANTY DEED | | | | | | 94541 | 2950-001488 |
Payout Agreement
| No payout information available.. |