Property
Account |
| Property ID: | 32237 | Abbreviated Legal Description: | BUCK'S SUBDIV OF BLK 2 CP #2 LOT 1, PLUS ELY 10' OF LOT 2, PLUS S 147' OF LOTA BLOCK 1 (THIS IS LOT 1 OF SURVEY) |
| Parcel Number: | 350736520107 | Agent Code: | |
| Type: | Real | | |
| Tax Area: | 75 - CP 250 | Land Use Code | 11 |
| Open Space: | N | DFL | N |
| Historic Property: | N | Remodel Property: | N |
| Multi-Family Redevelopment: | N | | |
| Township: | 7 | Section: | 36 |
| Range: | 35 |
Location |
| Address: | 525 SE 6TH ST WA 99324 | Mapsco: | |
| Neighborhood: | A SFR | Map ID: | |
| Neighborhood CD: | 113011 |
Owner |
| Name: | DOUGHERTY MATTHEW | Owner ID: | 65957 |
| Mailing Address: | PO BOX 332 COLLEGE PLACE, WA 99324 | % Ownership: | 100.0000000000% |
| | | Exemptions: | |
Taxes and Assessment Details
Values
| (+) Improvement Homesite Value: | + | $0 | |
| (+) Improvement Non-Homesite Value: | + | $178,800 | |
| (+) Land Homesite Value: | + | $0 | |
| (+) Land Non-Homesite Value: | + | $62,610 | |
| (+) Curr Use (HS): | + | $0 | $0 |
| (+) Curr Use (NHS): | + | $0 | $0 |
| | | -------------------------- | |
| (=) Market Value: | = | $241,410 | |
| (–) Productivity Loss: | – | $0 | |
| | | -------------------------- | |
| (=) Subtotal: | = | $241,410 | |
| (+) Senior Appraised Value: | + | $0 | |
| (+) Non-Senior Appraised Value: | + | $241,410 | |
| | | -------------------------- | |
| (=) Total Appraised Value: | = | $241,410 | |
| (–) Senior Exemption Loss: | – | $0 | |
| (–) Exemption Loss: | – | $0 | |
| | | -------------------------- | |
| (=) Taxable Value: | = | $241,410 | |
Taxing Jurisdiction
| Owner: | DOUGHERTY MATTHEW | | |
| % Ownership: | 100.0000000000% | | |
| Total Value: | $241,410 | | |
| Tax Area: | 75 - CP 250 |
| CERFD | CURRENT EXPENSE REFUND 010 | 0.0000000000 | $241,410 | $241,410 | $0.00 | | |
| CURREXP | CURRENT EXPENSE 010 | 1.0175366760 | $241,410 | $241,410 | $245.64 | | |
| HUMNSERV | HUMAN SERVICES 119 | 0.0250000000 | $241,410 | $241,410 | $6.04 | | |
| SLDREL | SOLDIERS RELIEF 121 | 0.0155990005 | $241,410 | $241,410 | $3.77 | | |
| COLLPLBOND | C OF CP BOND 644 | 0.4374241808 | $241,410 | $241,410 | $105.60 | | |
| COLLPLGEN | CITY OF CP 632 | 1.4453819216 | $241,410 | $241,410 | $348.93 | | |
| EMERGSER | EMS 147 | 0.3792580840 | $241,410 | $241,410 | $91.56 | | |
| EMSRFD | EMS REFUND 147 | 0.0000000000 | $241,410 | $241,410 | $0.00 | | |
| RURALLIB | RURAL LIBRARY 623 | 0.3710609029 | $241,410 | $241,410 | $89.58 | | |
| PORTRFD | PORT REFUND 640 | 0.0000000000 | $241,410 | $241,410 | $0.00 | | |
| PORTWWGEN | PORT OF WW 640 | 0.2460186015 | $241,410 | $241,410 | $59.39 | | |
| SD250BOND | SD #250 BOND 773 | 1.4560608159 | $241,410 | $241,410 | $351.51 | | |
| SD250GEN | SD #250 GENERAL 770 | 2.3880724087 | $241,410 | $241,410 | $576.50 | | |
| ST2 | STATE SCHOOL PART 2 600 | 0.8131451643 | $241,410 | $241,410 | $196.30 | | |
| STATESCHL | STATE SCHOOL 600 | 1.5158548041 | $241,410 | $241,410 | $365.94 | | |
| STREFUND | STATE REFUND LEVY 603 | 0.0000000000 | $241,410 | $241,410 | $0.00 | | |
| | Total Tax Rate: | 10.1104125603 | | | | | |
| | | | | Taxes w/Current Exemptions: | $2,440.76 | | |
| | | | | Taxes w/o Exemptions: | $2,440.76 | | |
Improvement / Building
| Improvement #1: | RESIDENTIAL | State Code: | 11 | 1340.0 sqft | Value: | $178,800 |
| Exterior Wall: | STUCCO | Heating/Cooling: | FLOOR FURNACE | | Number of Bathrooms: | 1 | Number of Bedrooms: | 2 | | Plumbing: | 6 | Roof Covering: | COMP SHINGLE |
|
| | Type | Description | Class CD | Sub Class CD | Year Built | Area |
| | MA | Main Area | 1 | 25 | 1950 | 1340.0 |
| | SI1 | SITE IMPROVEMENT | 1 | 25 | 1950 | 1.0 |
| | ATG | Attached Garage | 1 | 25 | 1950 | 480.0 |
| | UTST | Utility Storage Shed | 1 | 25 | 1950 | 120.0 |
Sketch
Property Image
Land
| 1 | RES 1 | Converted: Residential | 0.2824 | 12301.00 | 0.00 | 0.00 | 1.00 | $62,610 | $0 |
Roll Value History
| 2026 | N/A | N/A | N/A | N/A | N/A |
| 2025 | $178,360 | $93,860 | $0 | $272,220 | $272,220 |
| 2024 | $187,740 | $62,610 | $0 | $250,350 | $250,350 |
| 2023 | $178,800 | $62,610 | $0 | $241,410 | $241,410 |
| 2022 | $162,550 | $62,610 | $0 | $225,160 | $225,160 |
| 2021 | $147,770 | $62,610 | $0 | $210,380 | $210,380 |
| 2020 | $101,910 | $62,610 | $0 | $164,520 | $164,520 |
| 2019 | $115,420 | $49,100 | $0 | $164,520 | $164,520 |
| 2018 | $96,180 | $49,100 | $0 | $145,280 | $145,280 |
| 2017 | $91,600 | $49,100 | $0 | $140,700 | $140,700 |
| 2016 | $91,600 | $49,100 | $0 | $140,700 | $140,700 |
| 2015 | $91,600 | $49,100 | $0 | $140,700 | $140,700 |
| 2014 | $91,600 | $49,100 | $0 | $140,700 | $140,700 |
| 2013 | $91,600 | $49,100 | $0 | $140,700 | $140,700 |
| 2012 | $91,600 | $49,100 | $0 | $0 | $0 |
| 2011 | $91,600 | $49,100 | $0 | $0 | $0 |
| 2010 | $78,800 | $49,100 | $0 | $0 | $0 |
| 2009 | $93,000 | $49,100 | $0 | $0 | $0 |
| 2008 | $45,400 | $26,800 | $0 | $0 | $0 |
| 2007 | $45,400 | $26,800 | $0 | $0 | $0 |
Deed and Sales History
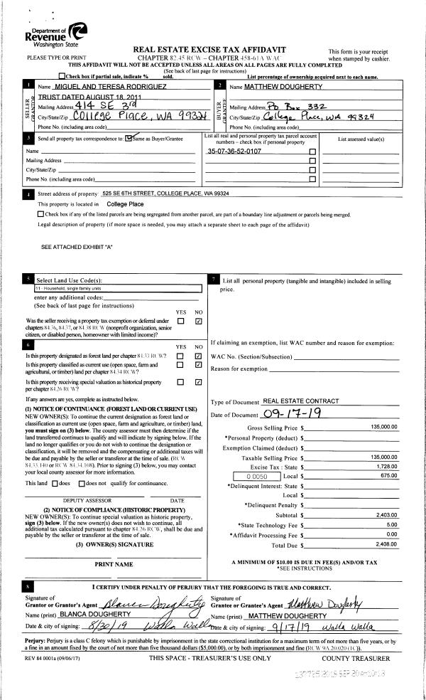
| 1 | 09/20/2019 | REAL ESTAT | REAL ESTATE CONTRACT | RODRIGUEZ MIGUEL J & TERESA B TRUST | DOUGHERTY MATTHEW | | | $135,000.00 | 137725 | 2019-07388 |
| 2 | 08/19/2011 | QCD | QUIT CLAIM DEED | RODRIGUEZ, MIGUEL J & TERESA | RODRIGUEZ, MIGUEL J & TERESA B | | | | 120571 | 2011-06500 |
| 3 | 08/26/2003 | QCD | QUIT CLAIM DEED | RODRIGUEZ, MIGUEL J & TERESA | RODRIGUEZ, MIGUEL J & TERESA | | | | 102858 | 2003-012868 |
Payout Agreement
| No payout information available.. |