Property
Account |
| Property ID: | 32234 | Abbreviated Legal Description: | STUBBLEFIELD SUB DVN LOT 15 BLK 7 ; TAX 1 LOT 14 BLK 7; TAX 2 LOT16 BLK 7 |
| Parcel Number: | 360728740715 | Agent Code: | |
| Type: | Real | | |
| Tax Area: | 1 - OL-140-F | Land Use Code | 11 |
| Open Space: | N | DFL | N |
| Historic Property: | N | Remodel Property: | N |
| Multi-Family Redevelopment: | N | | |
| Township: | 7 | Section: | 28 |
| Range: | 36 |
Location |
| Address: | 1050 BREVOR PL WA 99362 | Mapsco: | |
| Neighborhood: | G Res | Map ID: | |
| Neighborhood CD: | 614011 |
Owner |
| Name: | ALDRICH CHRISTOPHER L & ANGELA C | Owner ID: | 63380 |
| Mailing Address: | 1050 BREVOR PL WALLA WALLA, WA 99362 | % Ownership: | 100.0000000000% |
| | | Exemptions: | |
Taxes and Assessment Details
Values
| (+) Improvement Homesite Value: | + | $0 | |
| (+) Improvement Non-Homesite Value: | + | $691,050 | |
| (+) Land Homesite Value: | + | $0 | |
| (+) Land Non-Homesite Value: | + | $120,000 | |
| (+) Curr Use (HS): | + | $0 | $0 |
| (+) Curr Use (NHS): | + | $0 | $0 |
| | | -------------------------- | |
| (=) Market Value: | = | $811,050 | |
| (–) Productivity Loss: | – | $0 | |
| | | -------------------------- | |
| (=) Subtotal: | = | $811,050 | |
| (+) Senior Appraised Value: | + | $0 | |
| (+) Non-Senior Appraised Value: | + | $811,050 | |
| | | -------------------------- | |
| (=) Total Appraised Value: | = | $811,050 | |
| (–) Senior Exemption Loss: | – | $0 | |
| (–) Exemption Loss: | – | $0 | |
| | | -------------------------- | |
| (=) Taxable Value: | = | $811,050 | |
Taxing Jurisdiction
| Owner: | ALDRICH CHRISTOPHER L & ANGELA C | | |
| % Ownership: | 100.0000000000% | | |
| Total Value: | $811,050 | | |
| Tax Area: | 1 - OL-140-F |
| CERFD | CURRENT EXPENSE REFUND 010 | 0.0000000000 | $811,050 | $811,050 | $0.00 | | |
| CURREXP | CURRENT EXPENSE 010 | 1.0175366760 | $811,050 | $811,050 | $825.27 | | |
| HUMNSERV | HUMAN SERVICES 119 | 0.0250000000 | $811,050 | $811,050 | $20.28 | | |
| SLDREL | SOLDIERS RELIEF 121 | 0.0155990005 | $811,050 | $811,050 | $12.65 | | |
| EMERGSER | EMS 147 | 0.3792580840 | $811,050 | $811,050 | $307.60 | | |
| EMSRFD | EMS REFUND 147 | 0.0000000000 | $811,050 | $811,050 | $0.00 | | |
| PORTRFD | PORT REFUND 640 | 0.0000000000 | $811,050 | $811,050 | $0.00 | | |
| PORTWWGEN | PORT OF WW 640 | 0.2460186015 | $811,050 | $811,050 | $199.53 | | |
| SD140BOND | SD #140 BOND 764 | 0.8342371393 | $811,050 | $811,050 | $676.61 | | |
| SD140GEN | SD #140 GENERAL 760 | 2.0646500647 | $811,050 | $811,050 | $1,674.53 | | |
| ST2 | STATE SCHOOL PART 2 600 | 0.8131451643 | $811,050 | $811,050 | $659.50 | | |
| STATESCHL | STATE SCHOOL 600 | 1.5158548041 | $811,050 | $811,050 | $1,229.43 | | |
| STREFUND | STATE REFUND LEVY 603 | 0.0000000000 | $811,050 | $811,050 | $0.00 | | |
| CWWBOND | C OF WW BOND 643 | 0.2760494372 | $811,050 | $811,050 | $223.89 | | |
| CWWGEN | CITY OF WW 631 | 1.6100204973 | $811,050 | $811,050 | $1,305.81 | | |
| CWWRFD | CITY OF WALLA WALLA REFUND 631 | 0.0000000000 | $811,050 | $811,050 | $0.00 | | |
| | Total Tax Rate: | 8.7973694689 | | | | | |
| | | | | Taxes w/Current Exemptions: | $7,135.10 | | |
| | | | | Taxes w/o Exemptions: | $7,135.10 | | |
Improvement / Building
| Improvement #1: | RESIDENTIAL | State Code: | 11 | 2510.0 sqft | Value: | $691,050 |
| Exterior Wall: | COMMON BRICK | Heating/Cooling: | HEAT PUMP | | Number of Bathrooms: | 4 | Number of Bedrooms: | 6 | | Plumbing: | 20 | Roof Covering: | COMP SHINGLE |
|
| | Type | Description | Class CD | Sub Class CD | Year Built | Area |
| | MA | Main Area | 1 | 40 | 1965 | 2510.0 |
| | SI1 | SITE IMPROVEMENT | 1 | 40 | 1965 | 7.5 |
| | BASE | BASEMENT | 1 | 40 | 1965 | 2510.0 |
| | BPF | BASEMENT -PARTITIONED FINISH | 1 | 40 | 1965 | 1760.0 |
| | ATG | Attached Garage | 1 | 40 | 1965 | 598.0 |
| | OSP | Open | 1 | 40 | 1965 | 30.0 |
| | S1F | Single One Story Fireplace | 1 | 40 | 1965 | 1.0 |
| | D2F | Double 2 Story Fireplace | 1 | 40 | 1965 | 1.0 |
| | CAB | REC CABIN | 1 | 40 | 1965 | 100.0 |
Sketch
Property Image
Land
| 1 | RES 1 | Converted: Residential | 0.5700 | 24829.00 | 0.00 | 0.00 | 1.00 | $120,000 | $0 |
Roll Value History
| 2026 | N/A | N/A | N/A | N/A | N/A |
| 2025 | $724,130 | $150,000 | $0 | $874,130 | $874,130 |
| 2024 | $725,600 | $120,000 | $0 | $845,600 | $845,600 |
| 2023 | $691,050 | $120,000 | $0 | $811,050 | $811,050 |
| 2022 | $574,040 | $85,000 | $0 | $659,040 | $659,040 |
| 2021 | $425,210 | $85,000 | $0 | $510,210 | $510,210 |
| 2020 | $369,750 | $85,000 | $0 | $454,750 | $454,750 |
| 2019 | $369,750 | $85,000 | $0 | $454,750 | $454,750 |
| 2018 | $305,250 | $50,000 | $0 | $355,250 | $355,250 |
| 2017 | $277,500 | $50,000 | $0 | $327,500 | $327,500 |
| 2016 | $277,500 | $50,000 | $0 | $327,500 | $327,500 |
| 2015 | $277,500 | $50,000 | $0 | $327,500 | $327,500 |
| 2014 | $277,500 | $50,000 | $0 | $327,500 | $327,500 |
| 2013 | $277,500 | $50,000 | $0 | $327,500 | $327,500 |
| 2012 | $265,800 | $50,000 | $0 | $0 | $0 |
| 2011 | $265,800 | $50,000 | $0 | $0 | $0 |
| 2010 | $265,800 | $50,000 | $0 | $0 | $0 |
| 2009 | $300,900 | $50,000 | $0 | $0 | $0 |
| 2008 | $300,900 | $50,000 | $0 | $0 | $0 |
| 2007 | $212,900 | $30,000 | $0 | $0 | $0 |
Deed and Sales History
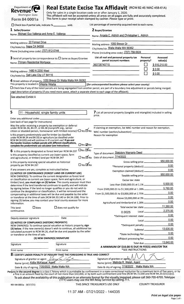
| 1 | 07/21/2022 | SWD | STATUTORY WARRANTY DEED | VALLERGA MICHAEL GUY & ANNE E | ALDRICH CHRISTOPHER L & ANGELA C | | | $950,000.00 | 144335 | 2022-06137 |
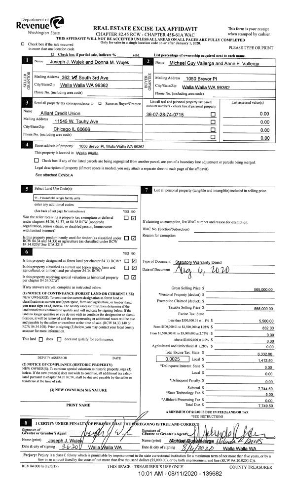
| 2 | 08/11/2020 | SWD | STATUTORY WARRANTY DEED | WUJEK JOSEPH J & DONNA M | VALLERGA MICHAEL GUY & ANNE E | | | $565,000.00 | 139682 | 2020-07906 |
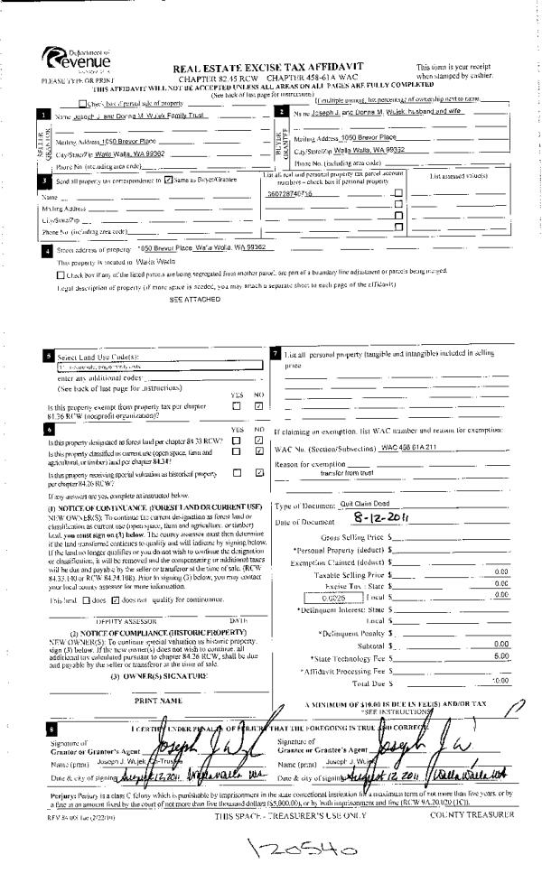
| 3 | 08/12/2011 | QCD | QUIT CLAIM DEED | WUJEK FAMILY TRUST | WUJEK, JOSEPH J & DONNA M | | | | 120540 | 2011-06314 |
| 4 | 08/16/2001 | WARRANTY D | WARRANTY DEED | | | | | $0.00 | 97840 | 3180-108891 |
Payout Agreement
| No payout information available.. |