Property
Account |
| Property ID: | 32194 | Abbreviated Legal Description: | BRYANTS LOT 15 BLK 2 |
| Parcel Number: | 360728530215 | Agent Code: | |
| Type: | Real | | |
| Tax Area: | 1 - OL-140-F | Land Use Code | 11 |
| Open Space: | N | DFL | N |
| Historic Property: | N | Remodel Property: | N |
| Multi-Family Redevelopment: | N | | |
| Township: | 7 | Section: | 28 |
| Range: | 36 |
Location |
| Address: | 647 BALM ST WA 99362 | Mapsco: | |
| Neighborhood: | A Res | Map ID: | |
| Neighborhood CD: | 613011 |
Owner |
| Name: | LANGIS KASSANDRA KAY | Owner ID: | 65114 |
| Mailing Address: | 647 BALM ST WALLA WALLA, WA 99362 | % Ownership: | 100.0000000000% |
| | | Exemptions: | SNR/DSBL |
Taxes and Assessment Details
Property Tax Information as of
02/21/2026
Click on "Statement Details" to expand or collapse a tax statement.
* Please enter a valid date ** Please enter a valid date *
Statement Details |
| | TOTAL: | $0.00 | $0.00 | $0.00 | $0.00 | $0.00 | $0.00 |
|
| | $0.00 | $0.00 | $0.00 | $0.00 | $0.00 | $0.00 |
Values
| (+) Improvement Homesite Value: | + | $235,720 | |
| (+) Improvement Non-Homesite Value: | + | $0 | |
| (+) Land Homesite Value: | + | $70,000 | |
| (+) Land Non-Homesite Value: | + | $0 | |
| (+) Curr Use (HS): | + | $0 | $0 |
| (+) Curr Use (NHS): | + | $0 | $0 |
| | | -------------------------- | |
| (=) Market Value: | = | $305,720 | |
| (–) Productivity Loss: | – | $0 | |
| | | -------------------------- | |
| (=) Subtotal: | = | $305,720 | |
| (+) Senior Appraised Value: | + | $155,040 | |
| (+) Non-Senior Appraised Value: | + | $0 | |
| | | -------------------------- | |
| (=) Total Appraised Value: | = | $155,040 | |
| (–) Senior Exemption Loss: | – | $93,024 | |
| (–) Exemption Loss: | – | $0 | |
| | | -------------------------- | |
| (=) Taxable Value: | = | $62,016 | |
Taxing Jurisdiction
| Owner: | LANGIS KASSANDRA KAY | | |
| % Ownership: | 100.0000000000% | | |
| Total Value: | $305,720 | | |
| Tax Area: | 1 - OL-140-F |
| CERFD | CURRENT EXPENSE REFUND 010 | 0.0000000000 | $305,720 | $62,016 | $0.00 | | |
| CURREXP | CURRENT EXPENSE 010 | 1.0175366760 | $305,720 | $62,016 | $63.10 | | |
| HUMNSERV | HUMAN SERVICES 119 | 0.0250000000 | $305,720 | $62,016 | $1.55 | | |
| SLDREL | SOLDIERS RELIEF 121 | 0.0155990005 | $305,720 | $62,016 | $0.97 | | |
| EMERGSER | EMS 147 | 0.3792580840 | $305,720 | $62,016 | $23.52 | | |
| EMSRFD | EMS REFUND 147 | 0.0000000000 | $305,720 | $62,016 | $0.00 | | |
| PORTRFD | PORT REFUND 640 | 0.0000000000 | $305,720 | $62,016 | $0.00 | | |
| PORTWWGEN | PORT OF WW 640 | 0.2460186015 | $305,720 | $62,016 | $15.26 | | |
| SD140BOND | SD #140 BOND 764 | 0.0000000000 | $305,720 | $0 | $0.00 | | |
| SD140GEN | SD #140 GENERAL 760 | 0.0000000000 | $305,720 | $0 | $0.00 | | |
| ST2 | STATE SCHOOL PART 2 600 | 0.0000000000 | $305,720 | $0 | $0.00 | | |
| STATESCHL | STATE SCHOOL 600 | 1.5158548041 | $305,720 | $62,016 | $94.01 | | |
| STREFUND | STATE REFUND LEVY 603 | 0.0000000000 | $305,720 | $62,016 | $0.00 | | |
| CWWBOND | C OF WW BOND 643 | 0.0000000000 | $305,720 | $0 | $0.00 | | |
| CWWGEN | CITY OF WW 631 | 1.6100204973 | $305,720 | $62,016 | $99.85 | | |
| CWWRFD | CITY OF WALLA WALLA REFUND 631 | 0.0000000000 | $305,720 | $62,016 | $0.00 | | |
| | Total Tax Rate: | 4.8092876634 | | | | | |
| | | | | Taxes w/Current Exemptions: | $298.26 | | |
| | | | | Taxes w/o Exemptions: | $2,689.52 | | |
Improvement / Building
| Improvement #1: | RESIDENTIAL | State Code: | 11 | 962.0 sqft | Value: | $235,720 |
| Exterior Wall: | SIDING | Heating/Cooling: | WARM & COOLED AIR | | Number of Bathrooms: | 1 | Number of Bedrooms: | 2 | | Plumbing: | 7 | Roof Covering: | COMP SHINGLE |
|
| | Type | Description | Class CD | Sub Class CD | Year Built | Area |
| | MA | Main Area | 1 | 30 | 1922 | 962.0 |
| | SI1 | SITE IMPROVEMENT | 1 | 30 | 1922 | 1.0 |
| | BASE | BASEMENT | 1 | 30 | 1922 | 576.0 |
| | SWP | Solid Wall Porch | 1 | 30 | 1922 | 84.0 |
| | RCD | WOOD DECK W/ROOF, CEILED | 1 | 30 | 1922 | 98.0 |
| | DTG | Detached Garage | 1 | 30 | 1922 | 200.0 |
Sketch
Property Image
Land
| 1 | RES 1 | Converted: Residential | 0.1377 | 6000.00 | 0.00 | 0.00 | 1.00 | $70,000 | $0 |
Roll Value History
| 2026 | N/A | N/A | N/A | N/A | N/A |
| 2025 | $244,830 | $66,000 | $0 | $310,830 | $62,016 |
| 2024 | $235,720 | $70,000 | $0 | $305,720 | $62,016 |
| 2023 | $235,720 | $70,000 | $0 | $305,720 | $62,016 |
| 2022 | $181,320 | $55,000 | $0 | $236,320 | $62,016 |
| 2021 | $125,050 | $55,000 | $0 | $180,050 | $62,016 |
| 2020 | $100,040 | $55,000 | $0 | $155,040 | $62,016 |
| 2019 | $100,040 | $55,000 | $0 | $155,040 | $155,040 |
| 2018 | $102,600 | $36,000 | $0 | $138,600 | $138,600 |
| 2017 | $102,600 | $36,000 | $0 | $138,600 | $138,600 |
| 2016 | $85,500 | $36,000 | $0 | $121,500 | $121,500 |
| 2015 | $85,500 | $36,000 | $0 | $121,500 | $121,500 |
| 2014 | $85,500 | $36,000 | $0 | $121,500 | $121,500 |
| 2013 | $85,500 | $36,000 | $0 | $121,500 | $121,500 |
| 2012 | $85,500 | $36,000 | $0 | $0 | $0 |
| 2011 | $85,500 | $36,000 | $0 | $0 | $0 |
| 2010 | $79,700 | $36,000 | $0 | $0 | $0 |
| 2009 | $92,500 | $36,000 | $0 | $0 | $0 |
| 2008 | $92,500 | $36,000 | $0 | $0 | $0 |
| 2007 | $60,600 | $18,000 | $0 | $0 | $0 |
Deed and Sales History
| 1 | 05/16/2019 | SWD | STATUTORY WARRANTY DEED | BIEKR DIANA | LANGIS KASSANDRA KAY | | | $155,000.00 | 136891 | 2019-03280 |
| 2 | 07/30/2018 | QCD | QUIT CLAIM DEED | BIEKER GERALD L & DIANA K | BIEKR DIANA | | | $0.00 | 135212 | 2018-06124 |
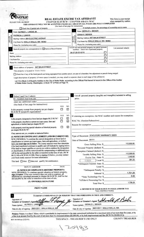
| 3 | 08/01/2011 | WARRANTY D | WARRANTY DEED | LANGIS, ALFRED L JR | BIEKER, GERALD L & DIANA K | | | $112,500.00 | 120483 | 2011-05937 |
| 4 | 03/30/1978 | WARRANTY D | WARRANTY DEED | | | | | $24,900.00 | 0 | 7978-02796 |
Payout Agreement
| No payout information available.. |