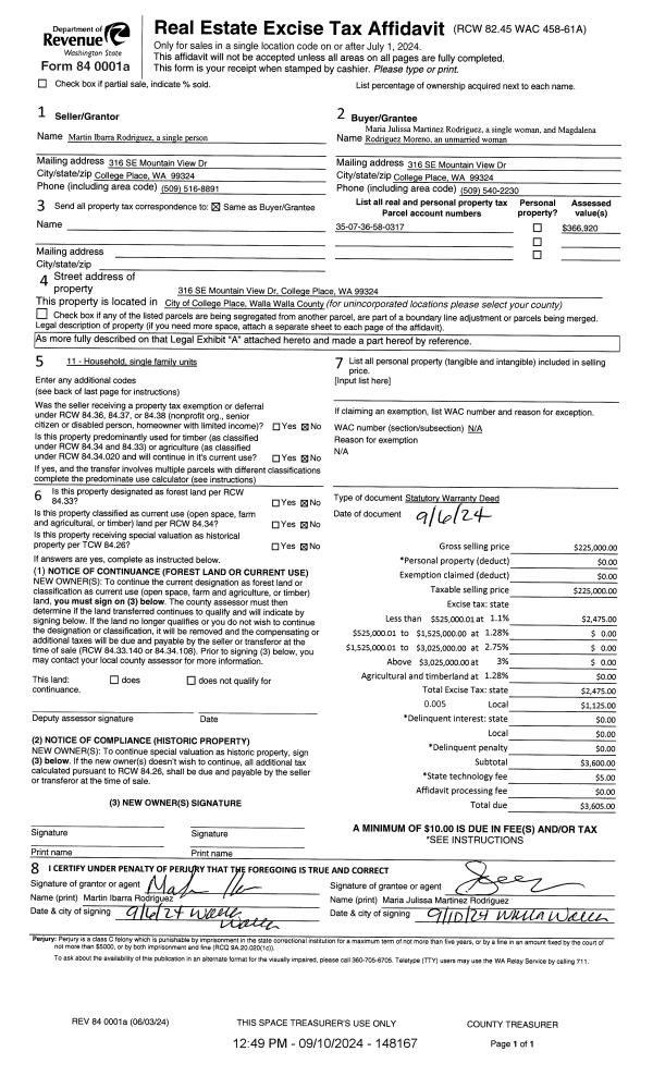
Property
Account |
| Property ID: | 32188 | Abbreviated Legal Description: | SCENIC VIEW LOT 17 AND W1/2 OF LOT 18 BLK 3 |
| Parcel Number: | 350736580317 | Agent Code: | |
| Type: | Real | | |
| Tax Area: | 75 - CP 250 | Land Use Code | 11 |
| Open Space: | N | DFL | N |
| Historic Property: | N | Remodel Property: | N |
| Multi-Family Redevelopment: | N | | |
| Township: | 7 | Section: | 36 |
| Range: | 35 |
Location |
| Address: | 316 SE MOUNTAIN VIEW DR WA 99324 | Mapsco: | |
| Neighborhood: | A SFR | Map ID: | |
| Neighborhood CD: | 113011 |
Owner |
| Name: | RODRIGUEZ MARTIN IBARRA | Owner ID: | 56610 |
| Mailing Address: | 316 SE MOUNTAIN VIEW DR COLLEGE PLACE, WA 99324 | % Ownership: | 100.0000000000% |
| | | Exemptions: | |
Taxes and Assessment Details
Property Tax Information as of
04/19/2026
Click on "Statement Details" to expand or collapse a tax statement.
* Please enter a valid date ** Please enter a valid date *
Statement Details |
| | TOTAL: | $0.00 | $0.00 | $0.00 | $0.00 | $0.00 | $0.00 |
|
| | $0.00 | $0.00 | $0.00 | $0.00 | $0.00 | $0.00 |
Values
| (+) Improvement Homesite Value: | + | $0 | |
| (+) Improvement Non-Homesite Value: | + | $306,170 | |
| (+) Land Homesite Value: | + | $0 | |
| (+) Land Non-Homesite Value: | + | $60,750 | |
| (+) Curr Use (HS): | + | $0 | $0 |
| (+) Curr Use (NHS): | + | $0 | $0 |
| | | -------------------------- | |
| (=) Market Value: | = | $366,920 | |
| (–) Productivity Loss: | – | $0 | |
| | | -------------------------- | |
| (=) Subtotal: | = | $366,920 | |
| (+) Senior Appraised Value: | + | $0 | |
| (+) Non-Senior Appraised Value: | + | $366,920 | |
| | | -------------------------- | |
| (=) Total Appraised Value: | = | $366,920 | |
| (–) Senior Exemption Loss: | – | $0 | |
| (–) Exemption Loss: | – | $0 | |
| | | -------------------------- | |
| (=) Taxable Value: | = | $366,920 | |
Taxing Jurisdiction
| Owner: | RODRIGUEZ MARTIN IBARRA | | |
| % Ownership: | 100.0000000000% | | |
| Total Value: | $366,920 | | |
| Tax Area: | 75 - CP 250 |
| CERFD | CURRENT EXPENSE REFUND 010 | 0.0000000000 | $366,920 | $366,920 | $0.00 | | |
| CURREXP | CURRENT EXPENSE 010 | 1.0175366760 | $366,920 | $366,920 | $373.35 | | |
| HUMNSERV | HUMAN SERVICES 119 | 0.0250000000 | $366,920 | $366,920 | $9.17 | | |
| SLDREL | SOLDIERS RELIEF 121 | 0.0155990005 | $366,920 | $366,920 | $5.72 | | |
| COLLPLBOND | C OF CP BOND 644 | 0.4374241808 | $366,920 | $366,920 | $160.50 | | |
| COLLPLGEN | CITY OF CP 632 | 1.4453819216 | $366,920 | $366,920 | $530.34 | | |
| EMERGSER | EMS 147 | 0.3792580840 | $366,920 | $366,920 | $139.16 | | |
| EMSRFD | EMS REFUND 147 | 0.0000000000 | $366,920 | $366,920 | $0.00 | | |
| RURALLIB | RURAL LIBRARY 623 | 0.3710609029 | $366,920 | $366,920 | $136.15 | | |
| PORTRFD | PORT REFUND 640 | 0.0000000000 | $366,920 | $366,920 | $0.00 | | |
| PORTWWGEN | PORT OF WW 640 | 0.2460186015 | $366,920 | $366,920 | $90.27 | | |
| SD250BOND | SD #250 BOND 773 | 1.4560608159 | $366,920 | $366,920 | $534.26 | | |
| SD250GEN | SD #250 GENERAL 770 | 2.3880724087 | $366,920 | $366,920 | $876.23 | | |
| ST2 | STATE SCHOOL PART 2 600 | 0.8131451643 | $366,920 | $366,920 | $298.36 | | |
| STATESCHL | STATE SCHOOL 600 | 1.5158548041 | $366,920 | $366,920 | $556.20 | | |
| STREFUND | STATE REFUND LEVY 603 | 0.0000000000 | $366,920 | $366,920 | $0.00 | | |
| | Total Tax Rate: | 10.1104125603 | | | | | |
| | | | | Taxes w/Current Exemptions: | $3,709.71 | | |
| | | | | Taxes w/o Exemptions: | $3,709.71 | | |
Improvement / Building
| Improvement #1: | RESIDENTIAL | State Code: | 11 | 1625.0 sqft | Value: | $306,170 |
| Exterior Wall: | VINYL | Foundation: | SLAB FOUNDATION | | Heating/Cooling: | FORCED AIR | Number of Bathrooms: | 1.5 | | Number of Bedrooms: | 4 | Plumbing: | 9 | | Roof Covering: | COMP SHINGLE |   |   |
|
| | Type | Description | Class CD | Sub Class CD | Year Built | Area |
| | MA | Main Area | 1 | 30 | 1950 | 1625.0 |
| | SI1 | SITE IMPROVEMENT | 1 | 30 | 1950 | 1.5 |
| | DTG | Detached Garage | 1 | 30 | 1950 | 280.0 |
| | RPO | OPEN PORCH W/ROOF | 1 | 30 | 1950 | 16.0 |
| | S1F | Single One Story Fireplace | 1 | 30 | 1950 | 1.0 |
| | CPCS | CARPORT/SHED OR FLAT ROOF | 1 | 30 | 1950 | 416.0 |
| | TOOL | TOOL SHED | 1 | 30 | 1950 | 124.0 |
| | RPO | OPEN PORCH W/ROOF | 1 | 30 | 1950 | 391.0 |
Sketch
Property Image
Land
| 1 | RES 1 | Converted: Residential | 0.2066 | 9000.00 | 0.00 | 0.00 | 1.00 | $60,750 | $0 |
Roll Value History
| 2026 | N/A | N/A | N/A | N/A | N/A |
| 2025 | $275,560 | $90,000 | $0 | $365,560 | $365,560 |
| 2024 | $306,170 | $60,750 | $0 | $366,920 | $366,920 |
| 2023 | $306,170 | $60,750 | $0 | $366,920 | $366,920 |
| 2022 | $306,170 | $60,750 | $0 | $366,920 | $366,920 |
| 2021 | $218,690 | $60,750 | $0 | $279,440 | $279,440 |
| 2020 | $156,210 | $60,750 | $0 | $216,960 | $216,960 |
| 2019 | $170,660 | $46,300 | $0 | $216,960 | $216,960 |
| 2018 | $136,530 | $46,300 | $0 | $182,830 | $182,830 |
| 2017 | $132,550 | $46,300 | $0 | $178,850 | $178,850 |
| 2016 | $115,260 | $46,300 | $0 | $161,560 | $161,560 |
| 2015 | $104,790 | $46,300 | $0 | $151,090 | $151,090 |
| 2014 | $110,300 | $46,300 | $0 | $156,600 | $156,600 |
| 2013 | $110,300 | $46,300 | $0 | $156,600 | $156,600 |
| 2012 | $110,300 | $46,300 | $0 | $0 | $0 |
| 2011 | $110,300 | $46,300 | $0 | $0 | $0 |
| 2010 | $102,800 | $46,300 | $0 | $0 | $0 |
| 2009 | $119,400 | $46,300 | $0 | $0 | $0 |
| 2008 | $91,100 | $23,800 | $0 | $0 | $0 |
| 2007 | $91,100 | $23,800 | $0 | $0 | $0 |
Deed and Sales History
| 1 | 09/10/2024 | SWD | STATUTORY WARRANTY DEED | RODRIGUEZ MARTIN IBARRA | RODRIGUEZ MARIA JULISSA MARTINEZ | | | $225,000.00 | 148167 | 2024-05123 |
| 2 | 05/10/2019 | QCD | QUIT CLAIM DEED | RODRIGUEZ MARTIN IBARRA | RODRIGUEZ MARTIN IBARRA | | | $0.00 | 136890 | 2019-03253 |
| 3 | 07/07/2015 | QCD | QUIT CLAIM DEED | RODRIGUEZ MARTIN IBARRA | RODRIGUEZ MARTIN IBARRA | | | | 128340 | 2015-05826 |
| 4 | 04/30/2015 | QCD | QUIT CLAIM DEED | HERRERA JUANA | RODRIGUEZ MARTIN IBARRA | | | | 127885 | 2015-03619 |
| 5 | 04/30/2015 | WARRANTY D | WARRANTY DEED | STORM BRUCE & KIMBERLEY | RODRIGUEZ MARTIN IBARRA | | | $195,000.00 | 127884 | 2015-03618 |
| 6 | 07/25/2011 | WARRANTY D | WARRANTY DEED | GOODSON, JEFFREY R | STORM, BRUCE & KIMBERLEY | | | $165,000.00 | 120456 | 2011-05764 |
| 7 | 11/29/2006 | WARRANTY D | WARRANTY DEED | MC KEEN FAMILY REV LIV TRUST | GOODSON, JEFFREY R | | | $177,000.00 | 111759 | 2006-14278 |
| 8 | 12/29/2000 | WARRANTY D | WARRANTY DEED | | | | | $112,500.00 | 96395 | 3060-012255 |
Payout Agreement
| No payout information available.. |