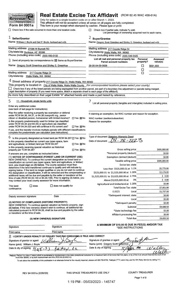
Property
Account |
| Property ID: | 32187 | Abbreviated Legal Description: | TABLEROCK SUBDIVISION II LOT 29 |
| Parcel Number: | 360604590029 | Agent Code: | |
| Type: | Real | | |
| Tax Area: | 5 - OL-140 | Land Use Code | 11 |
| Open Space: | N | DFL | N |
| Historic Property: | N | Remodel Property: | N |
| Multi-Family Redevelopment: | N | | |
| Township: | 6 | Section: | 4 |
| Range: | 36 |
Location |
| Address: | 217 COYOTE RIDGE DR WA 99362 | Mapsco: | |
| Neighborhood: | VG Res Rural/City Inf | Map ID: | |
| Neighborhood CD: | 615012 |
Owner |
| Name: | GREENHOE GREGORY SCOTT & SHIRLEY S | Owner ID: | 73525 |
| Mailing Address: | 217 COYOTE RIDGE DR WALLA WALLA, WA 99362 | % Ownership: | 100.0000000000% |
| | | Exemptions: | |
Taxes and Assessment Details
Values
| (+) Improvement Homesite Value: | + | $0 | |
| (+) Improvement Non-Homesite Value: | + | $535,980 | |
| (+) Land Homesite Value: | + | $0 | |
| (+) Land Non-Homesite Value: | + | $135,000 | |
| (+) Curr Use (HS): | + | $0 | $0 |
| (+) Curr Use (NHS): | + | $0 | $0 |
| | | -------------------------- | |
| (=) Market Value: | = | $670,980 | |
| (–) Productivity Loss: | – | $0 | |
| | | -------------------------- | |
| (=) Subtotal: | = | $670,980 | |
| (+) Senior Appraised Value: | + | $0 | |
| (+) Non-Senior Appraised Value: | + | $670,980 | |
| | | -------------------------- | |
| (=) Total Appraised Value: | = | $670,980 | |
| (–) Senior Exemption Loss: | – | $0 | |
| (–) Exemption Loss: | – | $0 | |
| | | -------------------------- | |
| (=) Taxable Value: | = | $670,980 | |
Taxing Jurisdiction
| Owner: | GREENHOE GREGORY SCOTT & SHIRLEY S | | |
| % Ownership: | 100.0000000000% | | |
| Total Value: | $670,980 | | |
| Tax Area: | 5 - OL-140 |
| CERFD | CURRENT EXPENSE REFUND 010 | 0.0000000000 | $670,980 | $670,980 | $0.00 | | |
| CURREXP | CURRENT EXPENSE 010 | 1.0175366760 | $670,980 | $670,980 | $682.75 | | |
| HUMNSERV | HUMAN SERVICES 119 | 0.0250000000 | $670,980 | $670,980 | $16.77 | | |
| SLDREL | SOLDIERS RELIEF 121 | 0.0155990005 | $670,980 | $670,980 | $10.47 | | |
| EMERGSER | EMS 147 | 0.3792580840 | $670,980 | $670,980 | $254.47 | | |
| EMSRFD | EMS REFUND 147 | 0.0000000000 | $670,980 | $670,980 | $0.00 | | |
| PORTRFD | PORT REFUND 640 | 0.0000000000 | $670,980 | $670,980 | $0.00 | | |
| PORTWWGEN | PORT OF WW 640 | 0.2460186015 | $670,980 | $670,980 | $165.07 | | |
| SD140BOND | SD #140 BOND 764 | 0.8342371393 | $670,980 | $670,980 | $559.76 | | |
| SD140GEN | SD #140 GENERAL 760 | 2.0646500647 | $670,980 | $670,980 | $1,385.34 | | |
| ST2 | STATE SCHOOL PART 2 600 | 0.8131451643 | $670,980 | $670,980 | $545.60 | | |
| STATESCHL | STATE SCHOOL 600 | 1.5158548041 | $670,980 | $670,980 | $1,017.11 | | |
| STREFUND | STATE REFUND LEVY 603 | 0.0000000000 | $670,980 | $670,980 | $0.00 | | |
| CWWBOND | C OF WW BOND 643 | 0.2760494372 | $670,980 | $670,980 | $185.22 | | |
| CWWGEN | CITY OF WW 631 | 1.6100204973 | $670,980 | $670,980 | $1,080.29 | | |
| CWWRFD | CITY OF WALLA WALLA REFUND 631 | 0.0000000000 | $670,980 | $670,980 | $0.00 | | |
| | Total Tax Rate: | 8.7973694689 | | | | | |
| | | | | Taxes w/Current Exemptions: | $5,902.85 | | |
| | | | | Taxes w/o Exemptions: | $5,902.85 | | |
Improvement / Building
| Improvement #1: | RESIDENTIAL | State Code: | 11 | 2363.0 sqft | Value: | $535,980 |
| Exterior Wall: | SIDING | Heating/Cooling: | HEAT PUMP | | Number of Bathrooms: | 2 | Number of Bedrooms: | 4 | | Plumbing: | 12 | Roof Covering: | COMP SHINGLE |
|
| | Type | Description | Class CD | Sub Class CD | Year Built | Area |
| | MA | Main Area | 1 | 45 | 2006 | 2363.0 |
| | GFP | GAS FIREPLACE | 1 | 45 | 0 | 1.0 |
| | RPC | OPEN PORCH W/ROOF , CEILED | 1 | 45 | 0 | 156.0 |
| | SI1 | SITE IMPROVEMENT | 1 | 45 | 0 | 4.5 |
| | ATG | Attached Garage | 1 | 45 | 0 | 1028.0 |
Sketch
Property Image
Land
| 1 | RES 1 | Converted: Residential | 0.3291 | 14335.00 | 0.00 | 0.00 | 1.00 | $135,000 | $0 |
Roll Value History
| 2026 | N/A | N/A | N/A | N/A | N/A |
| 2025 | $543,010 | $180,000 | $0 | $723,010 | $723,010 |
| 2024 | $535,980 | $135,000 | $0 | $670,980 | $670,980 |
| 2023 | $535,980 | $135,000 | $0 | $670,980 | $670,980 |
| 2022 | $446,650 | $115,000 | $0 | $561,650 | $561,650 |
| 2021 | $406,040 | $115,000 | $0 | $521,040 | $521,040 |
| 2020 | $338,370 | $115,000 | $0 | $453,370 | $453,370 |
| 2019 | $338,370 | $115,000 | $0 | $453,370 | $453,370 |
| 2018 | $303,040 | $94,000 | $0 | $397,040 | $397,040 |
| 2017 | $294,210 | $94,000 | $0 | $388,210 | $388,210 |
| 2016 | $280,200 | $94,000 | $0 | $374,200 | $374,200 |
| 2015 | $280,200 | $94,000 | $0 | $374,200 | $374,200 |
| 2014 | $280,200 | $94,000 | $0 | $374,200 | $374,200 |
| 2013 | $280,200 | $94,000 | $0 | $374,200 | $374,200 |
| 2012 | $279,200 | $94,000 | $0 | $0 | $0 |
| 2011 | $279,200 | $94,000 | $0 | $0 | $0 |
| 2010 | $279,200 | $94,000 | $0 | $0 | $0 |
| 2009 | $339,900 | $94,000 | $0 | $0 | $0 |
| 2008 | $339,900 | $94,000 | $0 | $0 | $0 |
| 2007 | $358,000 | $75,000 | $0 | $0 | $0 |
Deed and Sales History
| 1 | 05/03/2023 | SWD | STATUTORY WARRANTY DEED | BOYLE WILLIAM J & GAIL P | GREENHOE GREGORY SCOTT & SHIRLEY S | | | $695,000.00 | 145747 | 2023-02322 |
| 2 | 11/10/2020 | SWD | STATUTORY WARRANTY DEED | TOMKINS RICHARD A & CYNTHIA A | BOYLE WILLIAM J & GAIL P | | | $519,000.00 | 140300 | 2020-11840 |
| 3 | 02/22/2019 | SWD | STATUTORY WARRANTY DEED | MEURET JON C & AMY E | TOMKINS RICHARD A & CYNTHIA A | | | $467,000.00 | 136425 | 2019-01163 |
| 4 | 08/18/2015 | SWD | STATUTORY WARRANTY DEED | SANDVEN TOR & LEAH | MEURET JON C & AMY E | | | $410,000.00 | 128645 | 2015-07242 |
| 5 | 08/02/2011 | WARRANTY D | WARRANTY DEED | LOBDELL, JUDITH | SANDVEN, TOR & LEAH | | | $387,300.00 | 120490 | 2011-06005 |
| 6 | 08/11/2006 | WARRANTY D | WARRANTY DEED | JOE'S QUALITY CONSTRUCTION INC | LOBDELL, JUDITH | | | $435,000.00 | 110943 | 2006-09625 |
| 7 | 02/03/2006 | WARRANTY D | WARRANTY DEED | GATEWOOD, W PAUL & CAROL | JOE'S QUALITY CONSTRUCTION INC | | | $97,500.00 | 109607 | 2006-01365 |
Payout Agreement
| No payout information available.. |