Property
Account |
| Property ID: | 32178 | Abbreviated Legal Description: | BURBANK LOTS 24 THRU 26 BLK 13 |
| Parcel Number: | 300802531324 | Agent Code: | |
| Type: | Real | | |
| Tax Area: | 328 - 400-M-5 | Land Use Code | 11 |
| Open Space: | N | DFL | N |
| Historic Property: | N | Remodel Property: | N |
| Multi-Family Redevelopment: | N | | |
| Township: | 8 | Section: | 2 |
| Range: | 30 |
Location |
| Address: | 220 BIRCH ST WA 99323 | Mapsco: | |
| Neighborhood: | Burbank F SFR | Map ID: | |
| Neighborhood CD: | 212711 |
Owner |
| Name: | OWENS MELISA | Owner ID: | 59604 |
| Mailing Address: | PO BOX 174 BURBANK, WA 99323 | % Ownership: | 100.0000000000% |
| | | Exemptions: | |
Taxes and Assessment Details
Values
| (+) Improvement Homesite Value: | + | $0 | |
| (+) Improvement Non-Homesite Value: | + | $129,730 | |
| (+) Land Homesite Value: | + | $0 | |
| (+) Land Non-Homesite Value: | + | $45,280 | |
| (+) Curr Use (HS): | + | $0 | $0 |
| (+) Curr Use (NHS): | + | $0 | $0 |
| | | -------------------------- | |
| (=) Market Value: | = | $175,010 | |
| (–) Productivity Loss: | – | $0 | |
| | | -------------------------- | |
| (=) Subtotal: | = | $175,010 | |
| (+) Senior Appraised Value: | + | $0 | |
| (+) Non-Senior Appraised Value: | + | $175,010 | |
| | | -------------------------- | |
| (=) Total Appraised Value: | = | $175,010 | |
| (–) Senior Exemption Loss: | – | $0 | |
| (–) Exemption Loss: | – | $0 | |
| | | -------------------------- | |
| (=) Taxable Value: | = | $175,010 | |
Taxing Jurisdiction
| Owner: | OWENS MELISA | | |
| % Ownership: | 100.0000000000% | | |
| Total Value: | $175,010 | | |
| Tax Area: | 328 - 400-M-5 |
| CERFD | CURRENT EXPENSE REFUND 010 | 0.0000000000 | $175,010 | $175,010 | $0.00 | | |
| CURREXP | CURRENT EXPENSE 010 | 1.0175366760 | $175,010 | $175,010 | $178.08 | | |
| HUMNSERV | HUMAN SERVICES 119 | 0.0250000000 | $175,010 | $175,010 | $4.38 | | |
| SLDREL | SOLDIERS RELIEF 121 | 0.0155990005 | $175,010 | $175,010 | $2.73 | | |
| EMERGSER | EMS 147 | 0.3792580840 | $175,010 | $175,010 | $66.37 | | |
| EMSRFD | EMS REFUND 147 | 0.0000000000 | $175,010 | $175,010 | $0.00 | | |
| FD5EXP | FD #5 EXPENSE 689 | 1.2045331840 | $175,010 | $175,010 | $210.81 | | |
| RLBRFD | RURAL LIBRARY REFUND 623 | 0.0000000000 | $175,010 | $175,010 | $0.00 | | |
| RURALLIB | RURAL LIBRARY 623 | 0.3710609029 | $175,010 | $175,010 | $64.94 | | |
| PORTRFD | PORT REFUND 640 | 0.0000000000 | $175,010 | $175,010 | $0.00 | | |
| PORTWWGEN | PORT OF WW 640 | 0.2460186015 | $175,010 | $175,010 | $43.06 | | |
| SD400BOND | SD #400 BOND 793 | 0.0000000000 | $175,010 | $175,010 | $0.00 | | |
| SD400CAP | SD #400 CP 792 | 0.3443722657 | $175,010 | $175,010 | $60.27 | | |
| SD400GEN | SD #400 GENERAL 790 | 1.9278469916 | $175,010 | $175,010 | $337.39 | | |
| ST2 | STATE SCHOOL PART 2 600 | 0.8131451643 | $175,010 | $175,010 | $142.31 | | |
| STATESCHL | STATE SCHOOL 600 | 1.5158548041 | $175,010 | $175,010 | $265.29 | | |
| STREFUND | STATE REFUND LEVY 603 | 0.0000000000 | $175,010 | $175,010 | $0.00 | | |
| COROAD | COUNTY ROAD 115 | 1.6549953990 | $175,010 | $175,010 | $289.64 | | |
| CRPRD | COUNTY ROAD REFUND 115 | 0.0000000000 | $175,010 | $175,010 | $0.00 | | |
| | Total Tax Rate: | 9.5152210736 | | | | | |
| | | | | Taxes w/Current Exemptions: | $1,665.27 | | |
| | | | | Taxes w/o Exemptions: | $1,665.27 | | |
Improvement / Building
| Improvement #1: | RESIDENTIAL | State Code: | 11 | 966.0 sqft | Value: | $129,730 |
| Exterior Wall: | PLYWOOD | Heating/Cooling: | BASEBOARD ELECTRIC | | Number of Bathrooms: | 1 | Number of Bedrooms: | 2 | | Plumbing: | 6 | Roof Covering: | COMP SHINGLE |
|
| | Type | Description | Class CD | Sub Class CD | Year Built | Area |
| | MA | Main Area | 1 | 30 | 1956 | 966.0 |
| | SI1 | SITE IMPROVEMENT | 1 | 30 | 1956 | 1.0 |
| | WOD | Wood Deck | 1 | 30 | 1956 | 384.0 |
| | CPCD | CARPORT/DIRT FLOOR | 1 | 30 | 1956 | 324.0 |
Sketch
Property Image
Land
| 1 | RES 1 | Converted: Residential | 0.1980 | 8625.00 | 0.00 | 0.00 | 1.00 | $45,280 | $0 |
Roll Value History
| 2026 | N/A | N/A | N/A | N/A | N/A |
| 2025 | $129,730 | $45,280 | $0 | $175,010 | $175,010 |
| 2024 | $129,730 | $45,280 | $0 | $175,010 | $175,010 |
| 2023 | $129,730 | $45,280 | $0 | $175,010 | $175,010 |
| 2022 | $129,730 | $45,280 | $0 | $175,010 | $175,010 |
| 2021 | $81,080 | $45,280 | $0 | $126,360 | $126,360 |
| 2020 | $79,370 | $20,800 | $0 | $100,170 | $100,170 |
| 2019 | $79,370 | $20,800 | $0 | $100,170 | $100,170 |
| 2018 | $75,590 | $20,800 | $0 | $96,390 | $96,390 |
| 2017 | $75,590 | $20,800 | $0 | $96,390 | $96,390 |
| 2016 | $42,700 | $20,800 | $0 | $63,500 | $63,500 |
| 2015 | $42,700 | $20,800 | $0 | $63,500 | $63,500 |
| 2014 | $42,700 | $20,800 | $0 | $63,500 | $63,500 |
| 2013 | $42,700 | $20,800 | $0 | $63,500 | $63,500 |
| 2012 | $49,800 | $20,800 | $0 | $0 | $0 |
| 2011 | $49,800 | $20,800 | $0 | $0 | $0 |
| 2010 | $49,800 | $20,800 | $0 | $0 | $0 |
| 2009 | $78,100 | $12,900 | $0 | $0 | $0 |
| 2008 | $62,900 | $12,900 | $0 | $0 | $0 |
| 2007 | $62,900 | $12,900 | $0 | $0 | $0 |
Deed and Sales History
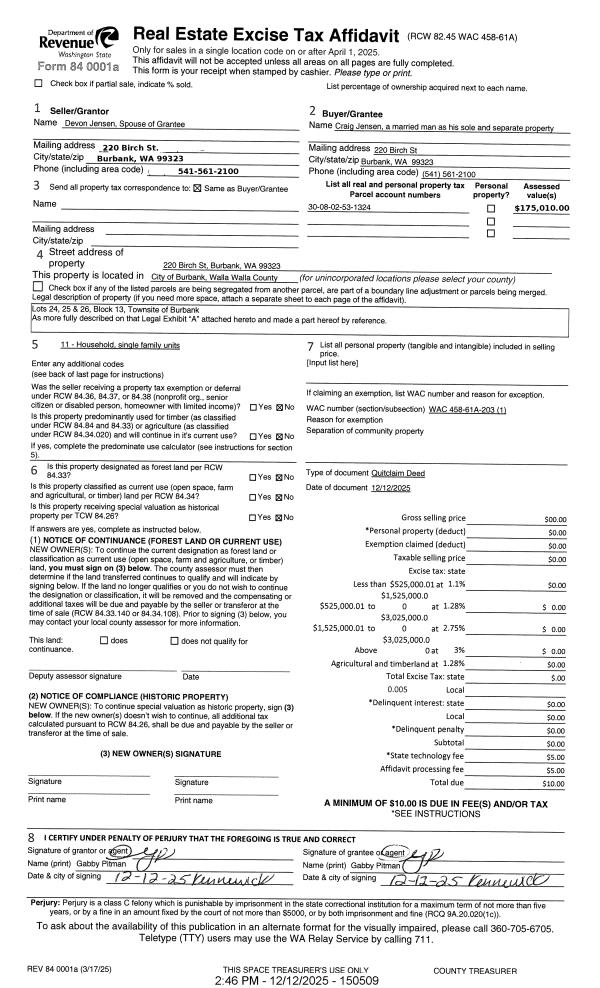
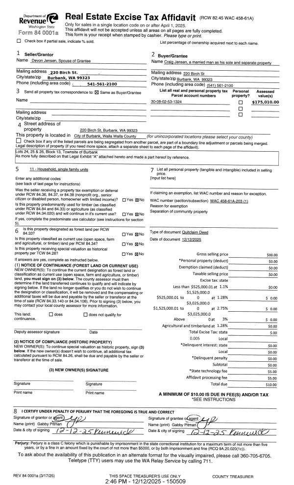
| 1 | 12/12/2025 | QCD | QUIT CLAIM DEED | JENSON DEVON | JENSEN CRAIG | | | $0.00 | 150509 | 2025-07652 |
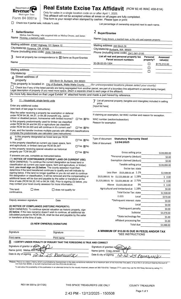
| 2 | 12/12/2025 | SWD | STATUTORY WARRANTY DEED | OWENS MELISA | JENSEN CRAIG | | | $228,000.00 | 150508 | 2025-07651 |
| 3 | 09/12/2016 | SWD | STATUTORY WARRANTY DEED | ROE ROBERT P & KAREN D | OWENS MELISA | | | $100,000.00 | 131016 | 2016-07439 |
| 4 | 11/09/2011 | WARRANTY D | WARRANTY DEED | SECRETARY OF HOUSING & URBAN D | ROE, ROBERT P & KAREN D | | | $65,200.00 | 120962 | 2011-08841 |
| 5 | 08/10/2011 | WARRANTY D | WARRANTY DEED | PHH MORTGAGE CORPORATION | SECRETARY OF HOUSING & URBAN D | | | $46,777.00 | 120526 | 2011-06238 |
| 6 | 07/14/2011 | WARRANTY D | WARRANTY DEED | NORTHWEST TRUSTEE SERVICES | PHH MORTGAGE CORPORATION | | | $55,534.00 | 120396 | 2011-05441 |
| 7 | 04/17/1998 | WARRANTY D | WARRANTY DEED | | | | | $65,950.00 | 90247 | 2659-804167 |
Payout Agreement
| No payout information available.. |