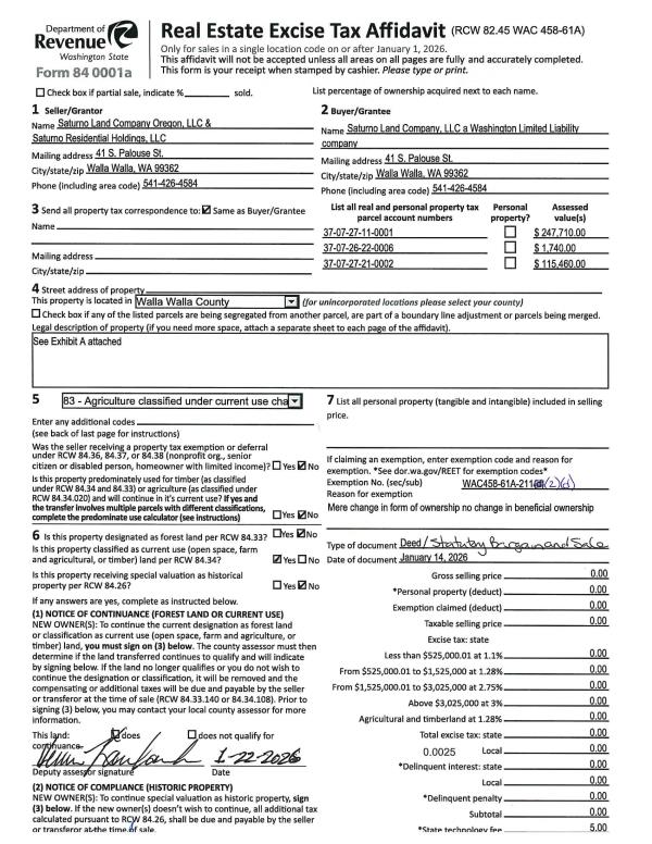
Property
Account |
| Property ID: | 32174 | Abbreviated Legal Description: | 27-7-37 NE1/4 LESS LAND SOLD; N1/2SE1/4 |
| Parcel Number: | 370727110001 | Agent Code: | |
| Type: | Real | | |
| Tax Area: | 101 - 140-4 | Land Use Code | 83 |
| Open Space: | Y | DFL | N |
| Historic Property: | N | Remodel Property: | N |
| Multi-Family Redevelopment: | N | | |
| Township: | 7 | Section: | 27 |
| Range: | 37 |
Location |
| Address: | WA 99362 | Mapsco: | |
| Neighborhood: | 0 Farm | Map ID: | |
| Neighborhood CD: | 4240 |
Owner |
| Name: | SATURNO LAND COMPANY OREGON LLC | Owner ID: | 74508 |
| Mailing Address: | SATURNO RESIDENTIAL HOLDINGS LLC 41 S PALOUSE ST WALLA WALLA, WA 99362 | % Ownership: | 100.0000000000% |
| | | Exemptions: | |
Taxes and Assessment Details
Property Tax Information as of
02/21/2026
Click on "Statement Details" to expand or collapse a tax statement.
* Please enter a valid date ** Please enter a valid date *
Statement Details |
| | TOTAL: | $0.00 | $0.00 | $0.00 | $0.00 | $0.00 | $0.00 |
|
| | $0.00 | $0.00 | $0.00 | $0.00 | $0.00 | $0.00 |
Values
| (+) Improvement Homesite Value: | + | $0 | |
| (+) Improvement Non-Homesite Value: | + | $0 | |
| (+) Land Homesite Value: | + | $0 | |
| (+) Land Non-Homesite Value: | + | $0 | |
| (+) Curr Use (HS): | + | $0 | $0 |
| (+) Curr Use (NHS): | + | $773,260 | $230,920 |
| | | -------------------------- | |
| (=) Market Value: | = | $773,260 | |
| (–) Productivity Loss: | – | $542,340 | |
| | | -------------------------- | |
| (=) Subtotal: | = | $230,920 | |
| (+) Senior Appraised Value: | + | $0 | |
| (+) Non-Senior Appraised Value: | + | $230,920 | |
| | | -------------------------- | |
| (=) Total Appraised Value: | = | $230,920 | |
| (–) Senior Exemption Loss: | – | $0 | |
| (–) Exemption Loss: | – | $0 | |
| | | -------------------------- | |
| (=) Taxable Value: | = | $230,920 | |
Taxing Jurisdiction
| Owner: | SATURNO LAND COMPANY OREGON LLC | | |
| % Ownership: | 100.0000000000% | | |
| Total Value: | $773,260 | | |
| Tax Area: | 101 - 140-4 |
| CERFD | CURRENT EXPENSE REFUND 010 | 0.0000000000 | $230,920 | $230,920 | $0.00 | | |
| CURREXP | CURRENT EXPENSE 010 | 0.9851088983 | $230,920 | $230,920 | $227.48 | | |
| HUMNSERV | HUMAN SERVICES 119 | 0.0250000000 | $230,920 | $230,920 | $5.77 | | |
| SLDREL | SOLDIERS RELIEF 121 | 0.0155990000 | $230,920 | $230,920 | $3.60 | | |
| EMERGSER | EMS 147 | 0.3676811629 | $230,920 | $230,920 | $84.90 | | |
| EMSRFD | EMS REFUND 147 | 0.0000000000 | $230,920 | $230,920 | $0.00 | | |
| FD4EXP | FD #4 EXPENSE 686 | 1.2367913128 | $230,920 | $230,920 | $285.60 | | |
| RLBRFD | RURAL LIBRARY REFUND 623 | 0.0000000000 | $230,920 | $230,920 | $0.00 | | |
| RURALLIB | RURAL LIBRARY 623 | 0.3601547782 | $230,920 | $230,920 | $83.17 | | |
| PORTRFD | PORT REFUND 640 | 0.0000000000 | $230,920 | $230,920 | $0.00 | | |
| PORTWWGEN | PORT OF WW 640 | 0.2344301070 | $230,920 | $230,920 | $54.13 | | |
| SD140BOND | SD #140 BOND 764 | 0.8032434458 | $230,920 | $230,920 | $185.48 | | |
| SD140CAP | SD #140 CAP 762 | 0.3840034221 | $230,920 | $230,920 | $88.67 | | |
| SD140GEN | SD #140 GENERAL 760 | 2.4999999996 | $230,920 | $230,920 | $577.30 | | |
| ST2 | STATE SCHOOL PART 2 600 | 0.8853714103 | $230,920 | $230,920 | $204.45 | | |
| STATESCHL | STATE SCHOOL 600 | 1.6424571473 | $230,920 | $230,920 | $379.28 | | |
| STREFUND | STATE REFUND LEVY 603 | 0.0000000000 | $230,920 | $230,920 | $0.00 | | |
| COROAD | COUNTY ROAD 115 | 1.6137667997 | $230,920 | $230,920 | $372.65 | | |
| CRPRD | COUNTY ROAD REFUND 115 | 0.0000000000 | $230,920 | $230,920 | $0.00 | | |
| | Total Tax Rate: | 11.0536074840 | | | | | |
| | | | | Taxes w/Current Exemptions: | $2,552.48 | | |
| | | | | Taxes w/o Exemptions: | $2,552.48 | | |
Improvement / Building
Sketch
| No sketches available for this property. |
Property Image
Land
| 1 | WASTE | Waste | 10.0000 | 0.00 | 0.00 | 0.00 | 1.00 | $0 | $0 |
| 2 | 90-C2AN | Class 2 90 BU Annual | 230.0000 | 0.00 | 0.00 | 0.00 | 1.00 | $773,260 | $230,920 |
Roll Value History
| 2026 | N/A | N/A | N/A | N/A | N/A |
| 2025 | $0 | $773,260 | $230,920 | $230,920 | $230,920 |
| 2024 | $0 | $754,630 | $247,710 | $247,710 | $247,710 |
| 2023 | $0 | $736,000 | $256,450 | $256,450 | $256,450 |
| 2022 | $0 | $551,080 | $200,100 | $200,100 | $200,100 |
| 2021 | $0 | $520,030 | $199,180 | $199,180 | $199,180 |
| 2020 | $0 | $489,900 | $204,240 | $204,240 | $204,240 |
| 2019 | $0 | $475,180 | $207,690 | $207,690 | $207,690 |
| 2018 | $0 | $473,570 | $236,900 | $236,900 | $236,900 |
| 2017 | $0 | $469,660 | $240,810 | $240,810 | $240,810 |
| 2016 | $0 | $469,660 | $241,270 | $241,270 | $241,270 |
| 2015 | $0 | $469,660 | $214,590 | $214,590 | $214,590 |
| 2014 | $0 | $469,660 | $215,740 | $215,740 | $215,740 |
| 2013 | $0 | $446,400 | $173,700 | $173,700 | $173,700 |
| 2012 | $0 | $111,800 | $0 | $0 | $0 |
| 2011 | $0 | $105,600 | $0 | $0 | $0 |
| 2010 | $0 | $94,800 | $0 | $0 | $0 |
| 2009 | $0 | $97,300 | $0 | $0 | $0 |
| 2008 | $0 | $80,500 | $0 | $0 | $0 |
| 2007 | $0 | $129,300 | $0 | $0 | $0 |
Deed and Sales History
| 1 | 09/22/2023 | SWD | STATUTORY WARRANTY DEED | THE EDWARD L EPSTEIN GST TRUST ET AL | SATURNO LAND COMPANY OREGON LLC | | 3-PARCELS | $1,700,000.00 | 146559 | 2023-05731 |
|   | |
| 2 | 02/21/2023 | DPR | DEED OF PERSONAL REPRESENTATIVE | EPSTEIN EDWARD L ETAL | THE EDWARD L EPSTEIN GST TRUST ET AL | | | | 145418 | 2023-00861 |
| 3 | 11/18/2019 | QCD | QUIT CLAIM DEED | HOUK GLEN | HOUK MARK EDWARD & JAYNE LYN FREEMAN | | | $0.00 | 138368 | 2020-00072 |
| 4 | 01/04/2012 | WARRANTY D | WARRANTY DEED | "HUNTER, JUNE V ESTATE OF" | | | | | 121227 | 2012-00091 |
| 5 | 08/01/1978 | WARRANTY D | WARRANTY DEED | | | 206 | 254 | $0.00 | 42162 | 2060-256381 |
Payout Agreement
| No payout information available.. |