Property
Account |
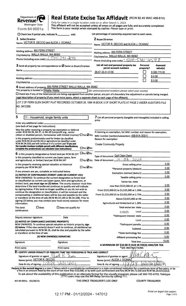
| Property ID: | 32169 | Abbreviated Legal Description: | ABBOTT ACRES TRACTS LOT 2 OF S/P (PTN OF TRACT 4) |
| Parcel Number: | 360733510139 | Agent Code: | |
| Type: | Real | | |
| Tax Area: | 1 - OL-140-F | Land Use Code | 11 |
| Open Space: | N | DFL | N |
| Historic Property: | N | Remodel Property: | N |
| Multi-Family Redevelopment: | N | | |
| Township: | 7 | Section: | 33 |
| Range: | 36 |
Location |
| Address: | 855 FERN CT WA 99362 | Mapsco: | |
| Neighborhood: | G Res | Map ID: | |
| Neighborhood CD: | 614011 |
Owner |
| Name: | DECCIO VICTOR R & | Owner ID: | 61116 |
| Mailing Address: | ALICIA J OCANAZ 855 FERN CT WALLA WALLA, WA 99362 | % Ownership: | 100.0000000000% |
| | | Exemptions: | |
Taxes and Assessment Details
Property Tax Information as of
02/21/2026
Click on "Statement Details" to expand or collapse a tax statement.
* Please enter a valid date ** Please enter a valid date *
Statement Details |
| | TOTAL: | $0.00 | $0.00 | $0.00 | $0.00 | $0.00 | $0.00 |
|
| | $0.00 | $0.00 | $0.00 | $0.00 | $0.00 | $0.00 |
Values
| (+) Improvement Homesite Value: | + | $0 | |
| (+) Improvement Non-Homesite Value: | + | $458,960 | |
| (+) Land Homesite Value: | + | $0 | |
| (+) Land Non-Homesite Value: | + | $121,810 | |
| (+) Curr Use (HS): | + | $0 | $0 |
| (+) Curr Use (NHS): | + | $0 | $0 |
| | | -------------------------- | |
| (=) Market Value: | = | $580,770 | |
| (–) Productivity Loss: | – | $0 | |
| | | -------------------------- | |
| (=) Subtotal: | = | $580,770 | |
| (+) Senior Appraised Value: | + | $0 | |
| (+) Non-Senior Appraised Value: | + | $580,770 | |
| | | -------------------------- | |
| (=) Total Appraised Value: | = | $580,770 | |
| (–) Senior Exemption Loss: | – | $0 | |
| (–) Exemption Loss: | – | $0 | |
| | | -------------------------- | |
| (=) Taxable Value: | = | $580,770 | |
Taxing Jurisdiction
| Owner: | DECCIO VICTOR R & | | |
| % Ownership: | 100.0000000000% | | |
| Total Value: | $580,770 | | |
| Tax Area: | 1 - OL-140-F |
| CERFD | CURRENT EXPENSE REFUND 010 | 0.0000000000 | $580,770 | $580,770 | $0.00 | | |
| CURREXP | CURRENT EXPENSE 010 | 1.0175366760 | $580,770 | $580,770 | $590.95 | | |
| HUMNSERV | HUMAN SERVICES 119 | 0.0250000000 | $580,770 | $580,770 | $14.52 | | |
| SLDREL | SOLDIERS RELIEF 121 | 0.0155990005 | $580,770 | $580,770 | $9.06 | | |
| EMERGSER | EMS 147 | 0.3792580840 | $580,770 | $580,770 | $220.26 | | |
| EMSRFD | EMS REFUND 147 | 0.0000000000 | $580,770 | $580,770 | $0.00 | | |
| PORTRFD | PORT REFUND 640 | 0.0000000000 | $580,770 | $580,770 | $0.00 | | |
| PORTWWGEN | PORT OF WW 640 | 0.2460186015 | $580,770 | $580,770 | $142.88 | | |
| SD140BOND | SD #140 BOND 764 | 0.8342371393 | $580,770 | $580,770 | $484.50 | | |
| SD140GEN | SD #140 GENERAL 760 | 2.0646500647 | $580,770 | $580,770 | $1,199.09 | | |
| ST2 | STATE SCHOOL PART 2 600 | 0.8131451643 | $580,770 | $580,770 | $472.25 | | |
| STATESCHL | STATE SCHOOL 600 | 1.5158548041 | $580,770 | $580,770 | $880.36 | | |
| STREFUND | STATE REFUND LEVY 603 | 0.0000000000 | $580,770 | $580,770 | $0.00 | | |
| CWWBOND | C OF WW BOND 643 | 0.2760494372 | $580,770 | $580,770 | $160.32 | | |
| CWWGEN | CITY OF WW 631 | 1.6100204973 | $580,770 | $580,770 | $935.05 | | |
| CWWRFD | CITY OF WALLA WALLA REFUND 631 | 0.0000000000 | $580,770 | $580,770 | $0.00 | | |
| | Total Tax Rate: | 8.7973694689 | | | | | |
| | | | | Taxes w/Current Exemptions: | $5,109.24 | | |
| | | | | Taxes w/o Exemptions: | $5,109.24 | | |
Improvement / Building
| Improvement #1: | RESIDENTIAL | State Code: | 11 | 2322.0 sqft | Value: | $458,960 |
| Exterior Wall: | PLYWOOD | Heating/Cooling: | WARM & COOLED AIR | | Number of Bathrooms: | 2.5 | Number of Bedrooms: | 4 | | Plumbing: | 14 | Roof Covering: | COMP SHINGLE |
|
| | Type | Description | Class CD | Sub Class CD | Year Built | Area |
| | MA | Main Area | 2 | 40 | 1996 | 2322.0 |
| | SI1 | SITE IMPROVEMENT | 2 | 40 | 1996 | 4.5 |
| | UPFL | Upper Floor (included in main area) | 2 | 40 | 1996 | 1181.0 |
| | ATG | Attached Garage | 2 | 40 | 1996 | 746.0 |
| | OPS | OPEN PORCH W/STEPS | 2 | 40 | 1996 | 48.0 |
| | GFP | GAS FIREPLACE | 2 | 40 | 1996 | 1.0 |
| | PRC | PORCH W STEPS, ROOF,CEILED | 2 | 40 | 1996 | 129.0 |
| | SMP | SWIMMING POOL | 2 | 40 | 1996 | 1.0 |
Sketch
Property Image
Land
| 1 | RES 1 | Converted: Residential | 0.3192 | 13905.00 | 0.00 | 0.00 | 1.00 | $121,810 | $0 |
Roll Value History
| 2026 | N/A | N/A | N/A | N/A | N/A |
| 2025 | $491,890 | $145,590 | $0 | $637,480 | $637,480 |
| 2024 | $458,960 | $121,810 | $0 | $580,770 | $580,770 |
| 2023 | $458,960 | $121,810 | $0 | $580,770 | $580,770 |
| 2022 | $458,960 | $100,390 | $0 | $559,350 | $559,350 |
| 2021 | $458,960 | $100,390 | $0 | $559,350 | $559,350 |
| 2020 | $286,850 | $100,390 | $0 | $387,240 | $387,240 |
| 2019 | $286,850 | $100,390 | $0 | $387,240 | $387,240 |
| 2018 | $327,770 | $60,000 | $0 | $387,770 | $387,770 |
| 2017 | $312,160 | $60,000 | $0 | $372,160 | $372,160 |
| 2016 | $297,300 | $60,000 | $0 | $357,300 | $357,300 |
| 2015 | $270,270 | $60,000 | $0 | $330,270 | $330,270 |
| 2014 | $257,400 | $60,000 | $0 | $317,400 | $317,400 |
| 2013 | $248,500 | $60,000 | $0 | $308,500 | $308,500 |
| 2012 | $186,800 | $60,000 | $0 | $0 | $0 |
| 2011 | $186,800 | $60,000 | $0 | $0 | $0 |
| 2010 | $186,800 | $60,000 | $0 | $0 | $0 |
| 2009 | $214,200 | $60,000 | $0 | $0 | $0 |
| 2008 | $214,200 | $60,000 | $0 | $0 | $0 |
| 2007 | $168,400 | $35,000 | $0 | $0 | $0 |
Deed and Sales History
| 1 | 01/12/2024 | QCD | QUIT CLAIM DEED | DECCIO VICTOR R & | DECCIO VICTOR R & | | | | 147012 | 2024-00179 |
| 2 | 06/21/2017 | SWD | STATUTORY WARRANTY DEED | MC KINNEY KRISTY L | DECCIO VICTOR R & | | | $395,000.00 | 132642 | 2017-04742 |
| 3 | 02/01/2013 | WARRANTY D | WARRANTY DEED | MC KINNEY, ROBERT M | MC KINNEY, KRISTY L | | | $0.00 | 0 | CC #11-3--00020-1 |
| 4 | 07/15/2011 | WARRANTY D | WARRANTY DEED | CAMP, PATRICIA G | MC KINNEY, KRISTY L | | | $314,500.00 | 120398 | 2011-05455 |
| 5 | 05/26/1998 | WARRANTY D | WARRANTY DEED | | | | | $200,000.00 | 90477 | 2679-805757 |
Payout Agreement
| No payout information available.. |