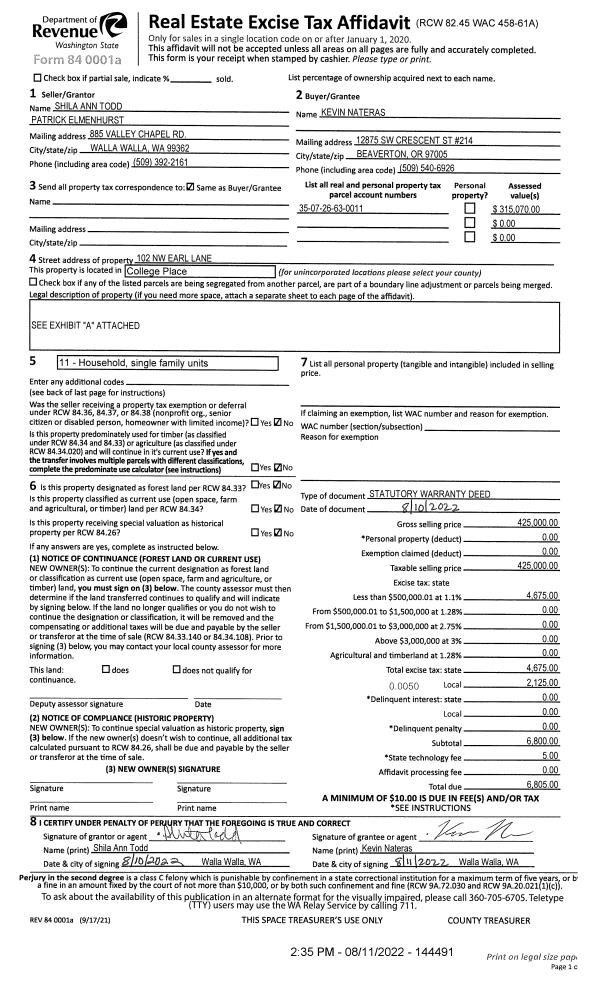
Property
Account |
| Property ID: | 32166 | Abbreviated Legal Description: | GREYSTONE ADDN LOT 11 |
| Parcel Number: | 350726630011 | Agent Code: | |
| Type: | Real | | |
| Tax Area: | 75 - CP 250 | Land Use Code | 11 |
| Open Space: | N | DFL | N |
| Historic Property: | N | Remodel Property: | N |
| Multi-Family Redevelopment: | N | | |
| Township: | 7 | Section: | 26 |
| Range: | 35 |
Location |
| Address: | 102 NW EARL LN WA 99324 | Mapsco: | |
| Neighborhood: | A SFR | Map ID: | |
| Neighborhood CD: | 113011 |
Owner |
| Name: | NATERAS KEVIN | Owner ID: | 72135 |
| Mailing Address: | 922 SE MARINE DR COLLEGE PLACE, WA 99324 | % Ownership: | 100.0000000000% |
| | | Exemptions: | |
Taxes and Assessment Details
Property Tax Information as of
02/21/2026
Click on "Statement Details" to expand or collapse a tax statement.
* Please enter a valid date ** Please enter a valid date *
Statement Details |
| | TOTAL: | $0.00 | $0.00 | $0.00 | $0.00 | $0.00 | $0.00 |
|
| | $0.00 | $0.00 | $0.00 | $0.00 | $0.00 | $0.00 |
Values
| (+) Improvement Homesite Value: | + | $0 | |
| (+) Improvement Non-Homesite Value: | + | $338,190 | |
| (+) Land Homesite Value: | + | $0 | |
| (+) Land Non-Homesite Value: | + | $70,000 | |
| (+) Curr Use (HS): | + | $0 | $0 |
| (+) Curr Use (NHS): | + | $0 | $0 |
| | | -------------------------- | |
| (=) Market Value: | = | $408,190 | |
| (–) Productivity Loss: | – | $0 | |
| | | -------------------------- | |
| (=) Subtotal: | = | $408,190 | |
| (+) Senior Appraised Value: | + | $0 | |
| (+) Non-Senior Appraised Value: | + | $408,190 | |
| | | -------------------------- | |
| (=) Total Appraised Value: | = | $408,190 | |
| (–) Senior Exemption Loss: | – | $0 | |
| (–) Exemption Loss: | – | $0 | |
| | | -------------------------- | |
| (=) Taxable Value: | = | $408,190 | |
Taxing Jurisdiction
| Owner: | NATERAS KEVIN | | |
| % Ownership: | 100.0000000000% | | |
| Total Value: | $408,190 | | |
| Tax Area: | 75 - CP 250 |
| CERFD | CURRENT EXPENSE REFUND 010 | 0.0000000000 | $408,190 | $408,190 | $0.00 | | |
| CURREXP | CURRENT EXPENSE 010 | 1.0175366760 | $408,190 | $408,190 | $415.35 | | |
| HUMNSERV | HUMAN SERVICES 119 | 0.0250000000 | $408,190 | $408,190 | $10.20 | | |
| SLDREL | SOLDIERS RELIEF 121 | 0.0155990005 | $408,190 | $408,190 | $6.37 | | |
| COLLPLBOND | C OF CP BOND 644 | 0.4374241808 | $408,190 | $408,190 | $178.55 | | |
| COLLPLGEN | CITY OF CP 632 | 1.4453819216 | $408,190 | $408,190 | $589.99 | | |
| EMERGSER | EMS 147 | 0.3792580840 | $408,190 | $408,190 | $154.81 | | |
| EMSRFD | EMS REFUND 147 | 0.0000000000 | $408,190 | $408,190 | $0.00 | | |
| RURALLIB | RURAL LIBRARY 623 | 0.3710609029 | $408,190 | $408,190 | $151.46 | | |
| PORTRFD | PORT REFUND 640 | 0.0000000000 | $408,190 | $408,190 | $0.00 | | |
| PORTWWGEN | PORT OF WW 640 | 0.2460186015 | $408,190 | $408,190 | $100.42 | | |
| SD250BOND | SD #250 BOND 773 | 1.4560608159 | $408,190 | $408,190 | $594.35 | | |
| SD250GEN | SD #250 GENERAL 770 | 2.3880724087 | $408,190 | $408,190 | $974.79 | | |
| ST2 | STATE SCHOOL PART 2 600 | 0.8131451643 | $408,190 | $408,190 | $331.92 | | |
| STATESCHL | STATE SCHOOL 600 | 1.5158548041 | $408,190 | $408,190 | $618.76 | | |
| STREFUND | STATE REFUND LEVY 603 | 0.0000000000 | $408,190 | $408,190 | $0.00 | | |
| | Total Tax Rate: | 10.1104125603 | | | | | |
| | | | | Taxes w/Current Exemptions: | $4,126.97 | | |
| | | | | Taxes w/o Exemptions: | $4,126.97 | | |
Improvement / Building
| Improvement #1: | RESIDENTIAL | State Code: | 11 | 2016.0 sqft | Value: | $338,190 |
| Exterior Wall: | PLYWOOD | Heating/Cooling: | WARM & COOLED AIR | | Number of Bathrooms: | 2.5 | Number of Bedrooms: | 4 | | Plumbing: | 11 | Roof Covering: | COMP SHINGLE |
|
| | Type | Description | Class CD | Sub Class CD | Year Built | Area |
| | MA | Main Area | 2 | 30 | 1999 | 2016.0 |
| | SI1 | SITE IMPROVEMENT | 2 | 30 | 1999 | 2.0 |
| | UPFL | Upper Floor (included in main area) | 2 | 30 | 1999 | 1008.0 |
| | ATG | Attached Garage | 2 | 30 | 1999 | 400.0 |
| | RPC | OPEN PORCH W/ROOF , CEILED | 2 | 30 | 1999 | 120.0 |
Sketch
Property Image
Land
| 1 | RES 1 | Converted: Residential | 0.2559 | 11148.00 | 0.00 | 0.00 | 1.00 | $70,000 | $0 |
Roll Value History
| 2026 | N/A | N/A | N/A | N/A | N/A |
| 2025 | $284,080 | $140,000 | $0 | $424,080 | $424,080 |
| 2024 | $355,100 | $70,000 | $0 | $425,100 | $425,100 |
| 2023 | $338,190 | $70,000 | $0 | $408,190 | $408,190 |
| 2022 | $294,080 | $70,000 | $0 | $364,080 | $364,080 |
| 2021 | $245,070 | $70,000 | $0 | $315,070 | $315,070 |
| 2020 | $213,100 | $70,000 | $0 | $283,100 | $283,100 |
| 2019 | $228,100 | $55,000 | $0 | $283,100 | $283,100 |
| 2018 | $168,960 | $55,000 | $0 | $223,960 | $223,960 |
| 2017 | $168,960 | $55,000 | $0 | $223,960 | $223,960 |
| 2016 | $140,800 | $55,000 | $0 | $195,800 | $195,800 |
| 2015 | $140,800 | $55,000 | $0 | $195,800 | $195,800 |
| 2014 | $140,800 | $55,000 | $0 | $195,800 | $195,800 |
| 2013 | $140,800 | $55,000 | $0 | $195,800 | $195,800 |
| 2012 | $135,100 | $55,000 | $0 | $0 | $0 |
| 2011 | $135,100 | $55,000 | $0 | $0 | $0 |
| 2010 | $135,100 | $55,000 | $0 | $0 | $0 |
| 2009 | $156,200 | $55,000 | $0 | $0 | $0 |
| 2008 | $114,600 | $30,000 | $0 | $0 | $0 |
| 2007 | $114,600 | $30,000 | $0 | $0 | $0 |
Deed and Sales History
| 1 | 08/11/2022 | QCD | QUIT CLAIM DEED | PATINO MARGARITA | NATERAS KEVIN | | | | 144492 | 2022-06743 |
| 2 | 08/11/2022 | SWD | STATUTORY WARRANTY DEED | TODD SHILA ANN | NATERAS KEVIN | | | $425,000.00 | 144491 | 2022-06742 |
| 3 | 10/08/2020 | SWD | STATUTORY WARRANTY DEED | THOMAS RICHARD D & SARAH S | TODD SHILA ANN | | | $358,000.00 | 140064 | 2020-10410 |
| 4 | 07/05/2011 | WARRANTY D | WARRANTY DEED | CORNELL, GREG A & TRACY R | THOMAS, RICHARD D & SARAH S | | | $210,000.00 | 120354 | 2011-05131 |
| 5 | 02/18/2000 | WARRANTY D | WARRANTY DEED | | | | | $123,000.00 | 94567 | 2950-001640 |
Payout Agreement
| No payout information available.. |