Property
Account |
| Property ID: | 32163 | Abbreviated Legal Description: | CAINS LOT 7 BLK 9 |
| Parcel Number: | 360720570907 | Agent Code: | |
| Type: | Real | | |
| Tax Area: | 1 - OL-140-F | Land Use Code | 12 |
| Open Space: | N | DFL | N |
| Historic Property: | N | Remodel Property: | N |
| Multi-Family Redevelopment: | N | | |
| Township: | 7 | Section: | 20 |
| Range: | 36 |
Location |
| Address: | 309 E SUMACH ST WA 99362 | Mapsco: | |
| Neighborhood: | WW Downtown Core area #3 | Map ID: | |
| Neighborhood CD: | 5343 |
Owner |
| Name: | HELM SUMACH LLC | Owner ID: | 67693 |
| Mailing Address: | 2318 MCGILVRA BLVD E SEATTLE, WA 98112 | % Ownership: | 100.0000000000% |
| | | Exemptions: | |
Taxes and Assessment Details
Property Tax Information as of
02/21/2026
Click on "Statement Details" to expand or collapse a tax statement.
* Please enter a valid date ** Please enter a valid date *
Statement Details |
| | TOTAL: | $0.00 | $0.00 | $0.00 | $0.00 | $0.00 | $0.00 |
|
| | $0.00 | $0.00 | $0.00 | $0.00 | $0.00 | $0.00 |
Values
| (+) Improvement Homesite Value: | + | $0 | |
| (+) Improvement Non-Homesite Value: | + | $100,000 | |
| (+) Land Homesite Value: | + | $0 | |
| (+) Land Non-Homesite Value: | + | $64,800 | |
| (+) Curr Use (HS): | + | $0 | $0 |
| (+) Curr Use (NHS): | + | $0 | $0 |
| | | -------------------------- | |
| (=) Market Value: | = | $164,800 | |
| (–) Productivity Loss: | – | $0 | |
| | | -------------------------- | |
| (=) Subtotal: | = | $164,800 | |
| (+) Senior Appraised Value: | + | $0 | |
| (+) Non-Senior Appraised Value: | + | $164,800 | |
| | | -------------------------- | |
| (=) Total Appraised Value: | = | $164,800 | |
| (–) Senior Exemption Loss: | – | $0 | |
| (–) Exemption Loss: | – | $0 | |
| | | -------------------------- | |
| (=) Taxable Value: | = | $164,800 | |
Taxing Jurisdiction
| Owner: | HELM SUMACH LLC | | |
| % Ownership: | 100.0000000000% | | |
| Total Value: | $164,800 | | |
| Tax Area: | 1 - OL-140-F |
| CERFD | CURRENT EXPENSE REFUND 010 | 0.0000000000 | $164,800 | $164,800 | $0.00 | | |
| CURREXP | CURRENT EXPENSE 010 | 1.0175366760 | $164,800 | $164,800 | $167.69 | | |
| HUMNSERV | HUMAN SERVICES 119 | 0.0250000000 | $164,800 | $164,800 | $4.12 | | |
| SLDREL | SOLDIERS RELIEF 121 | 0.0155990005 | $164,800 | $164,800 | $2.57 | | |
| EMERGSER | EMS 147 | 0.3792580840 | $164,800 | $164,800 | $62.50 | | |
| EMSRFD | EMS REFUND 147 | 0.0000000000 | $164,800 | $164,800 | $0.00 | | |
| PORTRFD | PORT REFUND 640 | 0.0000000000 | $164,800 | $164,800 | $0.00 | | |
| PORTWWGEN | PORT OF WW 640 | 0.2460186015 | $164,800 | $164,800 | $40.54 | | |
| SD140BOND | SD #140 BOND 764 | 0.8342371393 | $164,800 | $164,800 | $137.48 | | |
| SD140GEN | SD #140 GENERAL 760 | 2.0646500647 | $164,800 | $164,800 | $340.25 | | |
| ST2 | STATE SCHOOL PART 2 600 | 0.8131451643 | $164,800 | $164,800 | $134.01 | | |
| STATESCHL | STATE SCHOOL 600 | 1.5158548041 | $164,800 | $164,800 | $249.81 | | |
| STREFUND | STATE REFUND LEVY 603 | 0.0000000000 | $164,800 | $164,800 | $0.00 | | |
| CWWBOND | C OF WW BOND 643 | 0.2760494372 | $164,800 | $164,800 | $45.49 | | |
| CWWGEN | CITY OF WW 631 | 1.6100204973 | $164,800 | $164,800 | $265.33 | | |
| CWWRFD | CITY OF WALLA WALLA REFUND 631 | 0.0000000000 | $164,800 | $164,800 | $0.00 | | |
| | Total Tax Rate: | 8.7973694689 | | | | | |
| | | | | Taxes w/Current Exemptions: | $1,449.79 | | |
| | | | | Taxes w/o Exemptions: | $1,449.79 | | |
Improvement / Building
| Improvement #1: | COMMERCIAL | State Code: | 12 | 3036.0 sqft | Value: | $100,000 |
| | Type | Description | Class CD | Sub Class CD | Year Built | Area |
| | MA | Main Area | D | * | 1900 | 3036.0 |
| | SI1 | SITE IMPROVEMENT | D | * | 1900 | 2.0 |
| | BASE | BASEMENT | D | * | 1900 | 960.0 |
| | PRC | PORCH W STEPS, ROOF,CEILED | D | * | 1900 | 200.0 |
| | DTG | Detached Garage | D | * | 1900 | 483.0 |
| | DTG | Detached Garage | D | * | 1900 | 483.0 |
| | UPFL | Upper Floor (included in main area) | D | * | 1900 | 1317.0 |
| | OUT | OUTSIDE BASEMENT ENTRY | D | * | 1900 | 1.0 |
Sketch
Property Image
Land
| 1 | COM 1 | Converted: Commercial | 0.1653 | 7200.00 | 0.00 | 0.00 | 1.00 | $64,800 | $0 |
Roll Value History
| 2026 | N/A | N/A | N/A | N/A | N/A |
| 2025 | $215,900 | $72,000 | $0 | $287,900 | $287,900 |
| 2024 | $215,900 | $72,000 | $0 | $287,900 | $287,900 |
| 2023 | $100,000 | $64,800 | $0 | $164,800 | $164,800 |
| 2022 | $100,000 | $64,800 | $0 | $164,800 | $164,800 |
| 2021 | $100,000 | $64,800 | $0 | $164,800 | $164,800 |
| 2020 | $100,000 | $64,800 | $0 | $164,800 | $164,800 |
| 2019 | $100,000 | $64,800 | $0 | $164,800 | $164,800 |
| 2018 | $100,000 | $64,800 | $0 | $164,800 | $164,800 |
| 2017 | $85,700 | $64,800 | $0 | $150,500 | $150,500 |
| 2016 | $85,700 | $64,800 | $0 | $150,500 | $150,500 |
| 2015 | $85,700 | $64,800 | $0 | $150,500 | $150,500 |
| 2014 | $85,700 | $64,800 | $0 | $150,500 | $150,500 |
| 2013 | $85,700 | $64,800 | $0 | $150,500 | $150,500 |
| 2012 | $120,300 | $21,600 | $0 | $0 | $0 |
| 2011 | $120,300 | $21,600 | $0 | $0 | $0 |
| 2010 | $120,300 | $21,600 | $0 | $0 | $0 |
| 2009 | $120,300 | $21,600 | $0 | $0 | $0 |
| 2008 | $120,300 | $21,600 | $0 | $0 | $0 |
| 2007 | $120,300 | $21,600 | $0 | $0 | $0 |
Deed and Sales History
| 1 | 11/18/2022 | QCD | QUIT CLAIM DEED | BETHEL ANDREW LOGAN | HELM SUMACH LLC | | | $0.00 | 145031 | 2022-09193 |
| 2 | 02/02/2022 | QCD | QUIT CLAIM DEED | HELM SUMACH LLC | BETHEL ANDREW LOGAN | | | $0.00 | 143354 | 2022-01140 |
| 3 | 08/13/2020 | QCD | QUIT CLAIM DEED | BETHEL ANDREW LOGAN | HELM SUMACH LLC | | | $0.00 | 139718 | 2020-08119 |
| 4 | 07/29/2020 | QCD | QUIT CLAIM DEED | GETTY GABRIELLE | BETHEL ANDREW LOGAN | | | | 139606 | 2020-07379 |
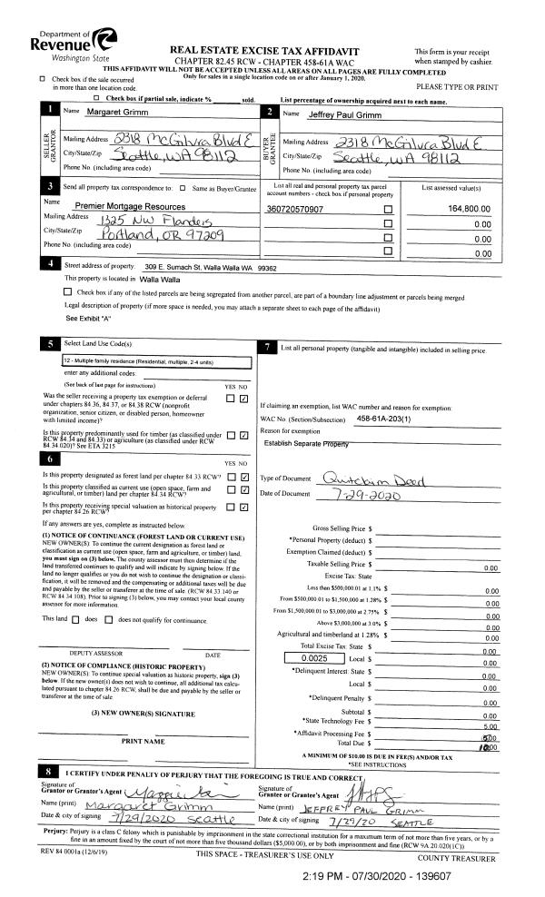
| 5 | 07/29/2020 | QCD | QUIT CLAIM DEED | GRIMM MARGARET | BETHEL ANDREW LOGAN | | | | 139607 | 2020-07380 |
| 6 | 07/30/2020 | SWD | STATUTORY WARRANTY DEED | KISSINGER RYAN | BETHEL ANDREW LOGAN | | | $290,000.00 | 139605 | 2020-07378 |
| 7 | 08/03/2009 | QCD | QUIT CLAIM DEED | KISSINGER HOLDINGS LLC | KISSINGER, RYAN | | | | 117112 | 2009-07864 |
| 8 | 01/17/2006 | QCD | QUIT CLAIM DEED | KISSINGER, RYAN J | KISSINGER HOLDINGS LLC | | | | 109482 | 2006-00586 |
| 9 | 06/22/2005 | WARRANTY D | WARRANTY DEED | LITTLEFIELD, M SUE | KISSINGER, RYAN J | | | $145,000.00 | 107780 | 2005-07511 |
| 10 | 09/23/2003 | WARRANTY D | WARRANTY DEED | LITTLEFIELD LIVING TRUST | LITTLEFIELD M SUE | | | | 103066 | 2003-14524 |
| 11 | 05/21/2003 | WARRANTY D | WARRANTY DEED | LITTLEFIELD LIVING TRUST | LITTLEFIELD LIVING TRUST | | | | 102124 | 2003-07426 |
| 12 | 01/29/1999 | WARRANTY D | WARRANTY DEED | | | | | | 92107 | 2799-901186 |
Payout Agreement
| No payout information available.. |