Property
Account |
| Property ID: | 32136 | Abbreviated Legal Description: | STONES AND 1/2 VAC ALLEY LOT 12 BLK 9 |
| Parcel Number: | 360729830912 | Agent Code: | |
| Type: | Real | | |
| Tax Area: | 1 - OL-140-F | Land Use Code | 11 |
| Open Space: | N | DFL | N |
| Historic Property: | N | Remodel Property: | N |
| Multi-Family Redevelopment: | N | | |
| Township: | 7 | Section: | 29 |
| Range: | 36 |
Location |
| Address: | 1403 MODOC ST WA 99362 | Mapsco: | |
| Neighborhood: | A Res | Map ID: | |
| Neighborhood CD: | 613011 |
Owner |
| Name: | LEAMER JOSHUA | Owner ID: | 65059 |
| Mailing Address: | 1403 MODOC ST WALLA WALLA, WA 99362 | % Ownership: | 100.0000000000% |
| | | Exemptions: | |
Taxes and Assessment Details
Property Tax Information as of
02/21/2026
Click on "Statement Details" to expand or collapse a tax statement.
* Please enter a valid date ** Please enter a valid date *
Statement Details |
| | TOTAL: | $0.00 | $0.00 | $0.00 | $0.00 | $0.00 | $0.00 |
|
| | $0.00 | $0.00 | $0.00 | $0.00 | $0.00 | $0.00 |
Values
| (+) Improvement Homesite Value: | + | $0 | |
| (+) Improvement Non-Homesite Value: | + | $221,250 | |
| (+) Land Homesite Value: | + | $0 | |
| (+) Land Non-Homesite Value: | + | $69,120 | |
| (+) Curr Use (HS): | + | $0 | $0 |
| (+) Curr Use (NHS): | + | $0 | $0 |
| | | -------------------------- | |
| (=) Market Value: | = | $290,370 | |
| (–) Productivity Loss: | – | $0 | |
| | | -------------------------- | |
| (=) Subtotal: | = | $290,370 | |
| (+) Senior Appraised Value: | + | $0 | |
| (+) Non-Senior Appraised Value: | + | $290,370 | |
| | | -------------------------- | |
| (=) Total Appraised Value: | = | $290,370 | |
| (–) Senior Exemption Loss: | – | $0 | |
| (–) Exemption Loss: | – | $0 | |
| | | -------------------------- | |
| (=) Taxable Value: | = | $290,370 | |
Taxing Jurisdiction
| Owner: | LEAMER JOSHUA | | |
| % Ownership: | 100.0000000000% | | |
| Total Value: | $290,370 | | |
| Tax Area: | 1 - OL-140-F |
| CERFD | CURRENT EXPENSE REFUND 010 | 0.0000000000 | $290,370 | $290,370 | $0.00 | | |
| CURREXP | CURRENT EXPENSE 010 | 1.0175366760 | $290,370 | $290,370 | $295.46 | | |
| HUMNSERV | HUMAN SERVICES 119 | 0.0250000000 | $290,370 | $290,370 | $7.26 | | |
| SLDREL | SOLDIERS RELIEF 121 | 0.0155990005 | $290,370 | $290,370 | $4.53 | | |
| EMERGSER | EMS 147 | 0.3792580840 | $290,370 | $290,370 | $110.13 | | |
| EMSRFD | EMS REFUND 147 | 0.0000000000 | $290,370 | $290,370 | $0.00 | | |
| PORTRFD | PORT REFUND 640 | 0.0000000000 | $290,370 | $290,370 | $0.00 | | |
| PORTWWGEN | PORT OF WW 640 | 0.2460186015 | $290,370 | $290,370 | $71.44 | | |
| SD140BOND | SD #140 BOND 764 | 0.8342371393 | $290,370 | $290,370 | $242.24 | | |
| SD140GEN | SD #140 GENERAL 760 | 2.0646500647 | $290,370 | $290,370 | $599.51 | | |
| ST2 | STATE SCHOOL PART 2 600 | 0.8131451643 | $290,370 | $290,370 | $236.11 | | |
| STATESCHL | STATE SCHOOL 600 | 1.5158548041 | $290,370 | $290,370 | $440.16 | | |
| STREFUND | STATE REFUND LEVY 603 | 0.0000000000 | $290,370 | $290,370 | $0.00 | | |
| CWWBOND | C OF WW BOND 643 | 0.2760494372 | $290,370 | $290,370 | $80.16 | | |
| CWWGEN | CITY OF WW 631 | 1.6100204973 | $290,370 | $290,370 | $467.50 | | |
| CWWRFD | CITY OF WALLA WALLA REFUND 631 | 0.0000000000 | $290,370 | $290,370 | $0.00 | | |
| | Total Tax Rate: | 8.7973694689 | | | | | |
| | | | | Taxes w/Current Exemptions: | $2,554.50 | | |
| | | | | Taxes w/o Exemptions: | $2,554.50 | | |
Improvement / Building
| Improvement #1: | RESIDENTIAL | State Code: | 11 | 1208.0 sqft | Value: | $221,250 |
| Exterior Wall: | SIDING | Heating/Cooling: | WARM & COOLED AIR | | Number of Bathrooms: | 2 | Number of Bedrooms: | 3 | | Plumbing: | 9 | Roof Covering: | COMP SHINGLE |
|
| | Type | Description | Class CD | Sub Class CD | Year Built | Area |
| | MA | Main Area | 1 | 30 | 1951 | 1208.0 |
| | SI1 | SITE IMPROVEMENT | 1 | 30 | 1951 | 1.5 |
| | DTG | Detached Garage | 1 | 30 | 1951 | 364.0 |
| | RPS | PORCH W/STEPS,ROOF | 1 | 30 | 1951 | 25.0 |
| | S1F | Single One Story Fireplace | 1 | 30 | 1951 | 1.0 |
| | CPC | COVERED CARPORT/PATIO | 1 | 30 | 1951 | 270.0 |
Sketch
Property Image
Land
| 1 | RES 1 | Converted: Residential | 0.1763 | 7680.00 | 0.00 | 0.00 | 1.00 | $69,120 | $0 |
Roll Value History
| 2026 | N/A | N/A | N/A | N/A | N/A |
| 2025 | $261,480 | $84,480 | $0 | $345,960 | $345,960 |
| 2024 | $221,250 | $69,120 | $0 | $290,370 | $290,370 |
| 2023 | $221,250 | $69,120 | $0 | $290,370 | $290,370 |
| 2022 | $221,250 | $55,680 | $0 | $276,930 | $276,930 |
| 2021 | $201,140 | $55,680 | $0 | $256,820 | $256,820 |
| 2020 | $154,720 | $55,680 | $0 | $210,400 | $210,400 |
| 2019 | $154,720 | $55,680 | $0 | $210,400 | $210,400 |
| 2018 | $109,590 | $45,200 | $0 | $154,790 | $154,790 |
| 2017 | $109,590 | $45,200 | $0 | $154,790 | $154,790 |
| 2016 | $109,590 | $45,200 | $0 | $154,790 | $154,790 |
| 2015 | $109,590 | $45,200 | $0 | $154,790 | $154,790 |
| 2014 | $106,400 | $45,200 | $0 | $151,600 | $151,600 |
| 2013 | $106,400 | $45,200 | $0 | $151,600 | $151,600 |
| 2012 | $86,500 | $45,200 | $0 | $0 | $0 |
| 2011 | $86,500 | $45,200 | $0 | $0 | $0 |
| 2010 | $86,500 | $45,200 | $0 | $0 | $0 |
| 2009 | $101,100 | $45,200 | $0 | $0 | $0 |
| 2008 | $101,100 | $45,200 | $0 | $0 | $0 |
| 2007 | $78,600 | $15,400 | $0 | $0 | $0 |
Deed and Sales History
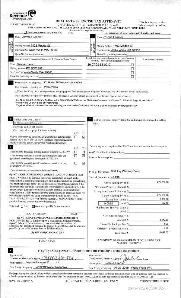
| 1 | 04/30/2019 | SWD | STATUTORY WARRANTY DEED | LEAMER JAYMEE | LEAMER JOSHUA | | | $225,000.00 | 136794 | 2019-02815 |
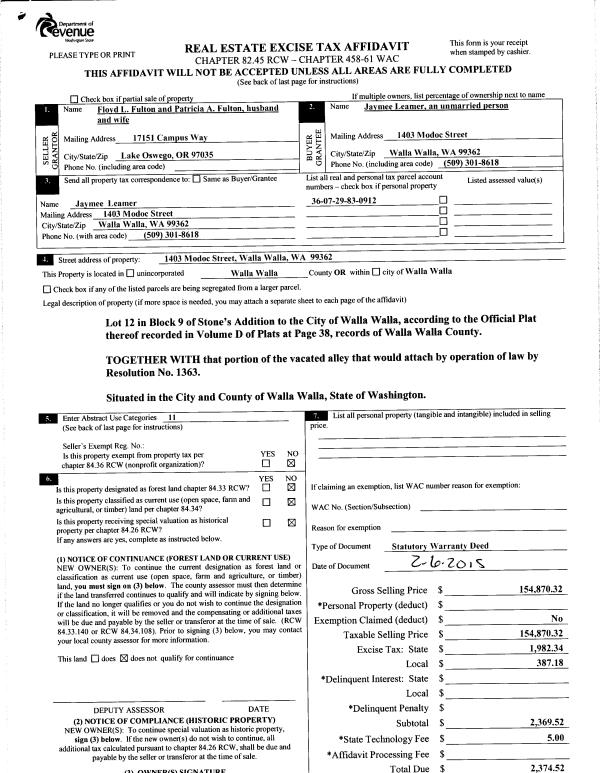
| 2 | 02/13/2015 | SWD | STATUTORY WARRANTY DEED | FULTON FLOYD L & PATRICIA A | LEAMER JAYMEE | | | $154,870.00 | 127434 | 2015-01381 |
| 3 | 08/19/2011 | WARRANTY D | WARRANTY DEED | STRITZEL, CARL J & KATHRYN M | FULTON, FLOYD L & PATRICIA A | | | $157,500.00 | 120574 | 2011-06506 |
| 4 | 12/11/1980 | WARRANTY D | WARRANTY DEED | | | | | $50,000.00 | 0 | 1258-009794 |
Payout Agreement
| No payout information available.. |