Property
Account |
| Property ID: | 32120 | Abbreviated Legal Description: | BUTLERS LOT 6 & W 1/2 OF LOT 7 BLK 6 |
| Parcel Number: | 360719520606 | Agent Code: | |
| Type: | Real | | |
| Tax Area: | 1 - OL-140-F | Land Use Code | 11 |
| Open Space: | N | DFL | N |
| Historic Property: | N | Remodel Property: | N |
| Multi-Family Redevelopment: | N | | |
| Township: | 7 | Section: | 19 |
| Range: | 36 |
Location |
| Address: | 933 CARRIE AVE WA 99362 | Mapsco: | |
| Neighborhood: | A-SFR | Map ID: | |
| Neighborhood CD: | 313011 |
Owner |
| Name: | SPJ PROPERTIES LLC | Owner ID: | 65285 |
| Mailing Address: | 1062 N NEVADA ST KENNEWICK, WA 99336 | % Ownership: | 100.0000000000% |
| | | Exemptions: | |
Taxes and Assessment Details
Values
| (+) Improvement Homesite Value: | + | $0 | |
| (+) Improvement Non-Homesite Value: | + | $87,400 | |
| (+) Land Homesite Value: | + | $0 | |
| (+) Land Non-Homesite Value: | + | $62,610 | |
| (+) Curr Use (HS): | + | $0 | $0 |
| (+) Curr Use (NHS): | + | $0 | $0 |
| | | -------------------------- | |
| (=) Market Value: | = | $150,010 | |
| (–) Productivity Loss: | – | $0 | |
| | | -------------------------- | |
| (=) Subtotal: | = | $150,010 | |
| (+) Senior Appraised Value: | + | $0 | |
| (+) Non-Senior Appraised Value: | + | $150,010 | |
| | | -------------------------- | |
| (=) Total Appraised Value: | = | $150,010 | |
| (–) Senior Exemption Loss: | – | $0 | |
| (–) Exemption Loss: | – | $0 | |
| | | -------------------------- | |
| (=) Taxable Value: | = | $150,010 | |
Taxing Jurisdiction
| Owner: | SPJ PROPERTIES LLC | | |
| % Ownership: | 100.0000000000% | | |
| Total Value: | $150,010 | | |
| Tax Area: | 1 - OL-140-F |
| CERFD | CURRENT EXPENSE REFUND 010 | 0.0000000000 | $150,010 | $150,010 | $0.00 | | |
| CURREXP | CURRENT EXPENSE 010 | 1.0175366760 | $150,010 | $150,010 | $152.64 | | |
| HUMNSERV | HUMAN SERVICES 119 | 0.0250000000 | $150,010 | $150,010 | $3.75 | | |
| SLDREL | SOLDIERS RELIEF 121 | 0.0155990005 | $150,010 | $150,010 | $2.34 | | |
| EMERGSER | EMS 147 | 0.3792580840 | $150,010 | $150,010 | $56.89 | | |
| EMSRFD | EMS REFUND 147 | 0.0000000000 | $150,010 | $150,010 | $0.00 | | |
| PORTRFD | PORT REFUND 640 | 0.0000000000 | $150,010 | $150,010 | $0.00 | | |
| PORTWWGEN | PORT OF WW 640 | 0.2460186015 | $150,010 | $150,010 | $36.91 | | |
| SD140BOND | SD #140 BOND 764 | 0.8342371393 | $150,010 | $150,010 | $125.14 | | |
| SD140GEN | SD #140 GENERAL 760 | 2.0646500647 | $150,010 | $150,010 | $309.72 | | |
| ST2 | STATE SCHOOL PART 2 600 | 0.8131451643 | $150,010 | $150,010 | $121.98 | | |
| STATESCHL | STATE SCHOOL 600 | 1.5158548041 | $150,010 | $150,010 | $227.39 | | |
| STREFUND | STATE REFUND LEVY 603 | 0.0000000000 | $150,010 | $150,010 | $0.00 | | |
| CWWBOND | C OF WW BOND 643 | 0.2760494372 | $150,010 | $150,010 | $41.41 | | |
| CWWGEN | CITY OF WW 631 | 1.6100204973 | $150,010 | $150,010 | $241.52 | | |
| CWWRFD | CITY OF WALLA WALLA REFUND 631 | 0.0000000000 | $150,010 | $150,010 | $0.00 | | |
| | Total Tax Rate: | 8.7973694689 | | | | | |
| | | | | Taxes w/Current Exemptions: | $1,319.69 | | |
| | | | | Taxes w/o Exemptions: | $1,319.69 | | |
Improvement / Building
| Improvement #1: | RESIDENTIAL | State Code: | 11 | 604.0 sqft | Value: | $87,400 |
| Exterior Wall: | SIDING | Heating/Cooling: | WALL FURNACE | | Number of Bathrooms: | 1 | Number of Bedrooms: | 1 | | Plumbing: | 6 | Roof Covering: | COMP SHINGLE |
|
| | Type | Description | Class CD | Sub Class CD | Year Built | Area |
| | MA | Main Area | 1 | 20 | 1910 | 604.0 |
| | SI1 | SITE IMPROVEMENT | 1 | 20 | 0 | 1.0 |
| | BASE | BASEMENT | 1 | 20 | 1910 | 192.0 |
| | BPF | BASEMENT -PARTITIONED FINISH | 1 | 20 | 1910 | 192.0 |
| | RPS | PORCH W/STEPS,ROOF | 1 | 20 | 1910 | 30.0 |
| | UTST | Utility Storage Shed | 1 | 20 | 1910 | 135.0 |
Sketch
Property Image
Land
| 1 | RES 1 | Converted: Residential | 0.1808 | 7875.00 | 0.00 | 0.00 | 1.00 | $62,610 | $0 |
Roll Value History
| 2026 | N/A | N/A | N/A | N/A | N/A |
| 2025 | $87,400 | $62,610 | $0 | $150,010 | $150,010 |
| 2024 | $87,400 | $62,610 | $0 | $150,010 | $150,010 |
| 2023 | $87,400 | $62,610 | $0 | $150,010 | $150,010 |
| 2022 | $79,450 | $62,610 | $0 | $142,060 | $142,060 |
| 2021 | $112,860 | $13,500 | $0 | $126,360 | $126,360 |
| 2020 | $80,620 | $13,500 | $0 | $94,120 | $94,120 |
| 2019 | $80,620 | $13,500 | $0 | $94,120 | $94,120 |
| 2018 | $76,780 | $13,500 | $0 | $90,280 | $90,280 |
| 2017 | $76,780 | $13,500 | $0 | $90,280 | $90,280 |
| 2016 | $73,120 | $13,500 | $0 | $86,620 | $86,620 |
| 2015 | $76,140 | $13,500 | $0 | $89,640 | $89,640 |
| 2014 | $56,400 | $13,500 | $0 | $69,900 | $69,900 |
| 2013 | $56,400 | $13,500 | $0 | $69,900 | $69,900 |
| 2012 | $47,300 | $13,500 | $0 | $0 | $0 |
| 2011 | $47,300 | $13,500 | $0 | $0 | $0 |
| 2010 | $61,800 | $13,500 | $0 | $0 | $0 |
| 2009 | $70,800 | $12,900 | $0 | $0 | $0 |
| 2008 | $20,600 | $12,900 | $0 | $0 | $0 |
| 2007 | $20,600 | $12,900 | $0 | $0 | $0 |
Deed and Sales History
| 1 | 06/22/2019 | DPR | DEED OF PERSONAL REPRESENTATIVE | SCHAUB HELEN IRENE | SPJ PROPERTIES LLC | | | $0.00 | 137133 | 2019-04461 |
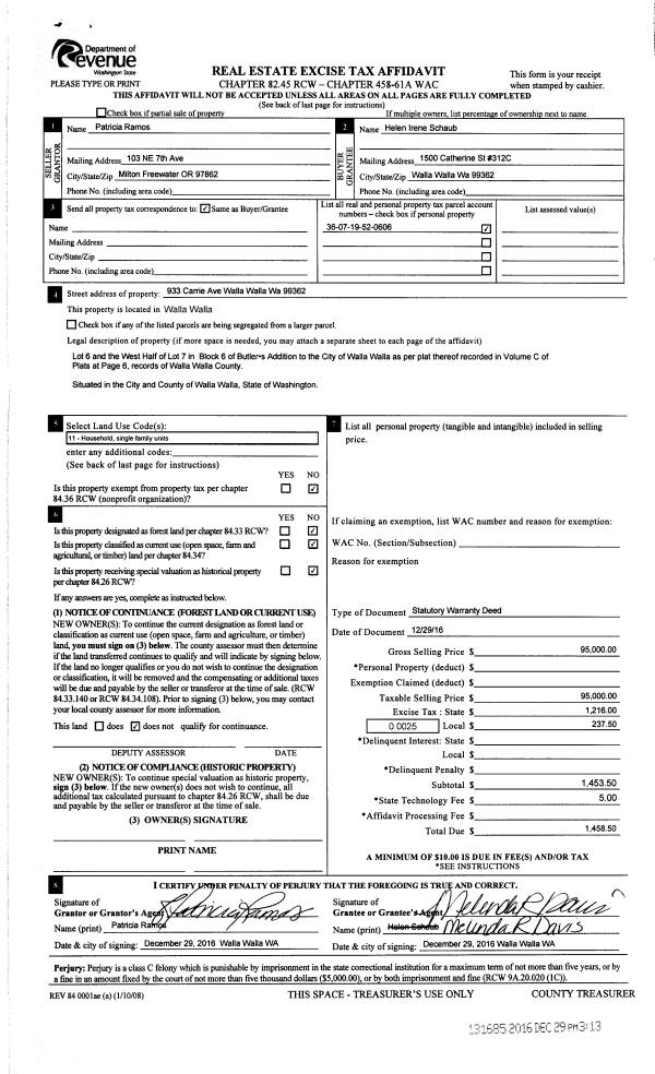
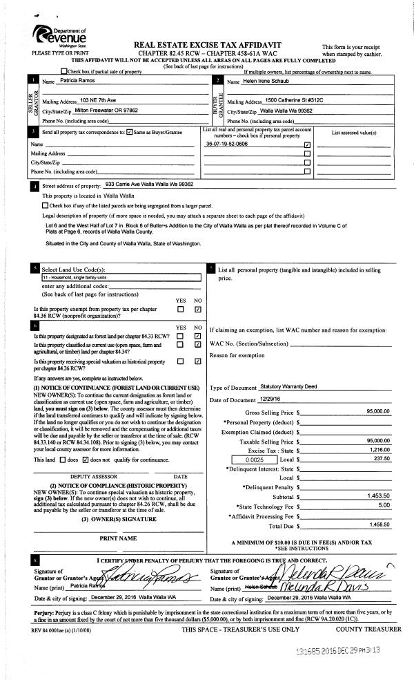
| 2 | 12/29/2016 | SWD | STATUTORY WARRANTY DEED | RAMOS PATRICIA | SCHAUB HELEN IRENE | | | $95,000.00 | 131685 | 2016-10765 |
| 3 | 03/30/2012 | WARRANTY D | WARRANTY DEED | RAMOS, RAFAEL & MICHELLE | RAMOS, PATRICIA | | | $70,500.00 | 121602 | 2012-02586 |
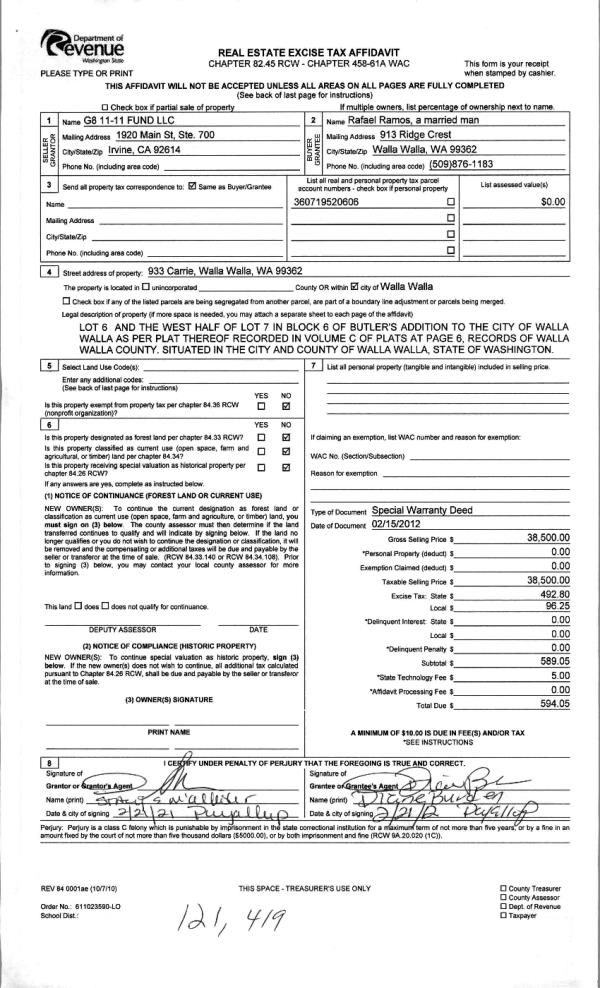
| 4 | 02/22/2012 | WARRANTY D | WARRANTY DEED | G8 11-11 FUND LLC | RAMOS, RAFAEL | | | $38,500.00 | 121419 | 2012-01495 |
| 5 | 01/03/2012 | WARRANTY D | WARRANTY DEED | FEDERAL NATIONAL MORTGAGE ASSO | G8 11-11 FUND LLC | | | $27,529.00 | 121221 | 2012-00039 |
| 6 | 08/08/2011 | WARRANTY D | WARRANTY DEED | NORTHWEST TRUSTEE SERVICES INC | FEDERAL NATIONAL MORTGAGE~ASSO | | | $78,590.00 | 120518 | 2011-06196 |
| 7 | 04/02/2007 | WARRANTY D | WARRANTY DEED | TORRES, HERACLIO P & ELVIRA I | WALKER, PATRICIA | | | $89,000.00 | 112505 | 2007-03621 |
| 8 | 04/27/1982 | WARRANTY D | WARRANTY DEED | | | | | $28,500.00 | 0 | 1328-203056 |
Payout Agreement
| No payout information available.. |