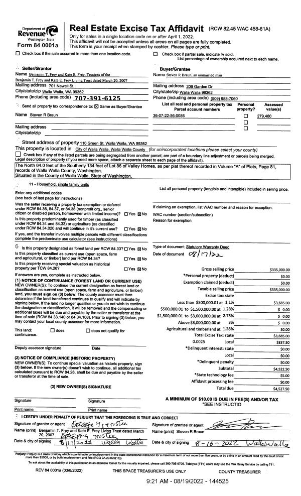
Property
Account |
| Property ID: | 32109 | Abbreviated Legal Description: | VALLEY HOMES N 64' OF S 134' OF LOT 86 |
| Parcel Number: | 360722560086 | Agent Code: | |
| Type: | Real | | |
| Tax Area: | 6 - OL-140-F-FB | Land Use Code | 11 |
| Open Space: | N | DFL | N |
| Historic Property: | N | Remodel Property: | N |
| Multi-Family Redevelopment: | N | | |
| Township: | 7 | Section: | 22 |
| Range: | 36 |
Location |
| Address: | 110 GREEN ST WA 99362 | Mapsco: | |
| Neighborhood: | A SFR | Map ID: | |
| Neighborhood CD: | 413011 |
Owner |
| Name: | BRAUN STEVEN R | Owner ID: | 72118 |
| Mailing Address: | 209 GARDEN DR WALLA WALLA, WA 99362 | % Ownership: | 100.0000000000% |
| | | Exemptions: | |
Taxes and Assessment Details
Property Tax Information as of
02/21/2026
Click on "Statement Details" to expand or collapse a tax statement.
* Please enter a valid date ** Please enter a valid date *
Statement Details |
| | TOTAL: | $0.00 | $0.00 | $0.00 | $0.00 | $0.00 | $0.00 |
|
| | $0.00 | $0.00 | $0.00 | $0.00 | $0.00 | $0.00 |
Values
| (+) Improvement Homesite Value: | + | $0 | |
| (+) Improvement Non-Homesite Value: | + | $248,800 | |
| (+) Land Homesite Value: | + | $0 | |
| (+) Land Non-Homesite Value: | + | $80,750 | |
| (+) Curr Use (HS): | + | $0 | $0 |
| (+) Curr Use (NHS): | + | $0 | $0 |
| | | -------------------------- | |
| (=) Market Value: | = | $329,550 | |
| (–) Productivity Loss: | – | $0 | |
| | | -------------------------- | |
| (=) Subtotal: | = | $329,550 | |
| (+) Senior Appraised Value: | + | $0 | |
| (+) Non-Senior Appraised Value: | + | $329,550 | |
| | | -------------------------- | |
| (=) Total Appraised Value: | = | $329,550 | |
| (–) Senior Exemption Loss: | – | $0 | |
| (–) Exemption Loss: | – | $0 | |
| | | -------------------------- | |
| (=) Taxable Value: | = | $329,550 | |
Taxing Jurisdiction
| Owner: | BRAUN STEVEN R | | |
| % Ownership: | 100.0000000000% | | |
| Total Value: | $329,550 | | |
| Tax Area: | 6 - OL-140-F-FB |
| CERFD | CURRENT EXPENSE REFUND 010 | 0.0000000000 | $329,550 | $329,550 | $0.00 | | |
| CURREXP | CURRENT EXPENSE 010 | 0.9851088983 | $329,550 | $329,550 | $324.64 | | |
| HUMNSERV | HUMAN SERVICES 119 | 0.0250000000 | $329,550 | $329,550 | $8.24 | | |
| SLDREL | SOLDIERS RELIEF 121 | 0.0155990000 | $329,550 | $329,550 | $5.14 | | |
| EMERGSER | EMS 147 | 0.3676811629 | $329,550 | $329,550 | $121.17 | | |
| EMSRFD | EMS REFUND 147 | 0.0000000000 | $329,550 | $329,550 | $0.00 | | |
| PORTRFD | PORT REFUND 640 | 0.0000000000 | $329,550 | $329,550 | $0.00 | | |
| PORTWWGEN | PORT OF WW 640 | 0.2344301070 | $329,550 | $329,550 | $77.26 | | |
| SD140BOND | SD #140 BOND 764 | 0.8032434458 | $329,550 | $329,550 | $264.71 | | |
| SD140CAP | SD #140 CAP 762 | 0.3840034221 | $329,550 | $329,550 | $126.55 | | |
| SD140GEN | SD #140 GENERAL 760 | 2.4999999996 | $329,550 | $329,550 | $823.88 | | |
| ST2 | STATE SCHOOL PART 2 600 | 0.8853714103 | $329,550 | $329,550 | $291.77 | | |
| STATESCHL | STATE SCHOOL 600 | 1.6424571473 | $329,550 | $329,550 | $541.27 | | |
| STREFUND | STATE REFUND LEVY 603 | 0.0000000000 | $329,550 | $329,550 | $0.00 | | |
| CWWBOND | C OF WW BOND 643 | 0.2642134255 | $329,550 | $329,550 | $87.07 | | |
| CWWGEN | CITY OF WW 631 | 1.6110494978 | $329,550 | $329,550 | $530.92 | | |
| CWWRFD | CITY OF WALLA WALLA REFUND 631 | 0.0000000000 | $329,550 | $329,550 | $0.00 | | |
| | Total Tax Rate: | 9.7181575166 | | | | | |
| | | | | Taxes w/Current Exemptions: | $3,202.62 | | |
| | | | | Taxes w/o Exemptions: | $3,202.62 | | |
Improvement / Building
| Improvement #1: | RESIDENTIAL | State Code: | 11 | 961.0 sqft | Value: | $248,800 |
| Exterior Wall: | SIDING | Heating/Cooling: | WARM & COOLED AIR | | Number of Bathrooms: | 1 | Number of Bedrooms: | 2 | | Plumbing: | 6 | Roof Covering: | COMP SHINGLE |
|
| | Type | Description | Class CD | Sub Class CD | Year Built | Area |
| | MA | Main Area | 1 | 30 | 1940 | 961.0 |
| | BRW | BREEZEWAY | 1 | 30 | 0 | 161.0 |
| | GIF | GARAGE INTERIOR FINISH | 1 | 30 | 0 | 176.0 |
| | SI1 | SITE IMPROVEMENT | 1 | 30 | 0 | 3.0 |
| | BASE | BASEMENT | 1 | 30 | 1940 | 506.0 |
| | BPF | BASEMENT -PARTITIONED FINISH | 1 | 30 | 1940 | 253.0 |
| | DTG | Detached Garage | 1 | 30 | 1940 | 414.0 |
| | DTG | Detached Garage | 1 | 30 | 1940 | 176.0 |
| | SHOP | SHOP BUILDING | 1 | 30 | 1940 | 352.0 |
| | S1F | Single One Story Fireplace | 1 | 30 | 1940 | 1.0 |
| | WOD | Wood Deck | 1 | 30 | 1940 | 90.0 |
Sketch
Property Image
Land
| 1 | RES 1 | Converted: Residential | 0.2571 | 11199.28 | 0.00 | 0.00 | 1.00 | $80,750 | $0 |
Roll Value History
| 2026 | N/A | N/A | N/A | N/A | N/A |
| 2025 | $248,800 | $80,750 | $0 | $329,550 | $329,550 |
| 2024 | $236,950 | $80,750 | $0 | $317,700 | $317,700 |
| 2023 | $236,950 | $80,750 | $0 | $317,700 | $317,700 |
| 2022 | $248,510 | $53,540 | $0 | $302,050 | $302,050 |
| 2021 | $225,920 | $53,540 | $0 | $279,460 | $279,460 |
| 2020 | $112,960 | $53,540 | $0 | $166,500 | $166,500 |
| 2019 | $112,960 | $53,540 | $0 | $166,500 | $57,240 |
| 2018 | $112,960 | $53,540 | $0 | $166,500 | $57,240 |
| 2017 | $112,960 | $53,540 | $0 | $166,500 | $57,240 |
| 2016 | $104,500 | $40,900 | $0 | $145,400 | $93,015 |
| 2015 | $104,500 | $40,900 | $0 | $145,400 | $93,015 |
| 2014 | $104,500 | $40,900 | $0 | $145,400 | $93,015 |
| 2013 | $104,500 | $40,900 | $0 | $145,400 | $93,015 |
| 2012 | $104,500 | $40,900 | $0 | $0 | $0 |
| 2011 | $102,200 | $40,900 | $0 | $0 | $0 |
| 2010 | $83,500 | $40,900 | $0 | $0 | $0 |
| 2009 | $97,300 | $40,900 | $0 | $0 | $0 |
| 2008 | $97,300 | $40,900 | $0 | $0 | $0 |
| 2007 | $97,300 | $40,900 | $0 | $0 | $0 |
Deed and Sales History
| 1 | 08/19/2022 | SWD | STATUTORY WARRANTY DEED | BENJAMIN T FREY & KATE E FREY LVG TRT | BRAUN STEVEN R | | | $335,000.00 | 144525 | 2022-06943 |
| 2 | 07/22/2022 | SURVEY | SURVEY | | | 14 | 52 | | 0 | 2022-06161 |
| 3 | 06/08/2020 | SWD | STATUTORY WARRANTY DEED | SCHULKE JERRY A & DIANE | BENJAMIN T FREY & KATE E FREY LVG TRT | | 3-PARCELS | $320,000.00 | 139240 | 2020-05121 |
|   | |
| 4 | 02/02/1977 | QCD | QUIT CLAIM DEED | | | | | $0.00 | 0 | 5405-61699 |
Payout Agreement
| No payout information available.. |