Property
Account |
| Property ID: | 32103 | Abbreviated Legal Description: | MELODY PARK LOT 26 BLK 2 |
| Parcel Number: | 360716530226 | Agent Code: | |
| Type: | Real | | |
| Tax Area: | 5 - OL-140 | Land Use Code | 11 |
| Open Space: | N | DFL | N |
| Historic Property: | N | Remodel Property: | N |
| Multi-Family Redevelopment: | N | | |
| Township: | 7 | Section: | 16 |
| Range: | 36 |
Location |
| Address: | 623 CANARY AVE WA 99362 | Mapsco: | |
| Neighborhood: | A-Superior SFR | Map ID: | |
| Neighborhood CD: | 513211 |
Owner |
| Name: | KRALMAN DEVIN | Owner ID: | 60186 |
| Mailing Address: | 623 CANARY AVE WALLA WALLA, WA 99362 | % Ownership: | 100.0000000000% |
| | | Exemptions: | |
Taxes and Assessment Details
Values
| (+) Improvement Homesite Value: | + | $0 | |
| (+) Improvement Non-Homesite Value: | + | $329,590 | |
| (+) Land Homesite Value: | + | $0 | |
| (+) Land Non-Homesite Value: | + | $42,630 | |
| (+) Curr Use (HS): | + | $0 | $0 |
| (+) Curr Use (NHS): | + | $0 | $0 |
| | | -------------------------- | |
| (=) Market Value: | = | $372,220 | |
| (–) Productivity Loss: | – | $0 | |
| | | -------------------------- | |
| (=) Subtotal: | = | $372,220 | |
| (+) Senior Appraised Value: | + | $0 | |
| (+) Non-Senior Appraised Value: | + | $372,220 | |
| | | -------------------------- | |
| (=) Total Appraised Value: | = | $372,220 | |
| (–) Senior Exemption Loss: | – | $0 | |
| (–) Exemption Loss: | – | $0 | |
| | | -------------------------- | |
| (=) Taxable Value: | = | $372,220 | |
Taxing Jurisdiction
| Owner: | KRALMAN DEVIN | | |
| % Ownership: | 100.0000000000% | | |
| Total Value: | $372,220 | | |
| Tax Area: | 5 - OL-140 |
| CERFD | CURRENT EXPENSE REFUND 010 | 0.0000000000 | $372,220 | $372,220 | $0.00 | | |
| CURREXP | CURRENT EXPENSE 010 | 1.0175366760 | $372,220 | $372,220 | $378.75 | | |
| HUMNSERV | HUMAN SERVICES 119 | 0.0250000000 | $372,220 | $372,220 | $9.31 | | |
| SLDREL | SOLDIERS RELIEF 121 | 0.0155990005 | $372,220 | $372,220 | $5.81 | | |
| EMERGSER | EMS 147 | 0.3792580840 | $372,220 | $372,220 | $141.17 | | |
| EMSRFD | EMS REFUND 147 | 0.0000000000 | $372,220 | $372,220 | $0.00 | | |
| PORTRFD | PORT REFUND 640 | 0.0000000000 | $372,220 | $372,220 | $0.00 | | |
| PORTWWGEN | PORT OF WW 640 | 0.2460186015 | $372,220 | $372,220 | $91.57 | | |
| SD140BOND | SD #140 BOND 764 | 0.8342371393 | $372,220 | $372,220 | $310.52 | | |
| SD140GEN | SD #140 GENERAL 760 | 2.0646500647 | $372,220 | $372,220 | $768.50 | | |
| ST2 | STATE SCHOOL PART 2 600 | 0.8131451643 | $372,220 | $372,220 | $302.67 | | |
| STATESCHL | STATE SCHOOL 600 | 1.5158548041 | $372,220 | $372,220 | $564.23 | | |
| STREFUND | STATE REFUND LEVY 603 | 0.0000000000 | $372,220 | $372,220 | $0.00 | | |
| CWWBOND | C OF WW BOND 643 | 0.2760494372 | $372,220 | $372,220 | $102.75 | | |
| CWWGEN | CITY OF WW 631 | 1.6100204973 | $372,220 | $372,220 | $599.28 | | |
| CWWRFD | CITY OF WALLA WALLA REFUND 631 | 0.0000000000 | $372,220 | $372,220 | $0.00 | | |
| | Total Tax Rate: | 8.7973694689 | | | | | |
| | | | | Taxes w/Current Exemptions: | $3,274.56 | | |
| | | | | Taxes w/o Exemptions: | $3,274.56 | | |
Improvement / Building
| Improvement #1: | RESIDENTIAL | State Code: | 11 | 1288.0 sqft | Value: | $329,590 |
| Exterior Wall: | SIDING | Heating/Cooling: | WARM & COOLED AIR | | Number of Bathrooms: | 2 | Number of Bedrooms: | 4 | | Plumbing: | 10 | Roof Covering: | COMP SHINGLE |
|
| | Type | Description | Class CD | Sub Class CD | Year Built | Area |
| | MA | Main Area | 1 | 30 | 1961 | 1288.0 |
| | CPC | COVERED CARPORT/PATIO | 1 | 30 | 0 | 384.0 |
| | SI1 | SITE IMPROVEMENT | 1 | 30 | 0 | 1.5 |
| | BASE | BASEMENT | 1 | 30 | 1961 | 1000.0 |
| | BPF | BASEMENT -PARTITIONED FINISH | 1 | 30 | 1961 | 1000.0 |
| | RPO | OPEN PORCH W/ROOF | 1 | 30 | 1961 | 40.0 |
| | WOD | Wood Deck | 1 | 30 | 1961 | 304.0 |
| | S1F | Single One Story Fireplace | 1 | 30 | 1961 | 1.0 |
| | UTST | Utility Storage Shed | 1 | 30 | 1961 | 144.0 |
Sketch
Property Image
Land
| 1 | RES 1 | Converted: Residential | 0.1566 | 6820.00 | 0.00 | 0.00 | 1.00 | $42,630 | $0 |
Roll Value History
| 2026 | N/A | N/A | N/A | N/A | N/A |
| 2025 | $337,330 | $68,200 | $0 | $405,530 | $405,530 |
| 2024 | $306,660 | $68,200 | $0 | $374,860 | $374,860 |
| 2023 | $329,590 | $42,630 | $0 | $372,220 | $372,220 |
| 2022 | $313,900 | $42,630 | $0 | $356,530 | $356,530 |
| 2021 | $216,480 | $42,630 | $0 | $259,110 | $259,110 |
| 2020 | $180,400 | $42,630 | $0 | $223,030 | $223,030 |
| 2019 | $180,400 | $42,630 | $0 | $223,030 | $223,030 |
| 2018 | $164,000 | $42,630 | $0 | $206,630 | $206,630 |
| 2017 | $178,750 | $27,300 | $0 | $206,050 | $206,050 |
| 2016 | $143,000 | $27,300 | $0 | $170,300 | $170,300 |
| 2015 | $143,000 | $27,300 | $0 | $170,300 | $170,300 |
| 2014 | $143,000 | $27,300 | $0 | $170,300 | $170,300 |
| 2013 | $143,000 | $27,300 | $0 | $170,300 | $170,300 |
| 2012 | $143,000 | $27,300 | $0 | $0 | $0 |
| 2011 | $143,000 | $27,300 | $0 | $0 | $0 |
| 2010 | $134,900 | $27,300 | $0 | $0 | $0 |
| 2009 | $152,900 | $27,300 | $0 | $0 | $0 |
| 2008 | $129,400 | $27,300 | $0 | $0 | $0 |
| 2007 | $129,400 | $27,300 | $0 | $0 | $0 |
Deed and Sales History
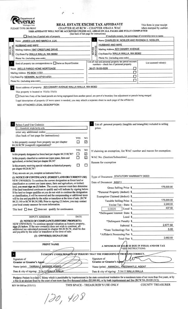
| 1 | 12/20/2016 | SWD | STATUTORY WARRANTY DEED | NOSLER CHARLES & RHONDA | KRALMAN DEVIN | | | $195,000.00 | 131628 | 2016-10472 |
| 2 | 07/15/2011 | WARRANTY D | WARRANTY DEED | LUX, JAMES & MARCI A | NOSLER, CHARLES & RHONDA | | | $175,000.00 | 120408 | 2011-05492 |
| 3 | 01/28/1999 | WARRANTY D | WARRANTY DEED | | | | | $116,000.00 | 92088 | 2799-901090 |
Payout Agreement
| No payout information available.. |