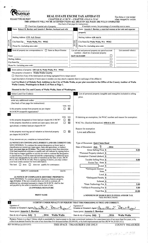
Property
Account |
| Property ID: | 32102 | Abbreviated Legal Description: | MELODY PARK LOT 9 BLK 2 |
| Parcel Number: | 360716530209 | Agent Code: | |
| Type: | Real | | |
| Tax Area: | 5 - OL-140 | Land Use Code | 11 |
| Open Space: | N | DFL | N |
| Historic Property: | N | Remodel Property: | N |
| Multi-Family Redevelopment: | N | | |
| Township: | 7 | Section: | 16 |
| Range: | 36 |
Location |
| Address: | 638 ASH ST WA 99362 | Mapsco: | |
| Neighborhood: | A-Superior SFR | Map ID: | |
| Neighborhood CD: | 513211 |
Owner |
| Name: | RAMOS DIEGO LARA | Owner ID: | 68082 |
| Mailing Address: | 638 ASH ST WALLA WALLA, WA 99362 | % Ownership: | 100.0000000000% |
| | | Exemptions: | |
Taxes and Assessment Details
Property Tax Information as of
02/21/2026
Click on "Statement Details" to expand or collapse a tax statement.
* Please enter a valid date ** Please enter a valid date *
Statement Details |
| | TOTAL: | $0.00 | $0.00 | $0.00 | $0.00 | $0.00 | $0.00 |
|
| | $0.00 | $0.00 | $0.00 | $0.00 | $0.00 | $0.00 |
Values
| (+) Improvement Homesite Value: | + | $259,630 | |
| (+) Improvement Non-Homesite Value: | + | $0 | |
| (+) Land Homesite Value: | + | $60,840 | |
| (+) Land Non-Homesite Value: | + | $0 | |
| (+) Curr Use (HS): | + | $0 | $0 |
| (+) Curr Use (NHS): | + | $0 | $0 |
| | | -------------------------- | |
| (=) Market Value: | = | $320,470 | |
| (–) Productivity Loss: | – | $0 | |
| | | -------------------------- | |
| (=) Subtotal: | = | $320,470 | |
| (+) Senior Appraised Value: | + | $0 | |
| (+) Non-Senior Appraised Value: | + | $320,470 | |
| | | -------------------------- | |
| (=) Total Appraised Value: | = | $320,470 | |
| (–) Senior Exemption Loss: | – | $0 | |
| (–) Exemption Loss: | – | $0 | |
| | | -------------------------- | |
| (=) Taxable Value: | = | $320,470 | |
Taxing Jurisdiction
| Owner: | RAMOS DIEGO LARA | | |
| % Ownership: | 100.0000000000% | | |
| Total Value: | $320,470 | | |
| Tax Area: | 5 - OL-140 |
| CERFD | CURRENT EXPENSE REFUND 010 | 0.0000000000 | $320,470 | $320,470 | $0.00 | | |
| CURREXP | CURRENT EXPENSE 010 | 1.0175366760 | $320,470 | $320,470 | $326.09 | | |
| HUMNSERV | HUMAN SERVICES 119 | 0.0250000000 | $320,470 | $320,470 | $8.01 | | |
| SLDREL | SOLDIERS RELIEF 121 | 0.0155990005 | $320,470 | $320,470 | $5.00 | | |
| EMERGSER | EMS 147 | 0.3792580840 | $320,470 | $320,470 | $121.54 | | |
| EMSRFD | EMS REFUND 147 | 0.0000000000 | $320,470 | $320,470 | $0.00 | | |
| PORTRFD | PORT REFUND 640 | 0.0000000000 | $320,470 | $320,470 | $0.00 | | |
| PORTWWGEN | PORT OF WW 640 | 0.2460186015 | $320,470 | $320,470 | $78.84 | | |
| SD140BOND | SD #140 BOND 764 | 0.8342371393 | $320,470 | $320,470 | $267.35 | | |
| SD140GEN | SD #140 GENERAL 760 | 2.0646500647 | $320,470 | $320,470 | $661.66 | | |
| ST2 | STATE SCHOOL PART 2 600 | 0.8131451643 | $320,470 | $320,470 | $260.59 | | |
| STATESCHL | STATE SCHOOL 600 | 1.5158548041 | $320,470 | $320,470 | $485.79 | | |
| STREFUND | STATE REFUND LEVY 603 | 0.0000000000 | $320,470 | $320,470 | $0.00 | | |
| CWWBOND | C OF WW BOND 643 | 0.2760494372 | $320,470 | $320,470 | $88.47 | | |
| CWWGEN | CITY OF WW 631 | 1.6100204973 | $320,470 | $320,470 | $515.96 | | |
| CWWRFD | CITY OF WALLA WALLA REFUND 631 | 0.0000000000 | $320,470 | $320,470 | $0.00 | | |
| | Total Tax Rate: | 8.7973694689 | | | | | |
| | | | | Taxes w/Current Exemptions: | $2,819.30 | | |
| | | | | Taxes w/o Exemptions: | $2,819.30 | | |
Improvement / Building
| Improvement #1: | RESIDENTIAL | State Code: | 11 | 960.0 sqft | Value: | $259,630 |
| Exterior Wall: | VINYL | Heating/Cooling: | WARM & COOLED AIR | | Number of Bathrooms: | 2 | Number of Bedrooms: | 3 | | Plumbing: | 8 | Roof Covering: | COMP SHINGLE |
|
| | Type | Description | Class CD | Sub Class CD | Year Built | Area |
| | MA | Main Area | 1 | 30 | 1961 | 960.0 |
| | SI1 | SITE IMPROVEMENT | 1 | 30 | 1961 | 1.5 |
| | BASE | BASEMENT | 1 | 30 | 1961 | 960.0 |
| | BPF | BASEMENT -PARTITIONED FINISH | 1 | 30 | 1961 | 960.0 |
| | CPC | COVERED CARPORT/PATIO | 1 | 30 | 1961 | 424.0 |
| | PRC | PORCH W STEPS, ROOF,CEILED | 1 | 30 | 1961 | 42.0 |
Sketch
Property Image
Land
| 1 | RES 1 | Converted: Residential | 0.2235 | 9735.00 | 0.00 | 0.00 | 1.00 | $60,840 | $0 |
Roll Value History
| 2026 | N/A | N/A | N/A | N/A | N/A |
| 2025 | $273,530 | $97,350 | $0 | $370,880 | $370,880 |
| 2024 | $237,850 | $97,350 | $0 | $335,200 | $335,200 |
| 2023 | $259,630 | $60,840 | $0 | $320,470 | $320,470 |
| 2022 | $236,020 | $60,840 | $0 | $296,860 | $296,860 |
| 2021 | $205,240 | $60,840 | $0 | $266,080 | $266,080 |
| 2020 | $157,880 | $60,840 | $0 | $218,720 | $218,720 |
| 2019 | $157,880 | $60,840 | $0 | $218,720 | $100,620 |
| 2018 | $126,300 | $60,840 | $0 | $187,140 | $100,620 |
| 2017 | $139,080 | $38,900 | $0 | $177,980 | $61,920 |
| 2016 | $115,900 | $38,900 | $0 | $154,800 | $100,620 |
| 2015 | $115,900 | $38,900 | $0 | $154,800 | $100,620 |
| 2014 | $115,900 | $38,900 | $0 | $154,800 | $154,800 |
| 2013 | $115,900 | $38,900 | $0 | $154,800 | $154,800 |
| 2012 | $115,900 | $38,900 | $0 | $0 | $0 |
| 2011 | $101,800 | $38,900 | $0 | $0 | $0 |
| 2010 | $95,100 | $38,900 | $0 | $0 | $0 |
| 2009 | $110,000 | $38,900 | $0 | $0 | $0 |
| 2008 | $90,600 | $38,900 | $0 | $0 | $0 |
| 2007 | $90,600 | $38,900 | $0 | $0 | $0 |
Deed and Sales History
| 1 | 10/09/2020 | SWD | STATUTORY WARRANTY DEED | BOWKER ANNETTE I | RAMOS DIEGO LARA | | | $275,000.00 | 140077 | 2020-10475 |
| 2 | 07/07/2016 | QCD | QUIT CLAIM DEED | BOWKER ROBERT H & ANNETTE J | BOWKER ANNETTE I | | | $0.00 | 130570 | 2016-05231 |
| 3 | 12/01/2015 | SWD | STATUTORY WARRANTY DEED | HOBDE LYNDSAY | BOWKER ROBERT H & ANNETTE J | | | $183,000.00 | 129275 | 2015-10327 |
| 4 | 06/06/2012 | WARRANTY D | WARRANTY DEED | GREMER, JOSHUA & SARAH A | HOBDE, LYNDSAY | | | $162,000.00 | 122146 | 2012-04659 |
| 5 | 07/22/2011 | WARRANTY D | WARRANTY DEED | JOHNSON, RICHARD W ESTATE OF | GREMER, JOSHUA & SARAH A | | | $161,000.00 | 120450 | 2011-05714 |
| 6 | 07/03/1967 | WARRANTY D | WARRANTY DEED | | | | | $14,750.00 | 0 | 3220-487061 |
Payout Agreement
| No payout information available.. |