Property
Account |
| Property ID: | 32101 | Abbreviated Legal Description: | PARKVIEW LOT 23 |
| Parcel Number: | 360720680023 | Agent Code: | |
| Type: | Real | | |
| Tax Area: | 1 - OL-140-F | Land Use Code | 11 |
| Open Space: | N | DFL | N |
| Historic Property: | N | Remodel Property: | N |
| Multi-Family Redevelopment: | N | | |
| Township: | 7 | Section: | 20 |
| Range: | 36 |
Location |
| Address: | 910 E SUMACH ST WA 99362 | Mapsco: | |
| Neighborhood: | A-SFR | Map ID: | |
| Neighborhood CD: | 513011 |
Owner |
| Name: | SMITH CARALYN LENEL | Owner ID: | 72659 |
| Mailing Address: | TIMMY SMILEY 910 E SUMACH ST WALLA WALLA, WA 99362 | % Ownership: | 100.0000000000% |
| | | Exemptions: | |
Taxes and Assessment Details
Property Tax Information as of
02/21/2026
Click on "Statement Details" to expand or collapse a tax statement.
* Please enter a valid date ** Please enter a valid date *
Statement Details |
| | TOTAL: | $0.00 | $0.00 | $0.00 | $0.00 | $0.00 | $0.00 |
|
| | $0.00 | $0.00 | $0.00 | $0.00 | $0.00 | $0.00 |
Values
| (+) Improvement Homesite Value: | + | $0 | |
| (+) Improvement Non-Homesite Value: | + | $327,160 | |
| (+) Land Homesite Value: | + | $0 | |
| (+) Land Non-Homesite Value: | + | $46,250 | |
| (+) Curr Use (HS): | + | $0 | $0 |
| (+) Curr Use (NHS): | + | $0 | $0 |
| | | -------------------------- | |
| (=) Market Value: | = | $373,410 | |
| (–) Productivity Loss: | – | $0 | |
| | | -------------------------- | |
| (=) Subtotal: | = | $373,410 | |
| (+) Senior Appraised Value: | + | $0 | |
| (+) Non-Senior Appraised Value: | + | $373,410 | |
| | | -------------------------- | |
| (=) Total Appraised Value: | = | $373,410 | |
| (–) Senior Exemption Loss: | – | $0 | |
| (–) Exemption Loss: | – | $0 | |
| | | -------------------------- | |
| (=) Taxable Value: | = | $373,410 | |
Taxing Jurisdiction
| Owner: | SMITH CARALYN LENEL | | |
| % Ownership: | 100.0000000000% | | |
| Total Value: | $373,410 | | |
| Tax Area: | 1 - OL-140-F |
| CERFD | CURRENT EXPENSE REFUND 010 | 0.0000000000 | $373,410 | $373,410 | $0.00 | | |
| CURREXP | CURRENT EXPENSE 010 | 1.0175366760 | $373,410 | $373,410 | $379.96 | | |
| HUMNSERV | HUMAN SERVICES 119 | 0.0250000000 | $373,410 | $373,410 | $9.34 | | |
| SLDREL | SOLDIERS RELIEF 121 | 0.0155990005 | $373,410 | $373,410 | $5.82 | | |
| EMERGSER | EMS 147 | 0.3792580840 | $373,410 | $373,410 | $141.62 | | |
| EMSRFD | EMS REFUND 147 | 0.0000000000 | $373,410 | $373,410 | $0.00 | | |
| PORTRFD | PORT REFUND 640 | 0.0000000000 | $373,410 | $373,410 | $0.00 | | |
| PORTWWGEN | PORT OF WW 640 | 0.2460186015 | $373,410 | $373,410 | $91.87 | | |
| SD140BOND | SD #140 BOND 764 | 0.8342371393 | $373,410 | $373,410 | $311.51 | | |
| SD140GEN | SD #140 GENERAL 760 | 2.0646500647 | $373,410 | $373,410 | $770.96 | | |
| ST2 | STATE SCHOOL PART 2 600 | 0.8131451643 | $373,410 | $373,410 | $303.64 | | |
| STATESCHL | STATE SCHOOL 600 | 1.5158548041 | $373,410 | $373,410 | $566.04 | | |
| STREFUND | STATE REFUND LEVY 603 | 0.0000000000 | $373,410 | $373,410 | $0.00 | | |
| CWWBOND | C OF WW BOND 643 | 0.2760494372 | $373,410 | $373,410 | $103.08 | | |
| CWWGEN | CITY OF WW 631 | 1.6100204973 | $373,410 | $373,410 | $601.20 | | |
| CWWRFD | CITY OF WALLA WALLA REFUND 631 | 0.0000000000 | $373,410 | $373,410 | $0.00 | | |
| | Total Tax Rate: | 8.7973694689 | | | | | |
| | | | | Taxes w/Current Exemptions: | $3,285.04 | | |
| | | | | Taxes w/o Exemptions: | $3,285.04 | | |
Improvement / Building
| Improvement #1: | RESIDENTIAL | State Code: | 11 | 1442.0 sqft | Value: | $327,160 |
| Exterior Wall: | VINYL | Foundation: | SLAB FOUNDATION | | Heating/Cooling: | HEAT PUMP | Number of Bathrooms: | 1 | | Number of Bedrooms: | 2 | Plumbing: | 7 | | Roof Covering: | COMP SHINGLE |   |   |
|
| | Type | Description | Class CD | Sub Class CD | Year Built | Area |
| | MA | Main Area | 1 | 30 | 1946 | 1442.0 |
| | CPC | COVERED CARPORT/PATIO | 1 | 30 | 0 | 90.0 |
| | PRC | PORCH W STEPS, ROOF,CEILED | 1 | 30 | 0 | 30.0 |
| | SI1 | SITE IMPROVEMENT | 1 | 30 | 0 | 1.0 |
| | BASE | BASEMENT | 1 | 30 | 1946 | 1190.0 |
| | BPF | BASEMENT -PARTITIONED FINISH | 1 | 30 | 1946 | 854.0 |
| | STG1 | Sub Terrain Garage Single | 1 | 30 | 1946 | 1.0 |
Sketch
Property Image
Land
| 1 | RES 1 | Converted: Residential | 0.1699 | 7400.00 | 0.00 | 0.00 | 1.00 | $46,250 | $0 |
Roll Value History
| 2026 | N/A | N/A | N/A | N/A | N/A |
| 2025 | $352,200 | $74,000 | $0 | $426,200 | $426,200 |
| 2024 | $320,180 | $74,000 | $0 | $394,180 | $394,180 |
| 2023 | $327,160 | $46,250 | $0 | $373,410 | $373,410 |
| 2022 | $311,580 | $46,250 | $0 | $357,830 | $357,830 |
| 2021 | $239,680 | $46,250 | $0 | $285,930 | $285,930 |
| 2020 | $177,540 | $46,250 | $0 | $223,790 | $223,790 |
| 2019 | $177,540 | $46,250 | $0 | $223,790 | $223,790 |
| 2018 | $147,950 | $46,250 | $0 | $194,200 | $194,200 |
| 2017 | $154,490 | $29,600 | $0 | $184,090 | $184,090 |
| 2016 | $147,140 | $29,600 | $0 | $176,740 | $176,740 |
| 2015 | $140,130 | $29,600 | $0 | $169,730 | $169,730 |
| 2014 | $103,800 | $29,600 | $0 | $133,400 | $133,400 |
| 2013 | $103,800 | $29,600 | $0 | $133,400 | $133,400 |
| 2012 | $137,100 | $29,600 | $0 | $0 | $0 |
| 2011 | $137,100 | $29,600 | $0 | $0 | $0 |
| 2010 | $129,200 | $29,600 | $0 | $0 | $0 |
| 2009 | $146,800 | $29,600 | $0 | $0 | $0 |
| 2008 | $106,100 | $29,600 | $0 | $0 | $0 |
| 2007 | $106,100 | $29,600 | $0 | $0 | $0 |
Deed and Sales History
| 1 | 10/20/2022 | SWD | STATUTORY WARRANTY DEED | SIBLEY DAVID C & EMILY S | SMITH CARALYN LENEL | | | $415,000.00 | 144887 | 2022-08586 |
| 2 | 12/18/2018 | WARRANTY D | WARRANTY DEED | LEWIS CAMERON | SIBLEY DAVID C & EMILY S | | | $242,000.00 | 136105 | 2018-10436 |
| 3 | 06/25/2014 | SWD | STATUTORY WARRANTY DEED | PONTI BRYAN | LEWIS CAMERON | | | $184,500.00 | 126132 | 2014-04385 |
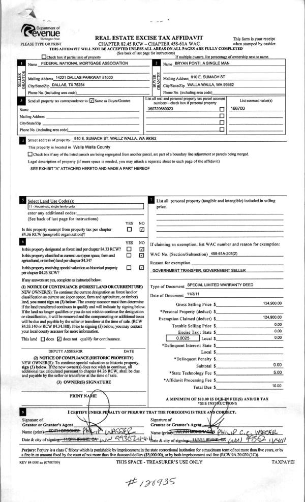
| 4 | 11/04/2011 | WARRANTY D | WARRANTY DEED | FEDERAL NATIONAL MORTGAGE ASSO | PONTI, BRYAN | | | $124,900.00 | 120935 | 2011-08712 |
| 5 | 07/19/2011 | WARRANTY D | WARRANTY DEED | RECONTRUST COMPANY | FEDERAL NATIONAL MORTGAGE~ASSO | | | $172,840.00 | 120430 | 2011-05594 |
| 6 | 04/29/2005 | WARRANTY D | WARRANTY DEED | KLEES, JACQUELINE ESTATE OF | WALKER, BRETT | | | $134,900.00 | 107370 | 2005-04970 |
| 7 | 01/01/1959 | WARRANTY D | WARRANTY DEED | | | | | $0.00 | 0 | 2800-392908 |
Payout Agreement
| No payout information available.. |