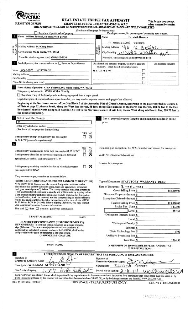
Property
Account |
| Property ID: | 32100 | Abbreviated Legal Description: | GREENS ANNEX TAX 3 LOT 3 BLK 7 |
| Parcel Number: | 360721750709 | Agent Code: | |
| Type: | Real | | |
| Tax Area: | 1 - OL-140-F | Land Use Code | 11 |
| Open Space: | N | DFL | N |
| Historic Property: | N | Remodel Property: | N |
| Multi-Family Redevelopment: | N | | |
| Township: | 7 | Section: | 21 |
| Range: | 36 |
Location |
| Address: | 416 N BELLEVUE AVE WA 99362 | Mapsco: | |
| Neighborhood: | A-SFR | Map ID: | |
| Neighborhood CD: | 513011 |
Owner |
| Name: | LUKE GREGORY S | Owner ID: | 64466 |
| Mailing Address: | 416 N BELLEVUE AVE WALLA WALLA, WA 99362 | % Ownership: | 100.0000000000% |
| | | Exemptions: | |
Taxes and Assessment Details
Property Tax Information as of
02/21/2026
Click on "Statement Details" to expand or collapse a tax statement.
* Please enter a valid date ** Please enter a valid date *
Statement Details |
| | TOTAL: | $0.00 | $0.00 | $0.00 | $0.00 | $0.00 | $0.00 |
|
| | $0.00 | $0.00 | $0.00 | $0.00 | $0.00 | $0.00 |
Values
| (+) Improvement Homesite Value: | + | $0 | |
| (+) Improvement Non-Homesite Value: | + | $254,110 | |
| (+) Land Homesite Value: | + | $0 | |
| (+) Land Non-Homesite Value: | + | $63,290 | |
| (+) Curr Use (HS): | + | $0 | $0 |
| (+) Curr Use (NHS): | + | $0 | $0 |
| | | -------------------------- | |
| (=) Market Value: | = | $317,400 | |
| (–) Productivity Loss: | – | $0 | |
| | | -------------------------- | |
| (=) Subtotal: | = | $317,400 | |
| (+) Senior Appraised Value: | + | $0 | |
| (+) Non-Senior Appraised Value: | + | $317,400 | |
| | | -------------------------- | |
| (=) Total Appraised Value: | = | $317,400 | |
| (–) Senior Exemption Loss: | – | $0 | |
| (–) Exemption Loss: | – | $0 | |
| | | -------------------------- | |
| (=) Taxable Value: | = | $317,400 | |
Taxing Jurisdiction
| Owner: | LUKE GREGORY S | | |
| % Ownership: | 100.0000000000% | | |
| Total Value: | $317,400 | | |
| Tax Area: | 1 - OL-140-F |
| CERFD | CURRENT EXPENSE REFUND 010 | 0.0000000000 | $317,400 | $317,400 | $0.00 | | |
| CURREXP | CURRENT EXPENSE 010 | 1.0175366760 | $317,400 | $317,400 | $322.97 | | |
| HUMNSERV | HUMAN SERVICES 119 | 0.0250000000 | $317,400 | $317,400 | $7.94 | | |
| SLDREL | SOLDIERS RELIEF 121 | 0.0155990005 | $317,400 | $317,400 | $4.95 | | |
| EMERGSER | EMS 147 | 0.3792580840 | $317,400 | $317,400 | $120.38 | | |
| EMSRFD | EMS REFUND 147 | 0.0000000000 | $317,400 | $317,400 | $0.00 | | |
| PORTRFD | PORT REFUND 640 | 0.0000000000 | $317,400 | $317,400 | $0.00 | | |
| PORTWWGEN | PORT OF WW 640 | 0.2460186015 | $317,400 | $317,400 | $78.09 | | |
| SD140BOND | SD #140 BOND 764 | 0.8342371393 | $317,400 | $317,400 | $264.79 | | |
| SD140GEN | SD #140 GENERAL 760 | 2.0646500647 | $317,400 | $317,400 | $655.32 | | |
| ST2 | STATE SCHOOL PART 2 600 | 0.8131451643 | $317,400 | $317,400 | $258.09 | | |
| STATESCHL | STATE SCHOOL 600 | 1.5158548041 | $317,400 | $317,400 | $481.13 | | |
| STREFUND | STATE REFUND LEVY 603 | 0.0000000000 | $317,400 | $317,400 | $0.00 | | |
| CWWBOND | C OF WW BOND 643 | 0.2760494372 | $317,400 | $317,400 | $87.62 | | |
| CWWGEN | CITY OF WW 631 | 1.6100204973 | $317,400 | $317,400 | $511.02 | | |
| CWWRFD | CITY OF WALLA WALLA REFUND 631 | 0.0000000000 | $317,400 | $317,400 | $0.00 | | |
| | Total Tax Rate: | 8.7973694689 | | | | | |
| | | | | Taxes w/Current Exemptions: | $2,792.30 | | |
| | | | | Taxes w/o Exemptions: | $2,792.30 | | |
Improvement / Building
| Improvement #1: | RESIDENTIAL | State Code: | 11 | 1447.0 sqft | Value: | $254,110 |
| Exterior Wall: | SIDING | Heating/Cooling: | WARM & COOLED AIR | | Number of Bathrooms: | 1 | Number of Bedrooms: | 4 | | Plumbing: | 6 | Roof Covering: | COMP SHINGLE |
|
| | Type | Description | Class CD | Sub Class CD | Year Built | Area |
| | MA | Main Area | 4 | 30 | 1911 | 1447.0 |
| | UPFL | Upper Floor (included in main area) | 4 | 30 | 1911 | 393.0 |
| | SI1 | SITE IMPROVEMENT | 4 | 30 | 1911 | 1.5 |
| | WOD | Wood Deck | 4 | 30 | 1911 | 98.0 |
Sketch
Property Image
Land
| 1 | RES 1 | Converted: Residential | 0.2652 | 11550.00 | 0.00 | 0.00 | 1.00 | $63,290 | $0 |
Roll Value History
| 2026 | N/A | N/A | N/A | N/A | N/A |
| 2025 | $232,080 | $101,180 | $0 | $333,260 | $333,260 |
| 2024 | $232,080 | $101,180 | $0 | $333,260 | $333,260 |
| 2023 | $254,110 | $63,290 | $0 | $317,400 | $317,400 |
| 2022 | $231,010 | $63,290 | $0 | $294,300 | $294,300 |
| 2021 | $115,510 | $63,290 | $0 | $178,800 | $178,800 |
| 2020 | $100,440 | $63,290 | $0 | $163,730 | $163,730 |
| 2019 | $100,440 | $63,290 | $0 | $163,730 | $163,730 |
| 2018 | $83,700 | $63,290 | $0 | $146,990 | $146,990 |
| 2017 | $95,130 | $41,200 | $0 | $136,330 | $136,330 |
| 2016 | $79,280 | $41,200 | $0 | $120,480 | $120,480 |
| 2015 | $79,280 | $41,200 | $0 | $120,480 | $120,480 |
| 2014 | $75,500 | $41,200 | $0 | $116,700 | $116,700 |
| 2013 | $75,500 | $41,200 | $0 | $116,700 | $116,700 |
| 2012 | $103,200 | $41,200 | $0 | $0 | $0 |
| 2011 | $103,200 | $41,200 | $0 | $0 | $0 |
| 2010 | $90,100 | $41,200 | $0 | $0 | $0 |
| 2009 | $104,700 | $41,200 | $0 | $0 | $0 |
| 2008 | $85,700 | $41,200 | $0 | $0 | $0 |
| 2007 | $85,700 | $41,200 | $0 | $0 | $0 |
Deed and Sales History
| 1 | 12/20/2018 | SWD | STATUTORY WARRANTY DEED | HERRERA ELIZABETH | LUKE GREGORY S | | | $170,000.00 | 136119 | 2018-10501 |
| 2 | 02/11/2014 | SWD | STATUTORY WARRANTY DEED | BRELAND WILLIAM M | HERRERA ELIZABETH | | | $115,000.00 | 125423 | 2014-01046 |
| 3 | 03/23/2012 | WARRANTY D | WARRANTY DEED | FEDERAL NATIONAL MORTGAGE ASSO | BRELAND, WILLIAM M | | | $100,150.00 | 121577 | 2012-02368 |
| 4 | 07/12/2011 | WARRANTY D | WARRANTY DEED | NORTHWEST TRUSTEE SERVICES INC | FEDERAL NATIONAL MORTGAGE~ASSO | | | $80,750.00 | 120389 | 2011-05314 |
| 5 | 08/22/2005 | WARRANTY D | WARRANTY DEED | HAGEN, ROBERT L & HELEN J | POIROT, JOSQUIN & SHANNA | | | $127,000.00 | 108297 | 2005-10403 |
| 6 | 03/24/1987 | WARRANTY D | WARRANTY DEED | | | | | $30,000.00 | 60447 | 1638-702190 |
Payout Agreement
| No payout information available.. |