Property
Account |
| Property ID: | 32080 | Abbreviated Legal Description: | SINGLETONS LOT 7 AND W 1/2 OF LOT 8 BLK 2 |
| Parcel Number: | 360729780207 | Agent Code: | |
| Type: | Real | | |
| Tax Area: | 1 - OL-140-F | Land Use Code | 11 |
| Open Space: | N | DFL | N |
| Historic Property: | N | Remodel Property: | N |
| Multi-Family Redevelopment: | N | | |
| Township: | 7 | Section: | 29 |
| Range: | 36 |
Location |
| Address: | 36 E CHESTNUT ST WA 99362 | Mapsco: | |
| Neighborhood: | A Res | Map ID: | |
| Neighborhood CD: | 613011 |
Owner |
| Name: | KRUPKAT LEAH M | Owner ID: | 56736 |
| Mailing Address: | 36 E CHESTNUT ST WALLA WALLA, WA 99362 | % Ownership: | 100.0000000000% |
| | | Exemptions: | |
Taxes and Assessment Details
Property Tax Information as of
04/19/2026
Click on "Statement Details" to expand or collapse a tax statement.
* Please enter a valid date ** Please enter a valid date *
Statement Details |
| | TOTAL: | $0.00 | $0.00 | $0.00 | $0.00 | $0.00 | $0.00 |
|
| | $0.00 | $0.00 | $0.00 | $0.00 | $0.00 | $0.00 |
Values
| (+) Improvement Homesite Value: | + | $0 | |
| (+) Improvement Non-Homesite Value: | + | $164,810 | |
| (+) Land Homesite Value: | + | $0 | |
| (+) Land Non-Homesite Value: | + | $72,900 | |
| (+) Curr Use (HS): | + | $0 | $0 |
| (+) Curr Use (NHS): | + | $0 | $0 |
| | | -------------------------- | |
| (=) Market Value: | = | $237,710 | |
| (–) Productivity Loss: | – | $0 | |
| | | -------------------------- | |
| (=) Subtotal: | = | $237,710 | |
| (+) Senior Appraised Value: | + | $0 | |
| (+) Non-Senior Appraised Value: | + | $237,710 | |
| | | -------------------------- | |
| (=) Total Appraised Value: | = | $237,710 | |
| (–) Senior Exemption Loss: | – | $0 | |
| (–) Exemption Loss: | – | $0 | |
| | | -------------------------- | |
| (=) Taxable Value: | = | $237,710 | |
Taxing Jurisdiction
| Owner: | KRUPKAT LEAH M | | |
| % Ownership: | 100.0000000000% | | |
| Total Value: | $237,710 | | |
| Tax Area: | 1 - OL-140-F |
| CERFD | CURRENT EXPENSE REFUND 010 | 0.0000000000 | $237,710 | $237,710 | $0.00 | | |
| CURREXP | CURRENT EXPENSE 010 | 1.0175366760 | $237,710 | $237,710 | $241.88 | | |
| HUMNSERV | HUMAN SERVICES 119 | 0.0250000000 | $237,710 | $237,710 | $5.94 | | |
| SLDREL | SOLDIERS RELIEF 121 | 0.0155990005 | $237,710 | $237,710 | $3.71 | | |
| EMERGSER | EMS 147 | 0.3792580840 | $237,710 | $237,710 | $90.15 | | |
| EMSRFD | EMS REFUND 147 | 0.0000000000 | $237,710 | $237,710 | $0.00 | | |
| PORTRFD | PORT REFUND 640 | 0.0000000000 | $237,710 | $237,710 | $0.00 | | |
| PORTWWGEN | PORT OF WW 640 | 0.2460186015 | $237,710 | $237,710 | $58.48 | | |
| SD140BOND | SD #140 BOND 764 | 0.8342371393 | $237,710 | $237,710 | $198.31 | | |
| SD140GEN | SD #140 GENERAL 760 | 2.0646500647 | $237,710 | $237,710 | $490.79 | | |
| ST2 | STATE SCHOOL PART 2 600 | 0.8131451643 | $237,710 | $237,710 | $193.29 | | |
| STATESCHL | STATE SCHOOL 600 | 1.5158548041 | $237,710 | $237,710 | $360.33 | | |
| STREFUND | STATE REFUND LEVY 603 | 0.0000000000 | $237,710 | $237,710 | $0.00 | | |
| CWWBOND | C OF WW BOND 643 | 0.2760494372 | $237,710 | $237,710 | $65.62 | | |
| CWWGEN | CITY OF WW 631 | 1.6100204973 | $237,710 | $237,710 | $382.72 | | |
| CWWRFD | CITY OF WALLA WALLA REFUND 631 | 0.0000000000 | $237,710 | $237,710 | $0.00 | | |
| | Total Tax Rate: | 8.7973694689 | | | | | |
| | | | | Taxes w/Current Exemptions: | $2,091.22 | | |
| | | | | Taxes w/o Exemptions: | $2,091.22 | | |
Improvement / Building
| Improvement #1: | RESIDENTIAL | State Code: | 11 | 1072.0 sqft | Value: | $164,810 |
| Exterior Wall: | SIDING | Foundation: | SLAB FOUNDATION | | Heating/Cooling: | WARM & COOLED AIR | Number of Bathrooms: | 1 | | Number of Bedrooms: | 2 | Plumbing: | 7 | | Roof Covering: | COMP SHINGLE |   |   |
|
| | Type | Description | Class CD | Sub Class CD | Year Built | Area |
| | MA | Main Area | 1 | 25 | 1900 | 1072.0 |
| | SI1 | SITE IMPROVEMENT | 1 | 25 | 1900 | 1.0 |
| | BASE | BASEMENT | 1 | 25 | 1900 | 144.0 |
| | DTG | Detached Garage | 1 | 25 | 1900 | 432.0 |
| | RPO | OPEN PORCH W/ROOF | 1 | 25 | 1900 | 100.0 |
Sketch
Property Image
Land
| 1 | RES 1 | Converted: Residential | 0.2066 | 9000.00 | 0.00 | 0.00 | 1.00 | $72,900 | $0 |
Roll Value History
| 2026 | N/A | N/A | N/A | N/A | N/A |
| 2025 | $216,500 | $89,100 | $0 | $305,600 | $305,600 |
| 2024 | $164,810 | $72,900 | $0 | $237,710 | $237,710 |
| 2023 | $164,810 | $72,900 | $0 | $237,710 | $237,710 |
| 2022 | $164,810 | $58,730 | $0 | $223,540 | $223,540 |
| 2021 | $137,340 | $58,730 | $0 | $196,070 | $196,070 |
| 2020 | $114,450 | $58,730 | $0 | $173,180 | $173,180 |
| 2019 | $114,450 | $58,730 | $0 | $173,180 | $173,180 |
| 2018 | $104,370 | $46,300 | $0 | $150,670 | $150,670 |
| 2017 | $99,400 | $46,300 | $0 | $145,700 | $145,700 |
| 2016 | $82,830 | $46,300 | $0 | $129,130 | $129,130 |
| 2015 | $82,830 | $46,300 | $0 | $129,130 | $129,130 |
| 2014 | $75,300 | $46,300 | $0 | $121,600 | $121,600 |
| 2013 | $75,300 | $46,300 | $0 | $121,600 | $121,600 |
| 2012 | $75,300 | $46,300 | $0 | $0 | $0 |
| 2011 | $59,400 | $46,300 | $0 | $0 | $0 |
| 2010 | $59,400 | $46,300 | $0 | $0 | $0 |
| 2009 | $71,100 | $46,300 | $0 | $0 | $0 |
| 2008 | $71,100 | $46,300 | $0 | $0 | $0 |
| 2007 | $10,800 | $18,000 | $0 | $0 | $0 |
Deed and Sales History
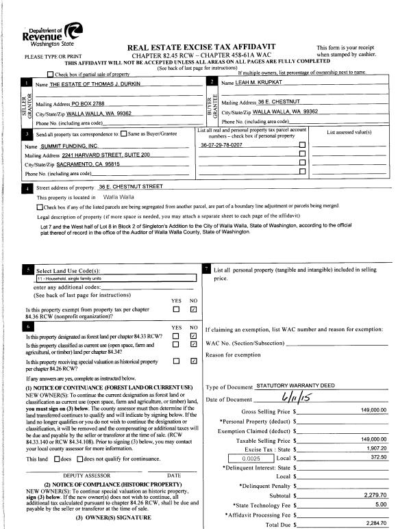
| 1 | 06/12/2015 | SWD | STATUTORY WARRANTY DEED | DURKIN THOMAS J ESTATE OF | KRUPKAT LEAH M | | | $149,000.00 | 128165 | 2015-04974 |
| 2 | 03/05/2015 | QCD | QUIT CLAIM DEED | SCARBOROUGH SARAH E | DURKIN THOMAS J ESTATE OF | | | $0.00 | 127544 | 2015-01950 |
| 3 | 08/10/2011 | QCD | QUIT CLAIM DEED | DURKIN, THOMAS J ESTATE OF | SCARBOROUGH, SARAH E | | | $0.00 | 120528 | 2011-06242 |
| 4 | 07/20/2011 | QCD | QUIT CLAIM DEED | DURKIN, THOMAS J ESTATE OF | SCARBOROUGH, SARAH E | | | | 120438 | 2011-05636 |
| 5 | 02/02/1972 | WARRANTY D | WARRANTY DEED | | | | | $0.00 | 59203 | 6300-37733 |
Payout Agreement
| No payout information available.. |