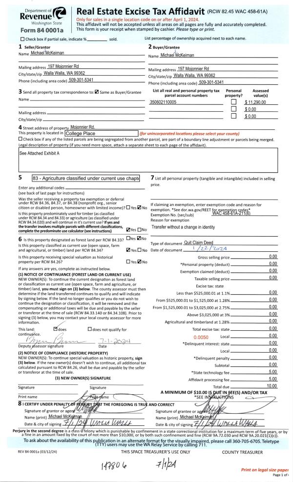
Property
Account |
| Property ID: | 3207 | Abbreviated Legal Description: | 2-6-35 PARCEL D OF S/P (NELY PTN NE1/4NE1/4, LESS RDS) LESS PTN FORRD |
| Parcel Number: | 350602110005 | Agent Code: | |
| Type: | Real | | |
| Tax Area: | 75 - CP 250 | Land Use Code | 83 |
| Open Space: | Y | DFL | N |
| Historic Property: | N | Remodel Property: | N |
| Multi-Family Redevelopment: | N | | |
| Township: | 6 | Section: | 2 |
| Range: | 35 |
Location |
| Address: | MOJONNIER RD WA 99324 | Mapsco: | |
| Neighborhood: | 0 Farm | Map ID: | |
| Neighborhood CD: | 2220 |
Owner |
| Name: | MCKEIRNAN MICHAEL J | Owner ID: | 70547 |
| Mailing Address: | 197 MOJONNIER RD WALLA WALLA, WA 99362 | % Ownership: | 100.0000000000% |
| | | Exemptions: | |
Taxes and Assessment Details
Values
| (+) Improvement Homesite Value: | + | $0 | |
| (+) Improvement Non-Homesite Value: | + | $0 | |
| (+) Land Homesite Value: | + | $0 | |
| (+) Land Non-Homesite Value: | + | $0 | |
| (+) Curr Use (HS): | + | $0 | $0 |
| (+) Curr Use (NHS): | + | $592,150 | $11,480 |
| | | -------------------------- | |
| (=) Market Value: | = | $592,150 | |
| (–) Productivity Loss: | – | $580,670 | |
| | | -------------------------- | |
| (=) Subtotal: | = | $11,480 | |
| (+) Senior Appraised Value: | + | $0 | |
| (+) Non-Senior Appraised Value: | + | $11,480 | |
| | | -------------------------- | |
| (=) Total Appraised Value: | = | $11,480 | |
| (–) Senior Exemption Loss: | – | $0 | |
| (–) Exemption Loss: | – | $0 | |
| | | -------------------------- | |
| (=) Taxable Value: | = | $11,480 | |
Taxing Jurisdiction
| Owner: | MCKEIRNAN MICHAEL J | | |
| % Ownership: | 100.0000000000% | | |
| Total Value: | $592,150 | | |
| Tax Area: | 75 - CP 250 |
| CERFD | CURRENT EXPENSE REFUND 010 | 0.0000000000 | $11,480 | $11,480 | $0.00 | | |
| CURREXP | CURRENT EXPENSE 010 | 1.0175366760 | $11,480 | $11,480 | $11.68 | | |
| HUMNSERV | HUMAN SERVICES 119 | 0.0250000000 | $11,480 | $11,480 | $0.29 | | |
| SLDREL | SOLDIERS RELIEF 121 | 0.0155990005 | $11,480 | $11,480 | $0.18 | | |
| COLLPLBOND | C OF CP BOND 644 | 0.4374241808 | $11,480 | $11,480 | $5.02 | | |
| COLLPLGEN | CITY OF CP 632 | 1.4453819216 | $11,480 | $11,480 | $16.59 | | |
| EMERGSER | EMS 147 | 0.3792580840 | $11,480 | $11,480 | $4.35 | | |
| EMSRFD | EMS REFUND 147 | 0.0000000000 | $11,480 | $11,480 | $0.00 | | |
| RURALLIB | RURAL LIBRARY 623 | 0.3710609029 | $11,480 | $11,480 | $4.26 | | |
| PORTRFD | PORT REFUND 640 | 0.0000000000 | $11,480 | $11,480 | $0.00 | | |
| PORTWWGEN | PORT OF WW 640 | 0.2460186015 | $11,480 | $11,480 | $2.82 | | |
| SD250BOND | SD #250 BOND 773 | 1.4560608159 | $11,480 | $11,480 | $16.72 | | |
| SD250GEN | SD #250 GENERAL 770 | 2.3880724087 | $11,480 | $11,480 | $27.42 | | |
| ST2 | STATE SCHOOL PART 2 600 | 0.8131451643 | $11,480 | $11,480 | $9.33 | | |
| STATESCHL | STATE SCHOOL 600 | 1.5158548041 | $11,480 | $11,480 | $17.40 | | |
| STREFUND | STATE REFUND LEVY 603 | 0.0000000000 | $11,480 | $11,480 | $0.00 | | |
| | Total Tax Rate: | 10.1104125603 | | | | | |
| | | | | Taxes w/Current Exemptions: | $116.06 | | |
| | | | | Taxes w/o Exemptions: | $116.06 | | |
Improvement / Building
Sketch
| No sketches available for this property. |
Property Image
Land
| 1 | 8000-C1-I | Class 1 irrigated | 9.1100 | 0.00 | 0.00 | 0.00 | 1.00 | $592,150 | $11,480 |
| 2 | WASTE | Waste | 0.8500 | 0.00 | 0.00 | 0.00 | 1.00 | $0 | $0 |
Roll Value History
| 2026 | N/A | N/A | N/A | N/A | N/A |
| 2025 | $0 | $592,150 | $18,880 | $18,880 | $18,880 |
| 2024 | $0 | $592,150 | $11,530 | $11,530 | $11,530 |
| 2023 | $0 | $592,150 | $11,480 | $11,480 | $11,480 |
| 2022 | $0 | $683,250 | $11,290 | $11,290 | $11,290 |
| 2021 | $0 | $72,880 | $11,290 | $11,290 | $11,290 |
| 2020 | $0 | $72,880 | $11,520 | $11,520 | $11,520 |
| 2019 | $0 | $72,880 | $11,880 | $11,880 | $11,880 |
| 2018 | $0 | $72,880 | $12,110 | $12,110 | $12,110 |
| 2017 | $0 | $72,880 | $12,490 | $12,490 | $12,490 |
| 2016 | $0 | $72,880 | $12,540 | $12,540 | $12,540 |
| 2015 | $0 | $72,880 | $11,420 | $11,420 | $11,420 |
| 2014 | $0 | $72,880 | $11,420 | $11,420 | $11,420 |
| 2013 | $0 | $72,900 | $9,800 | $9,800 | $9,800 |
| 2012 | $0 | $7,800 | $0 | $0 | $0 |
| 2011 | $0 | $7,500 | $0 | $0 | $0 |
| 2010 | $0 | $7,700 | $0 | $0 | $0 |
| 2009 | $0 | $7,600 | $0 | $0 | $0 |
| 2008 | $0 | $10,500 | $0 | $0 | $0 |
| 2007 | $0 | $10,500 | $0 | $0 | $0 |
Deed and Sales History
| 1 | 07/01/2024 | BLAGQCC | BOUNDRY LINE AGREEMENT QUIT CLAIM CONVEYANCE | MCKEIRNAN MICHAEL J | MCKEIRNAN MICHAEL J | | | | 147806 | 2024-03531 |
| 2 | 07/01/2024 | BOUNDARY L | BOUNDARY LINE ADJUSTMENT | MCKEIRNAN MICHAEL J | MCKEIRNAN MICHAEL J | | | | 147803 | 2024-03527 |
| 3 | 11/30/2023 | SURVEY | SURVEY | | | | | | 0 | 2023-06942 |
| 4 | 09/25/2021 | SWD | STATUTORY WARRANTY DEED | MCKEIRNAN MICHAEL J | MCKEIRNAN MICHAEL J | | 2-PARCELS | $155,000.00 | 142650 | 2021-12392 |
|   | |
| 5 | 09/27/2021 | SWD | STATUTORY WARRANTY DEED | MC KEIRNAN MICHAEL | MCKEIRNAN MICHAEL J | | 2-PARCELS | $155,000.00 | 142649 | 2021-12394 |
|   | |
Payout Agreement
| No payout information available.. |